99991 (614018), страница 3
Текст из файла (страница 3)
Раздел 2. Организация рабочих мест в финансовом отделе Управления экономики Харьковской областной администрации
Таблица 1
Фактически исполняемые обязанности начальника экономического отдела
| № п/п | Содержание исполняемых обязанностей | Экспертная оценка затрат рабочего времени в месяц, % |
| 1 | Должностные обязанности или виды деятельности, предусмотренные должностной инструкцией рабочего | 70 |
| 1.1 | Анализ деятельности предприятий всех форм собственности | 17,8 |
| 1.2 | Разработка основных направлений текущего социально-экономического развития территории района | 17,2 |
| 1.3 | Разработка основных направлений перспективного развития территории района | 15,1 |
| 1.4 | Контроль использования территории района | 19,9 |
| 2 | Другие обязанности, не предусмотренные должностной инструкцией | 30 |
| 2.1 | Помощь в рассмотрении и обобщении проектов и планов предприятий, связанных с перспективным развитием района | 13,7 |
| 2.2 | Анализ поступивших заявлений от населения | 6,3 |
| 2.3 | Подготовка планов работ отдела | 10,0 |
| Итого | 100 |
Проанализировав таблицу 1 можно сделать вывод, что начальник экономического отдела наиболее рационально использует свой труд, ответственно относится к исполнению своих обязанностей, поддерживает своих подчиненных дельными советами и помогает им в исполнении их обязанностей.
Таблица 2
Анализ распределения функциональных обязанностей в экономическом отделе
| Наименование функций, процедур, операций, которые исполняются в подразделении | Исполнители | |||||
| А | Б | В | Г | |||
| 1 | Анализ деятельности предприятий всех форм собственности | 28 | 60 | |||
| 2 | Разработка основных направлений текущего экономического развития территории района | 37 | 25 | |||
| 3 | Разработка основных направлений перспективного развития территории района | 37 | 77 | |||
| 4 | Привлечение субъектов предпринимательской деятельности к участию в социально-экономическом развитии района | 52 | 50 | |||
| 5 | Анализ использования территории района | 18 | ||||
| 6 | Контроль использования территории района | 13 | ||||
| 7 | Рассмотрение и обобщение проектов и планов предприятий, связанных с перспективным развитием района | 17 | ||||
| 8 | Принятие и рассмотрение заявлений от населения | 45 | ||||
| 9 | Построение планов работ отдела | 18 | ||||
| 10 | Компьютерный набор текстов, заявлений, откликов | 67 | ||||
| 11 | Разработка электронных таблиц | 75 | ||||
| 10 | Итого, часов в месяц | 167 | 155 | 155 | 137 | |
где, А – начальник отдела, Б – заместитель начальника отдела, В – главный специалист, Г – оператор компьютерного набора.
Проанализировав данную таблицу можно сделать выводы, что наибольшую часть обязанностей в этом отделе выполняет начальник отдела А. А наименьшую - главный специалист В.
Таблица 3
Карточка обработки фотографии рабочего дня (фактический и проектный баланс рабочего времени)
| №п/п | Наименование затрат времени | Усл. обозначения | Факт | План | Увеличение(+) сокращение(-), мин | ||
| мин | % | мин | % | ||||
| 1 | Подготовительно-завершальный | Тпз | 43,2 | 9 | 24 | 5 | +19,2 |
| 2 | Оперативная работа | Топ | 345,6 | 72 | 427,2 | 89 | -81,6 |
| 3 | Непродуктивный труд | Тнп | 14,4 | 3 | 0 | 0 | +14,4 |
| 4 | Обслуживание рабочего места | Тобс | 24 | 5 | 19,2 | 4 | +4,8 |
| 5 | Перерывы, обусловленные недостатками в организации | Тпнт | 14,4 | 3 | 0 | 0 | +14,4 |
| 6 | Перерывы, связанные с нарушениями трудовой дисциплины | Тппд | 9,6 | 2 | 0 | 0 | +9,6 |
| 7 | Отдых и собственные потребности | Тво | 28,8 | 6 | 9,6 | 2 | +19,2 |
| Итого | 480 | 100 | 480 | 100 | |||
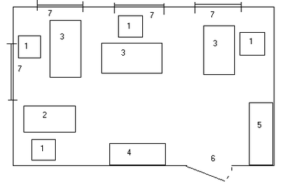
Планирование рабочих мест
Рис. 1 Существующее планирование рабочих мест
Условные обозначения:
1 – кресло; 2 – стол оператора компьютерного набора; 3 – письменный стол; 4 – шкаф для одежды; 5 – шкаф для документов; 6 – входная дверь; 7 – окно.
Обстановка кабинета играет очень важную роль для психологического состояния работника. В кабинете должно быть достаточно свободного места как для свободного доступа к шкафам, столам, сейфу так и для осуществления беспрепятственного движения по кабинету.
В данном подразделении обстановка кабинета соответствует стандартам, естественное освещение попадает в кабинет для достаточного освещения, также в кабинете присутствуют источники искусственного освещения.
Для государственных служащих также очень важен интерьер кабинета, температура воздуха, качество освещения как естественного, так и искусственного.
Таблица 4
Рекомендованные параметры при рабочей позе «сидя»
| № п/п | Наименование параметра | Значение, мм |
| 1. | Наибольшая высота рабочей поверхности | 1200 |
| 2. | Высота обычного рабочего столу | 700-750 |
| 3. | Наименьшая высота стола | 680 |
| 4. | Высота стула | 400-430 |
| Ь. | Высота пространства для ног (от пола до нижней поверхности стола) | 600 |
| 6. | Ширина зоны для ног | 530 |
| 7. | Нормальная рабочая зона в горизонтальной площади движения руками (от центра стула) | 550 |
| 8. | Угол зрения по вертикали | 38° ±6° |
Рабочее место делится на рабочую зону (зону досягаемости) и вспомогательный простор.
Зона досягаемости – это расстояние в трехмерном пространстве, в рамках которого работник может делать работу не перемещаясь. Нормативные размерные соотношения при позе "сидя" показаны в таблице 4.
Техническое оснащение рабочих мест в подразделении
Для эффективной работы также важно техническое оснащение рабочего места.
В таблице 5 показан уровень оснащения рабочих мест экономического отдела.
Таблица 5
Оснащение рабочих мест финансового отдела
| № п/п | Наименование оборудования | Количество |
| 1 | Оснащение рабочего места оператора компьютерного набора: | |
| 1.1 1.2 1.3 1.4 1.5 1.6 | компьютер принтер сканер калькулятор настольная лампа телефон | 1 1 1 1 1 1 |
| 2 | Оснащение рабочего места начальника отдела: | |
| 2.1 2.2 2.3 2.4 2.5 | телефон внутренний телефон-факс настольная лампа калькулятор приемник | 1 1 1 1 1 |
| 3 | Оснащение рабочего места заместителя начальника | |
| 3.1 | телефон | 1 |
| 3.2 | калькулятор | 1 |
| 3.3 | настольная лампа | 1 |
| 4 | Оснащение рабочего места главного специалиста | |
| 4.1 | калькулятор | 1 |
| 4.2 | настольная лампа | 1 |
С таблицы можно сделать вывод, что уровень технического оснащения данного подразделения является достаточным для эффективной работы и главного специалиста и оператора компьютерного набора.
















