48321 (608536)
Текст из файла
Министерство транспорта РФ
федеральное агентство железнодорожного транспорта
ГОУ ВПО "ДВГУПС"
Кафедра: "Информационные системы и технологии"
Курсовая работа
на тему: "Проект сети для кафедры информационных технологий и систем"
Выполнил: Козенко А. Ж.,
220 группа
Проверил: Файзулин Р.М,
Хабаровск 2007
Оглавление
Введение
Задание
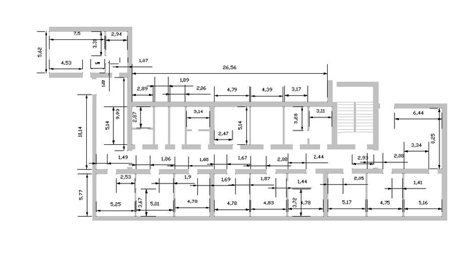
План исходного здания
Распределение ПК по комнатам и отделам
Основные сведения о закладываемой ЛВ
Сетевая технология Token Ring (802.5)
Сетевая технология FDDI
Сетевая технология Ethernet
Параметры спецификаций сетевых архитектур
Выбор пассивного и вспомогательного оборудования сети
Схема размещения оборудования в шкафу
Выбор программного обеспечения
Структура сетевой операционной системы
Программное обеспечение ЛВС
Выбор протоколов и схемы адресации
Организация доступа в Интернет
Экономическая часть
Расчет затрат на внедрение вычислительной сети
Затраты на наладку, монтаж и пуск ЛВС
Заключение
Список литературы
Введение
В настоящее время, каждое предприятие стремится автоматизировать свое производство, создавая локальные вычислительные сети. С каждым годом количество ЛВС по всему миру возрастает, следовательно возрастает и потребность в высококлассных специалистах данного профиля.
Современные сетевые технологии способствовали новой технической революции. Создание ЛВС на предприятии, в учебном заведении, фирме способствует гораздо высокому процессу обмена данными, сведениями между различными объектами, ускорению документооборота, увеличению и ускорению передачи и обмену оперативной информацией.
При создании локально вычислительной сети принимают во внимание несколько фактов, вот основные из них:
-
производительность сети
-
надежность сети
-
степень информационной безопасности
-
требуемые аппаратные ресурсы
-
функциональная мощность
-
возможность объединения с другими ЛВС
-
стоимость
В процессе проектирования сети, необходимо также учитывать ряд требований прикладного характер, такие как: физическое расположение пользователей, количество оконченных систем, требования к передаче данных (типы данных, среднюю нагрузку), расстояние между оконечными системами, максимальная протяженность сети, показатель надежности сети в целом и отдельных ее частей. Проектирование ЛВС необходимо производить с учетом развития, принимая во внимание возможность увеличения числа рабочих станций в сети.
Исходные данные для проектирования ЛВС могут быть получены в ходе анализа прикладной области, для которой должна быть создана сеть. Данные затем уточняются в результате принятия решений на этапах проектирования ЛВС. На данном этапе необходимо определить цели создания сети, перечень требований и функций пользователей в сети для заданной предметной области.
Задание
Разработать сеть для кафедры информационных технологий и систем.
Организационно штатная структура подразделения:
-
Зав. Кафедрой – 1 рабочая станция
-
Зам. Зав.Кафедрой – 1 рабочая станция
-
Зав. Лабораторией – 1 рабочая станция
-
Лаборант техник – 1 рабочая станция
-
Преподаватели (10 штатный единиц) – 10 рабочих станций
-
Класс компьютерный – 21 рабочая станция
-
Лаборатория сетевых технологий – 12 рабочих станций
-
Теоретическая аудитория – 3 рабочих станции, предусмотреть возможность подключения проектора
Главной целью информатизации кафедры является:
-
Реализация учебного процесса на лабораторных, практических занятиях, выполнение курсового и дипломного проектирования
-
Обеспечение оперативного доступа студентов и преподавателей к максимально широкому кругу информационных ресурсов, в том числе использование удаленного доступа
-
Разработка методического обеспечения
-
Разработка и использование во время занятий электронных учебников, справочников, энциклопедий на CD-ROM
Средняя интенсивность трафика генерируемого одним ПЭВМ = 0,16
Трафик от групп к серверу составляет 60%
Назначение ЛАС: Информационная система для кафедры университета.
План исходного здания
Распределение ПК по комнатам и отделам
| Номер комнаты | Площадь помещения | Наименование отдела | Наименование пользователей в сети | Количество ПК (пользователей) | Кол-во возможных ПК |
| 101 | 120,76 | Компьютерный класс | 101class | 21 | 26 |
| 102 | 82,137 | Лаборатория сетевых технологий | 102Lab | 12 | 18 |
| 103 | 27,86 | Зам. Кафедры | ZamKaf | 1 | 4 |
| 104 | 16,13 | Коммутационный узел | -/- | -/- | 1 |
| 105 | 27,58 | Зав. Кафедрой | ZavKaf | 1 | 6 |
| 106 | 21,38 | Зав. Лабораторией | ZavLab | 1 | 4 |
| 107 | 88,91 | Теоритическая аудитория | 107aud | 3+проектор | 5 |
| 108 | 14,85 | Лаборант техник | Laborant | 1 | 3 |
| 109 | 59,45 | Преподаватели | Prepod | 10 | 13 |
| Итог: | 50 | 80 | |||
Трафик одного ПК в сети составляет:
Ci=K*Cмакс=0,16*100=16 Мбит/с
Определим суммарный трафик неструктурированной сети:
Cсум = N*M*Ci=1*50*16=800 Мбит/с
Определим коэффициент нагрузки неструктурированной сети:
Pн=Cсум/Cмакс=800/100=8
Проверим, выполняется ли условие допустимой нагрузки ЛВС (домена колизий): Pн≤Pethernet=0.35, 8>0,35 => необходимо сделать логическую структуризацию сети. Pдк=1*16/100=0,16<0.35, в одном сегменте расположен один ПК.
Во многих случаях потоки информации распределены таким образом, что сервер должен обслуживать многочисленных клиентов, поэтому он является "узким местом" сети. Для расчета ЛВС по этому критерию в задании задается, что трафики от групп к серверу и между группами составляют Кs % от суммарного трафика неструктурированной сети.
На основании чего определяем межгрупповой трафик и трафик к серверу:
См.гр.=Ссерв.=Ks*Ссум=0,6*800=480 Мбит/с
Определим коэффициент нагрузки по межгрупповому трафику и трафику к серверу:
Рмгр=Рсерв=Кs*Ссум/Смакс≤0,35
Смакс=1000 Мбит/с
Рмгр=480/1000=0,48>0,35
Трафик к серверу составляет 1 Gigabit/s.
Основные сведения о закладываемой ЛВС
| Компонент / Характеристика | Реализация |
| Организационная структура: | |
| Количество зданий | 1 |
| Количество этажей | 1 |
| Количество помещений | 9 |
| Количество отделов | 9 |
| Количество пользователей | 50 |
| Закладываемое расширение ПК (ограниченно площадью) | 80 |
| Максимальное расстояние между ПК (по плану здания) | 72,22 |
| Основные цели создания сети: | обеспечение оперативного доступа студентов и преподавателей к максимально широкому кругу информационных ресурсов, в т.ч. с использованием удаленного доступа |
| Расчет нагрузки сети | |
| Коэффициент нагрузки неструктурированной сети | 8 |
| Коэффициент нагрузки структурированной сети для каждого сегмента | 0,16 |
| Количество логических сегментов | 80 |
| Количество ПК в каждом сегменте | 1 |
| Коэффициент нагрузки по трафику к серверу | 0,048 |
| Управление совместным использованием ресурсов | Централизованная сеть |
| Совместное использование периферийных устройств | Проектор, XDSL модем |
| Поддерживаемые сетевые приложения | Электронные учебники |
Сетевая технология Token Ring (802.5)
Сети Token Ring, так же как и сети Ethernet, характеризует разделяемая среда передачи данных, которая в данном случае состоит из отрезков кабеля, соединяющих все станции сети в кольцо. Кольцо рассматривается как общий разделяемый ресурс, и для доступа к нему требуется не случайный алгоритм, как в сетях Ethernet, а детерминированный, основанный на передаче станциям права на использование кольца в определенном порядке. Это право передается с помощью кадра специального формата, называемого маркером или токеном (token).
Технология Token Ring был разработана компанией IBM в 1984 году, а затем передана в качестве проекта стандарта в комитет IEEE 802, который на ее основе принял в 1985 году стандарт 802.5. Компания IBM использует технологию Token Ring в качестве своей основной сетевой технологии для построения локальных сетей на основе компьютеров различных классов - мэйнфреймов, мини-компьютеров и персональных компьютеров. В настоящее время именно компания IBM является основным законодателем моды технологии Token Ring, производя около 60 % сетевых адаптеров этой технологии.
Сети Token Ring работают с двумя битовыми скоростями - 4 и 16 Мбит/с. Смешение станций, работающих на различных скоростях, в одном кольце не допускается. Сети Token Ring, работающие со скоростью 16 Мбит/с, имеют некоторые усовершенствования в алгоритме доступа по сравнению со стандартом 4 Мбит/с.
Технология Token Ring является более сложной технологией, чем Ethernet. Она обладает свойствами отказоустойчивости. В сети Token Ring определены процедуры контроля работы сети, которые используют обратную связь кольцеобразной структуры - посланный кадр всегда возвращается в станцию - отправитель. В некоторых случаях обнаруженные ошибки в работе сети устраняются автоматически, например может быть восстановлен потерянный маркер. В других случаях ошибки только фиксируются, а их устранение выполняется вручную обслуживающим персоналом.
0>Характеристики
Тип файла документ
Документы такого типа открываются такими программами, как Microsoft Office Word на компьютерах Windows, Apple Pages на компьютерах Mac, Open Office - бесплатная альтернатива на различных платформах, в том числе Linux. Наиболее простым и современным решением будут Google документы, так как открываются онлайн без скачивания прямо в браузере на любой платформе. Существуют российские качественные аналоги, например от Яндекса.
Будьте внимательны на мобильных устройствах, так как там используются упрощённый функционал даже в официальном приложении от Microsoft, поэтому для просмотра скачивайте PDF-версию. А если нужно редактировать файл, то используйте оригинальный файл.
Файлы такого типа обычно разбиты на страницы, а текст может быть форматированным (жирный, курсив, выбор шрифта, таблицы и т.п.), а также в него можно добавлять изображения. Формат идеально подходит для рефератов, докладов и РПЗ курсовых проектов, которые необходимо распечатать. Кстати перед печатью также сохраняйте файл в PDF, так как принтер может начудить со шрифтами.
















