4518 (600171)
Текст из файла
ПЛАН
Вступ
1 Призначення і класифікація сховищ
2 Вимоги до сховищ
3 Будова сховища
4 Швидкобудівні сховища
5 Протирадіаційні укриття
6 Найпростіші укриття
7 Правила користування сховищами
Висновок
Список використаної літератури
Вступ
Укриття в захисних спорудах — основний і найбільш надійний спосіб захисту від усіх вражаючих факторів. Цей спосіб передбачає застосування системи захисних споруд, які відповідають можливому характеру обстановки і вимогам захисту різних категорій населення.
Систему захисних споруд становлять сховища в категорійованих містах і на найважливіших об'єктах господарювання, протирадіаційні укриття (ПРУ) у некатегорійованих містах і сільській місцевості, а також пристосовані для цієї мети метрополітени, підземні гірничі виробки, природні пустоти, найпростіші укриття у вигляді відкритих і перекритих щілин. Найважливішими напрямками в підвищенні надійності захисту є завчасне розгортання будівництва захисних споруд з метою забезпечення ними всього населення.
Комплекс заходів щодо укриття населення включає будівництво захисних споруд, підтримку їх у готовності в мирний час і організацію використання цих споруд для захисту населення. Крім того, передбачається організація прискореного будівництва частини споруд для укриття всього населення при загрозі нападу противника.
Будівництво і нагромадження фонду захисних споруд, а також пристосування і використання для укриття населення різних будинків і споруд, підвальних й інших заглиблених приміщень, метрополітенів, гірничих виробок і природних пустот є найважливішими інженерно-технічними заходами Цивільної оборони (ІТЗ ЦО) по створенню матеріальної бази для організації захисту населення в надзвичайних ситуаціях мирного і воєнного часу.
Фонд захисних споруд створюється і підтримується в стані необхідної готовності в мирний час.
Для ефективного використання захисних споруд у воєнний час плануються і підготовляються заходи щодо приведення їх у повну готовність, щодо організації заповнення споруд людьми і життєзабезпеченню людей. Особливе значення при організації укриття має швидкість оповіщення населення і заповнення захисних споруд людьми.
Мета написання курсової роботи полягає в з`ясуванні призначення та особливостей експлуатації захисних споруд.
Досягнення поставленої мети вимагає вирішення певного кола завдань.
Завдання:
1. навести класифікацію сховищ;
2. охарактеризувати основні вимоги до сховищ;
3. розглянути будову сховища;
4. сформувати поняття про швидко будівні сховища;
5. розглянути особливості протирадіаційних укриттів.
Об`єктом дослідження являються захисні споруди та особливості їх використання.
Дана тема досить актуальна для вивчення оскільки не на кожному господарському об`єкті на сьогоднішній день досить добре організовано забезпечення працівників захисними спорудами.
Розглянемо в своїй роботі як дана проблема вирішується на ВАТ „Чексіл” м. Чернігова (будова сховища).
1 Призначення і класифікація сховищ
Сховищами називають захисні споруди герметичного типу, які забезпечують колективний захист від дії вражаючих факторів сучасної зброї, від впливу високих температур і продуктів горіння при пожежах, від ОР і СДОР, від радіоактивних речовин і біологічних засобів. Вони повинні забезпечувати надійне укриття людей щонайменше протягом двох діб. Захист людей від впливу ударної хвилі забезпечується міцними загороджувальними конструкціями і установкою противибухових пристроїв у системі вентиляції; захист від отруйних речовин, радіоактивного пилу і біологічних засобів досягається шляхом оснащення системи фільтровентиляції спеціальним устаткуванням (протипиловими фільтрами, фільтрами-поглиначами).
Сховища класифікуються: по захисних властивостях, місткості (сумі місця для сидіння та лежання), за місцем розташування, забезпеченням фільтровентиляційним обладнанням, термінами будівництва [1].
За ступенем захисту від ударної хвилі й у залежності від коефіцієнтів захисту від γ- і нейтронного випромінювання їх поділяють на 4 класи.
Сховища 1-го класу розраховані на надлишковий тиск у фронті ударної хвилі не менше 5 кгс/см2 (500 кПа) і мають Кзах не менше 5000; сховища 2-го класу повинні витримувати надлишковий тиск не менше 3 кгс/см2 (300 кПа) і послаблювати зовнішні γ-і нейтронне випромінювання не менше, ніж в 3000 разів; сховища 3-го класу розраховані на надлишковий тиск не менше 2 кгс/см2 (200 кПа) і Кзах > 2000; сховища 4-го класу розраховані на надлишковий тиск не менше 1 кгс/см2 (100 кПа) і мають Кзах - 1000.
За місткістю сховища можуть будуватися на 150, 300, 600, 900, 1200, 1500, 1800, 2100, 2500, 3000 чоловік і більше.
Будівництво сховищ меншої місткості допускається у виняткових випадках при малій кількості працюючих. На підприємствах, в установах і організаціях, які мають чисельність працюючої зміни 50 чол. і менше, можуть будуватися сховища, що забезпечують колективний захист групи об'єктів.
За місцем розташування сховища можуть бути вбудовані і окремі. Вбудовані створюються в підвальних поверхах і заглиблених приміщеннях виробничих та допоміжних промислових підприємств, громадських і житлових будівель. Однак можуть створюватися і сховища, вбудовані в перші поверхи будівель і споруд. Окремі сховища будуються тільки в тих випадках, коли нема можливості мати вбудовані, наприклад, на об'єктах, які не ведуть нового будівництва [3].
По забезпеченню фільтровентиляційним обладнанням сховища можуть бути з фільтровентиляційним обладнанням промислового виготовлення або зі спрощеним, виготовленим з підручних матеріалів.
За часом будівництва сховища бувають: збудовані завчасно в мирний час і такі, що будуються швидко при загрозі нападу.
2 Вимоги до сховищ
Сховища повинні забезпечувати захист людей від усіх вражаючих факторів; будуватися на ділянках місцевості, які не затоплюються; мати входи і виходи з таким же ступенем захисту, що й основні приміщення, а на випадок обвалу — аварійні виходи; мати вільні підходи, де не повинно бути спалимих матеріалів або матеріалів, які сильно димлять; мати основні приміщення висотою не менше 2,2 м і рівень підлоги, який лежить вище рівня ґрунтових вод не менше ніж на 20 см.
Фільтровентиляційне обладнання сховища повинно очищувати повітря від усіх шкідливих домішок і забезпечувати подачу чистого повітря в межах установлених норм.
Використання сховищ у мирний час для потреб народного господарства не повинно порушувати їх захисних властивостей. Переведення приміщень на режим укриттів у надзвичайних ситуаціях повинно здійснюватися в мінімально короткі терміни.
Сховища повинні забезпечувати створення необхідних санітарно-гігієнічних умов для людей. Основними показниками цих умов є: вміст вуглекислого газу, температура і вологість повітря. Повітря має містити не більше 1% вуглекислого газу (гранично допустима концентрація дорівнює 3%), мати відносну вологість не більше 70% (гранично допустима — 80%) і температуру повітря не вище +23 °С (гранично допустима — +31 °С).
3 Будова сховища
Приміщення сховищ на території об`єкта поділяються на основні та допоміжні. До основних належать відсіки (приміщення для людей і тамбур-шлюзи, до допоміжних — фільтровентиляційні камери (ФВК), санітарні вузли, захищені дизельні електростанції (ДЕС), захищені входи і виходи [2].
Кількість входів у сховище визначається з розрахунку один вхід розміром 80 х 180 см на 200 чол.; але й для сховищ малої місткості бажано мати 2 входи. Вони повинні розташовуватися на протилежних сторонах. Захист від потрапляння у сховище через вхід радіоактивних і ОР забезпечується обладнанням тамбурів.
Двері повинні мати резинові прокладки і клинові затвори, які забезпечують щільне притискання дверного полотна до дверної коробки. Аварійний вихід робиться у вигляді підземної галереї розміром у поперечнику 90x130 см з виходом на територію, яка не завалюється, через вертикальну шахту, що закінчується оголів'ям (оголів'я — верхня частина шахти аварійного виходу або системи повітропостачання; для запобігання потрапляння в шахту атмосферних опадів і сторонніх предметів обладнується козирком). Вихід у галерею закривається захисно-герметичними ставнями, які встановлюються із зовнішнього і внутрішнього боків стіни.
Оголів'я аварійного виходу повинне бути віддалене від оточуючих будинків на відстань, що становить не менше половини висоти будинку плюс 3 м, виступати над поверхнею землі на 1,2-1,5 м; и кожній його стіні повинен бути отвір розміром 0,6 х 0,8 м, обладнаний жалюзійними ґратами, які відчиняються всередину.
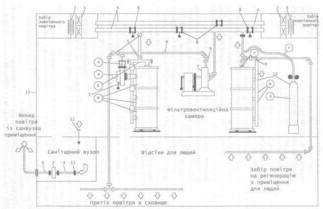
Система повітропостачання з фільтровентиляційним обладнанням промислового виготовлення включає (рис. 1): фільтровентиляційний агрегат (ФВА-49) 1 (а — фільтри-поглиначі ФГТ-100, б — здвоєний герметичний клапан, в — електроручний вентилятор)РВ-49, г — витратомір повітря); противибуховий пристрій 2; проти пилові фільтри 3; герметичні повітроводи 4; фланцеві з'єднання 5; повітророзвідну сітку 6; електроручний вентилятор 7; герметичні клапани 8; витратомір повітря 9; установку регенерації повітря 10 (д — ущільнені шибери, є — кисневий шланг, ж — регенеративні патрони, з — балон з киснем); регулюючу термічну заглушку 11; клапан надлишкового тиску (КНТ) 12; лінію герметизації 13.
Постачання сховищ зовнішнім повітрям повинно забезпечуватися у двох режимах: у режимі чистої вентиляції та у режимі фільтровентиляції. У сховищах, розташованих у пожежонебезпечних районах, у зонах катастрофічного затоплення, на радіаційно та хімічно небезпечних об'єктах, передбачений третій режим — режим регенерації повітря, яке міститься усередині сховища, по замкнутому циклу.
Кількість зовнішнього повітря, яке подається в сховище у режимі чистої вентиляції, встановлюється в залежності від температури цього повітря в межах 8-13 м3/год на людину, в режимі фільтровентиляції — 2 м3/год на одну людину і 5 м3/год на одного працюючого в приміщенні пункту управління [7].
Переключення системи вентиляції з одного режиму на інший здійснюється за допомогою герметичних клапанів і вентиляторів.
Рис. 1. Система повітропостачання з фільтровентиляційним обладнанням промислового виготовлення
У режимі чистої вентиляції зовнішнє повітря очищається від пилу, у тому числі і від радіоактивного, а в режимі фільтровентиляції — від радіоактивного пилу, ОР і біологічних засобів.
Для очищення повітря від радіоактивного пилу використовуються протипилові фільтри різної конструкції, зокрема масляний сітчастий. Він являє собою набір металевих сіток, зібраних у пакет розміром 520 х 520 х 80 мм. Сітки просочуються веретенним маслом. При проходженні повітря через фільтр пил, що міститься в повітрі, прилипає до масляної плівки на сітці. Продуктивність однієї комірки масляного фільтра 1000-1300 м3/год при аеродинамічному опорі від 3 до 8 мм водяного стовпчика.
Протипилові фільтри встановлюють у приміщенні (камері), відділеному від основних приміщень сховища капітальною стіною. Це забезпечує захист людей, які укриваються від впливу випромінювань радіоактивних речовин, що накопичуються у фільтрах.
Очищення повітря від ОР і бактеріальних засобів здійснюється у фільтрах-поглиначах типу ФП-100, ФП-200, ФП-300 й ін., встановлюваних у фільтровентиляційній камері. Працює фільтр-поглинач за принципом фільтруючого протигаза. Зовнішнє повітря надходить у фільтр через один з центральних отворів, проходить через картонний фільтр і шар вугілля-каталізатора, де очищається від ОР і бактеріальних засобів, та виходить через бічний отвір. Продуктивність фільтра-поглинача залежить від його розміру (табл. 1).
Таблиця 1
Основні характеристики фільтрів-поглиначів
| Марка | Маса | Розміри, мм | Опір, мм вод.ст. | Продуктивність, м3/год | |||
| діаметр | висота | ||||||
| ФП-100 | 60-70 | 350 | 507 | 40-45 | 100 | ||
| ФП-200 | 36-66 | 545-550 | 507 | 40 - 45 | 200 | ||
| ФП-300 | 65-75 | 580 | МО | 85 | 300 | ||
ФП-100У, на відміну від ФП-100, має запобіжник проскакування, який показує ступінь відпрацьовування фільтра-поглинача по тій чи іншій ОР.
Фільтри-поглиначі монтуються в колонки по 2-3 шт. у кожній. Монтаж колонки більше ніж з трьох фільтрів не рекомендується, тому що при цьому істотно збільшується опір колектора фільтрів. При необхідності подачі більшої кількості повітря колонки фільтрів-поглиначів об'єднуються в батареї [8].
Подача зовнішнього повітря в сховище здійснюється з допомогою вентиляторів різних систем — з ручним і (або) з електричним приводом.
Характеристики
Тип файла документ
Документы такого типа открываются такими программами, как Microsoft Office Word на компьютерах Windows, Apple Pages на компьютерах Mac, Open Office - бесплатная альтернатива на различных платформах, в том числе Linux. Наиболее простым и современным решением будут Google документы, так как открываются онлайн без скачивания прямо в браузере на любой платформе. Существуют российские качественные аналоги, например от Яндекса.
Будьте внимательны на мобильных устройствах, так как там используются упрощённый функционал даже в официальном приложении от Microsoft, поэтому для просмотра скачивайте PDF-версию. А если нужно редактировать файл, то используйте оригинальный файл.
Файлы такого типа обычно разбиты на страницы, а текст может быть форматированным (жирный, курсив, выбор шрифта, таблицы и т.п.), а также в него можно добавлять изображения. Формат идеально подходит для рефератов, докладов и РПЗ курсовых проектов, которые необходимо распечатать. Кстати перед печатью также сохраняйте файл в PDF, так как принтер может начудить со шрифтами.
















