150649 (598883), страница 10
Текст из файла (страница 10)
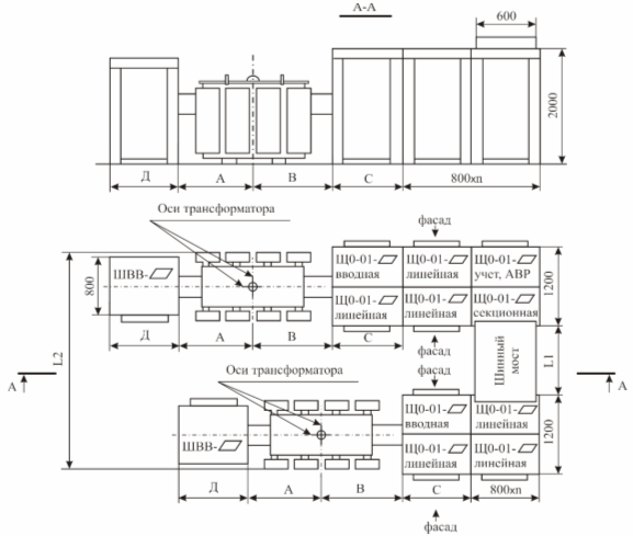
Приложение 23
Планы двухтрансформаторных цеховых КТП
Рис. 1. План двухтрансформаторной КТП однорядного расположения со стационарными выключателями
Размеры двухтрансформаторной КТП однорядного расположения со стационарными выключателями
| Наименование | Условные обозначения размера, мм | ||||||
| A | B | C | Д | ||||
| КТП-250кВА | 850 | 800 | 800 | В зависимости от типа вводной панели РУНН | 800 | В зависимости от типа вводного шкафа УВН | |
| КТП-400 кВА | 1000 | 1000 | 800 | 800 | |||
| КТП-630 кВА | 1100 | 1250 | 800 | 800 | |||
| КТП-1000 кВА | 1250 | 1350 | 800 | 800 | |||
| КТП-1600 кВА | 1300 | 1800 | 800 (1120) | 1120 (800) | |||
| КТП-2500 кВА | 1400 | 1900 | 1120 | 1120 (800) | |||
Рис. 2. План двухтрансформаторной КТП однорядного расположения с выдвижными выключателями
Размеры двухтрансформаторной КТП однорядного расположения с выдвижными выключателями
| Наименование | Условные обозначения размера (мм) | |||||||||
| A | B | Д | Шкафы с выключателями серии "ВА" и "Электрон" | Шкафы с выключателями фирмы "Merlin Gerin" | ||||||
| C | L | H | C | L | H | |||||
| В зависимости от типа вводного шкафа РУНН | В зависимости от типа вводного шкафа РУНН | |||||||||
| КТП-250кВА | 850 | 800 | 800 | В зависимости от типа вводного шкафа УВН | 800 | 1200 | 2300 | 1000 | 1200 | 2300 |
| КТП-400 кВА | 1000 | 1000 | 800 | 800 | 1200 | 2300 | 1000 | 1200 | 2300 | |
| КТП-630 кВА | 1100 | 1250 | 800 | 800 | 1200 | 2300 | 1000 | 1200 | 2300 | |
| КТП-1000 кВА | 1250 | 1350 | 800 | 800 | 1200 | 2300 | 1000 | 1200 | 2300 | |
| КТП-1600 кВА | 1300 | 1800 | 1120(800) | 800(1120) | 1500 | 2400 | 1000 | 1200 | 2300 | |
| КТП-2500 кВА | 1400 | 1900 | 1120(800) | 1120 | 1500 | 2400 | 1000 | 1200 | 2300 | |
Рис. 3. План двухтрансформаторной КТП двухрядного расположения левого исполнения со стационарными выключателями
Размеры двухтрансформаторной КТП двухрядного расположения левого исполнения со стационарными выключателями
| Наименование | Условные обозначения размера, мм | |||||
| A | B | C | Д | |||
| КТП-250кВА | 850 | 800 | 800 | В зависимости от типа вводной панели РУНН | 800 | В зависимости от типа вводного шкафа УВН |
| КТП-400 кВА | 1000 | 1000 | 800 | 800 | ||
| КТП-630 кВА | 1100 | 1250 | 800 | 800 | ||
| КТП-1000 кВА | 1250 | 1350 | 800 | 800 | ||
| КТП-1600 кВА | 1300 | 1800 | 800 (1120) | 1120 (800) | ||
| КТП-2500 кВА | 1400 | 1900 | 1120 | 1120 (800) | ||
Рис. 4. План двухтрансформаторной КТП двухрядного расположения правого исполнения с выдвижными выключателями
Размеры двухтрансформаторной КТП двухрядного расположения правого исполнения с выдвижными выключателями
| Наименование | Условные обозначения размера (мм) | ||||||||||
| A | B | Д | Шкафы с выключателями серии "ВА" и "Электрон" | Шкафы с выключателями фирмы "Merlin Gerin" | |||||||
| C | L | H | C | L | H | ||||||
| В зависимости от типа вводного шкафа РУНН | В зависимости от типа вводного шкафа РУНН | ||||||||||
| КТП-250 кВА | 850 | 800 | 800 | В зависимости от типа вводного шкафа УВН | 800 | 1200 | 2300 | 1000 | 1200 | 2300 | |
| КТП-400 кВА | 1000 | 1000 | 800 | 800 | 1200 | 2300 | 1000 | 1200 | 2300 | ||
| КТП-630 кВА | 1100 | 1250 | 800 | 800 | 1200 | 2300 | 1000 | 1200 | 2300 | ||
| КТП-1000 кВА | 1250 | 1350 | 800 | 800 | 1200 | 2300 | 1000 | 1200 | 2300 | ||
| КТП-1600 кВА | 1300 | 1800 | 1120(800) | 800(1120) | 1500 | 2400 | 1000 | 1200 | 2300 | ||
| КТП-2500 кВА | 1400 | 1900 | 1120(800) | 1120 | 1500 | 2400 | 1000 | 1200 | 2300 | ||
Приложение 24
Технические характеристики магистральных шинопроводов для сетей с глухозаземленной нейтралью напряжением до 660 В, частотой 50–60 Гц
| Характеристики | Тип шинопровода | |||
| ШМА А73УЗ | ШМА А73ПУЗ | ШМА 68-НУЗ | ||
| Номинальный ток | 1600 | 1600 | 2500 | 4000 |
| Электродинамическая стойкость (амплитудное значение), iуд.доп, кА, не менее | 70 | 90 | 70 | 100 |
| Термическая стойкость, iтс, кА | 20 | 35 | 35 | 50 |
| Сопротивление на фазу, Ом/км: активное при температуре 20 °С, r0 индуктивное, x0 | 0,031 0,022 | 0,031 0,022 | 0,02 0,02 | 0,013 0,015 |
| Сопротивление петли фаза - нуль (полное), Ом/км | 0,016 | 0,016 | –– | –– |
| Линейная потеря напряжения на 100 м при номинальном токе (нагрузка сосредоточена в конце линии, cosφ= 0,8), ΔUлш, В | 11,5 | 11,5 | 13,5 | 16,5 |
| Поперечное сечение прямой секции (ширина×высота), мм2 | 300×160 | 300×160 | 444×215 | 44×295 |
| Степень защиты | IP20 | IP20 | IP20 | IP20 |
| Типы автоматических выключателей, установленных в ответвительных секциях | А3734С, 400 А, 660 В А3744С, 630 А, 660 В А3736Ф, 400 А, 380 В А3736Ф, 630 А, 380 В | |||
Приложение 25
Технические характеристики комплектных распределительных шинопроводов для сетей с глухозаземленной нейтралью напряжением 380/220 В, частотой 50–60 Гц
| Характеристики | Тип шинопровода | |||
| ШРА 73УЗ | ШРМ 73УЗ | |||
| Номинальный ток | 1600 | 1600 | 2500 | 100 |
| Электродинамическая стойкость (амплитудное значение), iуд.доп, кА, не менее | 15 | 25 | 35 | 10 |
| Термическая стойкость, iтс, кА | 7 | 10 | 14 | 7 |
| Сопротивление на фазу, Ом/км: активное при температуре 20 °С, r0 индуктивное, x0 | 0,21 0,21 | 0,15 0,17 | 0,10 0,13 | –– –– |
| Линейная потеря напряжения на 100 м при номинальном токе (нагрузка распределена равномерно, cosφ= 0,8), ΔUлш, В | 6,5 | 8 | 8,5 | –– |
| Поперечное сечение прямой секции (ширина×высота), мм2 | 260×80 | 284×95 | 284×125 | 70×80 |
| Степень защиты | IP32 | IP32 | IP32 | IP32 |
| Типы коммутационно-защитной аппаратуры, установленной в ответвительных коробках: Предохранители Автоматические выключатели (ток, А) | ПН2-100 А3710 (160) А3120 (100) АЕ2050 (100) | ПН2-100 А3710 (160) А3720 (250) А3120 (100) АЕ2050 (100) | ПН2-100 А3710 (160) А3720 (250) А3120 (100) АЕ2050 (100) | На ток 25А АЕ2033(25) |
| Наличие ответвительных коробок с разъединителями на токи: 160 А 250А | Есть Нет | Есть Есть | Есть Есть | |
Приложение 26
Технические характеристики шкафов распределительных с плавкими предохранителями
| Тип | Номинальный ток шкафа, А | Тип и количество групп предохранителей на отходящих линиях | Схема | |||
| ШРС1 | ШР11 | НПН-2 Iн = 60 А | ПНП-31 ПН2-100 | ППН-35 ПН2-250 | ||
| 1 | 2 | 3 | 4 | 5 | 6 | 7 |
| -20У3 | -73701-22У3, УХЛ3 | 250 | 5 | – | – | Рис. 2а |
| -50У3 | -73701-54У2 | 200 | ||||
| -21У3 | -73702-22У3, УХЛ3 | 250 | – | 5 | – | |
| -51У3 | -73702-54У2 | 200 | ||||
| -22У3 | -73703-22У3, УХЛ3 | 250 | 2 | 3 | – | |
| -52У3 | -73703-54У2 | 200 | ||||
| -23У3 | -73504-22У3, УХЛ3 | 400 | 8 | – | – | Рис. 2б |
| -53У3 | -73504-54У2 | 320 | ||||
| -24У3 | -73505-22У3, УХЛ3 | 400 | – | 8 | – | |
| -54У3 | -73505-54У2 | 320 | ||||
| -73506-22У3, УХЛ3 | 400 | – | – | 8 | ||
| -73506-54У2 | 320 | |||||
| -73707-22У3, УХЛ3 | 400 | – | 3 | 2 | ||
| -73707-54У2 | 320 | |||||
| -27У3 | 400 | – | 5 | 2 | ||
| -57У3 | 320 | |||||
| -26У3 | -73708-22У3, УХЛ3 | 400 | – | – | 5 | |
| -56У3 | -73708-54У2 | 320 | ||||
| -25У3 | -73509-22У3, УХЛ3 | 400 | 4 | 4 | – | Рис. 2б |
| -55У3 | -73509-54У2 | 320 | ||||
| -28У3 | -73510-22У3, УХЛ3 | 400 | 2 | 4 | 2 | |
| -58У3 | -73510-54У2 | 320 | ||||
| -73511-22У3, УХЛ3 | 400 | – | 6 | 2 | Рис. 2в | |
| -73511-54У2 | 320 | |||||
| -73512-22У3, УХЛ3 | 400 | 8 | – | – | ||
| -73512-54У2 | 320 | |||||
| -73513-22У3, УХЛ3 | 400 | – | 8 | – | ||
| -73513-54У2 | 320 | |||||
| -73514-22У3, УХЛ3 | 400 | – | – | 8 | ||
| -73514-54У2 | 320 | |||||
| -73515-22У3, УХЛ3 | 400 | 4 | 4 | – | ||
| -73515-54У2 | 320 | |||||
| -73516-22У3, УХЛ3 | 400 | 2 | 4 | 2 | ||
| -73516-54У2 | 320 | |||||
| -73517-22У3, УХЛ3 | 400 | – | 6 | 2 | ||
| -73517-54У2 | 320 | |||||
| -73518-22У3, УХЛ3 | 400 | 8 | – | – | Рис. 2г | |
| -73518-54У2 | 320 | |||||
| -73519-22У3, УХЛ3 | 400 | – | 8 | – | ||
| -73519-54У2 | 320 | |||||
| -73520-22У3, УХЛ3 | 400 | – | – | 8 | ||
| -73520-54У2 | 320 | |||||
| -73521-22У3, УХЛ3 | 400 | 4 | 4 | – | ||
| -73521-54У2 | 320 | |||||
| -73522-22У3, УХЛ3 | 400 | 2 | 4 | 2 | ||
| -73522-54У2 | 320 | |||||
| -73523-22У3, УХЛ3 | 400 | – | 6 | 2 | ||
| -73523-54У2 | 320 | |||||
Примечание:















