144062 (594021)
Текст из файла
Управління освіти і науки
Херсонської обласної державної адміністрації
Дипломна робота
тема: «Кладка фундаменту»
Нововоронцовка
2007–2008 н.р.
Зміст
Вступ
1. Види будівельних робіт, процесів
1.1 Історія розвитку фундаменту
1.2 Види фундаментів
2. Охорона праці
2.1 Вимоги и правила зведення кладки
2.2 Організація робіт по зведенню бутобетонних фундаментів
2.3 Будівельно-монтажні роботи
3. Матеріалознавство
3.1 Фундамент и цегляна кладка
3.2 Глибина заставляння
3.3 Захист фундаменту
3.4 Конструктив фундаменту
3.5 Використовувані матеріали
3.6 Дефекти фундаментів і способи їх усунення
3.7 Бутобетонна кладка
3.8 Монтаж залізобетонних фундаментів
3.9 Монтаж залізобетонних фундаментів
3.10 Інструменти, інвентар і пристрої
3.11 Матеріали, інструменти, пристрої, використовувані для кам’яної та цегляної кладки
3.12 Матеріали для кам'яної кладки
Вступ
У будівництві індивідуальних житлових будинків і садових будиночків найчастіше застосовують два типи фундаментів: стрічкові і стовбчасті. Вибір тієї або іншої конструкції залежить, перш за все від матеріалу стін будинку і їх маси (ваги). Велике значення мають також вид ґрунту, його фізико-механічні властивості.
1. Види будівельних робіт, процесів
Будівельно-монтажні роботи – це загальна назва всіх робіт в будівництві. Монтажними називаються роботи, що виконуються з використанням готових деталей. Всі види будівельних робіт діляться на загальнобудівельні, спеціальні, транспортні, навантажувально-розвантажувальні. Загальнобудівельними називаються роботи, пов'язані із зведенням будівельних будівель і споруд. Загальнобудівельні роботи підрозділяються матеріалів, що по вигляду переробляються, або конструктивних елементів, що зводяться. Земляні роботи включають: риття котлованів, ям, траншей під стрічкові фундаменти, окремо варті опор, підвалів, підземних комунікацій; транспортування ґрунту – вантаження, вивіз, вивантаження, планування майданчиків, зворотна засипка, пристрій насипу, ущільнення ґрунту і ін. Роботи паль – пристрій фундаментів паль, забивання паль або занурення паль. Кам'яні роботи – це зведення стін, опор, зведень, стовпів, причому з штучних виробів (цеглини, природного каменя, крупних бетонних блоків). Бетонні і залізобетонні роботи – виконуються при зведенні бетонних і залізобетонних конструкцій, до цих робіт відноситься приготування бетонної суміші, перевезення, укладання з ущільненням у форму (опалубку), догляд за бетоном – створення умов для нормального тверднення, монолітні роботи, вживані при замонолічуванні стиків між збірними елементами, пристрій опалубки і армування монолітних ділянок. Монтажні роботи – це доставка до робочого місця, установка, вивіряння і закріплення готових виробів – сталевих, бетонних, залізобетонних, дерев'яних і ін. Теслярські і столярні роботи – це доставка до робочого місця готових дерев'яних виробів і установка стропил, вікон, дверей, а також настилка полови з дощок і паркету. Покрівельні роботи включають покриття горищних дахів сталевими і азбоцементними листами і дахів без горищ – рулонними матеріалами (толь, пергамін, руберойд). Обробні роботи – це обштукатурювання, облицьовування, обклеювання шпалерами стін будівель. Облицьовування стін виконується за допомогою великорозмірної і дрібнорозмірної плитки, листовими облицювальними матеріалами і наноситься на стіни після завершення кам'яних робіт. Штукатурка може виконуватися як уручну при малих об'ємах, так і механізованим способом при великих об'ємах. Забарвлення і обклеювання відноситься до малярних робіт. До обробних робіт також відносяться роботи по покриттю лінолеумом, пластиком і ін. матеріалами полови. Спеціальні роботи – це прокладка силових, телефонних проводів, установка санітарно-технічного устаткування, пристрій вогнетривкої кладки, антикорозійних покриттів і ін.
1.1 Історія розвитку фундаменту
Фундаменти почали зводити ще в глибокій старовині, одночасно з розвитком будівництва. Велике місце серед фундаментів займали споруди паль, які влаштовувалися в гирлах річок і призначалися для захисту від звірів і ворогів. Надалі призначення паль змінилося, проте вони широко застосовувалися. Споруди, побудовані на хороших підставах, відрізняються великою довговічністю, деякі з них збереглися до наших днів. Як приклад можна привести піраміду Хеопса, вагу її близько 6 млн. тонн, навантаження на підставу в середньому – 12 кг/см2. Вже в глибокій старовині були праці по фундаментобудуванню. Так, римський інженер Вітрувій (1 століття до н.е.) дав вказівку в своїх працях по практичному зведенню фундаментів. У стародавніх літописах наший країни також знайдені вказівки по зведенню фундаментів. Проте всі дані були засновані тільки на підставі досвіду зведення фундаментів, і не було ніяких теоретичних основ розрахунку фундаменту і підстав. У XVIII столітті сильно зробила крок вперед наука у всіх областях, з'явилися перші теоретичні розробки науки фундаментобудування. У 1773 році французький вчений Кулон дав теорію розрахунку опору ґрунтів зрушенню, а так само формулу для розрахунку тиску ґрунту на підпірну стінку. У 1841 році французький учений Тріжо запропонував спосіб зведення кесонних фундаментів. У XIX столітті був відкритий залізобетон, він став таким, що веде в зведенні фундаментів. У 1809 році було відкрито явище електроосмосу, яке полягає в тому, що частинки води рухаються у напрямі негативного заряду. Надалі це явище знайшло велике практичне застосування в підставах для розробки котлованів у водонасичених ґрунтах. У 1899 році київський учений А.Э. Страус запропонував набивні палі, які влаштовуються в пробурених свердловинах. Він же пізніше запропонував опускати в свердловини арматуру, і потім заливати їх бетоном. Перша наукова праця «Підстави і фундаменти» була написана в 1869 році Карловічевим, в якому були приведені всі відомі положення. Багато зроблено в розвитку науки про підстави і фундаменти після Жовтневої революції: у 1929 році був утворений сектор підстав і фундаментів, який був перетворений в інститут підстав і фундаментів. Тепер перейдемо до практичних занять і розберемо найбільш доступні способи пристрої фундаменту, застосовні для малоповерхових житлових будинків.
Існує безліч видів фундаментів, проте розглянемо прості, вживані для будівництва житлових будинків малої поверховості. Жорсткі стрічкові і стовбчасті фундаменти виконуються з бетону, бутобетону, бутової кладки, тобто з тих матеріалів, які добре працюють на стиснення. Бутова кладка ведеться на цементному розчині або складному цементному розчині. Заздалегідь проектом визначається площа підошви фундаменту і всі характеристики ґрунту (тиск на ґрунт підстави, об'ємну вагу між матеріалом фундаменту і ґрунтом, а також глибина заставляння). Більшість ґрунтів володіють здатністю спучуватися при замерзанні, також значення має рівень ґрунтових вод. Залежно від всіх перерахованих властивостей ґрунтів приймається остаточна глибина заставляння фундаменту. При невеликих навантаженнях приймається прямокутна форма перетину фундаменту (рис. 1, а), при великих навантаженнях і слабких ґрунтах висота фундаменту виходить дуже великою, в цьому випадку необхідно виконати ступінчастий фундамент (рис. 1, б).
Рис. 1. Прямокутний і ступінчастий фундамент
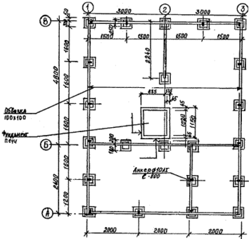
Найбільш економічними є фундаменти паль. Для пристрою фундаменту палі в звичайному ґрунті бурять свердловини діаметром 20–25 см, завглибшки 70–90 см. При цьому можна використовувати саморобний бур, його виконують з листової сталі, привареної до верхньої частини сталевої труби, у вигляді спіралі. У підготовлену свердловину вставляється азбоцементна труба діаметром 20 см і заповнюється на третину висоти бетонною сумішшю. Після цього трубу злегка підводять для освіти під нею бетонної підстави. Потім заповнюють трубу бетоном, ущільнюючи його металевим стрижнем до рівня, верху труби, що знаходиться нижче, на 10 см. Таким чином, виготовляють палі. Через два-три дні на верхню грань палі укладаються дерев'яні бруски, які утворюють раму підлоги. Після вирівнювання подовжніх балок пригвинчують металеві анкерні елементи, їх нижня частина бетонується в азбоцементних трубах. Даний спосіб пристрою фундаменту палі застосовується при будівництві легких садових будиночків (рис. 2), а також з великим заглибленням і міцнішим каркасом для цегляних будинків (рис. 1, а, би і рис. 5). Фундаменти, у яких плоска підошва, мають назву «стрічкові» (рис. 3). Ті, що закладаються під стіни, або стовбчасті, – виконуються під колони, що окремо стоять, або стовпи. Фундаменти можуть бути палями, якщо будівля спирається на занурені в ґрунт палі з бетону, залізобетону, іноді з дерева.
Рис. 2. Зразковий план фундаменту палі для літнього садового будинку (стіни дерев'яні)
Рис. 3. Винесення осей в натуру:
1 – поперечна вісь; 2 – обноска; 3 – осьова струна; 4 – точки перетину осей; 5 – причалювання; 6 – штирі; 7 – схил; а – подовжня вісь
1.2 Види фундаментів
Стрічкові фундаменти застосовують головним чином в будівництві будинків з важкими, масивними стінами (удома першої групи). Нагадуємо, що матеріалами для таких стін служать природний камінь-плитняк, звичайна цеглина і цегла-сирець (саман), дрібні бетонні блоки і т. п. Стрічкові фундаменти влаштовують по периметру будинки, під його зовнішніми і несучими внутрішніми стінами. Для цього типу фундаменту характерні великі об'єми земляних робіт і використовуваних матеріалів, значна вага і трудомісткість зведення. Не смлячись на це, стрічкові фундаменти набули досить широкого поширення, в основному завдяки простій технології.
По використовуваних матеріалах фундаменти бувають бутові, бутобетонні, бетонні і цегляні. Посмимося, чим вони відрізняються.
Бутові фундаменти кладуть з крупного бутового каменя, підібраного формою і розмірам, при цьому бажано вибирати пласкі камені з плоскими гранями. Кладку ведуть на цементному розчині, щільно укладаючи камені між собою, для чого самі «незручні» з них іноді доводиться розколювати. Товщину кладки бутового фундаменту приймають з конструктивних міркувань незалежно від розрахунку, в межах 50–70 см. Це наймасивніші і трудомісткі зі всіх видів фундаментів. Тому їх застосування в будівництві житлових будинків і тим більше садових будиночків не виправдано. Як виняток ці фундаменти можна рекомендувати лише в тих місцевостях, де бутовий камінь є в достатній кількості, що називається «Під ногами», тобто є місцевим матеріалом. Позитивні якості бутового фундаменту – максимально можлива довговічність і міцність; крім того, він стійкий до промерзання і дії агресивних ґрунтових вод.
Масив бутобетонного фундаменту складається з розчину і наповнювача, як який використовують середні і дрібні бутові камені, крупний щебінь або гравій. Підійде також бій цеглини і перепалена цеглина – залізняк.
Застосовують, як правило, цементно-вапняний або чисто цементний розчин, залежно від вологості ґрунту. Бутобетонний фундамент кладуть в дерев'яній опалубці або безпосередньо в траншеї з вертикальними стінами («у розпір»), щільно заповнюючи її об'єм. При цьому для того, щоб ґрунт не обсипався і не змішувався з бетоном, стінки траншеї закривають смугами толі або руберойду. Технологія кладки бутобетонного фундаменту досить проста. Спочатку на дно траншеї насипають шар наповнювача 10–15 см і добре його утрамбовують важкою трамбівкою, потім проливають розчином і укладають наступний шар наповнювача і т.д. По міцності і довговічності бутобетонний фундамент мало поступається бутовому, а по простоті виконання перевершує його.
Бетонний фундамент називають іноді «холодцем». Він складається з чистого бетону без крупних каменів, з наповнювачем з дрібного і середнього гравію або щебеня. Його заливають в опалубку з легким трамбуванням, добре, якщо при цьому використовують вібратори – якість бетону помітно поліпшується. Унаслідок однорідності складу товщина бетонного фундаменту може бути прийнята менше, ніж у двох попередніх типів, – як правило, вона знаходиться в межах 20–40 см. Міцність і довговічність приблизно такі ж, як у бутобетонного фундаменту. Недолік бетонних фундаментів – підвищена витрата цементу і, отже, значна вартість.
Цегляний фундамент є цегляною кладкою із звичайної (повнотілого), добре обпаленої цеглини на цементному або цементно-вапняному розчині. Товщину фундаменту приймають кратною розмірам цеглини, тобто 38, 51 і 64 см. Пристрій цегляного фундаменту в звичайних умовах будівництва слід визнати недоцільним, оскільки він досить дорогий і найголовніше недовговічний унаслідок поганої водостійкості. Тому його можна рекомендувати практично в одному, достатньо окремому випадку: для зведення тільки в сухих ґрунтах і за наявності дешевої цеглини у необхідній кількості.
Зі всіх розглянутих частіше за інших використовують різні варіанти бетонного і особливо бутобетонного фундаменту як найбільш прості.
2. Охорона праці
2.1 Вимоги и правила зведення кладки
Перевірку міцності кріплень стінок траншей і котлованів здійснюють до початку і під час кладки фундаментів. Щоб не відбулося обвалення ґрунту у незакріплених траншей, котлованів, або кріплення недостатньо надійне і не розраховано на навантаження від матеріалів, катальних ходів, необхідно краї цих ходів і розміщення матеріалів розташовувати за межами призми обвалення ґрунту. Майстер визначає цю відстань на місці. Під час роботи в котлованах і траншеях стежать, щоб брівки були вільні від матеріалів на ширину до 50 см. У траншею камені подають по жолобах у відсутність робочих, не можна камені скидати в траншею і перекидати з тачки. У міру зведення фундаменту прибирають кріплення стінок траншей і котлованів, після зняття верхніх розпірок прибирають нижні. Щоб не відбулося обвалення по висоті, знімають тільки одну або дві дошки одночасні. Робочі в траншеї спускаються за допомогою драбини шириною 0,75 м або приставних сходів з поручнями, які в зимовий час очищають.
2.2 Організація робіт по зведенню бутобетонних фундаментів
Характеристики
Тип файла документ
Документы такого типа открываются такими программами, как Microsoft Office Word на компьютерах Windows, Apple Pages на компьютерах Mac, Open Office - бесплатная альтернатива на различных платформах, в том числе Linux. Наиболее простым и современным решением будут Google документы, так как открываются онлайн без скачивания прямо в браузере на любой платформе. Существуют российские качественные аналоги, например от Яндекса.
Будьте внимательны на мобильных устройствах, так как там используются упрощённый функционал даже в официальном приложении от Microsoft, поэтому для просмотра скачивайте PDF-версию. А если нужно редактировать файл, то используйте оригинальный файл.
Файлы такого типа обычно разбиты на страницы, а текст может быть форматированным (жирный, курсив, выбор шрифта, таблицы и т.п.), а также в него можно добавлять изображения. Формат идеально подходит для рефератов, докладов и РПЗ курсовых проектов, которые необходимо распечатать. Кстати перед печатью также сохраняйте файл в PDF, так как принтер может начудить со шрифтами.
















