123359 (592803), страница 5
Текст из файла (страница 5)
, (3.32)
, (3.33)
где С – обозначение типа станка;
угол обхвата на малом шкиве, который определяется по формуле:
. (3.34)
Тяговое усилие передачи Р, Н, находится по формуле:
. (3.35)
Усилие на вал от одного ремня G, Н, определяется по формуле:
, (3.36)
где S – предварительное натяжение ремня, Н.
Уточненное межцентровое расстояние А2, мм, вычисляется по формуле:
. (3.37)
Результаты расчета находятся в приложении В.
3.10 Расчет и построение свертки коробки скоростей
Разработка компоновочной схемы коробки скоростей
Компоновочная схема разрабатывается в следующем порядке:
а) определяются расстояния между осями валов и проводятся осевые линии.
б) на осях располагаются зубчатые колеса, муфты и другие передачи, и механизмы в соответствии с кинематической схемой. При этом нужно обеспечить возможность перемещения подвижных зубчатых колес и муфт, размещения механизмов управления, регулирования подшипников, сборки и разборки узла, а также обратить внимание на то, чтобы передвижные блоки зубчатых колес не сцепились одновременно с двумя неподвижными колесами на смежном валу.
в) вдоль оси каждого вала проставляются все соответствующие конструктивные размеры, что позволяет определить его ориентировочную длину.
Вычерчивание свертки коробки скоростей
а) Выбирается положение оси первого вала.
б) Из центра первого вала проводится окружность радиусом, равным расстоянию между осью первого вала и осью соседнего вала. Любая точка на этой окружности может быть центром этого вала и будет удовлетворять условию зацепляемости колес. Центр выбирается с учетом возможности рационального расположения и остальных валов.
в) Таким же путем определяются центры других валов. При расположении валов необходимо обеспечить простую форму корпуса, удобство его обработки, сборки и разборки. Нужно стремиться располагать центры валов на одних и тех же линиях как по вертикали так и по горизонтали, что делает корпус более технологичным.
Определение усилий действующих в зубчатых зацеплениях
На основе построенной свертки выполняется расчетная схема (рисунок 13), представляющая собой условное изображение расчетной цепи зубчатых передач. В полюсе зацепления каждой зубчатой пары, по нормали к боковым поверхностям зубьев, действуют силы Fn, Н, величина которых определяется по формуле:
(3.38)
где m и z – модуль и число зубьев зубчатого колеса;
Т – вращающий момент, приложенный к валу зубчатого колеса, Нмм.
Сила, действующая со стороны шестерни на валу электродвигателя на натяжение ремней входного вала:
F1 = 307,33 H.
Сила, действующая со стороны шестерни на входном валу на зубчатое колесо промежуточного вала 1:
.
Сила, действующая со стороны шестерни на промежуточном валу 1 на зубчатое колесо промежуточного вала 2:
.
Рисунок 13 – Свертка коробки скоростей
Сила, действующая со стороны шестерни на промежуточном валу 2 на зубчатое колесо выходного вала:
.
3.11 Расчет и подбор подшипников
Определение реакций в опорах валов
Необходимо определить реакции в каждой опоре с помощью уравнений статики, которые имеют следующий вид:
,
,
, (3.39)
где Fkx – сумма всех сил, действующих в плоскости Ozx;
Fky – сумма всех сил, действующих в плоскости Ozy;
mO(Fk) – сумма моментов сил относительно выбранной точки плоскости.
Выбор подшипников по статической грузоподъемности
Критерием для подшипника служит неравенство:
P0 C0, (3.40)
где Р0 – эквивалентная статическая нагрузка;
С0 – табличное значение статической грузоподъемности выбранного подшипника.
Величины приведенной статической нагрузки для радиальных подшипников определяются как большие из двух следующих значений:
P0 = X0Fr + Y0Fa; P0 = Fr, (3.41)
где Х0 – коэффициент радиальной нагрузки;
Y0 – коэффициент осевой нагрузки;
Fr – постоянная по величине и направлению радиальная нагрузка, Н;
Fа – постоянная по величине и направлению осевая нагрузка, Н.
Выбор подшипников по динамической грузоподъемности
Критерием для выбора подшипника служит неравенство:
Стр. С, (3.42)
где Cтр. – требуемая величина динамической грузоподъемности подшипника;
С – табличное значение динамической грузоподъемности выбранного подшипника.
Требуемая динамическая грузоподъемность Стр, Н, определяется по формуле:
(3.43)
где Р – эквивалентная динамическая нагрузка, Н;
n – частота вращения вала для которого подбирается подшипник, об/мин;
Lh – долговечность подшипника, выраженная в часах работы;
– коэффициент, зависящий от формы кривой контактной усталости.
Эквивалентная динамическая нагрузка Р, Н, для шариковых радиально-упорных подшипников определяется по формуле:
P = (XVFr + YFa) KбKт, (3.44)
где Fr – радиальная нагрузка, приложенная к подшипнику;
Fa – осевая нагрузка, приложенная к подшипнику;
V – коэффициент вращения;
Kб – коэффициент безопасности;
Kт – температурный коэффициент.
Расчет подшипников качения выполнен с использованием программы
«SIRIUS 2». Результаты расчета находятся в приложении Г.
3.12 Расчет сечения сплошного вала
Определение диаметра средних участков вала
Под средними участками вала следует понимать участки, на которых расположены шестерни и зубчатые колеса. Определение диаметра производится расчетом на изгиб с кручением.
После завершения расчета, разрабатывается конструкция каждого вала, которая должна обеспечивать возможность сборки коробки скоростей и свободного продвижения зубчатых колес до места посадки.
Расчет валов на усталостную прочность
Расчет сводится к определению расчетных коэффициентов запаса прочности для предположительно опасных сечений валов.
Условие прочности в данном расчете, имеет вид:
(3.45)
где n – расчетный коэффициент запаса прочности;
[n] = 1,3 1,5 – требуемый коэффициент запаса для обеспечения прочности;
[n] = 2,5 4 – требуемый коэффициент запаса для обеспечения жесткости;
n – коэффициент запаса прочности по нормальным напряжениям;
n – коэффициент запаса прочности по касательным напряжениям.
(3.46)
где -1 и -1 – пределы выносливости для материала вала при симметричных циклах изгиба и кручения, МПа;
а, а и m, m – амплитуды и средние напряжения циклов нормальных и касательных напряжений, МПа;
k и k – эффективные коэффициенты концентрации напряжений при изгибе и при кручении;
и – масштабные факторы для нормальных и касательных напряжений;
и – коэффициенты, учитывающие влияние постоянной составляющей цикла на усталостную прочность.
Можно считать, что нормальные напряжения, возникающие в поперечном сечении вала от изгиба, изменяются по симметричному циклу, тогда:
(3.47)
где Мизг. – суммарный изгибающий момент в наиболее нагруженном сечении, Нмм;
W – момент сопротивления сечения при изгибе, мм3.
Для круглого сечения вала:
(3.48)
Для круглого сечения со шпоночной канавкой:
(3.49)
где b и t – ширина и высота шпоночной канавки, мм.
Для сечения вала со шлицами:
(3.50)
где = 1,125 – для шлицев легкой серии;
= 1,205 – для шлицев средней серии;
= 1,265 – для шлицев тяжелой серии.
Так как момент, передаваемый валом, изменяется по величине, то при расчете принимают для касательных напряжений наиболее неблагоприятный знакопостоянный цикл – отнулевой:
(3.51)
где Wк – момент сопротивления вала при кручении, мм3.
Для круглого сечения вала:
(3.52)
Для сечения вала со шпоночной канавкой:
(3.53)
Для сечения вала со шлицами:
(3.54)
Расчет на прочность шпонок и шлицевых соединений
Условие прочности по смятию для призматической шпонки имеет вид:
(3.55)
где z – число шпонок;
см. – напряжение смятия, МПа;
[]см. – допускаемое напряжение при смятии, МПа;
lp – рабочая длина шпонки, мм;
d – диаметр вала, мм;
h – высота шпонки, мм.
Условие прочности из расчета на срез шпонки:
(3.56)
где []ср. – допускаемое напряжение при срезе, МПа.
Расчет шлицевых соединений условно производят на смятие втулки в месте ее соприкосновения с боковыми поверхностями зубьев.
(3.57)
где = 0,70,8 – коэффициент, учитывающий неравномерность распределения нагрузки по зубьям;
z – число зубьев;
l – рабочая длина зуба вдоль оси вала, мм;
h – рабочая высота контактирующих зубьев в радиальном направлении, мм;
rср. – средний радиус, мм.
Расчет сечения сплошного вала выполнен с использованием программы «SIRIUS 2». Результаты расчета находятся в приложении Д.
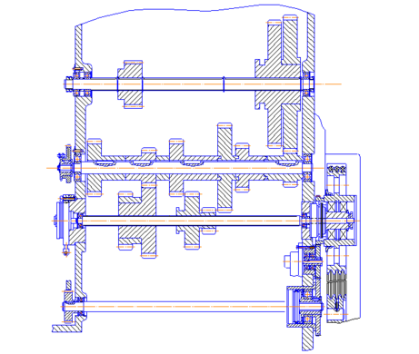
В результате проведенных расчетов можно построить компоновочную схему развертки коробки скоростей (рисунок 18) /4/.
Рисунок 14 – Развертка коробки скоростей
3.13 Расчет потерь на трение в подшипниках качения валов
Сопротивление вращению в подшипниках качения складываются из следующих составляющих:
а) гистерезисные потери при циклической упругой деформации сжатия материала тел качения и беговых дорожек в точках контакта;
б) проскальзывание тел качения относительно беговых дорожек, вызванное сдвиговой деформацией материала в точках контакта;
в) скольжение тел качения относительно беговых дорожек при нарушении качения в результате сдвигов и перекосов обойм подшипника под нагрузкой;
г) трение тел качения о сепаратор и (в подшипниках с центрированным сепаратором) трение сепаратора об обоймы;
д) выдавливание и вязкий сдвиг масла в точках контакта;
е) завихрение и разбрызгивание смазочного материала смазочного масла, соприкасающегося с подшипником.















