63973 (589074), страница 11
Текст из файла (страница 11)
И составил:
при нормативном значении Eн = 0,5, при нормативном значении срока окупаемости Тн = 5 лет
Таким образом, коэффициент экономической эффективности от реализации проекта составил 0.85 при нормативном значении 0.2, а срок окупаемости проекта составил 1,3 года при нормативном значении 5 лет, то есть выполняется неравенства Тр < Тн и Ер > Ен, что свидетельствует о целесообразности внедрения проекта.
Выводы по разделу «Бизнес план»
В данной части выпускной работы был представлен бизнес-план в котором рассматривается вопрос о внедрении сети беспроводного доступа в общежитие №2 Алматинского Института Энергетики и Связи.
В финансовой части бизнес плана был рассчитан объём капитальных вложений, который составил 1 815 165 тенге, эксплуатационные расходы, на реализацию проекта составили 4 454 987 тенге, из них большую часть составили накладные расходы, равные 1 909 280 тенге.
Расчетный срок окупаемости проекта составил 1,3 года при нормативном значении 5 лет, коэффициент экономической эффективности 0.85 при нормативном значении 0.2, то есть выполняется неравенства Тр < Тн и Ер>Ен, что свидетельствует целесообразности его внедрения.
6 БЕЗОПАСНОСТЬ ЖИЗНЕДЕЯТЕЛЬНОСТИ
6.1 Анализ условий труда обслуживающего персонала при эксплуатации технического оборудования
Главной целью данного проекта является организация сети беспроводного доступа в общежитии № 2 АИЭС (Алматинский Институт Энергетики и Связи), с целью предоставления современных услуг связи: высокоскоростной доступ в Интернет, компьютерная сеть, на базе технологии Wi-Fi.
Технический персонал состоит из двух сотрудников: главный технический специалист и диспетчер поддержки и мониторинга беспроводной сети. Диспетчера поддержки и мониторинга беспроводной сети меняются каждый день согласно расписанию.
Работа сотрудников непосредственно связана с компьютером, а соответственно с вредным дополнительным воздействием целой группы факторов, что существенно снижает производительность их труда.
К таким факторам можно отнести:
1) неправильная освещенность;
2) нарушение микроклимата;
3) наличие напряжения.
Согласно ГОСТ 12.1.005-88 ССБТ «Оптимальные и допустимые нормы микроклимата, в зависимости от категории работ», работа людей в помещение относится к работе лёгкой тяжести(1а), так как управление оборудованием осуществляется дистанционно с помощью компьютеров
С целью создания нормальных условий для работников предприятий Связи установлены нормы производственного микроклимата. В помещениях при работе с ЭВМ должны соблюдаться следующие климатические условия:
Холодный период года
● оптимальная температура 22-24 С˚, допустимая температура 18-26 С˚;
● относительная влажность 40-60 %, допустимая влажность 75%;
● скорость движение воздуха относительная и допустимая 0,1 м/с;
Тёплый период года
● оптимальная температура 23-25 С˚, допустимая температура 20-30 С˚;
● относительная влажность 40-60 %, допустимая влажность 55%;
● скорость движение воздуха относительная 0,1 м/с и допустимая 0,1-0,2 м/с.
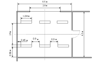
Помещение имеет размеры: длина (L) = 6,5 метров, ширина (B) = 4,5 метра, высота (H) = 4 метра. Помещение находится в здании на 3-м этаже, рассчитано на 2 рабочих места.
План помещения выбранного для размещения оборудования и технического персонала изображен на рисунке 6.1.
Рисунок 6.1 – План рабочего помещения
Рабочее место состоит из следующих компонентов:
- два стола;
- два эргономических стула;
- два персональных компьютера, один из которых является сервером
1) Сервер Fujitsu-Siemens PRIMERGYT X200 S3(2x Intel Xeon 5050 (3.0 GHz)
2) Intel Core i7 965XE (3.0 GHz, 2 GB ОЗУ)
- беспроводной коммутатор DWS-4026
6.2 Расчет системы искусственного освещения помещения
Помещение зала имеет естественное освещение через одно боковое окно, и искусственное освещение, которое позволяет вести работы в темное время суток и днем в местах, где показатель КЕО не соответствует нормативам.
Поэтому рассчитаем общее освещение помещения аппаратного зала длиной А = 6,5 м., шириной В = 4,5 м., высотой Н = 4 м. С побеленным потолком, светлыми стенами и не завешенными окнами. Разряд зрительной работы – III высокой точности. Нормируемая освещенность – 300 лк. [1]. Для помещения используем люминесцентную лампу ЛБ (белого цвета), мощностью 40 Вт., световым потоком 3120 лм., диаметром 40 мм. и длиной со штырьками 1213,6 мм. [1].
Высота светильника h
= 4-r, где r- высота лампочки
h
= 4- 3,2 = 0,8 м
Высота рабочей поверхности
= 1,2 м.
Определим необходимое расстояние между светильниками [1]:
м., (6.1)
где
[1]
Высота светильника над освещаемой поверхностью:
м., (6.2)
По этим данным находим, что необходимое расстояние между светильниками равно:
м., (6.3)
Определим индекс помещения I [1]:
, (6.4)
Определим коэффициент использования η по таблице 2.5 [1] .
В качестве светильника возьмем ЛСП02 рассчитанный на две лампы мощностью 40 Вт, диаметром 40 мм и длиной со штырьками 1213,6 мм. Длина светильника 1234 мм, ширина 276 мм. Световой поток лампы ЛБ 40 Фл составляет 3120 лм., световой поток, излучаемый светильником Фсв равен:
лм. (6.5)
Определим число светильников:
, (6.6)
где S – площадь помещения, S=29,25 м
.;
КЗ – коэффициент запаса, КЗ=1,5[1];
Е – заданная минимальная освещенность, Е=400 лк.; [1]
Z – коэффициент неравномерности освещения, Z=1,2; [1]
n – количество ламп в светильнике, n=2;
Фл – световой поток выбранной лампы, Фл=3120 лм.;
η – коэффициент использования, η=0,61[1].
светильников (Расположение светильников показано на рисунке 6.2 )
Рисунок 6.2 – Расположение светильников в помещении
Итого, для создания нормированной освещенности нам понадобится 12 ламп в 6-ти светильниках располагающихся в два ряда, в каждом ряду по три светильника, в каждом светильнике по две лампы.
6.3 Анализ пожарной безопасности
Согласно СНиП 2.04.09-84 здание по степени опасности развития пожара, от функционального назначения и пожарной нагрузки горючих материалов, относится к 1-ой группе категории D.
Причинами возникновения пожара могут быть:
-
Возгорание элементов аппаратуры;
-
Возгорание отделочных материалов от неисправных выключателей, розеток.
-
Несоблюдение режимов эксплуатации оборудования, неправильное действие персонала.
При возникновении пожара может пострадать не только помещение, но и дорогостоящая аппаратура, привести к человеческим жертвам. Поэтому необходимо чтобы были приняты меры по раннему выявлению и ликвидированию пожаров. Источниками зажигания могут оказаться электронные схемы ЭВМ, приборы, применяемые для технического обслуживания, устройства электропитания, кондиционеры воздуха, где в результате различных нарушений образуются перегретые элементы, и др.[4]
В соответствии с требованиями правил пожарной безопасности помещение оборудованы углекислотными огнетушителями ОУ-5 с учетом – один огнетушитель на 100 м2. Общая площадь помещения управления составляет 29,25 м2 таким образом устанавливаются 1 огнетушитель. В качестве огнетушащего вещества применяется комбинированный углекислотно-хладоновый состав. Расчетная масса комбинированного углекислотно-хладонового состава md ,кг, для объемного пожаротушения определяется по формуле:
(6.7)
где k = l,2- коэффициент компенсации не учитываемых потерь углекислотно-хладонового состава[4],
gn = 0,04 – нормативная массовая концентрация углекислотно-хладонового состава, [4]
V – объем помещения,
(6.8)
Где: А = 6,5 м – длина помещения,
В = 4,5 м – ширина помещения,
Н = 4 м – высота помещения.
Тогда:
Следовательно:
Расчетное число баллонов определяется из расчета вместимости в 20-литровый баллон 12 кг углекислотно-хладонового состава.
Внутренний диаметр магистрального трубопровода di, мм, определяется по формуле:
[4] (6.9)
Эквивалентная длинна магистрального трубопровода l2. м, определяется по формуле:
(6.10)
где k1=1,2-коэффициент увеличения длины трубопровода для компенсации не учитывающих местных потерь, [4]
l=3м – длина трубопровода по проекту тогда, [4]
м.
Расход углекислотно-хладонового состава Q, кг/с, в зависимости от эквивалентной длины и диаметра трубопровода равна 1,4 кг/с
Расчетное время подачи углекислотно-хладонового состава t. мин, определяется по формуле:
(6.11)
Масса основного запаса углекислотно-хладонового состава m, кг, определяется по формуле:
(6.12)
где К2=0,2 – коэффициент учитывающий остаток углекислотно-хладонового состава в баллонах и трубопроводах
Таким образом из полученных результатов можно сделать вывод, что для обеспечения нормального функционирования системы автоматического пожаротушения потребуется 1 баллон углекислотно-хладонового состава вместимостью 20 литров, с массой смеси 7 кг. Автоматические установки газового пожаротушения имеют устройства для автоматического пуска в соответствии с ГОСТ 12,4.009-83
Выводы по разделу «Безопасность жизнедеятельности»
В данном разделе был произведён анализ условий труда в рабочем помещении. Уровень условий труда признан допустимым, и данные, полученные из расчетов полностью удовлетворяют требованиям стандартов безопасности жизнедеятельности.
Естественно, что одно окно не соответствуют нормативам естественного освещения рабочего помещения. Поэтому для создания нормированной освещенности рассчитал что понадобится 12 ламп мощностью 40 Вт., световым потоком 3120 лм., диаметром 40 мм. и длиной со штырьками 1213,6 мм. в 6-ти светильниках, располагающихся в два ряда, в каждом ряду по три светильника, в каждом светильнике по две лампы.
Электротехническое оборудование в помещения является потенциальным источником возникновения и пожароопасности.
Из расчетов получили, что для обеспечения нормального функционирования системы автоматического пожаротушения потребуется 1 баллон углекислотно-хладонового состава вместимостью 20 литров, с массой смеси 7 кг.
ЗАКЛЮЧЕНИЕ
В своем дипломном проекте я произвел обоснование проекта «Проектирование беспроводной сети Wi-Fi на основе стандарта 802.11n в общежитии № 2 Алматинского Института Энергетики и Связи». В работе был сделан анализ сети беспроводного доступа Wi-Fi.В качестве выбора оборудования для реализации проекта было отдано предпочтение в пользу фирмы D-Link. Обоснование выбора оборудования производилось с учетом: технических характеристик, возможностии применения, стоимостии и так далее. В технической части проекта рассмотрен вариант построения сети беспроводного доступа с установлением шести точек доступа. Выбор обусловлен условиями технических параметров оборудования. В расчетной части дипломного проекта произведены расчеты эффективной изотропной излучаемой мощности и зона покрытия сети.
В разделе безопасности и жизнедеятельности был проведены: анализ условий труда, расчет системы искусственного освещения и пожарной безопасности.















