62819 (588840), страница 5
Текст из файла (страница 5)
Видеокамера с ПЗС формирует телевизионный сигнал ночного канала.
Видеокамера с ФПМ ПЗС формирует полный телевизионный видеосигнал, который по кабелю связи поступает в блок электронной обработки и в комплекс средств автоматики. Из блока обработки полный видеосигнал в аналоговом виде поступает на блок индикации.
4. Использование ЭОП и ПЗС матрицы в одном блоке. Перенос изображения с экрана ЭОП на чувствительный слой ПЗС-матрицы осуществляется волоконной пластиной.
Функциональную схему такого устройства можно представить следующим образом:
Расчёт таких систем почти аналогичен расчёту предыдущей.
Преимущество: в десять раз больший КПД переноса. Если проекционным объективом переносится порядка 6% светового потока, то ВОП переносится порядка 60% светового потока, излучаемого люминофорным экраном ЭОП.
Рис. 12. Функциональная схема ночного телевизионного канала.
ЭОП - электронно-оптический преобразователь с люминесцентным экраном на выходе; ВОП - волоконно-оптическая пластина; S1, S2, S3 - оптические сигналы: S1 - от объекта наблюдения и фона; S2 - от люминесцентного экрана ЭОП; S3 - после прохождения через ВОП; S4 - электрический сигнал на выходе ФПМ ПЗС.
Недостаток: ВОП имеет разрешающую способность около 30…40 л/мм, что критично сказывается на предельной дальности распознавания небольших объектов. Однако при использовании ЭОП четвёртого и пятого поколений, имеющих большую разрешающую способность, применение ВОП может быть целесообразно.
В данном проекте будет воплощен вариант 3 , так как он имеет явные преимущества:
-
По сравнению с вариантом 1 более удобен в эксплуатации, устойчив к внешним воздействиям, лучше качество изображения, меньше энергетических потерь.
-
По сравнению с вариантом 2 более высокое отношение сигнал/шум, которое можно получить, не прибегая к сложному охлаждению.
-
По сравнению с вариантом 4 лучше качество изображения.
-
Описание конструкции КТВС и ее узлов
Конструкция лазерной осветительной системы
Конструкция ЛОС представлена на рис. 26.
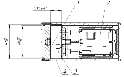
Рис. 13. Конструкция лазерной осветительной системы.
При сборке базовым узлом является корпус с предустановленными печатными платами поз 2. В него устанавливается лазерная батарея поз. 3. Посадка происходит по гладкой цилиндрической поверхности диаметром 41 мм. Затем на ту же поверхность устанавливается кольцо поз. 4, которое определяет расстояние между лазерами и коллиматорами. Это расстояние (13,19 мм) обеспечивается подрезкой торца кольца поз 4.
Затем на кольцо устанавливается растр коллиматоров поз. 1, в него по гладкой цилиндрической поверхности диаметром 39 мм – защитное стекло.
Последнее в свою очередь прижимается крышкой.
Обоснование допусков.
Очевидно, что посадки с зазором по 12-му квалитету приведут к поперечному смещению друг относительно друга коллиматорного и лазерного узлов. Это приведет к тому, что оптическая ось выходящего излучения будет не параллельна оптическим осям лазеров. Однако при сборке всей КТВС юстировка приемных каналов будет проводиться именно относительно пучка лучей осветителя, поэтому такие допуски можно признать удовлетворительными. В свою очередь, расходимость пучка чувствительна к дефокусировке, поэтому на нее назначен допуск ±20 мкм.
Конструкция дневной телевизионной системы.
Рис. 14. Конструкция ДТВ.
Камера телевизионная в оправе поз. 1 соединяется по резьбовой поверхности с объективом в оправе поз. 2. Для обеспечения размера заднего фокального отрезка с заданной точностью (0,6 мм) используется юстировочное кольцо поз.3. Его толщина уменьшается путем вытачивания на токарном станке до нужного значения.
После юстировки кольцо и оправа объектива соединяются штифтами поз. 4 с оправой камеры.
Конструкция низкоуровневой телевизионной системы.
Рис. 15 Конструкция НУТВ.
Здесь объектив переноса поз. 5 вкручивается по резьбовой поверхности в оправу ЭОП 6. Затем к этой оправе присоединяется винтами телевизионная камера 2. Размер между объективом переноса и камерой обеспечивается подрезкой торца оправы ЭОП.
Затем получившийся узел из двух оправ по цилиндрической поверхности диаметром 60 мм соединяют оправой сб. ед. поз 4, и фиксируют крышкой поз. 8 при помощи кольца поз. 7. Расстояние между линзой и ЭОП регулируется подрезкой одной из поверхностей сб. ед. поз. 6.
Конструкция КТВС.
Рис.16. Конструкция КТВС.
На данном этапе сборки проводится юстировка каналов. Сначала на коллиматор (не показан) наводится излучение лазерной системы подсветки поз. 2. Затем с помощью высокоточных подвижек коллиматора изображение на его экране совмещают с центром перекрестия. ЛОС поз. 2 штифтуют штифтами поз. 10.
Затем коллиматор перемещается в плоскости, перпендикулярной осям каналов, в положение для юстировки ДТВ поз 1. В автоколлимационном режиме сборщик получает изображение блика от первой оптической поверхности. Перемещая сб. ед. в горизонтальной плоскости вручную (это позволяют выполненные с зазором отверстия плиты поз. 5), а в вертикальной – с помощью установочных винтов поз. 8, добиваются совпадения изображения блика с центром перекрестия экрана коллиматора.
Затем сб. ед. штифтуют
Юстировку НУТВ поз. 3 проводят аналогично.
Точность современных коллиматоров и их подвижек (до 20’’) позволяет легко добиться отклонения от параллельности каналов
Величиной не более 3’.
В завершение на КТВС закрепляется защитный кожух поз. 4.
Вывод
-
Проведен анализ вариантов конструкции КТВС, выбран вариант с раздельными каналами для дневной и ночной работы прибора.
-
Проведен анализ вариантов конструкции НУТВ, выбран вариант со структурой Объектив+ЭОП+Объектив+ПЗС.
-
Разработана конструкция основных узлов КТВС. В конструкцию были внедрены конструктивные элементы, позволяющие провести юстировку осей трех каналов с точностью до 3’ .
-
Технологическая часть
Электронно-оптический преобразователь (ЭОП) — это устройство, преобразующее электронные сигналы в оптическое излучение или в изображение, доступное для восприятия человеком (или другим приемником). Термином ЭОП называют устройство, содержащее:
а) фотокатод, преобразующий слабые световые потоки в потоки электронов,
б) усилитель этих электронных потоков,
в) бомбардируемый электронным потоком люминесцентный экран, на котором воспроизводится усиленное изображение.
В проектируемом приборе (КТВС) используется ЭОП 58 ЭГ
(ДТУА 433244.005 ТУ). В качестве усилителей электронных потоков в таком ЭОПе используется микроканальная пластина (МКП).
Для оборачивания изображения используется волоконно-оптический элемент с углом поворота изображения 180° (ВОЭ180).
Эти детали изготавливаются на основе технологии производства волоконно-оптических пластин (ВОП). Рассмотрим эту технологию
-
Общие сведения об оптических волокнах и изготовляемых из них деталях
В соответствии с физическими и технологическими ограничениями, присущими оптическим волокнам, их размеры колеблются в пределах:
• диаметр жилы - 5... 50 мкм;
• толщина оболочки - 0,1...5 мкм. Оптические волокна, как правило, применяются не в одиночку, а в виде многоволоконных структур, содержащих до десятков миллионов отдельных волокон, размещенных вплотную друг к другу. Плотность укладки волокон лежит в пределах 1500... 100000 волокон на один квадратный сантиметр.
Волоконные жгуты, у которых волокна скреплены жестко только по концам, являются гибкими жгутами. Волоконные жгуты, у которых волокна скреплены жестко по всей длине, являются жесткими.
Жесткое соединение отдельных волокон в обоих случаях производится спеканием оболочек, и иногда при помощи эпоксидных смол.
Жгуты с упорядоченным расположением волокон (регулярной укладкой), у которых концы каждого волокна во входном и выходном сечениях занимают одинаковые места, применяются для передачи изображения без искажения ее вида.
Волоконные жгуты с неупорядоченным расположением волокон (нерегулярной укладкой) используются только для передачи оптического сигнала (света).
Рис. 15. Оптическое волокно.
db - диаметр волокна;
dc - диаметр жилы;
t - толщина оболочки;
db = dc + 2t(43)
nl - показатель преломления материала жилы;
n2 - показатель преломления материала оболочки; nl>n2
αl - угол полного внутреннего отражения;
sinαl = n2/n1 (44)
α2- наибольший угол падения луча на торец жилы, соответствующий предельному углу полного внутреннего отражения;
sinα2 =
(45)
Предварительно изготовленные заготовки в производстве волоконно-оптических деталей применяются следующих видов: штабики, трубки, кубики. Это продиктовано двумя методами производства волоконно-оптических деталей:
• штабиковый метод, где в качестве заготовок применяются штабики и трубки, и вытягивание волокна осуществляется с разогретого до размягчения торца штабика и трубки;
• из расплава, при котором вытягивание волокна производится через фильеру, и где в качестве заготовки применяются кубики, подающиеся в расплавленную стекломассу.
К качеству заготовок предъявляются очень высокие гребования по однородности материала, по отсутствию таких дефектов, как свиль, пузыри и т. д. Например, если в штабике имеется свиль, то при вытягивании тонкого волокна она также будет вытянута, причем на длину весьма значительную (измеряемую километрами). Это приведет к браку законченного изделия (так как порок может быть определен только в готовом изделии) и к длительной работе оборудования "в холостую". Так же дефекты кубиков через расплав могут привести к браку волоконно-оптические изделия.
-
Изготовление МКП
Технические требования, предъявляемые к МКП
Согласно [7], техническими требованиями являются.
Требования к конструкции.
А) МКП должны изготавливаться по утвержденной, конструкторской и технологической документации.
Б) Общий вид, габаритные размеры, геометрическая структура МКП, размера форма и материал проводящего покрытия контактного электрода (далее КЭ) должны соответствовать чертежу "Микроканальная пластина", приведенному в графической части.
В) МКП должны иметь форму диска диаметром 32,85-0,1 мм.
Г) Расстояние от края МКП до контактного электрода должно быть в пределах (0,3 - 0,8) мм.
Д) Диаметр круга рабочей площади МКП должен быть не менее 26 мм.
Е) Толщина МКП должна быть в пределах (0,305-0,335) мм. Отклонение от параллельности торцевых поверхностей МКП (ГОСТ 24642-81) должно быть не более 0,010 мм.
Ж) Номинальное (среднее по рабочей площади МКП) значение диаметров каналов должно быть в пределах (7,5±0,5) мкм.
Разброс диаметров каналов (коэффициент вариации) в пределах рабочей площади МКП должен быть не более 1,6%.
З) Шаг структуры каналов должен быть не более 9,5 мкм.
И) Угол между осью единичного канала и нормалью к плоскости торца МКП должен быть в. пределах (4°-6°).
К) Глубина запыления каналов слоем контактного электрода должна быть:
на входе МКП - в пределах (0,3-0,8) диаметра канала,
на выходе МКП - в пределах ( 1-2,5) диаметра канала.
Л) Отклонение от соосности микроканальной вставки МКП (ГОСТ 24642-81) должно быть не более 0,2 мм.
M) Ширина монолитного обрамления (далее МО ) МКП должна быть не менее 1,6 мм.















