62262 (588752), страница 14
Текст из файла (страница 14)
Категория производства по взрывной и пожарной опасности, а также классификация участков сборки и монтажа РЭС в соответствии с ПУЭ приведены в таблице.
Таблица 6.2 — Классификация производственных участков
| Наименование участка | Выполняемые работы и основные материалы | Взрыво- и пожароопасные вещества | Категория производства | Класс помещений по ПУЭ |
| Участок пайки деталей | Промывка и обезжиривание деталей в бензине | Пары бензина | А | В-Ia |
| Участок общей сборки, монтажа и регулировки изделий, контроль | Общая сборка, монтаж, промывка узлов | Оплетка, пары растворителей | В | П-IIa |
| Участок лакировки, пропитки, заливки | Покрытие лаком, пропитка, заливка компаундом и сушка ПП | Пары толуола, ацетона и уайт-спирита | А | В-Ia |
| Механический участок ПП | Резание заготовок, сверление, зачистка | Пыль стеклотекстолита | В | П-IIa |
| Кладовые химикатов, лаков, красок | Хранение лаков, красок, растворителей, кислот, растворов | Лаки, краски, растворители | А | В-Ia |
На производстве используется электроэнергия переменного тока - 3220В, 3380В, частотой 50Гц, а также постоянного тока, напряжением 36В (на сборочных и монтажных участках). Имеются помещения как без повышенной опасности (административные здания, различные отделы разработки и технологической подготовки изделия, деревообрабатывающий цех и участки сборки и монтажа), так и с повышенной опасностью поражения рабочих электрическим током (литейный цех, инструментальный цех).
Гальванический цех и участок фотолитографии можно отнести к особо опасным помещениям.
6.3 Расчет защитного заземления электроустановок
Исходные данные:
Напряжение электроустановки, U — 200 В;
Мощность, P — более 100 кВт;
Удельное сопротивление грунта, —147,5 Ом;
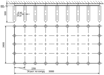
Длина вертикальных электродов, l — 3 м;
Диаметр электродов, d — 0,04 м;
Ширина соединительной полосы, b — 0,04 м;
Расстояние от поверхности земли до верха электрода, t0 — 0,8 м;
Коэффициент сезонности горизонтального электрода, 1 — 1,5;
Коэффициент сезонности для вертикального электрода, 2 — 3.
3
2,25
Рисунок 6.1 — Схема расположения электродов заземлителя
Вычисляем сопротивление растеканию тока одиночного вертикального заземлителя:
(6.1)
где
расстояние от поверхности земли до центра заземлителя, м.
Вычисляем минимальное количество вертикальных электродов:
(6.2)
где
нормируемое сопротивление, Ом,
.
Определяем по табл. 19 коэффициент использования вертикальных электродов группового заземлителя
Вычисляем необходимое количество вертикальных электродов при
(6.3)
Вычисляем длину горизонтальной полосы, соединяющей вертикальные электроды расположенные по контуру:
(6.4)
Вычисляем сопротивление растеканию тока горизонтального электрода (полосы) без учета влияния вертикальных электродов:
(6.5)
где
По табл. 20 /1/ вычисляем коэффициент использования горизонтального электрода (полосы)
.
Рассчитываем сопротивление заземляющего устройства:
(6.6)
Сравниваем полученную величину сопротивления заземляющего устройства
с нормируемой величиной сопротивления заземления
.Согласно требованиям Правил устройства электроустановок сопротивление защитного заземления
в любое время года не должно превышать 4 Ом - в установках с напряжением до 1000 В, если мощность источника тока (генератора или трансформатора) >100 кВА и менее, т. к.
расчет закончен. Подробную схему расположения электродов см на рис.6.2.
Рис.6.2 — Схема заземления.
-
Расчет освещения производственного помещения
Расчет освещения производственного помещения
Исходные данные:
Длина помещения — 30 м;
Глубина помещения — 24 м;
Высота помещения — 4 м;
Расстояние от потолка до центра лампы — 0,4 м;
Расстояние от пола до освещаемой рабочей поверхности — 0,8 м;
Нормируемая освещенность — 100 Лк – нормируемая освещенность рабочей поверхности, выбираемая по СНиП в зависимости от разряда выполняемой работы (для радиотехнических работ нормируемая освещенность составляет 300 Лк). Если при выбранной освещенности будет недостаточна освещаемая рабочая поверхность, то используется дополнительное освещение на рабочих столах;
Расстояние между светильниками:
(6.7)
где
косинусная кривая распределения света;
расстояние от оси лампы до рабочей освещаемой поверхности.
Расстояние от крайних светильников до стены:
(6.8)
Вычисляем световой поток лампы светильника:
(6.9)
где
Лк - нормируемая освещенность рабочей поверхности;
- коэффициент запаса для ламп накаливания;
м2 - площадь освещаемой поверхности;
- коэффициент минимальной освещенности для ламп накаливания;
- количество ламп, размещенных на плане помещения;
0,7- коэффициент использования светового потока;
индекс помещения:
(6.10)
Следовательно,
и далее рассчитываем световой поток от лампы светильника:
(6.11)
Используя вычисленный световой поток, выбираем по таблице тип лампы - Б, ее мощность - 200 Вт, световой поток
и проверяем его отклонение
от рассчитанного
. Отклонение составляет
= – 8,8 %, что находится в пределах допустимой нормы -10+20%.
Вычисляем мощность осветительной установки:
(6.12)
Р
исунок 6.3 — Схема расположения светильников
6.5 Расчет кондиционирования производственного помещения
Исходные данные:
Город — Тамбов
Количество вычислительных машин —
Количество людей —
Мощность одной машины —
- допускаемый перепад температур между температурой внутреннего и приточного воздуха;
при средних значениях температуры и относительной влажности, равных 23,5 C и 50%, влагосодержание и теплосодержание воздуха в помещении по J-d составляют
и
;
помещение находится а городе Тамбове.
Количество тепла от вычислительных машин:
(6.13)
Количество тепла от людей:
(6.14)
где q – количество теплоты от одного человека, Вт,
Суммарное количество тепла, поступающего в помещение:
(6.15)
Расход водяного пара, поступающего в воздух помещения:
, (6.16)
где q
г/час - количество влаги, выделяемой человеком при легкой работе и температуре воздуха 23,5 C, г/час,
г/час.
Угловой коэффициент луча нагрева и увлажнения воздуха, поступающего в помещение:
(6.17)
По исходным данным наносим на J-d диаграмму точку H (tH=24,5 С,
) и точку B (tB=23,5 C, B=50%). Из точки с координатами J=0, t=0 проводят луч с угловым коэффициентом
Полученные точки имеют координаты:
точка О:
точка П`:
точка П:
Количество вентиляционного воздуха:
(6.18)
Охлаждающая мощность оросительной камеры:
(6.19)
Расход тепла в калорифере второй ступени:
(6.20)
7. Гражданская оборона
В данном дипломном проекте необходимо рассмотреть мероприятия, осуществляемые в институте ТНИИР Эфир по оповещению рабочих, служащих и руководящего состава при авариях, катастрофах, стихийных бедствиях и других ЧС.
Характеристика отдела:
конструкторский отдел – отдел по проектированию и конструированию изделий;
для выполнения конструкторских операций отдел имеет 15 кульманов. Кульманы расположены в порядке, необходимом для выполнения операций;
здание института железобетонное с железобетонными опорами, рабочим и аварийным освещением. Сети коммунального хозяйства заглублены в землю. Длина отдела 20 м, ширина 10 м;
отдел работает в одну смену. Количество работающих - 20 человек.
В современных условиях оповещение рабочих служащих и населения о стихийных бедствиях, авариях, катастрофах и других ЧС, осуществляется штабом ГО и ЧС объекта. Завывание сирен, прерывистые гудки предприятий и сигналы транспортных средств означают предупредительный сигнал «ВНИМАНИЕ ВСЕМ». Этот сигнал был принят в декабре 1988 года. Услышав этот сигнал, надо немедленно включить теле- и радиоприемники и слушать экстренное сообщение местных органов власти или штаба ГО. Все дальнейшие действия определяются их указаниями.
При аварии на химически опасном объекте содержание информации может быть следующим:
«Внимание! Говорит штаб ГО. Граждане! Произошла авария на предприятии NN с выбросом СДЯВ — хлора». Далее же указываются наименование улиц, микрорайонов, и др. мест проживания населения которым необходимо примять меры для спасения. И приводятся конкретные действия, которые должны выполнить люди, проживающие в перечисленных пунктах.
На предприятии ответственным за оповещение руководящего состава и служащих является начальник караула, или при его отсутствии лицо замещающее его. При возникновении аварий, катастроф и стихийных бедствий по сигналу «ВНИМАНИЕ ВСЕМ», «РАДИАЦИОННАЯ ОПАСНОСТЬ», «ХИМИЧЕСКАЯ ОПАСНОСТЬ», «ВОЗДУШНАЯ ТРЕВОГА» ответственное лицо обязано:
— убедиться в достоверности полученного сигнала, набрав номер телефона дежурного штаба ГО района 74-33-48, или города 57-43-17, или области 72-35-27, 74-45-53;
—доложить по телефону о полученном сигнале начальнику ГО института, т.е. директору института по телефону в рабочее время 40, в нерабочее время ??-??-??;
— после получения указаний начальника ГО института вскрыть пакет и приступить к оповещению руководящего состава согласно прилагаемого плана оповещения (см. ниже);















