151498 (580598)
Текст из файла
ФЕДЕРАЛЬНОЕ АГЕНСТВО ПО ОБРАЗОВАНИЮ
Государственное образовательное учреждение высшего профессионального образования
«Тюменский государственный нефтегазовый университет» Сургутский институт нефти и газа (филиал)
Кафедра «МТО»
КОНТРОЛЬНАЯ РАБОТА
по дисциплине: Газотурбинные установки
тема: Газотурбинная установка типа ТА фирмы «Рустом и Хорнсби» мощностью 1000 кВт
Выполнил студент: rp.СТХ-07з Лебедев А.А.
Проверил: Пятов С.Г.
Сургут 2010
Содержание
1 Газовая турбина
2 Принцип работы газотурбинных установок
3 Принципиальная схема газотурбинной установки типа ТА фирмы «Рустом и Хорнсби»
4 Общий вид газотурбинной установки типа ТА фирмы «Рустом и Хорнсби»
5 Устройство газотурбинной установки
6 Преимущества и недостатки газотурбинных двигателей
Использованная литература
1 Газовая турбина
Газовая турбина (turbine от лат. turbo вихрь, вращение) — это тепловой двигатель непрерывного действия, в лопаточном аппарате которого энергия сжатого и нагретого газа преобразуется в механическую работу на валу. Состоит из ротора (рабочие лопатки, закреплённые на дисках) и статора (направляющие лопатки, закреплённые в корпусе).
2 Принцип работы газотурбинных установок
Воздушный компрессор сжимает атмосферный воздух, повышая его давление, и непрерывно подает его в камеру сгорания. Туда же непрерывно подается необходимое количество жидкого или газообразного топлива. В газовой турбине энергия газообразных продуктов сгорания преобразуется в механическую работу за счёт вращения струёй газа лопаток, часть которой расходуется на сжатие воздуха в компрессоре Образующиеся в камере продукты сгорания выходят из нее с температурой 900-1200°С. Пройдя все ступени газовой турбины, отработавшие газы направляются в котел-утилизатор для выработки тепловой энергии. Рабочие лопатки передают крутящий момент на ротор турбины, который жестко соединен с валом генератора через понижающий редуктор.
Схема газотурбинного двигателя
В качестве топлива могут использоваться любое горючее, которое можно диспергировать: бензин, керосин, дизельное топливо, мазут, природный газ, судовое топливо, водяной газ, спирт и даже измельченный уголь.
3 Принципиальная схема газотурбинной установки типа ТА фирмы «Рустом и Хорнсби»
Схема газотурбинной установки без регенератора
Схема газотурбинной установки без регенератора
1-компрессор; 2-камера сгорания; 3-турбина Высокого давления; 4- турбина низкого давления' 5- редуктор ; 6- генератор
Схема газотурбинной установки с регенератором
Схема газотурбинной установки с регенератором
1- компрессор 2- камера сгорания ; З-турбина высокого давления; 4- турбина низкого давления; 5-регенератор; 6-редуктор ; 7-генератор
4 Общий вид газотурбинной установки типа ТА фирмы «Рустом и Хорнсби» мощностью 1000кВт
Общий вид газотурбинной установки
1- входной патрубок; 2-компрессор; 3-отвод воздуха в камеру сгорания ; 4 турбина высокого давления; 5-турбина низкого давления ; 6 выход газа; 7-регулятор; 8-редуктор; 9-рама ; 10-пусковой электродвигатель, 11-форсунка; 12-вход воздуха в камеру сгорания; 13 камера сгорания
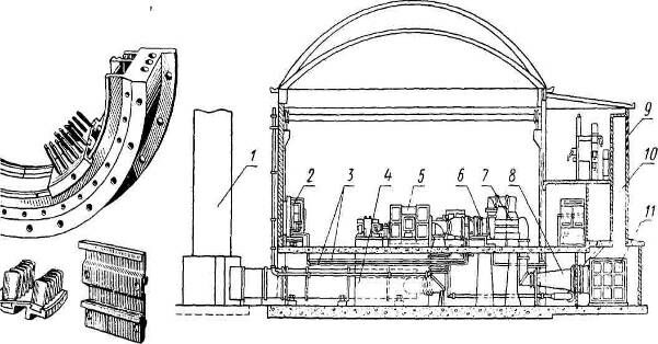
Компоновка газотурбинной установки на электростанции
1-выходная труба, 2-маслоохладитель (воздушный); 3-маслопровод; 4-выходной трубопровод; 5-генератор; 6-турбина ; 7- компрессор; 8- впускной трубопровод; 9 –жалюзи для входа воздуха ; 10- воздухопровод ; 11воздушный фильтр.
Габаритный чертёж газотурбинной установки (без регенератора)
5 Устройство газотурбинной установки
Рис. 7 Продольный разрез газотурбинной установки
1-пусковой электродвигатель; 2-входной патрубок компрессора ; 3-рабочие лопатки компрессора; 4-диски; 5- центральный стяжной болт: 6-камера отбора воздуха ; 7- направляющие лопатки компрессора; 8~корпус компрессора; 9-опорный подшипник ; 10-упорный подшипник; 11- диффузор напорного патрубка ; 12-промежуточный силовой корпус; 13- изоляция; 14 - входной патрубок ; 15-стяжной болт ротора турбины; 16- направляющие лопатки турбины высокого давления; 17- внутренний корпус турбины высокоео давления ; 18- ротор турбины высокоео давления 19-промежуточная часть 20-ротор турбины низкого давления; 21- внутренний корпус турбины низкого давления ; 22-корпус опорно-упорного подшипника турбины низкого давления; 23- вал турбины низкого давления; 24 –редуктор.
Установка (рис. 4 и 5) двухвальная; турбина высокого давления является приводом компрессора, а турбина низкого давления — силовая (через планетарный редуктор соединена с приводным механизмом — генератором, компрессором и т. п.). Вся установка смонтирована на общей фундаментной раме (рис. 8).
Р
ис.8 рама рис.9корпус рис.10 лопатки
Компрессор (от лат. compressio — сжатие) — устройство для сжатия и подачи газов под давлением (воздуха, паров хладагента и т. д.)
Компрессор осевой, 13-ступенчатый. Чугунный входной патрубок можно установить по отношению к корпусу компрессора в любое положение (через каждые 15°) в зависимости от компоновок входного воздухопровода. Корпус компрессора 8 (рис.7) чугунный литой конструкции с горизонтальным и вертикальным разъемами. Верхняя и нижняя половины корпуса состоят (каждая) из двух частей, соединенных болтами. Направляющие лопатки закреплены в пазах корпуса, имеющих профиль типа «ласточкин хвост».
Напорный и входной патрубки горизонтального разъема не имеют. Для придания большей жесткости конструкции внутри патрубка имеются направляющие лопатки. Ротор компрессора набран из кованых дисков 4 (рис. 7), соединенных центральным болтом. Рабочие лопатки компрессора закреплены в кольцевых пазах (типа «ласточкин хвост»), образованных двумя соседними дисками. Выравнивание облопачивания в процессе изготовления ротора (приведение концов лопаток к одному диаметру) производится шлифованием, причем для обеспечения жесткости лопатки заливаются пластиком. Ротор компрессора опирается на подшипники скольжения с баббитовой заливкой.
Техническая характеристика
| Параметры | У становка | |
| без регенерации | с регенерацией | |
| Мощность (при температуре окружающего воздуха 291 К) в кВт | 900 | 750 |
| Наибольшая мощность в кВт | 1000 | 860 |
| Расход воздуха в кг/с | 10,2 | 9,7 |
| Температура перед турбиной в К | 999 | 999 |
| Степень повышения давления | It | 4 |
| Степень регенерации В % | — | 75 |
| КПД установки (термический) в 0/о | 15,9 | 22,5 |
| Топливо | Жидкое, газообразное | |
Турбины — осевые, двухступенчатые. Диски турбин выполнены из нержавеющей стали с высоким содержанием хрома; крепятся центральным стяжным болтом с конической головкой. Рабочие лопатки турбин, выполненные из сплава Нимоник 80А, закреплены в осевых пазах дисков елочного профиля. Входной патрубок 14 (рис. 7) турбины высокого давления, корпус турбины высокого давления, промежуточная часть 19, корпус турбины низкого давления и выходная часть объединены в единый корпус. Входной патрубок двухстенный. Внутренняя часть патрубка — жаропрочная вставка, состоит из входной и кольцевой цилиндрических частей. Корпус турбины высокого давления двухстенный. Наружная (силовая) часть выполнена из малоуглеродистой стали. Во внутренней части (рис. 9) установлены 12 сегментов с направляющими лопатками (рис. 10). Каждый сегмент закреплен двумя шпильками. Между концами сегментов (в холодном состоянии) предусмотрены зазоры для компенсации тепловых расширений. Кольцевая неразъемная промежуточная часть 19 (рис. 7) является одновременно и диффузором, в котором скорость потока газа, выходящего из турбины высокого давления, уменьшается. Патрубок состоит из внутреннего и наружного колец, соединенных шестью пластинами, и наружного силового корпуса. Наружное кольцо прикреплено к корпусу шпильками, обеспечивающими радиальное расширение кольца; пластины прикреплены тангенциально . Все газопроводы и корпуса от камеры сгорания до выхода выполнены двухстенными.
В установке применено воздушное охлаждение. Расход охлаждающего воздуха составляет 1,5% от расхода воздуха на установку. Воздух на охлаждение турбин отбирается из компрессора в трех точках: за восьмой ступенью для охлаждения входного патрубка турбины высокого давления, за второй ступенью (через полый промежуточный вал, соединяющий роторы компрессора и турбины) и из напорного патрубка для охлаждения дисков турбины высокого давления. В результате эффективного воздушного охлаждения роторы и корпуса турбин имеют температуру ниже, чем температура газового потока. Например, температура наружного корпуса турбины не превышает 478 К.
Рис.11 конструктивная схема камеры сгорания
1-смотровое окно; 2и9-изоляция; 3-корпус; 4-запальное устройство; 5-форсунка; 6-завихритель; 7-диффузор; 8-привод поворотных лопастей; 10-поворотные лопасти.
Камера сгорания — единичная, угловая (рис. 11). Корпус камеры выполнен из листовой нержавеющей стали. На внутренней поверхности нанесен слой изоляции. В камере имеются поворотные лопасти, направляющие и дозирующие поток вторичного воздуха. Форсунки съемные; во время работы их можно заменять.
Камера может работать на дизельном топливе, мазуте, природном или низкокалорийном газе.
Характеристики
Тип файла документ
Документы такого типа открываются такими программами, как Microsoft Office Word на компьютерах Windows, Apple Pages на компьютерах Mac, Open Office - бесплатная альтернатива на различных платформах, в том числе Linux. Наиболее простым и современным решением будут Google документы, так как открываются онлайн без скачивания прямо в браузере на любой платформе. Существуют российские качественные аналоги, например от Яндекса.
Будьте внимательны на мобильных устройствах, так как там используются упрощённый функционал даже в официальном приложении от Microsoft, поэтому для просмотра скачивайте PDF-версию. А если нужно редактировать файл, то используйте оригинальный файл.
Файлы такого типа обычно разбиты на страницы, а текст может быть форматированным (жирный, курсив, выбор шрифта, таблицы и т.п.), а также в него можно добавлять изображения. Формат идеально подходит для рефератов, докладов и РПЗ курсовых проектов, которые необходимо распечатать. Кстати перед печатью также сохраняйте файл в PDF, так как принтер может начудить со шрифтами.














