124220 (577679)
Текст из файла
Содержание
Расчет охлаждаемой камеры для магазина продовольственных товаров
Определить ёмкость и площадь охлаждаемой камеры, её длину, ширину, принять высоту
Принять расчетные параметры: температуру наружного воздуха, воздуха внутри охлаждаемой камеры, температуру среды (воздуха или грунта) за каждым ограждением
Выполнить калорический расчет охлаждаемой камеры
Выбрать необходимую холодильную машину
Привести техническую характеристику холодильной машины
Литература
Расчет охлаждаемой камеры для магазина продовольственных товаров
Цель расчета: поучение более глубокого представления о холодильной технике в плане её практического применения в торговле продовольственными товарами.
Порядок расчета:
Определить ёмкость и площадь охлаждаемой камеры, её длину, ширину, принять высоту.
Принять расчетные параметры: температуру наружного воздуха, воздуха внутри охлаждаемой камеры, температуру среды (воздуха или грунта) за каждым ограждением.
Выполнить калорический расчет охлаждаемой камеры.
Выбрать необходимую холодильную машину.
Привести техническую характеристику холодильной машины.
Исходные данные:
Нахождение магазина: Волгоград
Вид продукта и его суточная реализация: Кондитерские изделия, 125 кг/сут.
Характеристика здания и место размещения в нём охлаждаемой камеры:
Одноэтажное здание с подвалом, на первом этаже.
Определить ёмкость и площадь охлаждаемой камеры, её длину, ширину, принять высоту
Потребная емкость и площадь охлаждаемой камеры:
E =GCYT*τ (1.1), F=E* β/ q (1.2)
E - емкость камеры, кг.
F - площадь камеры, м2
GCYT - суточная реализация продукта, кг/ сут.
τ - срок хранения продукта, сут.
β - коэффициент увеличения площади камеры на проходы, размещение охлаждающих приборов (батарей, воздухоохладителей)
q - норма загрузки камеры, кг/ м2
Таким образом, E =GCYT*τ =125* 5=625 кг.
F=E* β/ q= 625*1,7/ 100=10,63 м2
Линейные размеры принимаем, зная площадь:
F= 10,63 м2, Длина= 2м, ширина - 5,3м.
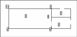
С
хема холодильной камеры
Стена a - b граничит с наружным воздухом,
Стены b - c и a-d., c - f граничат с неохлаждаемыми смежными помещениями
Стена f - d отделяет охлаждаемую камеру от тамбура.
Потолок камеры граничит с наружным воздухом.
Пол камеры граничит с подвалом.
Принять расчетные параметры: температуру наружного воздуха, воздуха внутри охлаждаемой камеры, температуру среды (воздуха или грунта) за каждым ограждением
Стена a - b граничит с наружным воздухом, Т= 34 С
Стены b - c и a-d., c - f граничат с неохлаждаемыми смежными помещениями Т= 29 С
Стена f - d отделяет охлаждаемую камеру от тамбура. Температура воздуха в тамбуре холодильника принимается на 10ºС ниже расчетной температуры наружного воздуха и составляет 24С.
Потолок камеры граничит с наружным воздухом. Т= 34 С
Пол камеры граничит с подвалом. Т=29 С
Выполнить калорический расчет охлаждаемой камеры
Калорический расчет учитывает теплопритоки, влияющие на изменение температурного режима в охлаждаемых камерах. Расчет производится для каждой камеры отдельно, что позволяет подобрать камерное оборудование.
В калорическом расчёте учитываются следующие теплопритоки в каждую из охлаждаемых камер: Q1 теплопритоки через ограждения камеры. Это приток тепла от наружной (по отношению к данной камере) среды путём теплопередачи вследствие разности температур наружной среды и воздуха внутри камеры; теплоприток солнечной радиации данных охлаждаемых камер принимается равным нулю, т.к камеры находятся не у наружных стен. Q2 теплоприток от грузов (от продуктов и тары) при их термической обработке. Q3 теплоприток от наружного воздуха при вентиляции камеры. Q4 эксплуатационные теплопритоки (при открывании дверей охлаждаемых камер, включении освещения, пребывании людей и т.п.).
Теплопритоки через ограждения Q1 рассчитываются по формуле
Q1=Q`1+Q``1, Вт, (3.1)
где Q`1 теплопритоки путём теплопередачи вследствие наличия разности температур сред, находящихся по ту и другую сторону ограждения, Вт;
Q``1 теплопритоки за счёт поглощения теплоты солнечной радиации, Вт.
Приток тепла через какое-либо ограждение путём теплопередачи вследствие наличия разности температур определяется
Q`1=KрF (tсрtв), Вт, (3.2),
где Kр расчётный коэффициент теплопередачи ограждения, подсчитанный раньше при расчёте толщины теплоизоляции, Вт/ (м2град);
F теплопередающая поверхность ограждения, м2;
tср температура среды, граничащей с внешней поверхностью ограждения, С;
tв температура воздуха внутри камеры, °С.
Теплопередающая поверхность F для пола и потолка камеры равна площади между осями внутренних стен. При определении теплопередающей поверхности стен высота считается от уровня чистого пола камеры до уровня чистого пола вышележащего этажа, длина внутренних стен между осями внутренних стен. Температура среды, граничащей с внешней поверхностью принимается из расчёта тепловой изоляции
Теплопритоки Q'1 в камеру складываются из суммы теплопритоков через отдельные ограждения (стены, пол, потолок). Если ограждение отделяет холодильную камеру от двух или нескольких помещений с разными температурами, то расчет ведется отдельно по каждому участку ограждения. При подсчете теплопритоков по камерам отрицательные Q'1 не учитываются.
Все данные, полученные в процессе расчета, сводятся в таблицу 3.1
Таблица 3.1 Теплопритоки через ограждения путем теплопередачи
| Ограждения | Кр, Вт/ (м2град) | F, м2 | tсрtв, С | Q`1 |
| Наружная стена a - b. | 0,47 | 4 | 28 | 52,64 |
| Левая стена a-d | 0,58 | 10,6 | 23 | 141,4 |
| Правая стена b - c | 0,58 | 10,6 | 23 | 141,4 |
| Передняя стена c - f | 0,58 | 2 | 23 | 26,64 |
| Передняя стена f - d | 0,58 | 2 | 18 | 20,88 |
| Потолок | 0,47 | 10,63 | 23 | 114,9 |
| Пол | 0,58 | 10,63 | 23 | 141,4 |
| Итого | 639,3 |
Теплоприток от грузов (продуктов и тары) определяется по формуле:
, Вт, (3.3),
где Gпр, Gт суточное поступление в охлаждаемую камеру продукта и тары соответственно, кг/сут;
Спр, Ст удельная теплоёмкость продукта и тары соответственно, Дж/ (кг град);
tпр1, tпр2 соответственно температура, с которой продукт поступает в камеру и конечная температура продукта после термической обработки, °С;
охл время охлаждения продукта до tпр2, ч.
Суточное поступление в охлаждаемую камеру продуктов Gпр принимается в зависимости от продолжительности их хранения. Если продолжительность хранения продукта составляет 1-2 дня, то Gпр принимается равным 100%, при 3-4-дневном хранении 50-60%, при более длительном хранении 50-40% от максимального количества данного продукта в камере. Максимальное количество продукта в камере Q определяется как произведение суточного запаса (расхода) продукта Gпр на срок его хранения .
Суточное поступление тары принимается в размере 20% для деревянной и стальной тары, 10% для картонной и 100% для стеклянной тары от суточного поступления продукта Gпр.
Конечная температура продукта после термообработки tпр2 принимается на 2С выше температуры воздуха в камере. Время охлаждения продукта τохл 24 часа.
Вид поставки, транспорта, расстояние перевозки описываются в организационно-технологическом разделе (технико-экономическое обоснование)
Таблице 3.2 Расчет теплопритока от груза (продуктов и тары)
| Наименование продуктов | gсут, кг/сут | , сут | Emax= Gсут, кг | Gпр, кг/сут | Спр, Дж/ (кг град) | Gт, кг/сут | Ст, Дж/ (кг град) | tпр1, С | tпр2, С | Q2, Вт |
| Кондитерские изделия | 125 | 5 | 625 | 250 | 2520 | 50 | 860 | 27 | 6 | 710,4 |
Приток тепла от вентиляции рассчитывается обычно для камеры фруктов, зелени и напитков. Расчет производится по формуле 3.4
, Вт, (3.4)
где V строительный объём вентилируемой камеры, м3;
а кратность вентиляции;
в плотность воздуха при температуре и относительной влажности в камере, кг/м3;
iн, iв энтальпия воздуха, соответственно, наружного и внутри камеры, Дж/кг.
Кратность вентиляции охлаждаемой камеры принимается 4 объема в сутки. Значения энтальпий воздуха как наружного, так и внутри камеры берутся по I-d-диаграмме влажного воздуха
Плотность воздуха рассчитывается по формуле:
, кг/м3, (3.5)
где 1,293 плотность воздуха при нормальных условиях, кг/м3;
tв температура воздуха в охлаждаемой камере, °С.
1,265
кг/м3,
41,24 Вт,
Эксплуатационные теплопритоки принимаются в зависимости от величины суммарного теплопритока в камеру через ограждения Q1 и в зависимости от площади камеры.
Величина Q4 берется в размере 40% - для камер размером меньше 10 м2, 30% - размером от 10 до 20 м2.
Итоги калорического расчета представлены в таблице 3.3
Итоги калорического расчёта холодильника
| Площадь камеры | Температура и влажность воздуха в камере | Теплопритоки, Вт | Итого по камере, Вт | |||||
| F, м2 | tв, С | в,% | Q1об | Q2 | Q3 | Q4 | Qоб | |
| 10,63 | 6 | 80 | 639,3 | 710,4 | 41,24 | 191,7 | 1587,3 | |
Выбрать необходимую холодильную машину
Для охлаждения камеры принимается машина марки МВВ4-1-2.
Эта машина с воздушным охлаждением конденсатора, что существенно снижает первоначальные затраты на монтаж и эксплуатационные расходы.
Потребная холодопроизводительность холодильной машины (компрессора) с учётом потерь холода и коэффициента рабочего времени определяется по формуле:
, Вт, (4.1)
где Qкм суммарный теплоприток в камеру, представляющий собой полезную нагрузку компрессора и определяемый по итогам калорического расчета;
коэффициент, учитывающий потери холода в установке;
Характеристики
Тип файла документ
Документы такого типа открываются такими программами, как Microsoft Office Word на компьютерах Windows, Apple Pages на компьютерах Mac, Open Office - бесплатная альтернатива на различных платформах, в том числе Linux. Наиболее простым и современным решением будут Google документы, так как открываются онлайн без скачивания прямо в браузере на любой платформе. Существуют российские качественные аналоги, например от Яндекса.
Будьте внимательны на мобильных устройствах, так как там используются упрощённый функционал даже в официальном приложении от Microsoft, поэтому для просмотра скачивайте PDF-версию. А если нужно редактировать файл, то используйте оригинальный файл.
Файлы такого типа обычно разбиты на страницы, а текст может быть форматированным (жирный, курсив, выбор шрифта, таблицы и т.п.), а также в него можно добавлять изображения. Формат идеально подходит для рефератов, докладов и РПЗ курсовых проектов, которые необходимо распечатать. Кстати перед печатью также сохраняйте файл в PDF, так как принтер может начудить со шрифтами.















