123083 (577535)
Текст из файла
Негосударственное образовательное учреждение высшего профессионального образования
Камский Институт Гуманитарных и Инженерных Технологий
Контрольная работа
По дисциплине: «Переработка промышленных и бытовых отходов»
На тему: «Достоинства и недостатки сжигания промышленных отходов в различных видах печей. Методы переработки резиносодержащих промышленных и бытовых отходов»
Выполнил:
студент группы УЗЭ.6
Первушина Л.И.
Проверил:
Северюхина Т.В.
Ижевск 2009
Содержание
I Достоинства и недостатки сжигания промышленных отходов в различных видах печей:
1.1 Введение
1.2 Сжигание промышленных отходов в многоподовой печи
1.3 Сжигание промышленных отходов в барабанной печи
1.4 Сжигание промышленных отходов в Американской установке надслоевого горения
1.5 Сжигание промышленных отходов в печи Сатору и Накану (Япония).
II Методы переработки резиносодержащих промышленных и бытовых отходов:
1.1 Вступление
1.2 Общие данные
1.3 Низкотемпературная технология утилизации
1.4 Бароденструкционная технология
1.5 Полностью механическая переработка
1.6 Новейшая технология
1.7 Восстановление шин
1.8 Заключение
1.9 Источники информации
ЧАСТЬ I
1.1 Введение
Наука и техника начала третьего тысячелетия развивается в темпах геометрической прогрессии, не является исключением и промышленность как одна из самых (если не самой) масштабных сфер деятельности человека.
Подобного рода тенденция распространилась по всему миру и уже захватила развивающиеся, в прошлом слаборазвитые, страны. Российская Федерация обладает одним из мощнейших во всем мире промышленным потенциалом, доставшимся ей в наследие от Советского Союза, после распада, которого до сих пор промышленность нашей страны не оправилась в полной мере. Несмотря на это, промышленность России, так или иначе, развивается всё более стабильно и целенаправленно. В связи с не безупречностью технологических процессов на данном этапе неизбежно негативное воздействие на окружающую среду, промышленных отходов как компонента данного воздействия. Ежегодно во всем мире и в нашей стране миллиарды тонн твердых, пастообразных, жидких, газообразных отходов поступает в биосферу, нанося тем самым непоправимый урон как живой, так и неживой природы. В глобальных масштабах изменяется круговорот воды и газовый баланс в атмосфере. Огромное количество видов живых существ подвержены воздействию опасных веществ, в том числе на генетическом уровне, отсюда вытекает поражения целого ряда поколений организмов, а может и множества. Стало очевидным, что и люди не застрахованы от жатвы плодов своей беспечности и халатного отношения к природе.
1.2 Сжигание промышленных отходов в многоподовой печи
Многоподовые печи (рис. 1) получили широкое распространение в странах Западной Европы и США для сжигания отходов, в первую очередь, осадков городских сточных вод. Печь состоит из цилиндрического стального корпуса 1, футерованного огнеупором, с поэтажно расположенными подами 2. По оси печи располагается охлаждаемый воздухом полый вал 3 с гребковыми лопастями 4. Вал приводится во вращение от расположенного внизу электропривода 5 и передаточного механизма 6. Гребковые лопасти, так же как и вал, выполняются пустотелыми. Через них в процессе работы подается воздух для охлаждения металлических поверхностей. Влажный продукт перемещается гребковыми лопастями сверху вниз от пода к поду навстречу дымовым газам. За счет тепла идущих в противотоке дымовых газов происходит подсушивание отходов, а затем их воспламенение, для чего дополнительно используют горючий газ. Зола, выходящая из патрубка 8, обычно гасится водой, которая затем направляется в отвал.
Рис. 1. Поперечное сечение многоподовой печи 1 - корпус; 2 - под: 3 -воздухоохлаждаемый полый вал; 4 - гребковые лопасти; 5 - электропривод; 6 - передаточный механизм; 7 - люк; 8 - патрубок
Таб. 1. Достоинства и недостатки сжигания ПО в многоподовой печи.
| № п/п | Достоинства | Недостатки |
| 1 | Подовые печи отличаются простотой обслуживания и устойчивостью работы при колебаниях количества и качества обрабатываемых отходов, небольшим уносом пыли. | Для воспламенения отходов необходимо дополнительно использовать горючий газ. Это дополнительные расходы |
| 2 | Зола, выходящая из патрубка, обычно гасится водой, которая затем направляется в отвал. Следовательно, использованная вода может применяться повторно | Требуется большой объем воды для гашения выходящей золы. |
| 3 | Тепло, выработанное в котле, может использоваться непосредственно в виде пара или расходоваться на производство электроэнергии. | Низкие удельные тепловые нагрузки, наличие вращающихся элементов в зоне высоких температур, высокие капитальные и эксплуатационные затраты. |
1.3 Сжигание промышленных отходов в барабанной печи
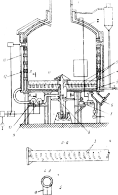
Барабанные печи – основной вид теплоэнергетического оборудования, которое применяется для централизованного сжигания твердых и пастообразных ПО. Этими печами оснащены практически все станции обезвреживания ПО, построенные в странах Западной Европы за последние годы. Основным узлом барабанной печи (рис. 2) является горизонтальный цилиндрический корпус 1, покрытый огнеупорной футеровкой 2 и опирающийся бандажами 6 на ролики 7. Барабан наклонен под небольшим углом в сторону выгрузки шлака и в процессе работы вращается со скоростью 0,8—2 мин-1, получая движение от привода 10 через зубчатый венец 9. Во избежание продольного смещения барабана предусмотрены ролики 8.
Твердые и пастообразные отходы подаются в корпус печи с ее торца в направлении стрелок А. В случае необходимости дополнительное топливо или жидкие горючие отходы (растворители) распыливаются через форсунку (стрелка Д), повышая температуру внутри печи. В зоне 12 поступивший материал, перемешиваясь при вращении печи, подсушивается, частично газифицируется и перемещается в зону горения 13. Излучение от пламени в этой зоне раскаляет футеровку печи и способствует выгоранию органической части отходов и подсушке вновь поступившего материала. Образовавшийся в зоне 24 шлак перемещается к противоположному торцу печи в направлении стрелки В, где падает в устройство для мокрого или сухого гашения золы и шлака.
Рис. 2. Схема барабанной печи А - загрузка отходов; С - дымовые газы; В - выгрузка золы (шлака);
Д - дополнительное топливо; Е - воздух; Г - тепловое излучение; 1 -корпус барабанной печи; 2 - футеровка; 3 - разгрузочный торец; 4 -присоединительные сегменты; 5 - вентилятор; 6 - бандажи; 7 - ролики опорные; 8 - ролики боковые; 9 - зубчатый венец; 10 - привод;11 - зона испарения воды; 12 - отходы; 13 -- зона горения; 14 - зола (шлак)
Таб. 2. Достоинства и недостатки сжигания ПО в Барабанной печи печи.
| № п/п | Достоинства | Недостатки |
| 1 | Высокая удельная производительность, надежность в работе, простота эксплуатации гарантируют оптимальное применение оборудования и делают его незаменимым во многих отраслях промышленности. | Газы, покидающие печь, могут содержать несгоревшие примеси, поэтому обычно после барабанной печи в схеме установки предусматривается камера дожигания. |
| 2 | Достоинством барабанных печей является малое содержание пыли в отходящих газах, возможность сжигать отходы с большой зольностью и влажностью | Низкая удельная тепловая и массовая нагрузка топочного объёма, разрушение футеровки в процессе работы, высокие капитальные и эксплуатационные затраты. |
| 3 | Существуют серийно производимые барабанные печи, предназначенные не только для сжигания осадков сточных вод и твёрдых бытовых отходов, но и для термической переработки нефтешламов, буровых шламов и опасных отходов | Не обеспечивает полной очистки Для очистки отходящих газов предусматриваются скрубберы или электрофильтры. Следовательно, необходимы, дополнит устройства. . |
| 4 | Необходим дополнительный расход используемых реагентов | |
| 5 | Многостадийность и сложность технологического процесса | |
| 6 | Значительная затрата электроэнергии |
1.4 Сжигание промышленных отходов Американская установка надслоевого горения
В США создана крупногабаритная установка для надслоевого сжигания горючих отходов с принудительной подачей воздуха в зону горения (рис. 3). Прямоугольная камера сгорания 3 печи, футерованная огнеупорным кирпичом, имеет зазоры 4 для охлаждения ее воздухом. Днище 2 камеры сгорания, выполненное также из огнеупорного кирпича, наклонено к горизонтали и лежит на песчаном основании 1. В углубленной части камеры расположена клапанная коробка 11, имеющая в верхней части ряд отверстий 10. Насос 12 через трубопровод 13 соединяется с резервуаром жидких отходов. Вентилятор 9 напорным воздуховодом 7 соединен с коллектором 6, расположенным вдоль стены камеры сгорания и заканчивающимся соплом 5 .
В процессе работы установки отходы подаются насосом в камеру сгорания, где образуется слой, почти целиком закрывающий днище печи. С помощью легковоспламеняющейся жидкости (бензин, керосин и т.п.) поверхность отходов поджигается. В то же время включается вентилятор 9; воздух начинает поступать в сопла коллектора и доставляет кислород в зону горения, футерованные стенки камеры сгорания постепенно раскаляются и становятся источником излучения, способствующим испарению летучих компонентов сжигаемых отходов. При правильном регулировании подачи горючих отходов и воздуха сгорание отходов может быть достаточно полным.
Установки такого типа относительно просты, не требуют сложной предварительной обработки отходов и могут применяться в местах их централизованного сжигания. К недостаткам установок следует отнести громоздкость, а также неуправляемость процессом при вскипании воды под слоем отходов.
Рис. 3. Американская установка надслоевого горения: 1 - песчаное основание; 2 - днище камеры сгорания; 3 - камера сгорания; 4 - воздушный зазор; 5 - сопло; 6 - коллектор; 7 - напорный воздуховод; 8 - слой жидких отходов; 9 - вентилятор; 10 - отверстия, клапанной коробки; 11 - клапанная коробка; 12 - насос; 13 - трубопровод
Таб. 3. Достоинства и недостатки сжигания ПО в Американской установке надслоевого горения.
| № п/п | Достоинства | Недостатки |
| 1 | Установки такого типа относительно просты, не требуют сложной предварительной обработки отходов и могут применяться в местах их централизованного сжигания. | Громоздкость установки. |
| 2 | Основное достоинство – относительная простота печи (топки, горелки), малая чувствительность к загрязненности и обводненности горючего отхода. | Неуправляемость процессом при вскипании воды под слоем отходов. |
| 3 | Сжигание с турбулизацией слоя отходов механическими устройствами является более эффективным процессом. | Если эти отходы не перемешивать в процессе работы печи, то горение даже при правильном соотношении "воздух-горючее" идет неинтенсивно вследствие низкого уровня тепло- и массообменных процессов; образуются застойные зоны, где возможно расслаивание эмульгированной воды, а это приводит к ее внезапному вспениванию и погашению пламени. |
| 4 | При правильном регулировании подачи горючих отходов и воздуха сгорание отходов может быть достаточно полным. | С течением времени на днище печи накапливаются несгоревшие твердые примеси, содержащиеся в отходах, а также кокс и частично оплавляющиеся зольные отходы. |
| 5 | Простота технологического процесса. | По мере увеличения слоя твердых примесей происходит экранирование находящихся ниже жидких горючих отходов от излучения пламени, в результате чего уменьшается степень газификации горючих компонентов, снижается производительность печи и требуется ее остановка для проведения чистки. |
1.5. Сжигание промышленных отходов в печи Сатору и Накано (Япония)
По мере увеличения слоя твердых примесей происходит экранирование находящихся ниже жидких горючих отходов от излучения пламени, в результате чего уменьшается степень газификации горючих компонентов, снижается производительность печи и требуется ее остановка для проведения чистки. Поэтому целесообразнее создавать печи с принудительным перемешиванием слоя отходов и с механической выгрузкой твердого остатка (рис.4). Японская печь конструкции Сатору и Накано выполнена в виде воздухоохлаждаемой цилиндрической камеры сгорания 2 с узким газоходом 1. Днище 5 камеры в центре имеет отверстие, через которое проходит воздухоохлаждаемый пустотелый вал 8. На конце вала закреплены полые радиальные лопасти 4 с отверстиями 3 для выхода воздуха. Лопасти снабжены скребками 11. Для выгрузки золы и кокса в днище печи предусмотрен люк 6. Подача необходимого для горения воздуха производится от воздуходувок 9 и 10.
Характеристики
Тип файла документ
Документы такого типа открываются такими программами, как Microsoft Office Word на компьютерах Windows, Apple Pages на компьютерах Mac, Open Office - бесплатная альтернатива на различных платформах, в том числе Linux. Наиболее простым и современным решением будут Google документы, так как открываются онлайн без скачивания прямо в браузере на любой платформе. Существуют российские качественные аналоги, например от Яндекса.
Будьте внимательны на мобильных устройствах, так как там используются упрощённый функционал даже в официальном приложении от Microsoft, поэтому для просмотра скачивайте PDF-версию. А если нужно редактировать файл, то используйте оригинальный файл.
Файлы такого типа обычно разбиты на страницы, а текст может быть форматированным (жирный, курсив, выбор шрифта, таблицы и т.п.), а также в него можно добавлять изображения. Формат идеально подходит для рефератов, докладов и РПЗ курсовых проектов, которые необходимо распечатать. Кстати перед печатью также сохраняйте файл в PDF, так как принтер может начудить со шрифтами.















