63446 (573405)
Текст из файла
Задание 1.
1. Составьте структурную схему, поясняющую принцип построения ЦСП ИКМ-ВД для заданного числа телефонных каналов. Кратко укажите назначение всех узлов и этапы аналого-цифрового преобразования АЦП в тракте передачи и цифро-аналогового преобразования ЦАП в тракте приёма.
2. Рассчитайте: тактовою чистоту fт, длительность тактового интервала Тт; длительность канального интервала Тки; длительность цикла Тц; длительность сверхцикла Тсц.
3. Рассчитайте частоты импульсных последовательностей, управляющих работой АИМ, ВС, кодера, декодера, передатчика и приёмника СУВ.
4. Постройте диаграмму временного цикла, сверхцикла, канального интервала, разрядного интервала.
5. Заполнить рисунок 1 по мере выполнения заданий 1, 2, 3.
Исходные данные приведены в таблице 1.
Таблица 1.
| Число телефонных каналов Nтк | Fg, кГц | m | Передача СУВ |
| 21 | 8 | 8 | За один цикл передаются СУВ для трёх телефонных каналов. |
1. АЦП исходного сообщения осуществляется в три этапа. Вначале сообщение дискретизируется по времени, далее квантуется по уровню и затем квантованные уровни кодируются.
ЦАП исходного сообщения осуществляется с помощью следующих процедур:
1 – декодирования – восстановления дискретных уровней;
2 – временной селекции – пропускание амплитудного отсчёта определённого канала;
3 – низкочастотной фильтрации – восстановление исходного сообщения из последовательности его отсчётов.
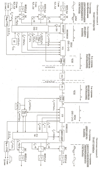
Тракт передачи:
ФНЧ-3,4 используется для ограничения спектра сигнала некоторой верхней частотой Fв. Это необходимо для эффективного представления отклика ФНЧ в виде последовательности отсчётов ( теорема Котельникова ).
М – амплитудно – импульсный модулятор используется для дискретизации телефонного сигнала.
Кодер преобразует амплитуды отсчёта АИМ сигнала в 8 разрядную кодовую комбинацию.
Устройство объединения УО – для объединения цифровых потоков: 12 телефонных каналов, СУВ, синхросигналов.
Преобразователь кода передачи ПКпер – для преобразования ИКМ сигнала в коде Q = 2 в линейный сигнал в коде ЧПИ.
Передатчик СУВ преобразует сигналы управления и взаимодействия между АТС при установлении соединения между абонентами в цифровые сигналы.
Задающий генератор ЗГ – для получения основной частоты (тактовой).
Генераторное оборудование передачи ГОпер – формирует импульсные последовательности, используемые для управления работой разных узлов аппаратуры; синхронизирует ГОпер с ГОпр и линейного тракта, также ГОпер определяет порядок и скорость обработки сигналов в тракте передачи.
Передатчик синхросигналов Персс – служит для формирования синхросигналов, обеспечивающих синхронную и синфазную работу ГОпер и ГОпр.
Линейный регенератор ЛР – служит для восстановления цифрового линейного сигнала.
Тракт приёма:
Станционный регенератор РС – восстанавливает цифровой линейный сигнал.
Преобразователь кода передачи ПКпр – для преобразования линейного сигнала в коде ЧПИ в групповой ИКМ сигнал в коде ВН с Q = 2.
Устройство разделения УР – разделяет цифровые потоки: 12 телефонных каналов, СУВ, синхросигналы.
Декодер преобразует 8 разрядную кодовую комбинацию в амплитуды отсчёта АИМ сигнала.
Временной селектор ВС – служит для пропускания амплитудного отсчёта только своего канала.
ФНЧ-3,4 – используется для восстановления исходного телефонного сигнала из последовательности его отсчётов.
Приёмник СУВ – используется для распределения СУВ по своим каналам и преобразования СУВ из цифрового вида в сигналы, передаваемые на АТС по проводам с, d.
Выделитель тактовой частоты ВТЧ выделяет тактовою частоту из цифрового линейного сигнала.
Генераторное оборудование приёма ГОпр – формирует импульсные последовательности , используемые для управления работой разных узлов аппаратуры; а также ГОпр определяет порядок и скорость обработки сигналов в тракте приёма.
Приёмник синхросигналов Приёмсс – служит для обеспечения правильного декодирования и распределения сигналов по своим телефонным каналам и каналам СУВ.
2. Тактовая частота рассчитывается по формуле:
ƒт = Fд · Nки · m
ƒт = 8 · ( 21 + 2 ) · 8 = 1472 кГц;
Длительность тактового разрядного интервала:
Тт = 1 / ƒт
Тт = 1 / 1472 = 0,679 мкс;
Длительность импульса:
τи = Тт / 2
τи = 0,679 / 2 = 0,3395 мкс;
Длительность канального интервала:
Тки = Тт · m
Тки = 0,679 · 8 = 5,432 мкс;
Длительность цикла:
Тц = Тки · Nки
Тц = 5.432 · 23 = 125 мкс;
Длительность сверхцикла:
Тсц = Тц · S
S – число циклов в сверхцикле
S = Nт.к / 3+1
3 – число телефонных каналов, которые обеспечиваются СУВ за 1 цикл
S = 21 / 3 + 1 = 8
Тсц = 125 8 = 1000 мкс;
3. Частота следования разрядов рассчитывается по формуле:
ƒр = ƒт / m
ƒр = 1472 / 8 = 184 кГц;
Частота следования каналов:
ƒк = ƒр / Nки
ƒк = 184 / 23 = 8 кГц ( частота дискретизации телефонного канала );
Частота следования циклов:
ƒц = ƒк / S
ƒц = 8 / 8 = 1 кГц.
Рис1. Упрощённая структурная схема ЦСП с ИКМ – ВД
Тт = 0,679 мкс
τи = 0,3395 мкс
0 0 1 0 0 0 1 0
Тки = 8,9 мкс
СУВ
ЦС
Тц = 125 мкс
СЦС
ЦИКЛ
СВЕРХЦИКЛ
Тсц = 1000 мкс
КИ22
КИ21
КИ14
КИ12
КИ11
КИ10
КИ2
КИ1
КИ0
Ц7
Ц6
Ц1
Ц0
КАНАЛЬНЫЙ
ИНТЕРВАЛ
ТАКТОВЫЙ (РАЗРЯДНЫЙ)
ИНТЕРВАЛ
Рис.2. Диаграмма временных сверхцикла, цикла, канального интервала
Задание 2.
1. Начертите структурную схему нелинейного кодера. Кратко поясните: три этапа кодирования, назначение всех узлов кодера.
2. Выполните операцию нелинейного кодирования. Рассчитайте ошибку квантования.
3. На рисунке 1 задания 1 на выходе кодера приведите полученную в результате кодирования кодовую 8 – разрядную комбинацию.
Значение амплитуды отсчёта Аи М – сигнала АИМ в у.е. даны в таблице 2.
Таблица 2.
| Амплитуда АИМ сигнала, усл.ед. |
| - 37 |
1. Кодирование осуществляется в три этапа:
1 этап – кодирование полярности ( результат кодирования записывается в первом разряде );
2 этап – кодирование номера сегмента, выбор основного эталонного тока Jосн.эт. ( результат записывается в 2,3,4 разрядах );
3 этап – кодирование уровня квантования внутри выбранного сегмента, Jдоп.эт. ( результат кодирования записывается в 5,6,7,8 разрядах )
Назначение кодера – для преобразования амплитуды отсчёта АИМ сигнала в соответствующую 8-разрядную кодовую комбинацию.
Назначение узлов схемы.
Компаратор определяет знак разности между амплитудами токов кодируемого отсчёта Iс и эталона Iэт.
Генератор эталонов формирует полярность и величины эталонов. По построению он аналогичен ГЭТ линейного кодера, только количество формируемых эталонов равно 11, а значения этих эталонов равны 1, 2, 4, 8, 16, 32, 64, 128, 256, 512, 1024 усл. ед.
Цифровой регистр служит для записи решений компаратора после каждого такта кодирования и формирования структуры кодовой группы. В зависимости от решений компаратора ЦР выбирает полярность ГЭТ и управляет работой компрессирующей логики. По мере образования кодовой комбинации формирователь считывает состояние выходов 1,2, …, 8 ЦР, преобразуя параллельный код в последовательный.
Работой узлов кодера управляют устройства генераторного оборудования системы передачи.
По мере завершения тактов кодирования преобразователь кода ПК считывает состояние выходов 1…8 ЦР, преобразуя параллельный код в последовательный.
Назначение блока выбора и коммутации эталонных токов БКЭ – для подключения выбранных ГЭТ или ГЭТ2, а также для подключения выбранных эталонных токов по сигналам от КЛ.
Назначение компрессирующей логики КЛ – для коммутации поступающего от ЦР семиразрядного кода ( без первого символа полярности сигнала ) в 11-разрядный и двоичный код для управления разрядами выбранного ГЭТ.
11011100
Вход АИМ сигнала - 37 усл. ед.
КОМПАРАТОР
«Запрет кодера»
От ПЦС
Выход
ИКМ сигнала
0 0 1 0 0 0 1 1
0
0
1
0
0
0
1
1
1 2 3 4 5 6 7 8
КЛ. +
КЛ. -
2Fт = 2944 кГц
1024 512 256 128 64 32 16 8 4 2 1
1024 512 256 128 64 32 16 8 4 2 1
1024 512 256 128 64 32 16 8 4 2 1
ГЕНЕРАТОР ЭТАЛОННЫХ ТОКОВ ГЕТ ( + )
ГЕРАТОР ЭТАЛОННЫХ ТОКОВ ГЕТ ( - )
БЛОК ВЫБОРА И КОММУТАЦИИ ЭТАЛОННЫХ ТОКОВ БКЭ
КОМПРЕССИРУЮЩАЯ
ЛОГИКА
ПК
ЦИФРОВОЙ РЕГИСТР
11000100
От РР ГО пер
Характеристики
Тип файла документ
Документы такого типа открываются такими программами, как Microsoft Office Word на компьютерах Windows, Apple Pages на компьютерах Mac, Open Office - бесплатная альтернатива на различных платформах, в том числе Linux. Наиболее простым и современным решением будут Google документы, так как открываются онлайн без скачивания прямо в браузере на любой платформе. Существуют российские качественные аналоги, например от Яндекса.
Будьте внимательны на мобильных устройствах, так как там используются упрощённый функционал даже в официальном приложении от Microsoft, поэтому для просмотра скачивайте PDF-версию. А если нужно редактировать файл, то используйте оригинальный файл.
Файлы такого типа обычно разбиты на страницы, а текст может быть форматированным (жирный, курсив, выбор шрифта, таблицы и т.п.), а также в него можно добавлять изображения. Формат идеально подходит для рефератов, докладов и РПЗ курсовых проектов, которые необходимо распечатать. Кстати перед печатью также сохраняйте файл в PDF, так как принтер может начудить со шрифтами.















