4892 (567208), страница 5
Текст из файла (страница 5)
Необхідні 80 м3/год. Фактично можна досягти за:
хв.
Тобто для ефективної роботи природної вентиляції достатньо провітрювати приміщення економічного відділу протягом 6,5 хв. кожної години.
Для теплого періоду
Об'ємна вага повітря зовні приміщення, кг/м3 буде дорівнювати:
γз =0,465*750/297=1,17
Об'ємна вага повітря з середини приміщення, кг/м3 буде дорівнювати:
γвн =0,465*750/301=1,16
Тепловий напір, під дією якого буде виходити повітря з кватирки, кг/м2 становить:
∆Н2 =1,48∙(1,17–1,16)=0,01
Швидкість виходу повітря через кватирку, м/с складає:
Фактичний повітрообмін Lф, м3/год., у відділі становить:
Lф=0,23∙0,4∙0,5∙3600=165,6 м3/год
Визначивши фактичний повітрообмін і порівнявши його з необхідним, можна зробити висновок про ефективність природної вентиляції у відділі. У холодний період року фактичний повітрообмін набагато більше необхідного (165,6 > 80), що може викликати переохолодження працюючих. Для покращення ефективності природної вентиляції рекомендується скорочення часу провітрювання приміщення пропорційно перевищенню фактичного повітрообміну над необхідним.
Необхідні 80 м3/год. Фактично можна досягти за:
хв.
Тобто для ефективної роботи природної вентиляції достатньо провітрювати приміщення економічного відділу протягом 29 хв. кожної години.
Задача 2
Перевірити достатність природного освітлення у економічному відділі, виходячи з таких даних:
-
габарити приміщення: довжина – 7,8 м, ширина – 5,4 м, висота – 3,0 м;
-
розміри віконного прорізу: висота – 1,8 м, ширина – 2,0 м;
-
кількість вікон – 2;
-
висота від підлоги до підвіконня – 1,0 м;
-
середньозважений коефіцієнт відбиття внутрішніх поверхонь – 0,4;
-
найбільша відстань від вікна до робочого місця – 4,4 м.
Розв'язання:
При дослідженні достатності природного освітлення необхідно відповісти на запитання: чи відповідає фактичне значення природного освітлення нормативному за СНиП II-4–79. Тобто необхідно порівняти значення фактичного та нормативного коефіцієнтів природного освітлення.
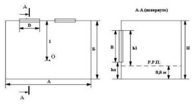
Перш за все треба скласти розрахункову схему, дотримуючись пропорції розмірів або вибраного масштабу, на якій відобразити, рис. 2:
-
габаритні розміри приміщення: довжину, ширину, висоту;
-
розміри вікон: ширину, висоту, їх кількість;
-
розміщення вікон за висотою приміщення: висоту від підлоги до підвіконня та відносно рівня робочої поверхні, яка розміщена на висоті 0,8 м від підлоги;
-
відстань від вікна до розрахункової точки О, яка вибирається на робочому місці, найбільш віддаленому від вікна.
Рис. 2 – Схема розрахунку природного освітлення
Нормоване значення коефіцієнта природного освітлення (КПО) для четвертого світлового поясу, в якому знаходиться України, еIV, визначається, %, за формулою:
еIV=eнІІІ∙m∙c, (2.7)
де енІІІ – нормоване значення КПО для III світлового поясу за СНиП II-4–79. Для більшості адміністративно-управлінських приміщень, у яких виконуються роботи III розряду (середньої точності), для бокового освітлення енІІІ = 1,5%;
m – коефіцієнт світлового клімату (для України m = 0,9);
c – коефіцієнт сонячності. Для географічної широти м. Суми розташоване в межах 0,75–1,0, приймаємо с=0,875. Тоді:
еIV=1,5∙0,9∙0,875=1,18%
Фактичне значення коефіцієнта природного освітлення для досліджуваного приміщення можна вивести з формули:
, (2.8)
звідки
, (2.9)
де So – площа усіх вікон у приміщенні, м2;
Sn – площа підлоги приміщення, м2;
τo – загальний коефіцієнт світлопроникності віконного прорізу. Для віконних прорізів адміністративно-управлінських будівель, які не обладнані сонцезахисними пристроями, τo = 0,5;
r1 – коефіцієнт, який враховує відбиття світла від внутрішніх поверхонь приміщення. Його значення залежить від розмірів приміщення (довжини і ширини), глибини приміщення (відстані від вікна до протилежної йому стінки), висоти від верху вікна до рівня робочої поверхні, відстані розрахункової точки від вікна, середньозваженого коефіцієнта відбиття світла від стін, стелі, підлоги, ρср.
Відношення глибини приміщення до висоти від рівня умовної робочої поверхні до верху вікна:
5,4/1,8=3
Відношення відстані розрахункової точки від зовнішньої стіни до глибини приміщення:
4,4/5,4=0,8
Середньозважений коефіцієнт відбиття стелі, стін, підлоги, ср=0,4.
Відношення довжини приміщення до його глибини:
7,8/5,4=1
Знаходимо, що r1=2.
ηo – світлова характеристика вікна вибирається з таблиці по співвідношенням, аналогічним попереднім:
Відношення довжини приміщення до його глибини:
7,8/5,4=1
Відношення глибини приміщення до висоти від рівня умовної робочої поверхні до верху вікна:
5,4/1,8=3
Знаходимо, що ηo= 18;
Кбуд – коефіцієнт, що враховує затемнення вікон іншими будинками, якщо будинків немає, то Кбуд = 1;
Кз – коефіцієнт запасу береться в межах Кз = 1,3 – 1,5, приймаємо Кз = 1,4.
So =1,8∙2,0∙2=7,2 м2
Sn =7,8∙5,4=42,12м2
Таким чином:
%
Порівнюючи значення нормованого коефіцієнта природного освітлення і фактичного можна зробити висновок, що досліджуване приміщення потребує додаткових заходів для поліпшення природного освітлення. Отримані значення перевищують допустимі норми. Допустимим відхиленням значення фактичного коефіцієнта природного освітлення від нормованого є +10 – -5%.
У нас відхилення складає:
=+43%
Задача 3
Дослідити достатність загального штучного освітлення приміщення економічного відділу габаритами: довжина – 7,8 м, ширина – 5,4 м, висота – 3,0 м. Вид джерела світла – лампа розжарювання, система освітлення – загальна в системі комбінованого, 6 світильників по 1 лампі у кожному потужністю 75 Вт.
Таблиця 1 – Технічні характеристики існуючих джерел штучного світла
| Лампи розжарювання | Люмінесцентні лампи | ||
| Тип | Світловий потік, Fл, лм | Тип | Світловий потік, Fл, лм |
| В-125–135–15* | 135 | ЛДЦ 20 | 820 |
| В 215–225–15 | 105 | ЛД 20 | 920 |
| Б 125–135–40 | 485 | ЛБ 20 | 1180 |
| Б 120–230–40 | 460 | ЛДУ 30 | 1450 |
| Б 125–135–60 | 715 | ЛД 30 | 1640 |
| БК 215–225–60 | 790 | ЛБ 30 | 2100 |
| БК 125–235–100 | 2280 | ЛДУ 40 | 2100 |
| БК 215–225–100 | 2090 | ЛД 40 | 2340 |
| Г 125–135–150 | 4900 | ЛБ 40 | 3120 |
| Г 215–225–150 | 4610 | ЛДУ 80 | 3740 |
| Г 215–225–300 | 19100 | ЛД 80 | 4070 |
| Г 215–225–300 | 19600 | ЛБ 80 | 5220 |
| * Перші два числа показують діапазон допустимої напруги, В, третє – потужність, Вт. | |||
Розв'язання:
Для оцінки достатності штучного освітлення в приміщенні необхідно порівняти значення фактичного освітлення та нормованого значення за СНиП ІІ-4–79.
Нормоване значення освітлення для економічного відділу при загальному освітленні за СНиП ІІ-4–79 складає при використанні ламп накалювання – 200 лк.
При комбінованому освітленні частка загального освітлення в системі комбінованого повинна складати 10% норми для комбінованого освітлення, але не менше 50 лк.
Значення фактичного освітлення, лк, у відділі можна знайти за допомогою методу коефіцієнта використання світлового потоку з формули:
, (2.10)
звідки
, (2.11)
де Fл – світловий потік однієї лампи, лм., в нашому випадку приймаємо Fл=790 лм;
ηв – коефіцієнт використання світлового потоку. Для світильників, які використовуються в адміністративних будівлях для традиційних розмірів приміщення і кольорового оздоблення, може набувати значення в межах ηв = 0,4 – 0,6, приймаємо ηв = 0,5;
N – кількість світильників, шт. Задану у вихідних даних кількість світильників необхідно розмістити рівномірно по площі приміщення, по можливості по сторонах квадрата, виконуючи такі умови: сторона квадрата L = 1,4 Hp, де Hp – висота підвісу світильника над робочою площиною, яку можна визначити як різницю між висотою приміщення і стандартною висотою розміщення над підлогою робочої площини, що дорівнює 0,8 м, та висотою підвісу світильника від стелі hпід = 0,1 – 0,4 м. Відстань від світильника до стіни бажано витримувати в межах l = 0,3
0,5L;
n – кількість ламп у світильнику, шт.;
S – площа приміщення, м2; S=48м2;
k – коефіцієнт запасу, k = 1,5 – 2 приймаємо k = 1,75;
z – коефіцієнт нерівномірності освітлення: для ламп розжарювання z = 1,15.
(2.12)
(2.13)
лк
Порівнюючи нормативне значення освітленості з фактичним, робимо висновок про достатність штучного освітлення у відділі.
Допустимим є відхилення фактичного освітлення від нормативного в межах +20% – -10%.
Відхилення фактичного значення від норми складає:
Задача 4
Розрахувати заземлення для стаціонарної установки. Заземлювачі заглиблені і розміщені в один ряд (глибина закладання t = 80 см). Довжина заземлювача lтр=600 см, діаметр заземлювача dтр=2 см, ширина з’єднувальної смуги – 5 см, ґрунт – пісок, II кліматична зона.
Рис. 3 – Схема заземлення
Рішення:
-
У відповідності до вимог пуе визначається допустимий опір розтіканню струму в заземленні Rз. Для мереж з напругою до 1000 В можна взяти Rз = 4 Ом.
-
Визначається питомий опір ґрунту, який рекомендовано для розрахунків, табл., Омсм; табл.= 70000 Омсм
-
Визначаються підвищувальні коефіцієнти для труб (вертикальних заземлювачів) КП.Т та для з’єднувальної смуги КП.С, які враховують зміну опору ґрунту в різні пори року залежно від наявності опадів.
Беремо: КП.Т.=1,7; КП.С.=4.
-
Визначається питомий розрахунковий опір ґрунту для вертикальних електродів (труб або стрижнів) розр.т з урахуванням несприятливих умов за допомогою підвищувального коефіцієнта:
, Омсм. (2.14)
















