_gost_23751-86 (523575)
Текст из файла
ГОСУДАРСТВЕННЫЙ СТАНДАРТ
СОЮЗА ССР
ПЛАТЫ ПЕЧАТНЫЕ
ОСНОВНЫЕ ПАРАМЕТРЫ КОНСТРУКЦИИ
ГОСТ 23751-86
Издание официальное
Снято ограничение срока действия
ГОСУДАРСТВЕННЫЙ КОМИТЕТ СССР ПО СТАНДАРТАМ
Москва
ПЛАТЫ ПЕЧАТНЫЕ
Основные параметры конструкции
Printed circuit boards.
Basic parameters of structure
ГОСТ
23751-86
Взамен
ГОСТ 23751—79
Постановлением Государственного комитета СССР по стандартам от 19 марта 1986 г. № 574 срок действия установлен
с 01.07.87
до 01.07.92
Несоблюдение стандарта преследуется по закону
Настоящий стандарт распространяется на односторонние (ОПП), двусторонние (ДПП) и многослойные (МПП) печатные платы на жестком и гибком основании, а также на гибкие печатные кабели (далее — ГПК).
Стандарт устанавливает основные параметры конструкции печатных плат и печатных кабелей.
Стандарт соответствует Публикации МЭК 326—3 в части номенклатуры параметров, и размеров и их предельных отклонений.
Термины, применяемыe в настоящем стандарте, — по ГОСТ 20406—75, ГОСТ 25346-82, ГОСТ 25347—82, ГОСТ 24642—81.
1. ОСНОВНЫЕ ПОЛОЖЕНИЯ
1.1. Настоящий стандарт устанавливает пять классов точности печатных плат и ГПК в соответствии со значениями основных параметров и предельных отклонений элементов конструкции (оснований печатных плат, проводников, контактных площадок, отверстий).
1.2. Размеры и предельные отклонения печатных .плат и ГПК, установленные стандартом, обязательны для следующих методов проектирования: ручного, автоматизированного и полуавтоматизированного и должны обеспечивать автоматизированную установку изделий электронной техники.
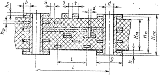
1.3. Буквенные обозначения размеров .конструкции печатных плат и ГПК приведены на черт. 1—4.
О
дносторонняя печатная плата (ОПП)
Нп — толщина - печатной платы; Нм — толщина материала основания печатной платы; h ф— толщина фольги; b — гарантийный поясок; D — диаметр контактной площадки; d — диаметр отверстия; S — расстояние между краями соседних элементов проводящего рисунка; t — ширина печатного проводника; Q— расстояние .от края печатной платы, выреза, паза до элементов проводящего рисунка
Черт. 1
Д
вусторонняя печатная плата (ДПП)
Нпс — суммарная толщина печатной платы; hп —толщина химико-гальванического покрытия; h —толщина проводящего рисунка; l—расстояние между центрами (осями) элементов конструкции печатной платы
Черт. 2
М
ногослойная печатная плата (МПП)
Черт. 3
а — длина концевого контакта
Черт. 4
2. ОСНОВНЫЕ ПАРАМЕТРЫ И РАЗМЕРЫ
2.1. Размеры печатных плат
2.1.1. Размеры сторон печатных плат должны соответствовать гост 10317—79*.
2.1.2. Предельные отклонения на сопрягаемые размеры контура печатной платы и ГПК не должны быть более 12-го квалитета по ГОСТ 25347—82.
Предельные отклонения на несопрягаемые размеры контура печатной платы и ГПК не должны быть более 14-го квалитета по ГОСТ 25347—82. .
*
Для радиоэлектронных средств в модульном исполнении — с учетом ГОСТ 26765.11—85.
2.1.3. Толщину ОПП, ДПП и ГПК Нп определяют толщиной материала основания с улетом толщины фольги hф.
Толщина МПП — по обязательному, приложению.
Предельные отклонения толщин ОПП, ДПП, ГПК — по нормативно-технической документации на конкретный вид материала основания.
Предельные отклонения толщины МПП должны быть:
±0,2 мм для МПП толщиной до 1,5 мм;
±0,3 мм для МПП толщиной свыше 1,5 мм.
Примечание. Допускается устанавливать по согласованию с головным технологическим предприятием; отрасли более жесткие предельные отклонения толщины МПП.
2.1.4. Суммарную толщину печатной платы или ГПК Нпс определяют как сумму толщины 'печатной платы или ГПК Нп. и суммарной толщины покрытий наружных слоев hn.
Предельные отклонения суммарных толщин печатной платы и ГПК не должны быть более суммы предельных отклонений толщин печатной платы или ГПК и покрытий на каждый наружный слой по ГОСТ 9.306—85.
2.2. Размеры элементов конструкции
2.2.1. Наименьшие номинальные значения основных размеров элементов конструкции печатных плат и ГПК для узкого места в зависимости от классов точности приведены в табл. 1.
Таблица 1
| Условное обозначение | Номинальное значение основных размеров для класса точности | ||||
| 1 | 2 | 3 | 4 | 5 | |
| t, мм | 0,75 | 0,45 | 0,25 | 0,15 | 0,10 |
| S, мм | 0,75 | 0,45 | 0,25 | 0,15 | 0,10 |
| b, мм | 0,30 | 0,20 | 0,10 | 0,05 | 0,025 |
| | 0,40 | 0,40 | 0,33 | 0,25 | 0,20 |
— отношение номинального значения диаметра наименьшего из металлизированных отверстий к толщине печатной платы или ГПК.
Для свободного места указанные значения допускается устанавливать по любому более низкому классу, а для первого класса — увеличивать в два раза.
2.2.2. Номинальные размеры диаметров металлизированных и не металлизированных монтажных и переходных (служащих только для соединения проводящих слоев) отверстий — по ГОСТ 10317—79.
2.2.3. Предельные отклонения диаметров монтажных и переходных отверстий d должны соответствовать указанным в табл. 2
Таблица 2
| Диаметр отверстия d,мм | Наличие металлизации | Предельное отклонение диаметра Δd, мм, для класса точности | ||||
| 1 | 2 | 3 | 4 | 5 | ||
| До 1,0 | Без металлизации | ±0,10 | ±0,10 | ±0,05 | ±0,05 | ±0,05 (±0,025)* |
| С металлизацией без оплавления | +0,05;-0,15 | +0,05;— 0,15 | +0;— 0,10 | +0;— 0,10 | +0;-0,10 (+0; -0.075)* | |
| С металлизацией и с оплавлением | +0.05; -0.18 | +0; -0.13 | +0; -0.13 | +0;— 0,13 | ||
| Св. 1,0 | Без металлизации | ±0,15 | ±0,15 | ±0,10 | ±0,10 | ±0,10 |
| С металлизацией без оплавления | +0,10;— 0,20 | +0,10;— 0,20 | +0,05;— 0,15 | +0,05;— 0,15 | +0,05;— 0,15 | |
| С металлизацией и с оплавлением | +0,10;— 0,23 | +0,10;— 0,23 | +0,05;— 0,18 | +0,05;— 0,18 | +0,05;— 0,18 | |
Норма вводится с 01.07.88.
2.2.4 Номинальные размеры сквозных отверстий под крепежные детали – по ГОСТ 11284-75
2.2.5 Ширину печатного проводника выбирают в зависимости от токовой нагрузки. Значения допустимой токовой нагрузки приведены в п. 2.4.4.
2.2.6 Предельные отклонения ширины печатного проводника контактной площадки, концевого печатного контакта, экрана Δt для узкого места должны соответствовать указанным в табл. 3.
Таблица 3
| Наличие мегалитического покрытия | Предельное отклонение ширины печатного проводника Δ t, мм, для класса точности | ||||
| 1 | 2 | 3 | 4 | 5 | |
| Без покрытия | ±0,15 | ±0,10 | ±0,05 | ±0,03 | +0 -0,03 |
| С покрытием | +0,25 -0,20 | +0,15 -0, 10 | ±0,10 | ±0,05 | ±0,03 |
2.3. Позиционные допуски расположения элементов конструкций
2.3.1. Значения позиционных допусков расположения осей отверстий -Td в диаметральном выражении приведены в табл. 4.
Таблица 4
| Размер печатной платы по большей стороне, мм | Значение позиционного допуска расположения осей отверстий Тд, мм*, для класса точности | ||||
| 1 | 2 | 3 | 4 | 5 | |
| До 180 включ Св. 180 до 360 включ Св. 360. | 0,20 0,25 0,30 | 0,15 0,20 0,25 | 0,03 0,10 0,15 | 0,05 0,08 0,10 | 0,05 0,08 0,10 |
*Позиционный допуск на расположение осей фиксирующих отверстий на платах, предназначенных для автоматической установки навесных элементов, устанавливают по 4-му классу, на расположение монтажных отверстий — по 3-му классу независимо от класса печатной платы.
2.3.2 Пересчет позиционных допусков расположения осей отверстий на предельные отклонения расстояний между осями этих отверстий проводят по ГОСТ 14140—81.
2.3.3 Значения позиционных допусков расположения центров контактных площадок td в диаметральном выражении приведены в табл. 5
Таблица 5
| Вид изделия | Размер печатной платы по большей стороне, мм | Значение позиционного допуска расположения центров контактных площадок ТD , мм, для класса точности | ||||
| 1 | 2 | 3 | 4 | 5 | ||
| ОПП ДПП ГПК МПП (наружный слой) | До 180 включ. | 0,35 | 0,25 | 0,15 | 0,10 | 0,05 |
| Св. 180 до 360 включ. | 0,40 | 0,30 | 0,20 | 0,15 | 0,08 | |
| Св. 360 | 0,45 | 0,35 | 0,25 | 0,20 | 0,15 | |
| МПП (внутренний слой) | До 180 включ. | 0,40 | 0,30 | 0,20 | 0,15 | 0,10 |
| Св. 180 до 360 включ. | 0,45 | 0,35 | 0,25 | 0,20 | 0,15 | |
| Св. 360 | 0,50 | 0,40 | 0,30 | 0,25 | 0,20 | |
2.3.4. Значения позиционных допусков расположения печатного проводника Тl; относительно соседнего элемента проводящего рисунка в диаметральном выражении приведены в табл. б.
Характеристики
Тип файла документ
Документы такого типа открываются такими программами, как Microsoft Office Word на компьютерах Windows, Apple Pages на компьютерах Mac, Open Office - бесплатная альтернатива на различных платформах, в том числе Linux. Наиболее простым и современным решением будут Google документы, так как открываются онлайн без скачивания прямо в браузере на любой платформе. Существуют российские качественные аналоги, например от Яндекса.
Будьте внимательны на мобильных устройствах, так как там используются упрощённый функционал даже в официальном приложении от Microsoft, поэтому для просмотра скачивайте PDF-версию. А если нужно редактировать файл, то используйте оригинальный файл.
Файлы такого типа обычно разбиты на страницы, а текст может быть форматированным (жирный, курсив, выбор шрифта, таблицы и т.п.), а также в него можно добавлять изображения. Формат идеально подходит для рефератов, докладов и РПЗ курсовых проектов, которые необходимо распечатать. Кстати перед печатью также сохраняйте файл в PDF, так как принтер может начудить со шрифтами.















