ВКР Шапетько Готовй (1222361), страница 5
Текст из файла (страница 5)
где
- расход пара,
- средний удельный объем пара,
– площадь живого сечения для проходящего пара.
Расход пара определяется по формуле 3.16:
Для определения удельного объема пара воспользуемся hs – диаграммой позволяющая определить теплофизические свойства воды и водяного пара в широкой области давлений и температур.
На рисунке 3.11 изображены процессы перегрева пара в hs – диаграмме.
Давление в парогенераторе
кПа.
Температура насыщения
.
Степень сухости влажного насыщенного пара
По известным параметрам по hs – диаграмме находим начальный удельный объем пара в точке 1.
Температура нагретого пара в пароперегреватели
.
Поскольку, в цикле Ренкина процесс прогрева пара изотермический то давление не изменяется.
Находим удельный объем и энтропию перегретого пара в точке 2.
,
.
Находим параметры пара на выходе из сопла точка 3. Процесс расширения пара на выходе адиабатный так энтропия не изменяется, а давление на выходе равно атмосферному
кПа.
Определяем средний удельный объем в начале и конце перегрева пара:
Площадь живого сечения для проходящего пара:
где
- внутренний диаметр труб пароперегревателя,
- число параллельно включенных труб в нашем случаи равно единице.
Тогда по формуле 3.22 определяем скорость пара в змеевиках пароперегревателя:
Рисунок 3.11 – процесс перегрева пара в hs – диаграмме
-
Расчет сопла
Для определения размеров сопла рисунок 3.10 необходимо найти:
Критическую скорость потока:
где
- показатель изоэнтропии пара,
- удельная газовая постоянная пара,
- температура нагретого пара.
Приведенная скорость потока:
где
- скорость потока на входе равна скорости в пароперегреватели.
Приведенная температура:
Приведенное давление:
Приведенная плотность:
Приведенный расход:
Диаметр сужения сопла:
где
– внутренний диаметр паропровода.
Длина сужающей части сопла:
где
- угол конусности сужающей части сопла согласно практическим данным принимаем равным 50
.
Определяем скорость потока из сопла. Так теоретическая скорость истечения пара из сопла:
где
– разность энтальпий до и после сопла определяется по hs – диаграмме
,
.
Скорость вращения рабочего колеса турбины:
где
– скорость потока пара попадающего рабочие лопатки,
- радиус рабочего колеса турбины,
- КПД турбины.
Так скорость вращения рабочего колеса турбины принимаем
.
Теоретическую механическую мощность турбины на валу рабочего колеса можно определить:
где
- расход пара,
– энтальпия пара в турбине принимаем равной энтальпии на выходе из сопла.
Сравнив с характеристиками генератора (рисунок 3.3) делаем вывод, что такой паровой генератор удовлетворяет требованиям необходимым для получения электрической энергии.
-
РЕЗУЛЬТАТЫ ПРОЕКТИРОВАНИЯ
По результатам расчетов на чертеже БР 13.03.02.025 001. представлен сборочный чертеж микромощного автономного парового турбоэлектрического генератора.
Тепловой парогенерирующий котел состоит из парогенератора и пароперегревателя соединенных паропроводом. Такая конструкция имеет высоту 30 см, ширину 27 см, толщину 20 см. С учетом того, что парогенератор является неотъемлемой частью в путешествии, так как является походной посудой для приготовления пищи, то такие габариты являются приемлемыми.
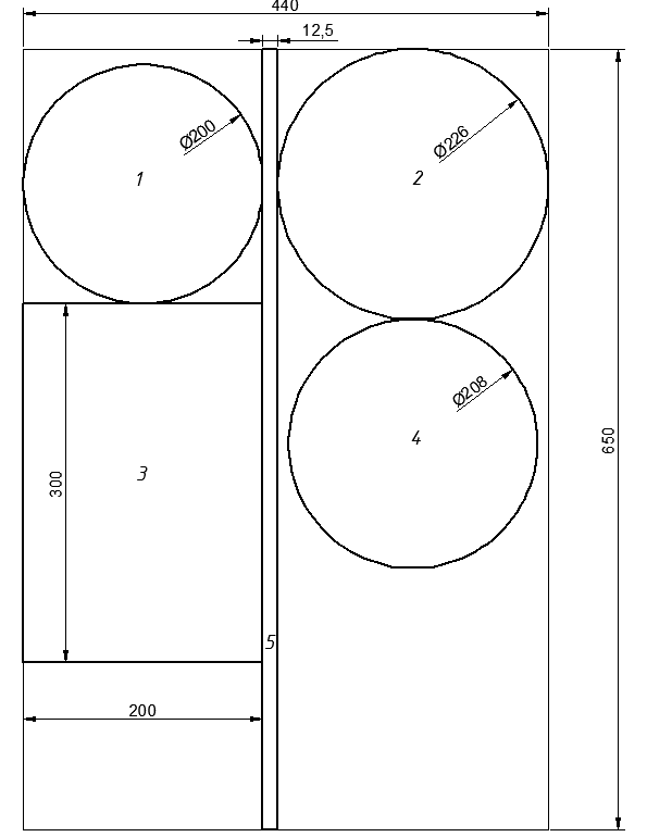
Тепловой экран предназначен для защиты генератора от перегрева. Выполнен из листа стали размерами 30x20 см.
Гибкий термостойкий шланг длиной 1 м предназначен для легкого перемещения турбины в удобное место. Состоит из гофрированной оцинкованной трубки, утепленной вспененным полиэтиленом. Для цельности конструкции и защиты поверх утеплителя намотана изолирующая лента.
Турбоэлектрическая паровая турбина имеет высоту 12 см, ширину 20,8 см, толщину 20,8 см. Состоит из деревянной подставки для установки турбины и генератора, закрепленного с помощью 4 упорных ножек на болтах, находящихся на паровой турбине образуя жесткую конструкцию.
На чертеже БР 13.03.02.025 002 показано внутренние устройство паровой турбины. Рабочее колесо крепится с помощью гайка – втулка к валу генератора с помощью резьбы. Корпус турбины имеет крышку, закрепленною с помощью болтового соединения, для возможности доступа к рабочему колесу.
На чертеже БР 13.03.02.025 Э03 показано электрическое подключение генератора к контроллеру зарядки – разрядки АКБ и нагрузки.
Работа контроллера АКБ происходит в три стадии, которые выполняются автоматически в зависимости от фактического уровня заряда аккумулятора.
Стадия накопление. Когда АКБ получает полностью весь ток генератора.
Стадия насыщения. ШИМ заряд. Когда напряжение на АКБ достигает определенного уровня, контроллер начинает поддерживать постоянное напряжение за счет ШИМ тока заряда. Это позволяет избежать перегрева и газообразования в аккумуляторе. Ток уменьшается по мере заряда АКБ.
Стадия равновесие. Когда АКБ полностью заряжена, зарядное напряжение уменьшается для предотвращения дальнейшего нагрева или газообразования в батарее.
Масса теплового парогенерирующего котла и турбоэлектрической паровой турбины не превышает 1 кг без учета массы бака парогенератора. Масса аккумулятора и контроллера заряда – разряда АКБ 1,25 кг. Так масса автономного парового турбоэлектрического генератора составляет 2,25 кг.
На чертеже БР 13.03.02.025 004 представлена таблица расчетной стоимости используемых элементов.
Себестоимость элементов составляет 4500 рублей. Так, портативные зарядные устройства стоят порядка 3000 рублей, а аналогичные по мощности портативные солнечные батареи 6000 рублей.
ЗАКЛЮЧЕНИЕ
Основной задачей выпускной квалификационной работы являлось изучение и проектирование микромощного автономного парового турбоэлектрического генератора. Также, было сделано математическое обоснование возможности построения экспериментального образца, с целью углубления понимания процессов в нем.
Произведен расчет парогенератора и пароперегревателя, произведен выбор паровой турбины, сопел. Построены схемы для отдельных элементов, изображено схематически изобретение с отображением габаритов. Сделан выбор материалов для образца. При выборе материалов упор делался на термостойкость, прочность и доступность их.
На основании полученных данных и проведенных исследований было сделано теоретическое обоснование возможности создания таких устройств и применимости их в различных областях хозяйства: службах МЧС, геологических и промысловых.
Описан принцип работы генератора, его достоинства и недостатки. Изобретение можно назвать экономически эффективным, поскольку затраты на создание его невелики и техническое обслуживание практически не требуется.
Переносные источники энергии играют важную роль в повседневной жизни, так как эти системы широко применимы. Микромощные автономные паровые генераторы применимы только для малых нужд, поскольку маломощны, но их автономность дает возможность получить электрическую энергию вдали от цивилизации. К тому же, они легко транспортируемы. Применение таких альтернативных источников энергии благоприятно для окружающей среды, поскольку при их работе в атмосферу не производится выброс вредных веществ. Стоит отметить, что из-за небольшой мощности, микромощные генераторы совершенно безопасны для человека.
СПИСОК ИСПОЛЬЗОВАННЫХ ИСТОЧНИКОВ
-
Наталевич А.С. Воздушные микротурбины – второе издание, переработанное и дополненное. «Машиностроение» - 1979.
-
Коньков А.Ю. Техническая термодинамика: сборник лекция – Хабаровск: Издательство ДВГУПС, 2013. – 114с.
-
Яковлев И.В. Тепловые машины: Материалы по физике
-
Обухов С.Г. Микрогидроэлектростанции: курс лекция к магистерской программе «Возобновляемые источники энергии». Томск – 2009.
-
Шестаченко И.Я. Тепловой расчет паровых турбин: учебно – методическое пособие к курсовому и дипломному проектированию. Новочеркасск – 2007.
-
Трушин В.А., Бикбулатов А.М. Методика теплового расчета многоступенчатой конденсационной парой турбины: Методические указания к курсовой работе по дисциплине «Конструкция и эксплуатация турбоагрегатов электростанций». Уфа – 2009.
-
Бикбулатов В.К. Тепловой расчет котельных установок. Саранск – 2009.
-
Бурцев С.И., Цветков Ю.Н. Влажный воздух. Состав и свойства: учебное пособие. Санкт – Петербургская государственная академия холода и пищевых технологий, 1998.
-
Лоренц. Г.А. Лекции по термодинамике. Ижевск – 2001.
-
Фокин В.М., Бойков Г.П., Видин Ю.В. Основы энергосбережения в вопросах теплообмена. Издательство машиностроение – 2005.
-
Соколов Е.Я., Зингер Н.М. Струйные аппараты. – третье издание. Энергоатомиздат – 1985.
-
Александров А.А., Григорьев Б.А. Таблица теплофизических свойств воды и водяного пара: Справочник. Издательство МЭИ. – 1999.
-
Ляшков В.И., Теоретические основы теплотехники: Учебное попобие. Издательство машиностроение – 2002.
-
Пеккер Я.Л. Технические расчеты по приведенным характеристикам топлива (обобщенные методы). Издательство Энергия – 1977.
-
Интернет – магазин коллекторных электродвигателей http://reckomp.ru/page1614.html
-
Интернет ресурс: конструкция коллекторного электродвигателя постоянного тока http://engineering-solutions.ru/motorcontrol/brushdcmotor
-
Интернет – магазин контроллеров АКБ: http://www.solnechnye.ru
-
Интернет – магазин аккумулятора ИБП http://www.citilink.ru/catalog
-
Сайфутдинов Р.Х., Шапетько В.А. Научно-техническому и социально-экономическому развитию Дальнего Востока Росси – инновации молодых: тезисы докладов межвуз. студенческой науч. конф. – ДВГУПС. 2016.
Чертеж 1
Рисунок раскройки листа стали
1 – турбина; 2 – крышка корпуса турбины; 3 – экран; 4 – дно корпуса турбины; 5 – стенки корпуса турбины.















