ПЗ общая (1218940), страница 15
Текст из файла (страница 15)
3.1 Общие сведения
Расчетно-конструктивная часть проектируемого здания разработана в соответствии с требованиями СП 20.13330.2011 "Нагрузки и воздействия", СП 63.13330.2012 "Бетонные и железобетонные конструкции".
Объемно-планировочные и конструктивные решения здания, а также природно-климатические условия строительства приведены в архитектурно-строительном разделе настоящего дипломного проекта.
3.1.1 Расчетные предпосылки
По заданию на дипломное проектирование необходимо выполнить расчет железобетонной рамы Рм4 по оси «1», с использованием ПК ЛИРА-САПР 2013.
3.2 Конструктивная схема рамы
Двухэтажная монолитная железобетонная рама состоит из трех пролетов по 6 метров. Высота первого этажа 4,2 м до оси балки; высота второго этажа 3,2 м до оси балки. Соединение балок с колоннами жесткое. Поперечные размеры балки 400х400 мм, колоны 400х400 мм. Материал принят: бетон класса В25, модуль деформации Е=0,3 для учета ползучести бетона; арматура класса А400. Рама сгенерирована конечными элементами тип 10. Модуль армирования для балок и колон - стержень.
Общий вид рамы, представлен на рисунке 2.1.
Рисунок 2.1 Общий вид рамы Рм4 пролетом 3х6 м
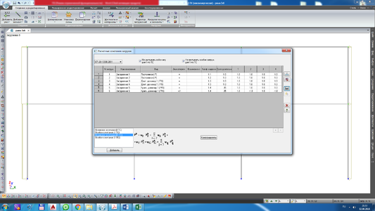
3.3 Сбор нагрузок
Сбор нагрузок на раму представлен в таблице 3.1.
Таблица 3.1 Сбор нагрузок на раму
| № п/п | Нагрузка | Нормативная нагрузка, кН/м |
| 1 | Постоянная нагрузка (загружение 1) | |
| 1.1 | Собственный вес жб балок, и колон задается программой Лира автоматически, при R0=25 кН/м3 | |
| 2 | Постоянная нагрузка (загружение 2) | |
| 2.1 | Плита перекрытия железобетонная 1-го этажа, толщиной 200 мм, длиной 4000 мм. Собственный вес задается программой Лира автоматически, при R0=25 кН/м3 | |
| Конструкция пола 1-го этажа: | ||
| 2.2 | Линолеум – 2 мм | 0,026 |
| 2.3 | Самовыравнивающий слой – 13 мм | 0,24 |
| 2.4 | Железобетонная плита перекрытия 2-го этажа, толщиной 200 мм, длиной 4000 мм. Собственный вес задается программой Лира автоматически, при R0= 25 кН/м3 | |
| Конструкция пола 2-го этажа: | ||
| 2.5 | Плиты «Базалит ПТ-200» - 250 мм | 2 |
| 2.6 | Металлический каркас кровли с учетом ограждающих конструкций 60 кН на две крайние колонны | 60/2 (кН) |
| 2.7 | Фасад здания: плиты «Базалит ПТ-200» - 140 мм панели облицовочные, каркас | 1,2 2,5 |
| 3 | Временная нагрузка (загружение 3) | |
| 3.1 | Перегородки, принимаем значение 0,5 кПа, согласно СП 20.13330.2011 п.8.2.2: q=0,5*4 | 2 |
| 4 | Временная нагрузка (загружение 4) | |
| 4.1 | Нормативная равномерно распределенная нагрузка, принята не менее 1,5 кПа согласно СП 20.13330.2011: q=1,5*4 | 6 |
| 5 | Кратковременная нагрузка (загружение 5) | |
| 5.1 | Снеговая, определяется, как для зданий со сводчатыми покрытиями µ1=cos1,5α=1,48; µ2=2sin3α=0,93 S01=0,7*се*ст *µ1*Sg=0.7*0,85*1*1,48*1,2=1,056 кН/м2 S02=0,7*се*ст *µ1*Sg=0.7*0,85*1*1,48*1,2=1,056 кН/м2 Принимаем S01=1,056*4*18=76,032кН (на две колонны) | 76,032/2 (кН) |
| 5.2 | Кратковременная нагрузка (загружение 6) Ветровая нагрузка определяется Наветренная стена W=W0*k*(z)*c=0,3*0,75*0,8=0,18 W=W0*k*(z)*c=0,3*0,88*0,8=0,211 Подветренная стена W=W0*k*(z)*c=0,3*0,75*0,5=0,11 W=W0*k*(z)*c=0,3*0,88*0,5=0,12 | 0,72 0,844 0,44 0,48 |
Загружение 1. Собственный вес конструкций – данный тип нагрузки назначается с учетом весов масс, заданных в жесткостных характеристиках. Задается программой автоматически при объемном весе равном 25 кН/м3
Рисунок 3.2 Загружение 1
Загружение 2. Вес конструкции пола 1-го этажа и 2-го этажа в соответствии с заданием, прикладывается как линейная нагрузка на стержни (балки) вдоль оси «Z».
Рисунок 3.3 Загружение 2
Загружение 3. Вес перегородок – задаем значение 0,5 кПа, согласно СП 20.13330.2011 «Нагрузки и воздействия» п.8.2.2, для перекрытия 1-го этажа.
Рисунок 3.4 Загружение 3
Загружение 4. Полезная нагрузка принята не менее 1,5 кПа согласно СП 20.13330.2011 «Нагрузки и воздействия», прикладывается как линейная на стержни (балки) вдоль оси «Z» 1-го и 2-го этажей.
Рисунок 3.5 Загружение 4
Загружение 5. Снеговая нагрузка нормативным значением 1,2 кПа, задается по схеме Г.2 согласно СП 20.13330.2011 «Нагрузки и воздействия». Снеговая нагрузка воспринимается покрытием здания и передается на крайние колонны.
Рисунок 3.6 Загружение 5
Загружение 6. Ветровая нагрузка задается на крайние колонны здания, по схеме Д.2 согласно СП 20.13330.2011 «Нагрузки и воздействия».
Рисунок 3.7 Загружение 6
3.3.1. Сочетание нагрузок
Расчет плиты по предельным состояниям первой и второй группам выполняется с учетом неблагоприятных сочетаний нагрузок, которые задаются при помощи таблицы расчетных сочетаний нагрузок в ЛИРЕ. Указываются вид нагружения, взаимоисключающие нагружения для кратковременной нагрузки, уточняются коэффициенты надежности по нагрузке согласно СП 20.13330.2011 «Нагрузки и воздействия» (см. рисунок 3.8-3.9).
Рисунок 3.8 Первое основное расчетное сочетание нагрузок
Рисунок 3.9 Второе основное расчетное сочетание нагрузок
3.4. Результаты расчета
При заданных жесткостных параметрах и параметрах назначенных материалов, ПК ЛИРА позволяет выполнить расчет по деформациям и усилиям в элементах, и в автоматическом режиме подобрать площади арматуры.
Расчет показал, что наиболее не благоприятным сочетанием по РСН является вторая комбинация нагрузок.
Определение армирования осуществляется на базе нормативных данных, которые содержат сведения о расчетных характеристиках арматуры и бетона, диаметрах и площадях арматурных стержней и т.п.
Результаты расчета и подобранная арматура, представлены в виде эпюр и изополей на рисунках 3.10 – 3.16.
Рисунок 3.10 Эпюра усилий N, тс
Рисунок 3.11 Эпюра усилий My, тс*м
Рисунок 3.12 Эпюра усилий Q, тс
Рисунок 3.13 Угловая арматура (симметричное армирование) в балке 2-го этажа
Рисунок 3.14 Угловая арматура (симметричное армирование) в балке 1-го этажа
Рисунок 3.15 Поперечная арматура в балке 1-го и 2-го этажа
Рисунок 3.16 Угловая арматура в колонне
а) крайняя колонна; б) средняя колонна
Результаты армирования
По результату расчета принимаем:
- армирование балок 2-го этажа - симметричное, 4Ø28 класса А400, по верхней и нижней граням. Поперечная арматура (хомуты) принята Ø8 А400, с шагом 200 мм в пролете и 100 мм у опор.
- армирование балок 1-го этажа - симметричное, 4Ø32 класса А400, по верхней и нижней граням. Поперечная арматура (хомуты) принята Ø8 А400, с шагом 200 мм в пролете и 100 мм у опор.
Рисунок 3.17 Армироавние балок
Б1-балка второго этажа; Б2-балка первого этажа
- армирование колонн крайних - симметричное, 4Ø25 класса А400, по верхней и нижней граням. Поперечная арматура (хомуты) принята Ø8 А400, с шагом 200 мм.
- армирование колонн средних - симметричное, 4Ø16 класса А400, по верхней и нижней граням. Поперечная арматура (хомуты) принята Ø8 А400, с шагом 200 мм.
Рисунок 3.18 Армироавние колон: К1-крайняя колонна; К2-средняя колонна
4.1 Введение
Объектом строительства является автотранспортный цех с административно-бытовыми помещениями в г.Южно-Сахалинске.
Целью данного раздела является определение прямых затрат в денежном выражении на устройство монолитного железобетонного фундамента.
Единичная расценка представляет собой прямые затраты, которые определяются по формуле:
ПЗ=ЗП+ЭМ+СМ,
где ПЗ – прямые затраты, руб.;
ЗП – заработная плата рабочих-строителей, руб.;















