Паспорт заказов (1218492)
Текст из файла
Ведомость рабочих чертежей основного комплекта
| Обозначение | Наименование | Примечание |
| ГП-1 | Генеральный план. | А1 |
| АР-1 | Фасад 1-16, В-А. | А1 |
| АР-2 | Фасад 16-1, А-В. | А1 |
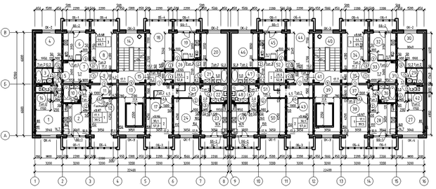
| АР-3 | План на отметке +2,900; +5,800; +11,600; | А1 |
| АР-4 | Разрез 1-1, разрез 2-2. | А1 |
| АР-5 | План кровли. | А1 |
| АР-6 | План полов типового этажа. | А1 |
| АР-7 | План перегородок. | А1 |
| АР-8 | План на отметке 0.000. | А1 |
| КМ-1 | Схема лестницы в осях В-Б и 5-4, планы разрезы 1-1, 2-2, 3-3, 4-4, 5-5, 6-6, 7-7, 8-8. | А1 |
| КМ-2 | Узлы 1-10. Косоуры К1, К2. Ограждение ОГ-1. | А1 |
| ТК-1 | Технологическая карта на бетонирование типового этажа. | А1 |
ПАСПОРТ ПРОЕКТА
9-ти этажный жилой дом по
ул. Комсомольской, в г. Южно-Сахалинске
Класс капитальности здания – I,
степень огнестойкости – II,
степень долговечности – I,
класс функциональной пожарной опасности – Ф1.3.
Расчетная температура наружного воздуха – 24 °С.
Расчетный вес снегового покрова – 400 кг/м2.
Климатический район и подрайон строительства – II, подрайон – IIг
Фасад в осях 16-1
Фасад в осях А-В
Разрез 1-1
План 1-го этажа
Характеристики
Тип файла документ
Документы такого типа открываются такими программами, как Microsoft Office Word на компьютерах Windows, Apple Pages на компьютерах Mac, Open Office - бесплатная альтернатива на различных платформах, в том числе Linux. Наиболее простым и современным решением будут Google документы, так как открываются онлайн без скачивания прямо в браузере на любой платформе. Существуют российские качественные аналоги, например от Яндекса.
Будьте внимательны на мобильных устройствах, так как там используются упрощённый функционал даже в официальном приложении от Microsoft, поэтому для просмотра скачивайте PDF-версию. А если нужно редактировать файл, то используйте оригинальный файл.
Файлы такого типа обычно разбиты на страницы, а текст может быть форматированным (жирный, курсив, выбор шрифта, таблицы и т.п.), а также в него можно добавлять изображения. Формат идеально подходит для рефератов, докладов и РПЗ курсовых проектов, которые необходимо распечатать. Кстати перед печатью также сохраняйте файл в PDF, так как принтер может начудить со шрифтами.















