ПЗ_ВКР_Стаценко Д._4 (1215716), страница 6
Текст из файла (страница 6)
Схема главных электрических соединений тяговой подстанции «Чита» представлена на рисунке 4.1.
В соответствии с методикой расчета токов короткого замыкания в сетях 110–750 кВ [15] необходимо при приведении параметров элементов различных ступеней напряжений (в именованных или относительных единицах) к одной ступени напряжения. Схемы замещения отдельных последовательностей для упрощенных расчетов получаются при учете средних коэффициентов трансформации. В уточненных расчетах учитываются точные коэффициенты трансформации. В системах, содержащих трансформаторы и автотрансформаторы с широким диапазоном встроенного регулирования напряжения под нагрузкой, как правило, необходим учет точных коэффициентов трансформации. Также необходим учет изменений сопротивлений трансформаторов и автотрансформаторов в зависимости от положения переключателя ответвлений для регулирования. При выполнении уточненного расчета в сложных кольцевых сетях, содержащих параллельные трансформаторные цепи, может оказаться необходимым учитывать не исключаемые трансформаторные связи.
В соответствии с рисунком 4.1 целесообразно предусмотреть замену масляных выключателей ОРУ 220 кВ, КРУН ЕДЦ 10 кВ и КРУН СЦБ Запада и Востока 6 кВ.
Расчет токов корытного замыкания будем производить в именованных единицах.
Рисунок 4.1 – Схема главных электрических соединений тяговой подстанции «Чита»
В соответствии со схемой главных электрических соединений для расчетного периода времени (см. рисунок 4.1) составим схему замещения для определения токов короткого замыкания (КЗ) в точках К1, К2, К3 и К4 (рисунке 3.2).
Рисунок 4.2 – Схема замещения при определении токов КЗ
Согласно таблицам токов коротких замыканий, на шинах подстанций 110-220 кВ Забайкальской дирекции – инфраструктуры филиала ОАО «РЖД» Центральной дирекции инфраструктуры по режимам работы энергосистемы на 01.01.2017 г [13], 3-ф и 1-ф токи короткого замыкания для шин ОРУ 220 кВ подстанции «Чита» представлены в таблице 4.1, токи приведены к среднему номинальному напряжению своих ступеней.
Для выбора высоковольтных выключателей подстанции, согласно методики расчета токов КЗ в сетях 35–750 [15,14], выполним соответствующие расчеты.
Таблица 4.1 – Токи короткого замыкания подстанции «Чита»
| Место КЗ | Режим | |||
| Трехфазное КЗ | Однофазное КЗ | |||
| mах | min | max | min | |
| ПС 220 кВ Чита-1 Шины 220 кВ | 8000 | 4630 | 8750 | 5450 |
Для определения 3-ф токов КЗ в точках К2, К3 и К4 необходимо найти результирующее сопротивление в каждой точке по методике, изложенной в руководящих документах и технической литературе [13–18].
Входное сопротивление тяговой подстанции определим по формуле
. 41\* MERGEFORMAT (.)
где
– номинальное напряжения соответственно ОРУ 220 кВ.
Сопротивление до точек КЗ К2, К3 и К4 для режима максимальной нагрузки системы определим по формулам
42\* MERGEFORMAT (.)
43\* MERGEFORMAT (.)
44\* MERGEFORMAT (.)
где
– номинальное напряжение ступени, кВ;
– реактивное сопротивление силовых трансформаторов, Ом.
Реактивное сопротивление Х силовых трансформаторов Т1 и Т2 представлено в таблице 4.1, Х трансформаторов Т160, Т63 и Т630 определим по формулам [17]:
, 45\* MERGEFORMAT (.)
где
– напряжение короткого замыкания между обмоткой ВН и НН трансформатора, %/100, для Т160, Т63 и Т630
составляет 0,065;
Uном – номинальное напряжение ВН, кВ;
– номинальная мощность трансформатора, кВА, Т160, Т63 и Т630 соответственно 160, 63 и 630 кВА.
Ток 3-ф, 2-ф, 1-ф и ударный КЗ в точках К1, К2, К3 и К4 определим по формулам [17]:
. 46\* MERGEFORMAT (.)
, 47\* MERGEFORMAT (.)
48\* MERGEFORMAT (.)
, 49\* MERGEFORMAT (.)
где
– ударный коэффициент для напряжения 220 кВ равен 1,6;
10 и 6 кВ – соответственно 1,85 и 1,9 [15].
Выполним расчет сопротивлений до точек короткого замыкания.
Результаты расчетов токов КЗ по вышеизложенной методике
(см. формулы 4.6–4.9) сведем в таблицу 4.2.
Таблица 4.2 – Результаты расчетов токов короткого замыкания
| Точки КЗ |
|
|
|
|
| К1 | 8000,00 | 6928,20 | 4618,80 | 12800,00 |
| К2 | 4933,24 | 4272,31 | 2848,21 | 7893,18 |
| К3 | 1616,67 | 1400,07 | 933,38 | 2990,83 |
| К4 | 2737,03 | 2370,34 | 1580,23 | 5200,37 |
-
Расчет максимальных рабочих токов
Расчет максимальных рабочих токов для выбора высоковольтных выключателей для ОРУ 220 кВ, КРУН, СЦБ и ЕДЦУ произведем по схеме рисунка 4.3.
Определим максимальный рабочий ток на вводе каждого силового трансформатора I1, I2, I3, I4.
Методика определения максимальных рабочих токов представлена в литературе [16–17].
Рисунок 4.3 – Схема для расчета максимальных рабочих токов
Максимальный расчетный ток I1, I2, I3, I4, определим по
формулам (4.10–4.13).
, 410\* MERGEFORMAT (.)
, 411\* MERGEFORMAT (.)
, 412\* MERGEFORMAT (.)
, 413\* MERGEFORMAT (.)
где
– коэффициент аварийной перегрузки трансформатора, учитывающий возможную перегрузку до 40 %,
;
– номинальная мощность силового трансформатора согласно схеме рисунка 4.3.
Для примера выполним расчет максимального рабочего тока I1 остальные результаты расчета по вышепредставленной методике сведем в таблицу 4.3.
.
Таблица 4.3 – Результаты расчетов максимальных рабочих токов
| н/п | Наименование | Максимальный расчетный ток, А |
| 1 | I1 | 146,96 |
| 2 | I2 | 12,32 |
| 3 | I3 | 48,50 |
| 4 | I4 | 8,08 |
Далее произведен анализ современных технических решений в области высоковольтных выключатели, выполним выбор выключателей для замены морально устаревших масляных высоковольтных выключателей.
-
ЗАМЕНА МАСЛЯНЫХ ВЫСОКОВОЛЬТНЫХ ВЫКЛЮЧАТЕЛЕЙ
Equation Section (Next)
-
Анализ современных технических решений и выбор высоковольтных выключателей
В соответствии с действующими нормами технологического проектирования [4] для распределительных устройств класса напряжения до 35 кВ, рекомендуется применять вакуумные ВВ; классов напряжения 220 и выше – элегазовые ВВ.
По результатам анализа современных технических решений [23–28] для замены масляных выключателей типа У-220м/1000/25 выбираем элегазовый колонковый выключатель типа ВГТ 220 отечественного производства «Завода электротехнического оборудования «ЗЗТО».
Для замены высоковольтных маломасляных выключателей типов ВМП-10/630 и ВКЭ-МВ-10 соответственно КРУН СЦБ и ЕДЦУ используем BB/TEL-10-12,5/630, фирмы производителя ЗАО «ГК «Таврида электрик».
Основные технические параметры выключателей сведены в таблицы 5.1–5.2.
Таблица 5.1 – Основные технические параметры элегазовых выключателей
BГT-220III40/X
| Наименование параметра | Норма |
| Номинальное напряжение, кВ | 220 |
| Наибольшее рабочее напряжение, кВ | 252 |
| Номинальный ток, А | 4000 |
| Номинальный ток отключения, кА | 40 |
| Длина пути утечки внешней изоляции, см не менее | 630 |
| Собственное время отключения, мс, не более | 25±2,5 |
| Полное время отключения, мс, не более | 60 |
| Собственное время включения, мс, не более | 100 |
| Разновременность работы полюсов, с, не более: | |
| при включении | 0,005 |
Окончание таблицы 5.1
| Наименование параметра | Норма |
| при отключении | 0,0033 |
| Нормированный ток отключения ненагруженной воздушной линии, А | 125 |
| Верхний предел избыточного давления (давление заполнения, приведенное к плюс 20 °С) элегаза, МПа (кгс/см2) | 0,40(4,0) |
| Нижний предел избыточного давления элегаза (давление блокировки выключателя, приведенное к плюс 20 °С), МПа (кгс/см2) | 0,34(3,4) |
| Ресурс по коммутационной стойкости до среднего ремонта, при номинальном токе отключения, количество операций 0 (В), не менее | 15(8) |
| Ресурс выключателя по механической стойкости | 10000 |
| Срок службы до среднего ремонта, лет | 25 |
| Срок службы до списания, лет | 40 |
| Масса выключателя, кг | 4080 |
| Габариты (без сборной опорной конструкции), мм, не более длина, ширина, высота | 6500x760x7562 |
Таблица 5.2 – Основные технические параметры вакуумных выключателей BB/TEL-10-12,5/630 У2
| Наименование параметра | BB/TEL-10-12,5/630 У2 |
| Номинальное напряжение, кВ | 10 |
| Номинальный ток, А | 630 |
| Номинальный ток отключения, кА | 12,5 |
| Ток электродинамической стойкости, (амплитуда), кА | 32 |
| Испытательное кратковременное напряжение (одноминутное) промышленной частоты, кВ | 42 |
| Ресурс по коммутационной стойкости: а) при номинальном токе, циклов "ВО" | 50000 |
| б) при номинальном токе отключения, операций «0» | 100 |
| в) при номинальном токе отключения, циклов «ВО» | 100 |
| Собственное время отключения, мс, не более | 15 |
| Полное время отключения, мс, не более | 25 |
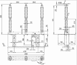
Пример габаритных установочных и присоединенных
размеров BГT-220III40/X представлены на рисунке 5.1.
, А
, А














