Пояснительная записка (1212483), страница 8
Текст из файла (страница 8)
По формуле (7.14)
Нпож = 30,4+10-7+1+0,0051(15,22/4+2184,6/16)+15,2=49,6 м,
где Zнтпож – отметка земли в точке сети, где расположен расчётный пожар;
hcпож – потери напора в трубопроводах сети от места присоединения
водовода до точки пожара для данного расчётного часа.
При аварии на одной нитке водовода расчётный напор, м, определяем по формуле:
Навар =Zнт -Zнр+hнс+Q2(Sвс /n2вс+Sнап /(nнап -1)2)+hc, (7.15)
По формуле (7.15)
Навар =27,6-7+1+0,0051(15,22/4+2184,6/(4-1)2)+40,2=61,2 м.
7.5 Подбор насосов и анализ их работы в системе водоснабжения
По расчетным параметрам работы насосов подбираются марки насосов. В первую очередь насосы подбираются для нормального режима [8] эксплуатации. Затем проверяем возможность обеспечения выбранными насосами режима пожаротушения и аварийного режима, дополнительно выбираем насосы для этих режимов.
Итоги расчетов для построения характеристик трубопроводов записываем в таблицу 15.
Таблица 15 - Расчет требуемого напора насосов при различных режимах
работы, м
| Режимы работы насосной станции | Q=0 | Q=260 м 3/ч | Qпож.=259,2 м 3/ч | Qавар.=182 м 3/ч |
| 1 | 2 | 3 | 4 | 5 |
| Нормальный | 22 | 62,5 | 62,5 | 62,1 |
| Пожаротушения | 35 | 49,6 | 49,6 | 49,9 |
| При аварии | 22 | 61,2 | 61,2 | 62,4 |
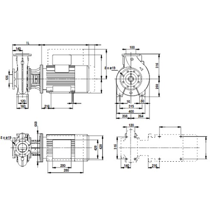
Марку насоса выбираем NB100-315/301 при n=2900 об/мин.
Характеристика трубопровода, совмещенная с характеристикой насоса показана на (рисунке 13).
Преимущества насосов марки Grundfos серии NB100-315/301:
-простота обслуживания;
-двойное всасывание минимизирует осевую нагрузку, что продлевает срок службы компенсационных колец, торцевых уплотнений и подшипников;
-конструкция с двухзавитковым отводом снижает радиальную нагрузку и минимизирует уровень шума и вибрации;
-отдельный корпус подшипника обеспечивает доступ к элементам насоса без необходимости снятия верхней части корпуса;
-высокая энергоэффективность;
-низкие расходы в течение срока службы;
-наличие большого количества вариантов исполнения.
Внедрение системы позволит:
-уменьшить энергозатраты за счет использования устройств плавного пуска в цепях питания электродвигателей насосов;
-уменьшить нагрузку на оборудование насосной станции при включении насосного оборудования;
-улучшить наблюдаемость и управляемость процесса водоснабжения;
-повысить надежность системы.
Рисунок 13 - Характеристика трубопровода, совмещенная с
характеристикой насоса.
7.6 Установка насосов и определение размеров фундамента
Размещение насосных агрегатов в НС-II производим с учетом количества и размеров и стандартных размеров строительных конструкций. Имеем три насоса марки NB 80-315/310 и два марки NB 100-315/301. Ширину проходов между выступающими частями насосов и между агрегатами и стеной принимаем равной 1 м, между выступающими частями насосных агрегатов и трубопроводами – 0,7 м.
На (рисунке 14) приведена схема насоса NB 100-315/301.На (рисунке 15) показана расстановка агрегатов. По ней определяем пролет здания 12 м и его длину 24 м при шаге колонн 6 м.
Всасывающие и напорные трубопроводы внутри насосной станции проектируем стальными со сварным соединением. Их укладываем на пол на подставках. Над трубопроводами предусматриваем переходы, рядом с задвижками – площадки обслуживания и необходимые лестницы.
Рисунок 14 – Схема насоса NB100-315/301
Рисунок 15 - Размещение насосов в машинном зале
7.7 Проектирование здания насосной стации второго подъёма
Высоту верхнего строения Нверх над машинным залом определяем с учетом размещения грузоподъемного оборудования по формуле:
Нверх>hтр+0,5+hг+hс+H+0,1, (7.16)
где hтр - погрузочная высота платформы автомобиля, принимаемая равной
1,2 м;
hг - высота переносимого груза, равная 1 м;
hс - высота строповки, равная 1 м;
Hверх - высота грузоподъемного оборудования при максимальном
поднятии крюка, равная 1,65 м.
По формуле (7.16)
Hверх>1,2+1+1+1,65+0,1=4,95 м
Высоту верхнего строения округляем до ближайшей стандартной и получаем высоту машинного зала 5,4 м.
Конструкцию здания назначаем каркасной. Здание насосной станции оборудуем приточно-вытяжной вентиляцией, естественным и искусственным освещением, отоплением, хозяйственно-питьевым водопроводом, хозяйственно-бытовой канализацией.
8. ВОДОПРОВОДНАЯ СЕТЬ
8.1 Характеристика водопроводной сети
Реконструкция системы водоснабжения города Долинска предполагает, прокладку кольцевых водопроводных сетей в Верхней и Нижней зонах города, строительство водопроводных сооружений на площадке резервуаров для снабжение водой Верхней зоны города.
В связи с тем, что проектируемые водопроводные сети имеют значительную общую протяженность и сложную конфигурацию, для упрощения поиска и систематизации отдельных элементов сети, город условно разделен на 23 квартала, а водопроводно-распределительная сеть на 56 участков (рисунок 16), которые представляют из себя магистральные водоводы, кольца, полукольца и перемычки.
Подключение водопроводной сети Нижней зоны к ранее запроектированным водоводам от водозабора Найбинский предусмотрено в камере 3*, расположенной в районе ул. Кирова. От этой же камеры по обводному магистральному водоводу (участки 1, 2, 3 и 3а) часть воды подается в проектируемые резервуары чистой воды (РЧВ) Верхней зоны. Далее из РЧВ через насосную станцию подкачки (НСП) вода подаётся в напорно – разводящие сети Верхней зоны двумя водоводами (участки 34 и 34а).
По территории города Долинска протекает две реки: река Излучная и река Эверон, эти реки относятся к высшей и к первой категориям рыбохозяйственного значения. Трассы водопроводной сети пересекают река Излучная и река Эверон на следующих участках:
- участок 24 (Нижняя зона) пересекает река Излучная в районе ул. Хабаровской между автомобильным и железнодорожным мостами;
- участок 25 (Нижняя зона) пересекает река Излучная в районе ул. Вилкова в 35 метрах выше по течению от автомобильного моста;
- участок 26 (Нижняя зона) пересекает река Излучная в 134 метрах выше по течению от участка 25;
- участок 29 (Нижняя зона) пересекает река Эверон в районе ул. Пушкина в 7 метрах выше по течению от автомобильного моста;
- участок 50 (Верхняя зона) пересекает река Эверон в районе ул. Победы в 15 метрах ниже по течению от автомобильного моста.
Для исключения негативного воздействия на водные объекты рыбохозяйственного назначения пересечение вышеуказанных рек проектом предусмотрено методом горизонтально-направленного бурения (ГНБ).
Описание расположения трасс участков водопроводной сети запроектированных в городе Долинске приведено в табличной форме таблицы 15 и 16, а на (рисунке 16) приведена схема трассы с номерами участков.
Для компенсации деформаций и перемещения трубопроводов в колодцах и камерах устанавливаются гибкие вставки фирмы «Hемен», гибкий элемент – полихлоропреновая резина.
Глубина заложения трубопроводов предусмотрена с учётом глубины промерзания грунтов от 1,50м (для глинистых грунтов) до 2,23м (для крупнообломочных грунтов).
На водопроводной сети предусмотрены колодцы (камеры), оборудованные:
- запорной арматурой – для отключения ремонтных участков сети;
- воздушными клапанами – для впуска и выпуска воздуха;
-пожарными гидрантами – для отбора воды на нужды пожаротушения.
Таблица 15 – Описание участков водопроводной сети Нижней зоны
| Характеристика основного участка | Номер участка присоединяе-мого к основному | |||||
| Номер участка | Наименование участка | Диаметр трубы, мм | Длина, м | Номера колодцев на участке | ||
| 1 | 2 | 3 | 4 | 5 | 6 | |
| 1 | Участок сети от камеры 1* на ул.Кирова до ПГ-2(1) на ул.Островского (обводной трубопровод) *ранее запроектированная камера переключений на водоводе от Найбинского водозабора до г. Долинска. | 315 | 2162,10 | ПГ-1(1), ПГ-2(1) | 4, 2, 9 | |
| 2 | Участок сети от ПГ2(1) переход через железную дорогу, по ул.Хабаровская, ул.Парковой, ул.Севостьянова до ПГ-6(2) | 280 | 343,5 | ПГ-3(2), 2-3, ПГ-4(2), 2-4 | 1, 9, 24, 20, 14, 15 | |
| 225 | 343,5 | 2-5, 2-6, ПГ-5(2), ПГ-6(2) | 21, 23, 26, 3, 3а, 7 | |||
| 3 | Магистральный водовод от | 225 | 359,20 | - | - | |
| 3а | Магистральный водовод от | 225 | 358,5 | - | - | |
| 4 | Участок сети от камеры 1* на ул.Кирова, по ул.Кирова, переход через железную дорогу до колодца 4-5 на ул. Пушкина | 315 | 1055,00 | ПГ-7(4), ПГ-8(4), 4-1, ПГ-9(4), 4-2, ПГ-10(4), 4-3, 4-4, 4-5 | 1, 9, 11, 10, 12, 5, 8, 29 | |
Продолжение таблицы 15
| 1 | 2 | 3 | 4 | 5 | 6 |
| 5 | Участок сети от колодца 4-5 на ул.Пушкина, по ул.Спасской, ул.Комсомольской, ул.Победы до колодца 5-5 около площади Ленина | 280 | 704,90 | ПГ-11(5), 5-1, ПГ-12(5), 5-2, ПГ-13(5), 5-3, 5-4 | 4, 5, 15, 6 |
| 225 | 11,00 | 5-5 | 8 | ||
| 6 | Участок сети от колодца 5-4 по ул.Ленина до колодца 6-5 на ул.Пионерской | 280 | 377,10 | ПГ-14(6), 6-1, 6-2, 6-3 | 5, 8, 7, 14 |
| 7 | Участок сети от колодца 6-5 на ул.Ленина по ул.Пионерской, по внутриквартальным проездам, по ул.Комсомольской до ПГ-6(2) на ул.Севостьянова | 280 | 276,50 | ПГ-16(7), 7-1, ПГ-17(7), 7-2, 7-3, ПГ-18(7), 7-4, ПГ-19(7) | 6, 14, 22, 23 |
| 225 | 322,70 | 7-5, 7-6, ПГ-20(7) 7-7, ПГ-21(7), 7-8 | 22, 2, 3, 3а | ||
| 8 | Участок сети от колодца 4-5 на ул.Кирова по ул.Пушкина, по ул.Ленина, по ул.Победы, по внутрикваркальным проездам, пересекает ул.Хабаровскую до ПГ-15(6) на ул.Ленина | 225 | 477,60 | 8-1, ПГ-22(8), ПГ-23(8), 8-2, 8-3, ПГ-24(8), | 29, 5, 4, 15, 16 |
| 160 | 547,20 | 8-4, 8-5, ПГ-25(8), 8-6, 8-7, ПГ-26(8), 8-8, 8-9, 8-10, 8-11, ПГ-27(8), 8-12 | 16, 13, 17, 6 |















