2. Модель угроз (1209993), страница 11
Текст из файла (страница 11)
Результаты проведенного анализа угроз утечки информации по техническим каналам относительно МИС ЦОД показали, что ни одна из возможных угроз не принимается к рассмотрению, а соответственно не является актуальной для данной МИС.
-
Определение актуальных техногенных угроз безопасности информации относительно МИС ЦОД
В качестве показателя актуальности техногенных угроз безопасности информации (УБИjА) принимается двухкомпонентный вектор, первый компонент которого характеризует вероятность реализации угрозы (Рj), а второй – степень возможного ущерба в случае ее реализации (Хj)
УБИjА = [вероятность реализации угрозы (Рj); степень ущерба (Хj)]
-
Определение вероятности реализации техногенных угроз безопасности информации в МИС ЦОД
Вероятность реализации каждой j – ой техногенной угрозы безопасности информации относительно МИС определяется на основании количественных показателей, получаемых по результатам отношения количества мер, реализованных в информационной системе для нейтрализации j – ой угрозы к количеству мер, необходимых для её нейтрализации.
Вероятность реализации угрозы Pj рассчитывается на основании формул теории вероятности, – как отношение числа благоприятствующих событию (реализации угрозы) исходов m к общему числу исходов n:
| |
Под числом исходов m, благоприятствующих событию реализации j – ой техногенной угрозы понимается количество мер, не реализованных в информационной системе для предотвращения данной угрозы, соответственно общее число исходов n – это общее количество мер, необходимых для реализации в информационной системе в целях предотвращения или нейтрализации j – ой угрозы.
Оценка вероятности реализации техногенных УБИ осуществляется по данным таблицы 8.1.
Таблица 8.1 – Показатели, характеризующие меры по нейтрализации техногенных угроз безопасности информации
| Наименование показателя, характеризующего меру защиты (возможные исходы) | Угрозы, нейтрализуемые мерой | |||||
| ТУ.001 | ТУ.002 | ТУ.003 | ТУ.004 | ТУ.005 | ТУ.006 | |
| Применение технических средств обработки информации и средств обеспечения функционирования ИС с высокой степенью отказоустойчивости | + | + | + | |||
| Применение лицензионного программного обеспечения | + | + | ||||
| Применение систем климат-контроля, предотвращающих выход технических средств из строя за счет нарушения температурного и влажностного режима в помещении | + | + | + | |||
| Применение систем резервного питания обеспечивающих работу при краткосрочном пропадании электроэнергии (ИБП) и обеспечение возможности корректного завершения работы при долговременном пропадании электроэнергии (электрогенераторы, дублирование линий питания) | + | + | + | |||
| Применение сетевых фильтров электропитания, предотвращающих сбои и отказы технических средств от скачка электропитания | + | + | + | |||
| Резервирование технических средств, программного обеспечения и средств обеспечения функционирования ИС | + | + | + | + | + | |
| Применение сертифицированных технических средств | + | + | ||||
| Общее число исходов (общее количество мер, необходимых для реализации угрозы), n | 6 | 6 | 3 | 2 | 2 | 2 |
Оценка вероятности реализации техногенных УБИ осуществляется по данным таблицы 8.2.
Таблица 8.2 – Определение вероятности реализации техногенных угроз
| Значение Pj | Определение вероятности реализации техногенных угроз |
| 0 | Маловероятна |
| | Низкая |
| 0,5 | Средняя |
| | Высокая |
По результатам обследования информационной системы было установлено, что в ней реализуются следующие меры по защите от техногенных угроз безопасности информации:
-
применение технических средств обработки информации и средств обеспечения функционирования ИС с высокой степенью отказоустойчивости;
-
применение лицензионного программного обеспечения;
-
применение сетевых фильтров электропитания, предотвращающих сбои и отказы технических средств от скачка электропитания;
-
применение систем климат-контроля, предоствращающих выход ТС из строя за счет нарушения температурного и влажностного режима в помещении;
-
применение систем резервного питания, обеспечищающих работу при краткосрочном пропадании электроэнергии (ИБП) и обеспечение возможности корректного завершения работы при долговременном пропадании электроэнергии;
-
резервирование ТС, ПО и средств обеспечения функционирования ИС.
На основании реализованных мер по защите информации и формулы были определены значения вероятностей реализации техногенных угроз относительно МИС ЦОД (таблица 8.3).
Таблица 8.3 – Определение вероятности реализации техногенных угроз безопасности информации в МИС ЦОД
| № п/п | Название угрозы | Число исходов, благоприятствующих реализации угрозы, m | Общее число исходов, n (см. Таблицу 5.3.1.1) | Значение Pj | Вероятность реализации угрозы |
| 1 | ТУ. 001 Угроза отказа и неисправности технических средств, обрабатывающих информацию | 0 | 6 | 0 | 0 (маловероятна) |
| 2 | ТУ. 002 Угроза отказа и неисправности технических средств, обеспечивающих работоспособность средств обработки информации (вспомогательных технических средств) | 0 | 6 | 0 | 0 (маловероятна) |
| 3 | ТУ. 003 Угроза отказа и неисправности технических средств, обеспечивающих охрану и контроль доступа | 0 | 3 | 0 | 0 (маловероятна) |
| 4 | ТУ. 004 Угроза, связанная со старением и размагничиванием размагничиванием технических средств обработки информации носителей информации | 0 | 2 | 0 | 0 (маловероятна) |
| 5 | ТУ. 005 Угроза сбоя общесистемного программного обеспечения | 0 | 2 | 0 | 0 (маловероятна) |
| 6 | ТУ. 006 Угроза сбоя прикладного программного обеспечения (сервисных программ, антивирус-ного программного обеспечения и т.д) или систем управления базами данных | 0 | 2 | 0 | 0 (маловероятна) |
Результаты определения актуальности техногенных угроз безопасности информации относительно МИС ЦОД представлены в таблице 8.4.
Таблица 8.4. – Результаты определения актуальности техногенных УБИ относительно МИС ЦОД
| № п/п | Название угрозы | Актуальность угрозы |
| 1 | ТУ.001 Угроза отказа и неисправности технических средств, обрабатывающих информацию | Неактуальная |
| 2 | ТУ.002 Угроза отказа и неисправности технических средств, обеспечивающих работоспособность средств обработки информации (вспомогательных технических средств) | Неактуальная |
| 3 | ТУ.003 Угроза отказа и неисправности технических средств, обеспечивающих охрану и контроль доступа | Неактуальная |
| 4 | ТУ.004 Угроза, связанная со старением и размагничиванием размагничиванием технических средств обработки информации носителей информации | Неактуальная |
| 5 | ТУ.005 Угроза сбоя общесистемного программного обеспечения | Неактуальная |
| 6 | ТУ.006 Угроза сбоя прикладного программного обеспечения (сервисных программ, антивирус-ного программного обеспечения и т.д) или систем управления базами данных | Неактуальная |
-
Определение актуальных угроз безопасности информации в случае принятия решения об актуальности использовании СКЗИ для обеспечения безопасности конфиденциальной информации, обрабатываемой в информационных системах
Общие положения о применении СКЗИ для обеспечения безопасности информации конфиденциального характера
Использование СКЗИ для обеспечения безопасности персональных данных необходимо в следующих случаях:
-
если персональные данные подлежат криптографической защите в соответствии с законодательством Российской Федерации;
-
если в информационной системе существуют угрозы, которые могут быть нейтрализованы только с помощью СКЗИ;
-
если решение о необходимости криптографической защиты персональных данных принято конкретным оператором на основании технико-экономического сравнения альтернативных вариантов обеспечения требуемых характеристик безопасности информации, содержащей, в том числе, персональные данные.
К случаям, когда угрозы могут быть нейтрализованы только с помощью СКЗИ, относятся:
-
передача персональных данных по каналам связи, не защищенным от перехвата нарушителем передаваемой по ним информации или от несанкционированных воздействий на эту информацию (например, при передаче персональных данных по информационно-телекоммуникационным сетям общего пользования);
-
хранение персональных данных на носителях информации, несанкционированный доступ к которым со стороны нарушителя не может быть исключен с помощью некриптографических методов и способов.
Для подтверждения того, что в информационной системе применяются такие каналы связи, с которых невозможен перехват передаваемой по ним защищаемой информации и (или) в которых невозможно осуществление несанкционированных воздействий на эту информацию, необходимо в описании информационной системы привести:
-
полное описание методов и способов защиты каналов от несанкционированного доступа к ним;
-
выводы по результатам исследований защищенности каналов связи от несанкционированного доступа к передаваемой по ним защищаемой информации организацией, имеющей право проводить такие исследования, со ссылкой на документ, в котором содержатся эти выводы.
Эксплуатация СКЗИ возможна:
-
при организации криптографической защиты информации конфиденциального характера в федеральных органах исполнительной власти, органах исполнительной власти субъектов Российской Федерации (далее - государственные органы);
-
при организации криптографической защиты информации конфиденциального характера в организациях независимо от их организационно-правовой формы и формы собственности при выполнении ими заказов на поставку товаров, выполнение работ или оказание услуг для государственных нужд (далее - организации, выполняющие государственные заказы);
-
если обязательность защиты информации конфиденциального характера возлагается законодательством Российской Федерации на лиц, имеющих доступ к этой информации или наделенных полномочиями по распоряжению сведениями, содержащимися в данной информации;
-
при обрабатывании информации конфиденциального характера, обладателем которой являются государственные органы или организации, выполняющие государственные заказы, в случае принятия ими мер по охране ее конфиденциальности путем использования средств криптографической защиты;
-
при обрабатывании информации конфиденциального характера в государственных органах и в организациях, выполняющих государственные заказы, обладатель которой принимает меры к охране ее конфиденциальности путем установления необходимости криптографической защиты данной информации.
ЦОД не производит непосредственной передачи данных через открытые каналы передачи информации. ЦОД предоставляет свои каналы организация, которые передают персональные данные по информационно-телекоммуникационным сетям общего пользования. У данных организаций используется шифрование данных при передаче их по открытым каналам. Следовательно, по сетям общего доступа ЦОД передает уже шифрованные данные. Таким образом применение СКЗИ для обеспечения безопасности конфиденциальной информации в данной системе не актуально.
-
Приложение А. Конфигурация МИС и топология ЛВС ЦОД
Рис. А.1 – конфигурация МИС ЦОД
Рисунок А.2 – Топология локальной вычислительной сети ЦОД
-
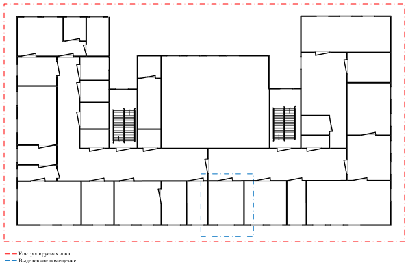
Приложение Б. Размещение элементов относительно границ контролируемой зоны
На схемах ниже представлены план этажей здания администрации поселка Ванино, расположения ЦОД и элементов МИС ЦОД относительно границ контролируемой зоны.
Рис. Б.1 – Размещение ЦОД относительно границ контролируемой зоны на третьем этаже здания Администрации.
Рис. Б.2 – Размещение технических средств и систем МИС ЦОД















