5. Технический проект (1209980), страница 6
Текст из файла (страница 6)
1. Организация режима обеспечения безопасности помещений, в которых размещена информационная система (далее – Помещения), препятствующего возможности неконтролируемого проникновения или пребывания в Помещениях лиц, не имеющих права доступа в Помещения.
Для выполнения требования необходимо обеспечение режима, препятствующего возможности неконтролируемого проникновения или пребывания в Помещениях лиц, не имеющих права доступа в Помещения, которое достигается путем:
-
утверждения правил доступа в Помещения сотрудников и посетителей в рабочее и нерабочее время;
-
утверждения перечня сотрудников, имеющих право вскрывать Помещения в нештатных ситуациях, а также порядка вскрытия Помещений в таких ситуациях.
2. Обеспечение сохранности носителей информации.
Для выполнения требования необходимо:
-
осуществлять хранение носителей информации в сейфах (металлических шкафах), оборудованных внутренними замками с двумя или более дубликатами ключей и приспособлениями для опечатывания замочных скважин или кодовыми замками;
-
осуществлять поэкземплярный учет носителей , который достигается путем ведения журнала учета носителей с использованием регистрационных (заводских) номеров;
-
осуществлять контроль вноса и выноса в контролируемую зону зарегистрированных (учтенных) съемных носителей информации.
3. Утверждение руководителем оператора документа, определяющего перечень лиц, доступ которых к информации, обрабатываемым в информационной системе, необходим для выполнения ими служебных (трудовых) обязанностей;
Для выполнения требования необходимо:
-
определить круг лиц, доступ которых к информации, обрабатываемой в информационной системе, необходим для выполнения ими служебных (трудовых) обязанностей;
-
разработать и утвердить документ, определяющий перечень лиц, доступ которых к информации, обрабатываемой в информационной системе, необходим для выполнения ими служебных (трудовых) обязанностей;
-
поддерживать в актуальном состоянии документ, определяющий перечень лиц, доступ которых к информации, обрабатываемой в информационной системе, необходим для выполнения ими служебных (трудовых) обязанностей.
4. Назначение лица, ответственного за обеспечение безопасности информации, обрабатываемой в информационной системе.
-
Заключение
Результатом проектирования СЗИ является создание программно-технического решения, представляющего собой совокупность взаимосвязано функционирующих подсистем, реализуемых как встроенными в операционные системы, так и наложенными СрЗИ, образующими единую СЗИ, которая выполняет требования технического задания и нормативных документов в области обеспечения информационной безопасности ПДн.
Совокупность предложенных механизмов защиты информации, а также реализация организационно-режимных мероприятий позволит создать эффективную систему обеспечения безопасности информации в информационных системах, исключающую реализацию угроз информационной безопасности, перечисленных в документе Модель нарушителя и угроз безопасности информации при их обработке в информационной системе комитета по приватизации и управлению имуществом администрации Ванинского муниципального района Хабаровского края».
ТП ИС «Комитет»
код ТП
СОСТАВИЛ
| Наименование организации, предприятия | Должность исполнителя | Фамилия, имя, отчество | Подпись | Дата |
| ДВГУПС | Студент группы 25К | Усов А. К. |
-
Приложение А. Выполнение требований законодательства по обеспечению безопасности информации
«Требованиями о защите информации, не составляющей государственную тайну, содержащейся в государственных информационных системах», утвержденными приказом ФСТЭК от 11.02.2013 № 17, «Составом и содержанием организационных и технических мер по обеспечению безопасности персональных данных при их обработке в информационных системах персональных данных», утвержденным приказом ФСТЭК России от 18.02.2013 № 21 определен комплекс методов и способов защиты информации, применяемых для ИС «Комитет».
Реализация функций защиты информации в ИС должна осуществляться сертифицированными средствами защиты информации.
Реализация требований ФСТЭК по обеспечению безопасности информации приведена в таблице А.1.
Таблица А.1– Содержание мер по обеспечению безопасности информации
| № меры | Содержание мер по обеспечению безопасности информации | Реализация мер |
| I. Идентификация и аутентификация субъектов доступа и объектов доступа (ИАФ) | ||
| ИАФ.1 | Идентификация и аутентификация пользователей, являющихся работниками оператора | Secret Net Studio |
| ИАФ.З | Управление идентификаторами, в том числе создание, присвоение, уничтожение идентификаторов | Secret Net Studio |
| ИАФ.4 | Управление средствами аутентификации, в том числе хранение, выдача, инициализация, блокирование средств аутентификации и принятие мер в случае утраты и (или) компрометации средств аутентификации | Secret Net Studio |
| ИАФ.5 | Защита обратной связи при вводе аутентификационной информации | Secret Net Studio |
| Продолжение таблицы 2.5 | ||
| № меры | Содержание мер по обеспечению безопасности информации | Реализация мер |
| ИАФ.6 | Идентификация и аутентификация пользователей, не являющихся работниками оператора (внешних пользователей) | Организационные меры |
| II. Управление доступом субъектов доступа к объектам доступа (УПД) | ||
| УПД.1 | Управление (заведение, активация, блокирование и уничтожение) учетными записями пользователей, в том числе внешних пользователей | Secret Net Studio |
| УПД.4 | Разделение полномочий (ролей) пользователей, администраторов и лиц, обеспечивающих функционирование информационной системы | Secret Net Studio |
| УПД.5 | Назначение минимально необходимых прав и привилегий пользователям, администраторам и лицам, обеспечивающим функционирование информационной системы | Secret Net Studio, Организационные меры |
| УПД.6 | Ограничение неуспешных попыток входа в информационную систему (доступа к информационной системе) | Secret Net Studio |
| УПД.10 | Блокирование сеанса доступа в информационную систему после установленного времени бездействия (неактивности) пользователя или по его запросу | Secret Net Studio |
| УПД.11 | Разрешение (запрет) действий пользователей, разрешенных до аутентификации | Secret Net Studio, |
| УПД.13 | Реализация защищенного удаленного доступа субъектов доступа к объектам доступа через внешние информационно-телекоммуникационные сети | VipNet Coordinator HW1000 |
| УПД.16 | Управление взаимодействием с информационными системами сторонних организаций (внешние информационные системы) | VipNet Coordinator HW1000 |
| III. Ограничение программной среды (ОПС) | ||
| ОПС.3 | Установка (инсталляция) только разрешенного к использованию программного обеспечения и (или) его компонентов | Secret Net Studio, организационные меры |
| IV. Защита машинных носителей персональных данных (ЗНИ) | ||
| ЗНИ.1 | Учет машинных носителей | Secret Net Studio, организационные меры |
| Продолжение таблицы 2.5 | ||
| № меры | Содержание мер по обеспечению безопасности информации | Реализация мер |
| ЗНИ.2 | Управление доступом к машинным носителям информации | Secret Net Studio, организационные меры |
| ЗНИ.8 | Уничтожение (стирание) или обезличивание персональных данных на машинных носителях при их передаче между пользователями, в сторонние организации для ремонта или утилизации, а также контроль уничтожения (стирания) или обезличивания | Secret Net Studio, организационные меры |
| V. Регистрация событий безопасности (РСБ) | ||
| РСБ.2 | Определение состава и содержания информации о событиях безопасности, подлежащих регистрации | Secret Net Studio, организационные меры |
| РСБ.З | Сбор, запись и хранение информации о событиях безопасности в течение установленного времени хранения | Secret Net Studio, |
| РСБ.4 | Реагирование на сбои при регистрации событий безопасности, в том числе аппаратные и программные ошибки, сбои в механизмах сбора информации и достижение предела или переполнения объема (емкости) памяти | Secret Net Studio |
| РСБ.5 | Мониторинг (просмотр, анализ) результатов регистрации событий безопасности и реагирование на них | Secret Net Studio |
| РСБ.6 | Генерирование временных меток и (или) синхронизация системного времени в информационной системе | Secret Net Studio |
| РСБ.7 | Защита информации о событиях безопасности | Secret Net Studio |
| VI. Антивирусная защита (АВЗ) | ||
| АВ3.1 | Реализация антивирусной защиты | Антивирус Kaspersky Security Center 10 |
| АВ3.2 | Обновление базы данных признаков вредоносных компьютерных программ (вирусов) | Антивирус Kaspersky Security Center 10 |
| Продолжение таблицы 2.5 | ||
| № меры | Содержание мер по обеспечению безопасности информации | Реализация мер |
| VIII. Контроль (анализ) защищенности персональных данных (АНЗ) | ||
| АНЗ.1 | Выявление, анализ уязвимостей информационной системы и оперативное устранение вновь выявленных уязвимостей | XSpider 7.8.24, организационные меры |
| АНЗ.2 | Контроль установки обновлений программного обеспечения, включая обновление программного обеспечения средств защиты информации | XSpider 7.8.24, организационные меры |
| АНЗ.3 | Контроль работоспособности, параметров настройки и правильности функционирования программного обеспечения и средств защиты информации | XSpider 7.8.24, Secret Net Studio, антивирус Kaspersky Security Center 10 |
| АНЗ.4 | Контроль состава технических средств, программного обеспечения и средств защиты информации | Secret Net Studio |
| АНЗ.5 | Контроль правил генерации и смены паролей пользователей, заведения и удаления учетных записей пользователей, реализации правил разграничения доступа, полномочий пользователей в информационной системе | Secret Net Studio, организационные меры |
| IX. Обеспечение целостности информационной системы и информации (ОЦЛ) | ||
| ОЦЛ.3 | Обеспечение возможности восстановления программного обеспечения, включая программное обеспечение средств защиты информации, при возникновении нештатных ситуаций | Secret Net Studio |
| Окончание таблицы 2.5 | ||
| № меры | Содержание мер по обеспечению безопасности информации | Реализация мер |
| XII. Защита технических средств (ЗТС) | ||
| ЗТС.2 | Организация контролируемой зоны, в пределах которой постоянно размещаются стационарные технические средства, обрабатывающие информацию, и средства защиты информации, а также средства обеспечения функционирования | Организационные меры |
| ЗТС.2 | Организация контролируемой зоны, в пределах которой постоянно размещаются стационарные технические средства, обрабатывающие информацию, и средства защиты информации, а также средства обеспечения функционирования | Организационные меры |
| ЗТС.3 | Контроль и управление физическим доступом к техническим средствам, средствам защиты информации, средствам обеспечения функционирования, а также в помещения и сооружения, в которых они установлены, исключающие несанкционированный физический доступ к средствам обработки информации, средствам защиты информации и средствам обеспечения функционирования информационной системы, в помещения и сооружения, в которых они установлены | Организационные меры |
| ЗТС.4 | Размещение устройств вывода (отображения) информации, исключающее ее несанкционированный просмотр | Организационные меры |
-
Приложение Б. Конфигурация ИС «Комитет»
-
-
Рис. Б.1 – Конфигурация ИС
-
Приложение В. Эскизный проект системы защиты
-
-
Рис. В.1 – Эскизный проект системы защиты
-
Приложение Г. Средства защиты информации, устанавливаемые на АРМ пользователей
-
В таблице Г.1 представлен перечень АРМ пользователей, серверы и АРМ Администратора с указанием местоположения и необходимых для установки и настройки средств защиты информации.
-
Таблица Г.1 – Перечень АРМ и средств защиты
-
№ кабинета
-
Элемент ИС
-
Средства защиты
-
213
-
АРМ 1
-
Secret Net Studio;
-
VipNet Client 3.2
-
VipNet Administrator 3.2
-
XSpider 7.8.24.
-
215
-
АРМ 2
-
Secret Net Studio;
-
VipNet Client 3.2.
-
215
-
АРМ 3
-
208
-
АРМ 4
-
208
-
АРМ 5
-
210
-
АРМ 6
-
210
-
АРМ 7
-
210
-
АРМ 8
-
212
-
АРМ 9
-
214
-
АРМ 10
-
214
-
АРМ 11
-
-
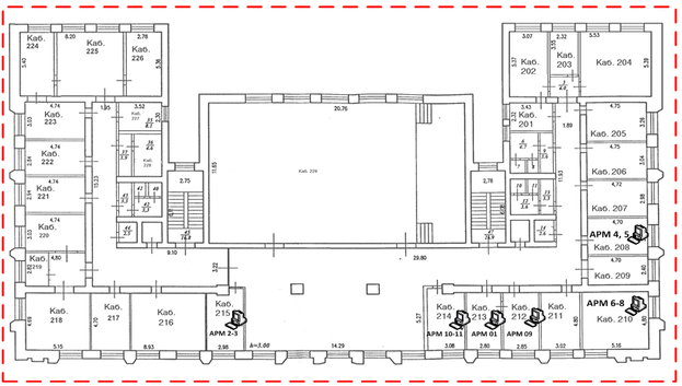
Приложение Д. План этажа здания Администрации
-
На схеме ниже представлен план этажа здания администрации с указанием расположения кабинетов и элементов ИС относительно границ контролируемой зоны.
-
Рис. Б.1 – Размещение элементов ИСП относительно границ контролируемой зоны на втором этаже
-
Лист регистрации изменений в техническом проекте
-
Номера листов
-
Всего листов в документе
-
Номер документа
-
Входящий № сопроводительного документа и дата
-
Подпись
-
Дата
-
Изм.
-
Измененных
-
Замененных
-
Новых
-
Аннулированных
-














