Диплом Ковальчук (1208175), страница 5
Текст из файла (страница 5)
Для наглядности в таблице 4.7.1 представлены визуальные изображения, выведенные на монитор:
Таблица 4.7.1 – Освещенность участков пути
| Участок парка | Изображение |
| Участок пути в обе стороны от опор 221-222 |
|
| Участок пути в обе стороны от опор 223-224 |
|
| Участок пути в обе стороны от опор 225-226 |
|
| Участок пути в обе стороны от опор 229-230 |
|
| Участок пути в обе стороны от опор 233-234 |
|
Продолжение таблицы 4.7.1
| Участок пути в обе стороны от опор 237-238 |
|
| Участок пути в обе стороны от опор 241-242 |
|
| Участок пути в обе стороны от опор 245-246 |
|
| Участок пути в обе стороны от опор 249-250 |
|
| Участок пути в обе стороны от опор 253-254 |
|
| Участок пути в обе стороны от опор 257-258 |
|
| Участок пути в обе стороны от опор 261-262 |
|
| Участок пути в обе стороны от опор 265-266 |
|
| Участок пути в обе стороны от опор 269-270 |
|
| Участок пути в обе стороны от опор 273-274 |
|
Продолжение таблицы 4.7.1
| Участок пути в обе стороны от опор 277-278 |
|
| Участок пути в обе стороны от опор 283-284 |
|
| Участок пути в обе стороны от опор 289-290 |
|
| Участок пути в обе стороны от опор 405-406 |
|
| Участок пути в обе стороны от опор 409-410 |
|
| Участок пути в обе стороны от опор 413-414 |
|
| Участок пути в обе стороны от опор 417-418 |
|
| Участок пути в обе стороны от опор 421-422 |
|
| Участок пути в обе стороны от опор 425-426 |
|
Окончание таблицы 4.7.1
| Участок пути в обе стороны от опор 429-430 |
|
| Участок пути в обе стороны от опор 433-434 |
|
| Участок пути в обе стороны от опор 437-438 |
|
| Участок пути в обе стороны от опор 441-442 |
|
| Участок пути в обе стороны от опор 445-446 |
|
| Участок пути в обе стороны от опор 449-450 |
|
| Участок пути в обе стороны от опор 453-454 |
|
| Участок пути в обе стороны от опор 457-458 |
|
| Участок пути в обе стороны от опор 461-462 |
|
| Участок пути в обе стороны от опор 463-464 |
|
Полное количество светильников, которое включает в себя осветительная установка, приведено в таблице 4.8.
Таблица 4.8 – Полное количество светильников в осветительной установке
| Наименование светильника | Количество, шт | Мощность, Вт | Удельная мощность осветительной установки при норме освещенности 5 лк, Вт/м2 |
| Philips Optogan OPK310 | 128 | 106 | 1,2 |
| Philips Optogan OPT560 | 136 | 90 | |
| Philips Optogan OPT480 | 41 | 63 | |
| Philips Optogan OPT150 | 21 | 47 |
4.6 Предлагаемое проектное размещение светильников на объекте
Светодиодные светильники устанавливать на ригелях жестких поперечин группами, размещенными над каждым междупутьем. В каждую группу входят два светильника Philips Optogan, направленные в противоположные стороны от ригеля вдоль путей.
Полная потребляемая электрическая мощность в расчете на одну группу светильников не превышает 212 Вт.
Полная потребляемая электрическая мощность в расчете на один ригель не превышает 1166 Вт.
Полная потребляемая электрическая мощность на всю освещаемую часть территории третьего районного парка не превышает 29,37 кВт.
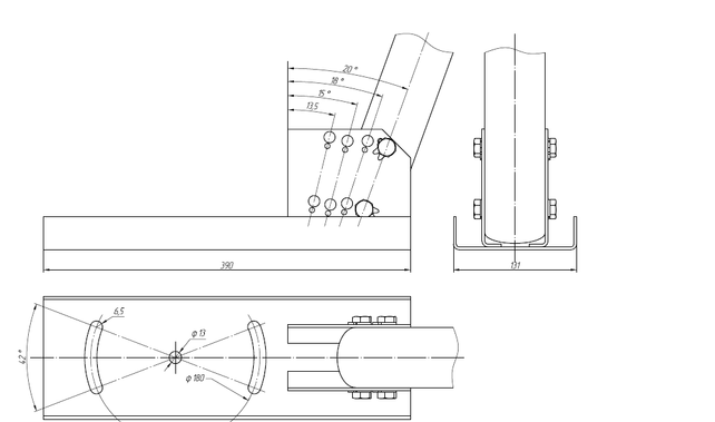
Рисунок 4.1 – кронштейн крепления светильника
Распределение светильников по ригелям приведено в таблицах 4.9-4.42.
Таблица 4.9 – Распределение светильников на ригеле между опорами 221-222
| Влево | L=17 221-222 | Вправо | ||
| Угол установки от вертикальной оси, градус | Тип светильника | Тип светильника | Угол установки от вертикальной оси, градус | |
| 13,5 | OPК310 | 4 группы | OPК310 | 13,5 |
| 13,5 | OPК310 | OPК310 | 13,5 | |
| 13,5 | OPК310 | OPК310 | 13,5 | |
| 13,5 | OPК310 | OPК310 | 13,5 | |
| - | - | - | - | |
| - | - | - | - | |
Таблица 4.10 – Распределение светильников на ригеле между опорами 223-224
| Влево | L=19 223-224 | Вправо | ||
| Угол установки от вертикальной оси, градус | Тип светильника | Тип светильника | Угол установки от вертикальной оси, градус | |
| 15 | OPT480 | 4 группы | OPT480 | 15 |
| 15 | OPT480 | OPT480 | 15 | |
| 15 | OPT480 | OPT480 | 15 | |
| 15 | OPT480 | OPT480 | 15 | |
| - | - | - | - | |
| - | - | - | - | |
Таблица 4.11 – Распределение светильников на ригеле между опорами 225-226
| Влево | L=30 225-226 | Вправо | ||
| Угол установки от вертикальной оси, градус | Тип светильника | Тип светильника | Угол установки от вертикальной оси, градус | |
| 15 | OPT480 | 6 групп | OPT480 | 15 |
| 15 | OPT480 | OPT480 | 15 | |
| 15 | OPT480 | OPT480 | 15 | |
| 15 | OPT480 | OPT480 | 15 | |
| 15 | OPT480 | OPT480 | 15 | |
| 15 | OPT480 | OPT480 | 15 | |
Таблица 4.12 – Распределение светильников на ригеле между опорами 229-230
| Влево | L=24 229-230 | Вправо | ||
| Угол установки от вертикальной оси, градус | Тип светильника | Тип светильника | Угол установки от вертикальной оси, градус | |
| 15 | OPT560 | 4 группы | OPT560 | 15 |
| 15 | OPT560 | OPT560 | 15 | |
| 15 | OPT560 | OPT560 | 15 | |
| 15 | OPT560 | OPT560 | 15 | |
| - | - | - | - | |
| - | - | - | - | |
Таблица 4.13 – Распределение светильников на ригеле между опорами 233-234
| Влево | L=24 233-234 | Вправо | ||
| Угол установки от вертикальной оси, градус | Тип светильника | Тип светильника | Угол установки от вертикальной оси, градус | |
| 15 | OPT560 | 4 группы | OPT560 | 15 |
| 15 | OPT560 | OPT560 | 15 | |
| 15 | OPT560 | OPT560 | 15 | |
| 15 | OPT560 | OPT560 | 15 | |
| - | - | - | - | |
Таблица 4.14 – Распределение светильников на ригеле между опорами 237-238
| Влево | L=24 237-238 | Вправо | ||
| Угол установки от вертикальной оси, градус | Тип светильника | Тип светильника | Угол установки от вертикальной оси, градус | |
| 15 | OPT560 | 4 группы | OPT560 | 15 |
| 15 | OPT560 | OPT560 | 15 | |
| 15 | OPT560 | OPT560 | 15 | |
| 15 | OPT560 | OPT560 | 15 | |
| - | - | - | - | |
| - | - | - | ||















