Diplom (1207170), страница 2
Текст из файла (страница 2)
Циркуляционная система котлоагрегата состоит из 35 независимых контуров. Топочная камера оборудована 16-ю плоско факельными горелками, которые расположены в два яруса на боковых экранах.
Для розжига мазутных форсунок предусматривается установка запальнозащитных устройств (ЗЗУ).
Все стены топочной камеры, горизонтального газохода и конвективной шахты экранированы газоплотными панелями. Котел предназначен для работы с уравновешенной тягой.
В топочной камере размещены испарительные экраны, радиационный пароперегреватель высокого давления. В верхней части топочной камеры расположены ширмы высокого давления. В опускных конвективных шахтах размещены водяной экономайзер и трубчатый воздухоподогреватель первичного и вторичного воздуха.
Котел работает в блоке с турбиной, предназначенной для комбинированной выработки тепловой и электрической энергии и генератором ТГВ [5].
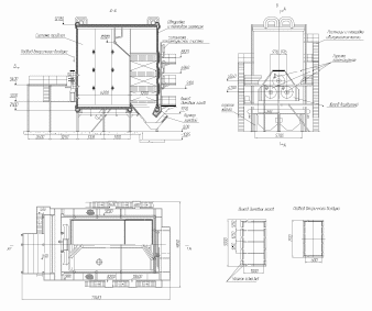
Водогрейный газо-мазутный котел КВГМ-100 (рисунок 1.2 и 1.3)является основным источником теплоснабжения в районных отопительных котельных. Котел предназначен для подогрева воды до 150 °С с перепадами 40 °С при пиковом режиме эксплуатации и 80 °С. Теплопроизводительность котла100 Гкал/час, водотрубной, прямоточный, П-образной компоновкой [5].
Основные тепловые характеристики котла предоставлены в таблице 1.2.
Котёл оборудован тремя комбинированными газомазутными горелками, расположенными на фронтовой стене топки. К основному режиму принято однопоточное питание котла от фронтового экрана топки.
Таблица 1.2
Тепловые характеристики котла.
| Наименование | Значение |
| Теплопроизводительность | 100 Гкал/час |
| Температура воды на входе | 700С/1100С |
| Температура воды на выходе | 1500С |
| Расход воды | 1235 т/час |
Размеры топочной камеры в плане 5696х6208мм, высота призматической части – 8590мм, объём топочной камеры – 383м3 , лучевоспринимающая поверхность экранов – 325м2.
Стены топочной камеры и промежуточного экрана полностью экранированы трубами 60х3 мм/сталь 20/ с шагом 64мм. Все трубы экранов соединены с камерами [5].
Для создания жестокой и прочной конструкции топочная камера снаружи обязана горизонтальными поясами жестокости. Обмуровка котла выполнена натрубной и состоит из трёх слоёв теплоизоляционных материалов:
огнеупорного шамотобатона армированного металлической сеткой № 60х3, вулканитовых изоляционных плит в металлической сетке № 20х2 и наружной штукатурки асбестоцементом с оклейкой х/б тканью.
Рисунок 1.2 Общий вид котла КВГМ-100
Котёл оборудован тремя комбинированными газомазутными горелками с паромеханическими форсунками типа “Титан”, установленными на фронтовой стене топки треугольником углов вверх. Горелки предназначены для раздельного сжигания газа и мазута. Производительность одной горелки по газу – 4000 м3/час. Газовая часть горелки состоит из газораздающей кольцевой камеры и двух газоподводящих труб ф159х4,5м. Газораздающая камера расположена в устье горелки и имеет однорядно-однокалиберную систему газовыходящих отверстий диаметром 18мм. К горелкам подводится два потока воздуха – первичный и вторичный. Вторичный воздух к горелкам поступает из общего короба вентилятора ВДН-18. Первичный воздух на каждую горелку из этого же короба. При работе на газе в грелку подаётся только вторичный воздух.
Рисунок 1.3 Чертеж котла КВГМ-100 в трех проекциях
Конструкцией горелок не предусмотрено индивидуальное регулирование расхода вторичного воздуха (распределение между горелками). Регулирование расхода вторичного воздуха осуществляется с помощью направляющего аппарата дутьевого вентилятора [5].
Котлоагрегат ГМ-50-14/250 (рисунок 1.4) предназначен для получения пара низкого давления при сжигании газа и мазута. Котлоагрегат однобарабанный с естественной циркуляцией, секционирован на ряд крупных транспортабельных блоков и узлов.
Рисунок 1.4 Общий вид котла ГМ-50-14/250
1 - топка, 2 - выносной цикл, 3 - задний экран,
4 - пароперегреватель, 5 - кипятильные трубы, 6 - воздухоподогреватель,
7 - чугунный водяной экономайзер.
Котел выполнен П-образной компоновки верхностей нагрева, с отдельно вынесенной шахтой водяного экономайзера. В топочной камере размещены испарительные экраны. Трубы фронтального и заднего экранов образуют подвухсветный наклонный под. В верхней поточной камеры трубы заднего экрана разведены в трехразрядный фестон. Трубы боковых экранов в верхней части образуют потолок топочной камеры. В поворотном газоходе находится котельный пучок, расположенный между барабаном и коллектором [5].
На котле предусмотрено специальное устройство для получения пара требуемого качества.
Ввод топлива в топку осуществляется с помощью газомазутных горелок Бел. КЗ, по две горелки на каждой на каждой стороне с мазутными форсунками, расположенными в один ярус на боковых стенках котла.
Форсунки устанавливаются по центру каждой горелки.
1.3 Используемое топливо на котлоагрегатах Комсомольской ТЭЦ-3.Его характеристика и состав.
1.3.1 Основное топливо
Все котлоагрегаеты, расположенные на территории Комсомольской ТЭЦ-3 полностью работают на Сахалинском природном газе.
Природный газ, является природным ископаемым, залежи которого располагаются в недрах Земли в газообразном состоятии. Природный газ от 92 до 98% состоит из метана
.Метан определяет свойства и характеристики природного газа. Помимо метана в состав природного газа входят такие вещества как: этан
, пропан
,бутан
,пентан
, гексан
, азот
, углекислый газ
.
В чистом виде природный газ не имеет ни цвета, ни запаха. Для облегчения определения места утечки, к нему подмешивают одоранты, вещества с неприятным запахом.
Природный газ является малоопасным продуктом и по степени воздействия на организм человека относится к 4-му классу опасности.
Предельно допустимая концентрация (ПДК) углеводородов природного газа в воздухе рабочей зоны равна 300 мг/м3в пересчете на углеводород в соответствии с ГОСТ 12.1.005-88. Предельно допустимая концентрация сероводорода в воздухе рабочей зоны 10 мг/м3, сероводорода в смеси с углеводородами С1-С5 3 мг/м3
Природный газ, как топливо, считается одним из экологически чистых источников энергии. При сжигании этого топлива почти не выделяется твердых частиц и при сгорании не выделяет копоти и дыма. Малое содержание вредных химических элементов в продуктах сжигания(в основном это различные оксиды азота, оксид углерода и бенз(а)пирен).Природный газ легко разгорается, а сам процесс горения легко контролировать.
Если смотреть количество выделенной энергии, при сгорании топлива, природный газ уступает только нефти. Но так, как газ практически не требует предварительной обработки, а нефть требуется сначала переработать, то природный газ считается экономически выгодным топливом для использования ее на ТЭЦ.
Ниже, в таблице 1.3 и 1.4, представлен состав и характеристика природного газа, используемый на Комсомольской ТЭЦ-3 [7].
Таблиц 1.3
Состав Сахалинского природного газа
| № | Название | % |
| 1. | Метан | 92,132 |
| 2. | Этан | 4.255 |
| 3. | Пропан | 2.046 |
| 4. | Изобутан | 0.341 |
| 5. | n-Бутан | 0.489 |
| 6. | Изопентан | 0.111 |
Продолжение таблицы 1.3
| № | Название | % |
| 7. | n-Пентан | 0.069 |
| 8. | Гексан + | 0.027 |
| 9. | Азот | 0.137 |
| 10. | Двуокись углерода | 0.481 |
| Итого | 100.0087 | |
Таблица 1.4
Характеристика и свойства газа
| Высшая теплотворность (МДж/ | 40.1 |
| Нисшая теплотворность (МДж/ | 36.3 |
| Относ.плотность | 0.62 |
| Коэф.Воббе (МДж/ | 51.1 |
| Влажность(частей на миллион, объемные) | 26 |
1.3.2 Мазут как резервное топливо
В качестве резервного топлива ТЭЦ-3 использует мазут марки М-100 (таблица 1.5)
Мазут топочный М-100 принадлежит к числу наиболее тяжелых видов топлива, для которых характерна высокая вязкость. Дело в том, что в данной жидкости присутствуют не только углеводороды, но и огромное количество нефтяных смол, золы, серы, а также молекул железа, никеля, марганца и прочих металлов [6].
Незначительное содержание золы и серы делает мазут «более экологичным» топливом по сравнению с любой другой тяжелой нефтью, однако высокая вязкость этой жидкости наделяет мазут м100 высокой температурой застывания. Снизить её чаще всего пытаются с помощью солярки (дизельного топлива), добавляя её при сохранении небольшого процентного соотношения.
Таблица 1.5
Характеристика мазута М-100
| № | Наименование показателя | Фактически |
| 1. | Вязкость при 100 условная, градусы ВУ | 1,8 |
| 2. | Зольность | 0,02 |
| 3. | Массовая доля механических примесей,% | 0,05 |
| 4. | Массовая доля воды,% | Отсутствие |
| 5. | Содержание водорастворимых кислот и щелочей | Отсутствие |
| 6. | Массовая доля серы,% | 1,0 |
| 7. | Массовая доля сероводорода | Отсутствие |
| 8. | Температура вспышки в открытом тигле, | 115 |
| 9. | Температура застывания, | 12 |
| 10. | Теплота сгорания (низшая) в пересчете на сухое топливо (небраковачная), кДж/кг | 40931 |
| 11. | Плотность при 20 | 922 |
)
, не более:















