Диплом (1203686)
Текст из файла
Содержание
Введение………………………..………………………………………………………3
1 Анализ технического состояния котельной с. Сергеевка и сжигаемого угля……4
-
Характеристика котла типа КВ-2………………………………...………5
-
Характеристика сжигаемого топлива………………...……………...…12
-
Описание действующей топки котлоагрегата…………………………12
-
Анализ существующих конструкций топки
сжигания угля……………………………………………………………17
2 Расчет выбросов загрязняющих веществ при сжигании угля……………………20
2.1 Анализ механизмов образования вредных веществ при горении……20
2.2 Расчет выбросов загрязняющих веществ
в атмосферу с дымовыми газами котлоагрегата……………………....…. 32
2.3 Расчет ПДВ вредных веществ в атмосферу из
котлоагрегата и сравнение с фактическими выбросами………….......…...35
-
Разработка экологических мероприятий по снижению выбросов вредных веществ в атмосферу…………………………………………………......39
3.1 Анализ методов снижения образования оксидов азота при сжигании низкосортных углей в топках котлов…………….……39
3.2 Новая конструкция двухъярусного топочного устройства и теплообменной секции водогрейных котлов для снижения выбросов оксидов азота…………….…………………...………….…...45
3.3 Рекомендация по применению группового циклона, разработанного сотрудниками, ДВГУПС для снижения выбросов золы ……….....…...….52
Заключение………………………....………………………………………………….54
Список использованных источников………………………………………………...55
Введение
Охрана окружающей среды от загрязнения промышленными выбросами является в настоящие время актуальной проблемой. Приоритетное место в её решение принадлежит вопросам защиты атмосферного воздуха.
По данным Госкомстата России, только от стационарных источников загрязнения промышленной предприятия в воздушный бассейн городов ежегодно поступает около 30 млн. т твердых веществ, способных оказывать отрицательное влияние на растительным животный мир и здоровья человека.
После вступления в действие Федерального закона «Об охране труда окружающей среды» требование по сокращению вредных выбросов становится доминирующим. В результате хозяйственной деятельности котельных парков в атмосферу поступает большое количество загрязняющих веществ, таких как высокотоксичные оксиды азота, оксид углерода, оксиды серы, твердые частицы, углеводороды и другие. Вредное воздействие на окружающую среду усиливается тем, что эти источники загрязнения располагаются, как правило, в жилых районах.
Отметим, что в настоящие время в отрасли наблюдается острая потребность в квалицированных кадрах и специалистах в области охраны окружающей среды и организации малоотходные технологий сжигания топлива с минимальных выбросов вредных веществ в атмосферу.
Тем самым, в данной курсовой работе, рассматривается котельная с. Сергеевки. Сделан анализ предприятия, расчет выбросов вредных веществ, сравнения их с предельно допустимыми выбросами и предложение по их снижению.
1 Анализ технического состояния котельной с. Сергеевка и сжигаемого угля
Районная котельная, находящиеся в с. Сергеевка, Хабаровского района обеспечивает тепловой энергией здания жилищного фонда и социально значимые объекты, с 2013 года котельная переоборудована на твердый вид топлива. На данной котельной установлено три котла: два водогрейных котла КВ - 1,74КБ производительностью 1,5 Гкал/ч; один водогрейный котел КВ-2 производительностью 1,72 Гкал/ч [9].
Установленная тепловая мощность котельной – 4,72 Гкал/ч.
Располагаемая тепловая мощность котельной – 4,72 Гкал/ч.
Подключаемая тепловая нагрузка потребителей 2,08 Гкал/ч.
Резервная мощность котельной – 2,64 Гкал/ч
Способ регулирования отпуска тепла – качественный, в зависимости от температуры наружного воздуха.
Температурный график 95-70 ˚С [9].
Котельная работает на буром Бородинском угле Красноярского месторождения.
Водоснабжение котельной осуществляется из технического водопровода собственной насосной стацией котельной.
Забор воздуха на горения осуществляется с улицы, а также из помещения котельной.
Схема теплоснабжения – 2-х трубная с совместной подачей тепла на отопление, вентиляцию. Горячее водоснабжение отсутствует.
Присоединение потребителей для целей отопления осуществляется напрямую. Способ прокладки трубопроводов тепловых сетей – подземный бесканальный, надземный.
Подпиточная вода подается без предварительной подготовки. Осуществляется с помощью двух подпиточных насосов КЛМ 2-40/130.
В таблицах 1.1−1.2 представлены технические характеристики основного оборудования [10].
Таблица 1.1
Основные характеристики котлоагрегатов сжигаемого топлива
| Марка котла | Тип котла | Производительность, Гкал/ч | Топливо |
| КВ-1,74 | Водогр. | 1,5 | уголь |
| КВ-1,74 | Водогр. | 1,5 | уголь |
| КВ-2 | Водогр. | 1,72 | уголь |
Таблица 1.2
Основные характеристики насосного оборудования котельной
| Назначение | Марка насоса | Подача, м3/ч | Напор, м | |
| Насос сетевой | КМЛГ 100/200 | 160 | 44 | |
| Насос подпиточный | КЛМ 2-40/130 | 12,5 | 15 | |
| Насос повысительный | КМЛГ 40/160 | 12,5 | 23 | |
| Насос рециркуляционный | КМЛГ-50/160 | 20 | 25 | |
-
Характеристика котла КВ-2
Водогрейный твердотопливный стальной отопительный котел КВ-2, мощностью 2,0 МВт (рис. 1.1) предназначен для получения горячей воды номинальной температурой на выходе из котла 115 °С рабочим давлением до 0,6 (6,0) МПа (кгс/см), используемой в системах централизованного теплоснабжения на нужды отопления [11].
Блок водогрейного котла КВ-2 МВт представляет собой сварную конструкцию, состоящую из трубной системы опорной рамы и каркаса с теплоизоляционными материалами, обшитого листовой сталью.
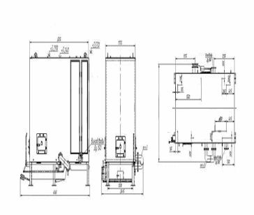
Рисунок 1.1 Котел водогрейный КВ-2
Котлы имеют П-образную сомкнутую компоновку. Топочная камера угольных котлов состоит из труб диаметром 57x3,5 мм.Конвективная поверхность нагрева состоит из пакетов, выполненных из труб диаметром 57x3,5 мм, для интенсификации теплообмена трубы пакетов расположены в шахматном порядке. Газы в конвективной части делают два хода и выходят через газоход в верхней части задней стенки котла. Топочная камера водогрейного котла выполнена газоплотной путем плавникового оребрения. В газоплотной части котельного блока изоляция выполнена облегченной из плит ПТЭ. В негазоплотной части котельного блока теплоизоляция выполнена из муллитокремнеземистого картона и войлока. Обшивка водогрейных котлов выполнена из стальных листов. Для очистки конвективных поверхностей нагрева от сажистых и золовых отложений предусмотрены двери.
При выборе котла, при переоборудовании котельной, были выделены особенности, из-за которых выбрали именно котел КВ-2 МВт [11]:
-
КПД свыше 80 %;
-
минимальный расход топлива;
-
компактные размеры;
-
быстрый выход на номинальную мощность: 2-4 часа;
-
запас по мощности 15 %, сверх номинальной;
-
минимальные требования к качеству питательной воды;
-
удобные люки для очистки поверхностей нагрева;
-
заводская гарантия 2 отопительных сезона.
Водогрейный котел КВ-2 МВт имеет систему движения потока воды исключающую образование застойных зон, перегрев поверхностей нагрева, обеспечивает хороший теплосъем, отсутствие накипи и, следовательно, необходимость в водоподготовке. Качественная газоплотная теплоизоляция котла КВ-2 гарантирует максимальное уменьшение потерь тепла через стенки котла и отсутствие присосов холодного воздуха в топку, делая процесс горения топлива более интенсивным и эффективным. Большой объем топочной камеры обеспечивает более полное выгорание топлива и снижает механический и химический недожог.
Котел КВ-2 с развитой конвективной поверхностью нагрева имеет температуру уходящих газов не более 200 °С и как следствие минимально возможные потери с уходящими газами. Котел КВ-2 МВт изначально разработан с целью снижения прямых затрат при производстве тепловой энергии за счет эффективного сжигания топлива и удобства его эксплуатации.
Технические характеристики котла представлены в таблице 1.3
Таблица 1.3
Технические характеристики котла водогрейного КВ-2
| Наименование параметра | Значения | |
| Теплопроизводительность, МВт | 2,0 | |
| Температура воды на входе, ºС | 70 | |
| Температура воды на выходе, ºС, не более | 115 | |
| Аэродинамическое сопротивление, Па | 500 | |
| Гидравлическое сопротивление, кгс/см² | 1,8 | |
| Рабочее давление воды, МПа (кгс/см²) | 0,6 (6,0) | |
| Расчётный КПД котла, % | 80 | |
| Номинальный расход воды через котел*, | 70 | |
| Расчет топлива, не более (при Q=6000 ккал/кг), кг/ч | 350 | |
| Расход сжигаемого топлива, кг/ч | 395 | |
| Габаритные размеры, не более, мм | Длина | 3600 |
| Ширина | 1850 | |
| Высота | 2650 | |
| Класс котла по КПД | 2 | |
| Температура уходящих газов в диапазоне , ºС | 170…250 | |
| Масса котла, кг | 6500 | |
Водогрейный твердотопливный котел КВ-2 с ТШПМ (рис. 1.2 и рис. 1.3) предназначен для работы в открытых и закрытых системах теплоснабжения с принудительной циркуляцией воды, используется в системах централизованного теплоснабжения на нужды отопления. Котел КВ-2 с топкой ТШПМ 2,0 работает в механизированных котельных и механическими подачей топлива и золошлакоудалением [9].
Водогрейный твердотопливный котел КВ-2 с ТШПМ выполнен двух блочным - блок котла и топка ТШПМ - механическая топка с шурующей планкой.
Гидравлическая схема водогрейного котла выполнена многоходовой, с множеством перегородок, для увеличения скорости воды в котле и исключения застойных зон и локального перегрева поверхностей нагрева. Кроме того, турбулизация водяного потока препятствует образованию пристенного кипения и отложения накипи на поверхностях нагрева. Котел КВ-2 с ТШПМ работают с принудительной циркуляцией теплоносителя, которую обеспечивают сетевые насосы. Теплоноситель последовательно проходит через топку ТШПМ, затем через котельный блок КВ-2.
Топочная камера водогрейного котла выполнена газоплотной. Газоплотность котла обеспечивается путем варки стальной полосы в межтрубное пространство топочных панелей. Ширина газоплотной полосы рассчитывается таким образом, чтобы обеспечивать ее стабильное равномерное охлаждение и не допустить перегрев и порыв в процессе эксплуатации котла. Качество обварки газоплостности обеспечивает исключение присосов холодного воздуха в топочную камеру котла и исключает выбивание дымовых газов в котельный зал котельной.
Легкая изоляция котла выполнена съемной, облегченной из плит ПТЭ. Плиты закрепляются на каркасе, обшивка водогрейного котла выполняется из стальных листов. Преимущества легкой изоляции - максимальная монтажная готовность котельного блока, его компактность, минимизация потерь КПД котла через потери тепла
в окружающую среду, за счет высокого качества обмуровки.
Газы в конвективной части котла проходят два хода и выходят через газоход в верхней части задней стенки котла. В случае установки котла в уже существующей котельной с газоходами, расположенными снизу котельной. Для очистки конвективных поверхностей нагрева от сажистых и золовых отложений в обшивке котла предусмотрены удобные люки.
Характеристики
Тип файла документ
Документы такого типа открываются такими программами, как Microsoft Office Word на компьютерах Windows, Apple Pages на компьютерах Mac, Open Office - бесплатная альтернатива на различных платформах, в том числе Linux. Наиболее простым и современным решением будут Google документы, так как открываются онлайн без скачивания прямо в браузере на любой платформе. Существуют российские качественные аналоги, например от Яндекса.
Будьте внимательны на мобильных устройствах, так как там используются упрощённый функционал даже в официальном приложении от Microsoft, поэтому для просмотра скачивайте PDF-версию. А если нужно редактировать файл, то используйте оригинальный файл.
Файлы такого типа обычно разбиты на страницы, а текст может быть форматированным (жирный, курсив, выбор шрифта, таблицы и т.п.), а также в него можно добавлять изображения. Формат идеально подходит для рефератов, докладов и РПЗ курсовых проектов, которые необходимо распечатать. Кстати перед печатью также сохраняйте файл в PDF, так как принтер может начудить со шрифтами.
/ч














