МОЙ ДИПЛОМ ЮСУПОВ (1202904), страница 12
Текст из файла (страница 12)
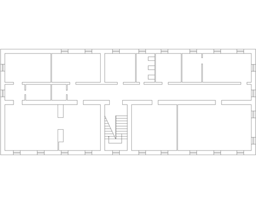
людей из помещений 2 этажа здания учебно-административного здания «Эксплуатационное управление ДВГУПС»
План эвакуации
людей из помещений 3 этажа здания учебно-административного здания «Эксплуатационное управление ДВГУПС»
Приложения Б
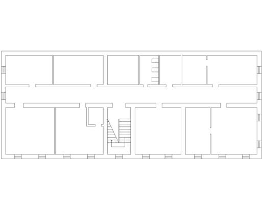
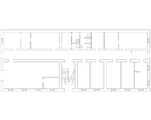
План - схема 1 этажа
План - схема 2 этажа
План - схема 3 этажа
Приложения В
Распределение пожаров в России в 2010 г. по причинам их возникновения
| Причины пожара | Количество пожаров | Количество погибших при пожарах | Прямой материальный ущерб | Фактор | ||||
| Абсо- лютное число | В % от общего числа | Абсо- лютное число | В % от общего числа | В млн. руб. | В % от общего числа | |||
| Неосторожное обращение с огнем | 75616 | 42,5 | 8779 | 53,3 | 3057,3 | 20,9 | Социальный | |
| Нарушение ПУиЭ электрооборудования | 42063 | 23,0 | 2114 | 22,8 | 5863,1 | 40,2 | Техногенный, социальный | |
| Нарушение ПУиЭ печного отопления | 23665 | 12,9 | 1150 | 10,9 | 883,2 | 6,0 | Техногенный, социальный | |
| Установленные поджоги | 17526 | 8,8 | 302 | 5,9 | 2390,7 | 16,4 | Социальный | |
| Нарушение правил эксплуатации транспортных средств | 10880 | 5,9 | 40 | 0,2 | 673,0 | 4,8 | Социальный | |
| Нарушение ПУиЭ газовых устройств | 1850 | 1,0 | 182 | 1,1 | 71,8 | 0,5 | Техногенный, социальный | |
| Нарушение правил пожарной безопасности при проведении электросварочных работ | 1237 | 0,7 | 8 | 0,0 | 162,6 | 1,11 | Социальный | |
| Неисправность производственного оборудования | 727 | 0,3 | 18 | 0,1 | 250,0 | 1,9 | Техногенный, социальный | |
| Нарушение ПУиЭ теплогенерирующей установки | 1050 | 0,5 | 72 | 0,4 | 63,4 | 0,4 | Техногенный, социальный | |
| Самовозгорание веществ и материалов | 582 | 0,3 | 6 | 0,0 | 43,3 | 0,3 | Природный | |
| Удары молнии | 687 | 0,4 | 3 | 0,0 | 62,2 | 0,4 | Природный | |
| Взрывы | 156 | 0,1 | 17 | 0,1 | 20,1 | 0,1 | Техногенный, социальный | |
| Неустановленные причины | 1534 | 0,8 | 130 | 0,8 | 608,7 | 4,2 | Социальный | |
| Прочие | 5222 | 2,8 | 237 | 4,4 | 409,5 | 2,8 | Социальный | |
| Итого | 182795 | 100,0 | 16449 | 100,0 | 14561,9 | 100,0 | ||
2
















