ПЗ Скотельник (1195636), страница 8
Текст из файла (страница 8)
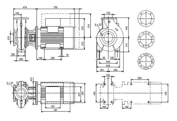
№ 3 - NB 150-400/408
Рисунок 5 – Характеристики насоса NB 150-400/408 A-F1-A-GQQE
Таблица 3 – Характеристики насосного агрегата
| Описание | Значения |
| Наименование продукта | NB 150-400/408 A-F1-A-GQQE |
| Частота вращения | 980 об/м |
| Общий гидростатический напор насоса | 23,62 м |
| Текущий диаметр рабочего колеса | 408 мм |
| Номин.рабочее колесо | 400 мм |
Рисунок 6 – Насос NB 150-400/408 A-F1-A-GQQE
Для системы
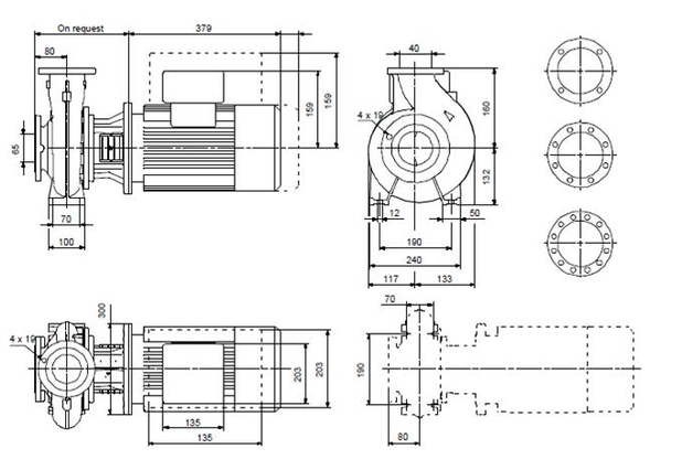
№ 5 - NВ 32-200.1/172
№ 6 - NВ 32-200.1/172
Таблица 4 – Характеристики насосного агрегата
| Описание | Значения |
| Наименование продукта | NB 32-200.1/172 A-F2-A- BAQE |
| Частота вращения | 2920 об/м |
| Общий гидростатический напор насоса | 31,7 м |
| Текущий диаметр рабочего колеса | 172 мм |
| Номин.рабочее колесо | 200.1 мм |
Рисунок 7 – Характеристики насоса NB 32-200.1/172 A-F2-A- BAQE
Рисунок 8 – Насос NB 32-200.1/172 A-F2-A- BAQE
Для системы
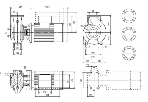
№ 7 - NВ 40-160/158
№ 8 - NВ 40-160/158
№ 9 - NВ 40-160/158
Рисунок 9 – Характеристики насоса NB 40-160/159 B-F2-A- BAQE
Таблица 5 – Характеристики насосного агрегата
| Описание | Значения |
| Наименование продукта | NB 40-160/159 B-F2-A- BAQE |
| Частота вращения | 2910 об/м |
| Общий гидростатический напор насоса | 30,22 м |
| Текущий диаметр рабочего колеса | 158 мм |
| Номин.рабочее колесо | 160 мм |
Рисунок 10 – Насос NB 40-160/159 B-F2-A- BAQE















