Зайнагабдинов. Система ОПС ОКОНЧАТЕЛЬНО (1195338), страница 4
Текст из файла (страница 4)
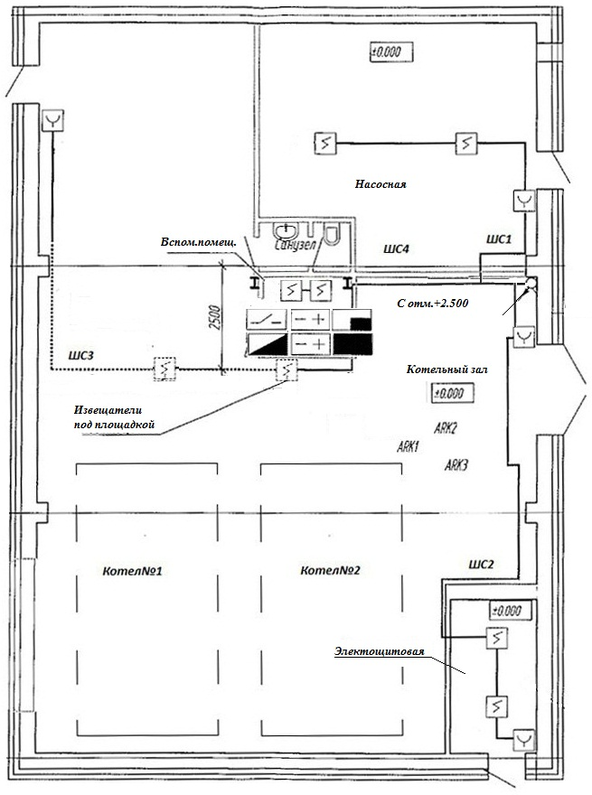
Рисунок 2.2 – Схема построения системы ОПС
Расчет числа пожарных извещателей
Расчет необходимого количества пожарных извещателей осуществляется по методике, изложенной в СП 5.13130.2009 “Системы противопожарной защиты. Установки ПС и пожаротушения автоматические. Нормы и правила проектирования.”
Контролируемая площадь одним точечным дымовым пожарным извещателем, максимальное расстояние извещателя до стены и между извещателями определять поданным таблицы 2.3. При этом не должны быть превышены величины, указанные в паспортах на извещатели.
Таблица 2.3 – Расчет размещения дымовых пожарных извещателей.
| Высота защищаемого помещения, м | Средняя площадь, контролируемая одним извещателем, м2 | Максимальное расстояние, м | |
| между извещателями | от извещателя до стены | ||
| До 3,5 | До 85 | 9,0 | 4,5 |
| Св. 3,5 до 6,0 | До 70 | 8,5 | 4,0 |
| Св. 6,0 до 10,0 | До 65 | 8,0 | 4,0 |
| Св. 10,5 до 12,0 | До 55 | 7,5 | 3,5 |
Количество пожарных извещателей на заданную площадь рассчитывается по формуле:
ИП=Sпом./hп. (2.2)
где Sпом - площадь помещения;
hп.п - средняя площадь, контролируемая одним извещателем;
Исходя из таблицы расчёта ИП, площадь помещений позволяет применить по одному извещателю. Исходя из требований к пороговым системам с радиальным ШС, в каждое помещение установим, как минимум, по два извещателя, чтобы первая сработка выдавала на ПКП сигнал “Внимание”, а при сработке второго в этом же шлейфе - “Пожар”.
Таблица 2.4 – Расчет числа пожарных извещателей в помещениях.
| № п/п | Наименование кабинета | Площадь кабинета, м2 | Высота потолочного перекрытия, м | Количество ИП |
| 1 | Электрощитовая | 8 | 2,5 | 2 |
| 2 | Насосная | 35,5 | 2,5 | 2 |
| 3 | Диспетчерская | 4 | 2,5 | 2 |
| 4 | Котельный зал |
Пожарные извещатели установим в следующие помещения:
-
Электрощитовая, здесь расположенное высоковольтное электрооборудование, поэтому от мало уловимого задымления до пожара будет важна скорость срабатывания извещателя, самым оптимальным вариантом будет установка оптико-электронных дымовых пожарный извещатель, возле двери перед выходом на высоту крепим ИПР;
-
Насосная, здесь произведем аналогичный монтаж с двумя ИП и одним ИПР перед дверью;
-
Диспечерская, установка двух ИП ;
-
Котельный зал, большая часть территории занята силовым оборудованием котлов. Крепление ИП произведем под площадку, на места выходов ставим ИПР;
-
Котельный зал второго этажа, установка точечных пожарных извещателей будет сложной и дорогой, так как высота здания составляет 12 метров. Более выгодным решением будет установить линейно пожарные извещатели на стены.
Как указано в СП 13.5.4, в помещениях высотой свыше 12 м и до 21 м линейные извещатели, как правило, следует устанавливать в два яруса. Исходя из этого, для контроля котельного зала первого и второго этажа допускается применить дымовые пожарные извещетели в один ярус, так как высота до потолка от нижней точки составляет 11 метров. По СП 13.5.2 излучатель и приемник ИПДЛ следует разместить таким образом, что бы в его зону обнаружения не попадали различные объекты, что повлияют на его работоспособность.
Для монтажа применим два комплекта ИПДЛ-Д-2/4Р (извещатель пожарный оптический линейный дымовой двухпозиционный). Однопозиционный ИПДЛ дороже двухпозиционного, этим мы компенсируем сокращением расходов на приобретение оборудования. Из СП 13.5.3 при контроле защищаемой зоны двумя и более линейными дымовыми пожарными извещателями в помещениях высотой до 12 м максимальное расстояние между их параллельными оптическими осями должно быть не более 9,0 м, а оптической осью и стеной - не более 4,5 м. Минимальное и максимальное расстояние между извещателем и отражателем будет определяется техническими данными на извещатели конкретных типов. При использовании двух комплектов в технической документации ИПДЛ-Д-2/4Р указанно, при расстоянии 8-50 м между извещателем и отражателем, расстоянии между приборами должна составлять не менее 2,5 м.
При установки линейных извещателей от стены на 4 м расстояние между оптическими осями составит 4 м, что не нарушает СП 13.5.3.
Установка ручных пожарных извещателей ИПР определяется по своду правил СП 5.13130.2009 на стенах и конструкциях на высоте (1,5 ± 0,1) м от уровня земли или пола до органа управления (рычага, кнопки и т.п.); на расстоянии не менее 0,75 м от других органов управления и предметов, препятствующих свободному доступу к извещателю; на расстоянии не более 50 м друг от друга внутри зданий и не более 1 50 м друг от друга вне зданий.
В соответствии с рекомендациями, приведенными в Приложении Н к СП 5.13130.2009, в производственных зданиях ручные извещатели должны устанавливаться у выходов из цехов, складов и т.п., вдоль эвакуационных путей, в коридорах, а также на лестничных площадках каждого этажа, в кабельных сооружениях у входа в туннель, у аварийных выходов из туннеля и у разветвлений туннелей.
В качестве устройства концентрации применим ПКП «Сигнал-20П SMD», работающий с неадресными шлейфами, контактами и сигнализаторами с нормально-замкнутыми или нормально-разомкнутыми контактами. В приборе используется релейное управление внешними исполнительными устройствами. ПКП «Сигнал-20П SMD» обеспечивает:
-
Управление шестью исполнительными устройствами (световые и звуковые оповещатели, электромагнитные замки, модули порошкового или аэрозольного пожаротушения, видеокамеры и др.) по интерфейсу RS-485
-
Контроль исправности цепей подключения исполнительных устройств (отдельно на ОБРЫВ и КЗ)
-
Защита от включения исполнительных устройств при различных неисправностях блока (например, выходе из строя его элементов
-
2 программируемых технологических шлейфа
-
Передачу служебных и тревожных сообщений по интерфейсу RS-485 на пульт «С2000» / «С2000М», ППКУП «С2000-АСПТ» или АРМ «Орион» /АРМ «Орион Про»
-
Контроль вскрытия корпуса блока
-
Контроль напряжения питания
-
Световую индикацию состояния прибора, каждого выхода, шлейфов, интерфейса RS-485
-
Два ввода питания: для подключения основного и резервного источников питания, напряжением от 12 В до 24 В. Неисправность линии электропитания одного из источников (короткое замыкание или обрыв) не сказывается на работе другого.
Прибор имеет 20 шлейфов сигнализации, из них 6 возьмем для пожарной сигнализации. Прибор показан на рисунке 2.3.
INCLUDEPICTURE "https://20.img.avito.st/1280x960/1555612420.jpg" \* MERGEFORMATINET
Рисунок 2.3 – Контрольно-приемный прибор «Сигнал-20П SMD»
Для проектирования охраной сигнализации предварительно исследованы возможные места взлома злоумышленника. Как правило, это двери и окна; это является первым рубежом охраы. На дверях смонтируем магнитно-контактные извещатели открытия двери, а на окнах - датчики разбития стекла. Вторым рубежом будут радиоволновые извещатели, устанавливаемые внутри помещения. Их применения обусловлено тем, что из-за неравномерного перепада температур в котельном зале инфракрасные извещатели могут давать ложное срабатывание. На шлейфы охраной сигнализации выделим оставшийся разъемы ПКП:
-
Электрощитовая, монтируем магнитно-контактный извещатель на дверь, один радиоволновой, что бы охраняемая зона контролировала дверной проход;
-
Насосная, монтируем магнитно-контактный извещатель на дверь, один радиоволновой, что бы охраняемая зона контролировала дверной проход;
-
Котельный зал, на двухстворчатую дверь монтируем три комплекта магнитно-контактный извещателя, на одностворчатую дверь в (другом конце зала) один комплект. На оконный проем ставим акустический датчик разбития стекла. Для контроля второго рубежа применим три комплекта радиоволновых извещателей, они будут охранять зону всех входных дверей, а также зону оконного проема;
-
Котельный зал второго этажа, здесь располагаются две двери пожарного выхода, где применим на каждую по компоекту магнитно-контактах извещателей, на каждый оконный проем поставим по одному акустическому датчику разбития стекла.
В помещениях, где люди находятся в шумозащитном снаряжении или в помещениях с уровнем звука шума более 95 дБ система оповещения и управления эвакуацией (СОУЭ) должна применять звуковые и световые оповещатели. Для СОУЭ звукового исполнения в помещениях установим “Свирель-023”. Прибор выполнен на основе пьезоэлектрического звукового излучателя, что позволяет получить высокую экономичность при большом уровне звукового давления. Встроенный генератор обеспечивает свиппированный тревожный звук.
Прибор “Свирель-023”позволяет обеспечить звуковую сигнализацию на объектах, оборудованных современными приемно-контрольными приборами типа "Сигнал-20", С2000-КПБ" и импортными приборами с резервным питанием 12 В.
На световое исполнение сигнализации установим табличку “Молния-12”, что будет обозначать эвакуационные пути при возникновении опасности, а также служить в качестве информационного табло. Включение оповещателя происходит после подачи питающего напряжения. Корпус оповещателя выполнен разборным для возможной замены надписи. Разборка осуществляется путем снятия верхней крышки оповещателя, выполненной на защелках. Примеры стандартных надписей: «Выход», «Пожар». Для запуска звукового и светового оповещения установим контрольно-пусковой блок “C2000-КПБ”. Он имеет 6 контролируемых выходов для задействования исполнительных устройств. Прибор показан на рисунке 2.4
Рисунок 2.4 - Контрольно-пусковой блок “C2000-КПБ”
Один из самых вопросов: куда будет приходить сигнал с ПКП? В случае наличии охраны на объекте, сигнал приходит в диспетчерскую охранного предприятия. Но не каждая организация сможет оплачивать ее услуги. При такой ситуации существуют следующие варианты:
А) объект сдается под охрану периодически на пульт вневедомственной охраны;
Б) применяется система автодозвона; в случаи срабатывании ОПС по заранее запрограммированным телефонным номерам передается речевое сообщение о факте пожара или проникновения на объект;
В) применение того же алгоритма, но с применением GSM-автодозвона.
Для организации сбора системных сообщений, объединения шлейфов сигнализации в разделы, создания перекрестных связей между разделами и выходами приборов и расширения их возможностей отображения информации произведем установку в диспетчерскую пульта управления типа "С2000M". Обмен информацией между пультом и периферийными приборами производится по интерфейсу RS-485 с использованием протокола «Орион». Питание пульта управления “C2000-ИТ” осуществляется от отдельного источника питания.
Для передачи извещения на пульт централизованного наблюдения установим телефонный информатор “C2000-ИТ”. Он передает извещение по проводной коммутируемой телефонной линии. Прибор работает в двух режимах -совместно с пультом управления “C2000М” и без пульта. Информатор показан на рисунке 2.5.
Рисунок 2.5 – Информатор телефонный “C2000-ИТ”
Проектные схемы размещения извещателей на обоих этажах объекта, которые разработаны с учетом приведенных выше расчетов и доводов, приведены на рисунках 2.6, 2.7.















