Зайнагабдинов. Система ОПС ОКОНЧАТЕЛЬНО (1195338), страница 3
Текст из файла (страница 3)
Рисунок 1.8 – Объектовая схема охранно-пожарной сигнализации.
Автономная охранно-пожарная система показана рисунке 1.9, пожарные и охранные извещатели подключаются к ПКП, который при срабатывании выдает сигнал на световой и звуковой оповещатели, которые замещены за пределами охраняемого помещения. Тревожные сигналы обнаружив люди находящиеся в пределах действия оповещателей, и передают по телефону в полицию, либо в пожарную охрану устные сообщения. Эффективность такой системы не определенна, так как сигнал тревоги может быть не принят посторонними людьми и не передан по назначению. Кроме того, нет разделения сигналов охранных и пожарных, что ведет большей потери времени. С точки зрения эффективности такая система может применяться на небольших объектах, которые размещаются на одной территории и повергаются постоянному контролю со стороны профессионально подготовленных людей (обходчики, сторожа, работники охраны).
Рисунок 1.9 – Автономная система охранно-пожарной сигнализации
В отличие от автономной, централизованная система информацию о состоянии объекта передает через канал связи (телефонный или радио пульт централизованного наблюдения (ПЦН), установленный в пункте охраны. Как правило, ЦС находится в ведении центра "Охрана" МВД. На пункте охраны установлено круглосуточное дежурство, оператор при получении передает сообщение о пожаре на ЦППС (центральная приемо-передающая станция). Таким образом, ЦС имеет замкнутый цикл прохождения информации от извещателя до пожарной охраны.
1.3 Характеристики объекта
Газовая котельная размещена в железобетонном здании со скатной крышей. В здании четыре основных помещения, одно из них - котельный зал, в котором имеется верхняя площадка (ее можно считать вторым техническим этажом). Котлы работают на автоматическом оборудовании, поэтому постоянного присутствия обслуживающего персонала в котельном зале не требуется, достаточно периодического визуального контроля работы оборудования.
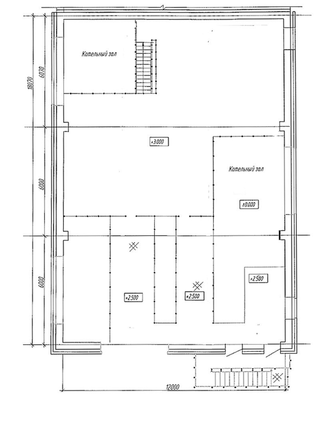
На первом этаже (рисунок 1.10) имеется вход в котельный зал - через главную двухстворчатую дверь. Также в здании располагаются пожарные выходы через одностворчатые двери. Помещение освещается при помощи ламп накаливания. Площадь помещения на первом этаже равна 170,8 кв. м, здесь расположены котлы с газовыми горелками и контрольно-измерительными приборами. На первом этаже проходят трубопроводы, смонтированы шкафы автоматики для обслуживания котлов, подпиточные насосы и другое силовое оборудование. Имеется один оконный проем.
Вход в электрощитовую осуществляется с торца здания через одностворчатую дверь. В помещении располагаются электрощиты с высоким напряжением, освещается помещение при помощи ламп накаливания. Оконных проемов нет. Площадь помещения равна 8 кв. м.
Вход в насосную осуществляется через одностворчатую дверь. В помещении находятся силовые установки насосов, насосная освещается при помощи ламп накаливания. Площадь помещения 33,5 кв. м.
Вход в диспетчерскую (это - также вспомогательное помещение) осуществляется из котельного зала первого этажа через одностворчатую дверь, помещение освещается при помощи ламп накаливания. Площадь помещения равна 4 кв. м. Площадь сан, узла 2,5 м2.
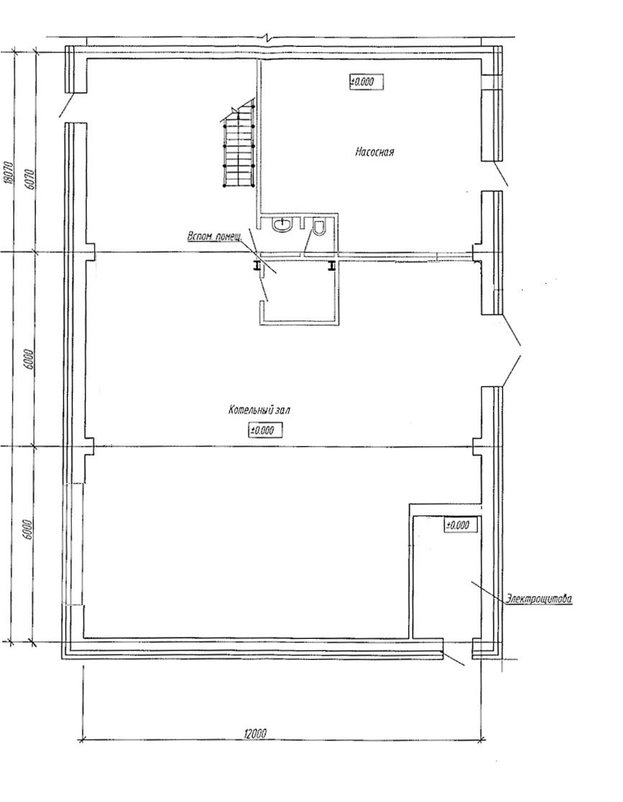
Второй этаж котельного зала (рисунок 1.11) частично занят трубопроводом и электро-задвижками. Имеется площадка из перфорированного материала (на уровне +2.500) для работы персонала по обслуживанию контрольно-измерительных приборов, что расположены на котлах. Имеются приточно-вытяжная система и дымовые трубы для отвода газов, вырабатываемы в процессе горения. На втором этаже имеются 4 оконных проема, в которые встроены два запасных пожарных выхода с одностворчатыми дверями. Снаружи к выходам подходят пожарные лестницы. Высота потолка зала от пола первого этажа (точка 0.000) составляет 12 метров.
Рисунок 1.10 – Схема первого этажа.
Рисунок 1.11 – Схема второго этажа
2 СХЕМНЫЕ И КОНСТРУКТИВНЫЕ РЕШЕНИЯ
2.1 Выбор системы ОПС
В настоящее время на рынке России доминирует отечественное оборудование систем ОПС. Основными используемыми комплексами являются следующие: «Рубеж», «Орион», «Гранит», «ЯУЗА-Ех», «Ладога-Ех», «Астра», «КОДОС», «ВЭРС-hybrid». Опишем каждую из систем и произведем выбор оборудования, наиболее подходящего для нашего объекта.
Компания «Сигма-ИС» разработала микропроцессорную систему пожарной сигнализации типа «Рубикон». Отличительной особенностью рассматриваемой адресной системы является её многофункциональность при использовании в качестве линий связи одной двухпроводной электрической соединительной линии (кольцевого шлейфа). Режим автоматического присвоения адреса и возможность его визуального считывания у всех адресных компонентов (при наличии соответствующего уровня доступа) снижает до минимума объем пуско-наладочных работ, а контроль чувствительности и автоматический дистанционный контроль работоспособности у пожарного извещателя упрощает его техническое обслуживание. Сетевой контроллер адресного шлейфа СКАШ «Рубикон» - компонент интегрированной системы безопасности «Рубеж-08» -поддерживает подсистему пожарной (охранно-пожарной) сигнализации со 127 адресными устройствами.
Для малых объектов, где не требуется применение большого числа шлейфов и оборудования для охранно-пожарной сигнализации разработано семейство "Гранит". Главным его достоинством является применение GSM-связи для оповещения удаленных служб о пожаре или взломе. В отличие от системы «Рубикон», в рассматриваемой системе используется пороговое обнаружение срабатывания извещателя. У ПКП имеются релейные выходы для подключения светового и звукового оповещателей. Световой оповещатель выключен, когда все ШС сняты с охраны, светится непрерывно после взятия ШС под охрану и мигает при любом нарушении ШС. Звуковой оповещатель выдает непрерывный сигнал при извещениях "Неисправность" и "Тревога" (длительностью до 3 мин) и прерывистые сигналы при извещенияи "Пожар" (периодичность 1 с).
Интегрированную систему безопасности "Стрелец-Интеграл" поставляет ЗАО "АРГУС-СПЕКТР”. Главное отличие оборудования - объединение радиоканальной, проводной адресной и неадресной системы ОПС в единую систему, позволяющую оборудовать объект практически любой сложности и емкости. Срок работы автономного (беспроводного) извещателя от комплекта батарей составляет 5 лет.
Интегрированная система охраны "Орион" разработана и производится НВП "Болид. Также этой компанией выпускается самый популярный адресно-аналоговый дымовой пожарный извещатель отечественного производства ДИП-34А. Система может конфигурироваться для использования на объектах различного масштаба Все доступные виды архитектуры, под которые может конфигурироваться оборудование, отражаются трехуровневой моделью, показанной на рисунке 2.1.
Рисунок 2.1 – Трехуровневая модель функционирования системы "Орион"
На небольших по размеру или сложности объектах система «Орион» ограничивается применением одного или нескольких приборов в автономном режиме работы (нижний уровень). При этом возможности системы определяются функциями каждого прибора. Так, можно реализовать системы охранной и пожарной сигнализации, несложные системы контроля и управления доступом, локальную автоматику газового и порошкового пожаротушения. Интеграция в этом случае ограничена простой передачей сигналов от одной системы к другой с помощью релейных выходов приборов. Пользователь может управлять такими приборами непосредственно с помощью встроенных или подключаемых устройств: кнопок и считывателей.
Для перехода к «распределенной» системе безопасности используется средний уровень системы «Орион», в котором к приборам нижнего уровня добавляются пульт управления (сетевой контроллер) и вспомогательные устройства: релейные модули, клавиатуры, блоки индикации и др. Пульт управления выполняет две основные функции: аппаратное объединение отдельных приборов с помощью единого системного интерфейса RS-485 и информационное объединение оборудования с помощью общего протокола обмена. Пульт управления имеет встроенную клавиатуру и индикацию, используемые пользователем для централизованного управления системой. Линии связи за счет различной конфигурации («дерево», «шина» «кольцо») расширяют топологию простых радиальных ШС и позволяют на несколько километров увеличить расстояние от поста охраны до крайнего извещателя. Вспомогательные устройства пользователь использует для управления системой и получения от нее необходимой информации в нужном виде. Для обеспечения высокой надежности в основные приборы системы «Орион» заложена функция перехода на автономную работу в случае нарушения связи с пультом управления.
Таким образом, средний уровень имеет следующие качественные признаки:
-
все приборы осуществляют обмен информации с ПУ
-
приборы с разными функциями без потери взаимосвязи могут быть разнесены по территории объекта, установлены в отдельных помещениях (аппаратных) или в недоступных посторонним местах (запотолочном пространстве)
-
возможности управления системой расширяются за счет объединения ШС в группы (разделы охраны)
-
в системе контроля доступа появляется централизованная база ключей
-
количество приборов и вспомогательных устройств в системе определяется возможностями пульта управления
-
образуются перекрестные логические связи между ШС одного прибора и релейными выходами другого
-
информационные команды, передаваемые по общей линии связи, приходят на смену релейным сигналам управления и сопутствующим соединительным кабелям
-
автоматизированы процедуры управления разделами охраны (группами ШС) и группами релейных выходов.
Верхний уровень полностью опирается на использование системного программного обеспечения. Программное обеспечение (ПО) обычно применяется в следующих случаях: на объекте требуется организация круглосуточного поста охраны или диспетчерской с автоматизированными рабочими местами; объект настолько большой, что для его оснащения недостаточно оборудования, обслуживаемого одним пультом управления, и требуется объединить нескольких локальных систем.
Верхний уровень построения системы «Орион» позволяет объединить несколько локальных систем «Орион» и использовать массовые процедуры постановки на охрану и снятия с охраны. ОПС «Орион» может интегрироваться с системой видеонаблюдения.
В таблице 2.1 приводятся технические и ценовые характеристики оборудования ОПС различных производителей.
Таблица 2.1 – Технические характеристики систем ОПС
Характеристика | ТИПЫ СИСТЕМЫ | |||
| “ОРИОН” | “ГРАНИТ” | “РУБЕЖ” | “КОДОС” | |
| Количество приборов объединяемы интерфейсом RS-458, (шт) | 127 | - | 60 | - |
| Тип используемых дымовых датчиков в системе | Адресные, адресно-аналоговые, пороговые | Пороговые, адресные, адресно-аналоговые | Адресные, адресно аналоговые, пороговые | Адресные, адресно-аналоговые |
| Максимальная длина интерфейса RS-458, без повторителей интерфейса, (м) | 1500 | - | 1000 | 1200 |
| Вид связи с пунктом централизованного наблюдения | GSM, радиоканал, проводной | GSM, радиоканал, проводной | GSM, радиоканал, проводной | GSM, проводной |
| Максимальная длина лини связи, (м) | Не более 1000 | Не более 1600 | Не более 1000 | Не более 1600 |
| Информативная ёмкость не адресных приборов, (ШС) | 20ШС | 24ШС | - | - |
| Цены на ПКП, (руб) | От 1500 | От 5000 | От 7000 | От 10 000 |
Принимая во внимание достоинства и недостатки различного оборудования, остановим свой выбор на системе «Орион». Эта система обладает высокой функциональностью, легко конфигурируется под объект и обладает сравнительно низкой стоимостью.
2.2 Схемное решение и размещение оборудования на объекте
Применим сетевую топологию “звезда”, из-за малого числа шлейфов и удобного расположения помещений. Приемно-контрольный прибор будет располагаться в центральной части здания, извещатели – по его периферии.
Разработанная схема построения системы ОПС с использованием оборудования фирмы «Орион» приведена на рисунке 2.2.
Основным узлом системы является приемно-контрольный прибор типа “Сигнал 20SMG”, который принимает сигналы от извещателей. Для их подключения предусмотрены 20 шлейфов сигнализации. Для программирования и управления блоками используется прибор типа С2000М, который принимает и передает информацию через интерфейс RS485. Для средств оповещения и дальнейшего наращивания системы применен контрольно-пусковой блок С2000КПБ, к нему подключены звуковые извещатели. Для световой оповещения внутри помещения устанавливают световые таблички “Выход”. С целью обеспечения централизованного контроля состояния объекта, в схему включен блок телефонного информирования типа С2000ИТ. По коммутируемой телефонной линии он будет отправлять информацию в формате AdemcoContact ID о состоянии охраняемого объекта на пульт централизованной охраны и в подразделение МЧС. Все приборы системы питаться от резервированного источника питания, снабженного раздаточной клеммной коробкой.















