ВКР настя (1189831), страница 2
Текст из файла (страница 2)
- плотность от 700 до 900 кг/
;
- давление насыщенных паров не более 66,7 кПа (500 мм рт.ст.);
- вязкость от 0,05·
до 1,0·
/с;
- массовая доля парафина до 7,0%;
- массовая доля серы до 3,5%;
- массовая доля воды до 1,0%;
- массовая доля хлористых солей до 900 мг/
;
- массовая доля механических примесей до 0,05%;
- максимальный размер механических примесей твердостью до 7 по шкале Мооса 5,0 мм;
Параметры процесса горения:
- Низшая теплота сгорания - 43 260 кДж / кг;
- Линейная скорость выгорания - 0,15 м/ч;
- Удельная скорость выгорания - 0,04 кг/м 2с;
- Среднеповерхностная плотность теплового излучения пламени - 25 кВт/м2.
Нефть относят к легковоспламеняющимся жидкостям 3-го класса по ГОСТ 19433. Категория взрывоопасности и группа взрывоопасных смесей паров нефти с воздухом - IIA-T3 по ГОСТ Р 51330.11. Температура самовоспламенения нефти выше 250 °С.
При загорании нефти применяют средства пожаротушения: распыленную воду, химическую и механическую пену; при объемном тушении применяют порошковые огнетушители, углекислый газ, при тушении жидкостью - бромэтиловые составы (СЖБ), перегретый пар, песок, асбестовые покрывала, кошму и другие средства.
-
СИСТЕМА АВТОМАТИЧЕСКОГО ПОЖАРОТУШЕНИЯ НЕФТЕПЕРЕКАЧИВАЮЩЕЙ СТАНЦИИ №34
-
Назначение
Система автоматического пожаротушения НПС №34 предназначена для:
-
тушения МНС высокократной полидисперсной пеной;
-
тушения ПНС низкократной полидисперсной пеной;
-
тушения резервуаров РВСПК 50000 низкократной пеной комбинированным способом (сверху и в нижний пояс);
-
охлаждения резервуаров РВСПК 50000;
-
тушения резервуаров РВС 5000 низкократной пеной в нижний пояс резервуаров;
-
охлаждения резервуаров РВС 5000;
-
включения световой и звуковой сигнализации о возникновении пожара;
-
обмена информацией со смежными системами (АСУ ТП, системой газового пожаротушения помещения кроссовых панелей, системой пожарной сигнализации помещения КИПиА, КИПиА при МНС, КИПиА при ЩСУ 210, в ЗРУ, компрессорной при МНС, в узле с предохранительными устройствами).
Кратность пены – отношение объема пены к объему ее жидкой фазы. В настоящее время применяют на практике пены только низкой или только высокой кратности. Локальное пожаротушение на поверхности горючей жидкости позволяют ограничиться пеной низкой кратности для быстрого достижения целей пожаротушения. В случаях вынужденного объёмного пожаротушения необходимо получить высокую кратность пены, заполняющую защищаемый объект и оперативно ликвидирующую пожар.
Функции контроля и управления системой пожаротушения НПС №34 выполняются автоматизированной системой управления пожаротушением.
Дежурное состояние системы автоматического пожаротушения.
Дежурное состояние СПТ соответствует следующим условиям:
- все зоны пожаротушения находится в режиме «Ожидание» и готовы к автоматическому пуску;
- установлен режим автоматического пожаротушения для защищаемых объектов;
- для всех насосов, электроприводных задвижек, пожарных извещателей отсутствуют предупреждающие отметки - «неисправность»;
- все электроприводные задвижки находятся в положении «Закрыто»;
- уровень в резервуаре противопожарного запаса находится в положении «max» и температура воды находится в диапазоне от +50С до +350С;
- температура воздуха в помещении насосной пожаротушения не ниже +50С;
- один насос из группы Н1.1, Н1.2 и Н1.3 установлен в режим «Автоматический», а два в «Резервный» режим работы;
- давление в сети растворопроводов и ёмкостях расширительных мембранных пожарных 0,05-0,3 МПа;
Комплексная автоматическая система пожаротушения включает в себя:
- Насосы типа ЦНС-500-160 и 1Д630-90;
- Баки-дозаторы БДП-10000Г;
- Мембранная расширительная емкость МРП-1000;
- Резервуары противопожарного запаса воды РВС-5000;
- Кольцевые растворопроводы;
- Кольцевые водопроводы;
- Запорная арматура (электроприводные задвижки, ручные задвижки, предохранительные клапана, обратные клапаны и т.д.);
- Внутренняя разводка пенопроводов с пенными насадками в резервуаре;
- Фильтрующие устройства;
- Пеногенерирующие устройства;
- Дренажные устройства;
- Пожарные извещатели, контрольно-измерительные приборы, приборы управления (система автоматизации);
- Узлы для подключения передвижной пожарной техники.
-
Состав энергетического оборудования
В состав системы автоматического пожаротушения входит следующее оборудование:
-
Щит силовой 351ЩСУ УХЛ3, Iн = 630А;
-
Двигатели насосов:
-
5АМН315М4У3 , мощность =250кВт (2 шт.);
-
А4-85/37К , мощность = 400 кВт (3 шт.);
-
Двигатели приводов задвижек АИМ-А80В2УХЛ1-с/2700об/мин, мощность = 5,2 кВт (6 шт.);
-
Двигатели приводов задвижек АИМ-А63А2УХЛ1-с/2750об/мин, мощность = 1,15 кВт (3 шт.);
-
Двигатель привода задвижки АИМ-А80В2УХЛ1-с/3000об/мин, мощность = 5,2 кВт (6 шт.).
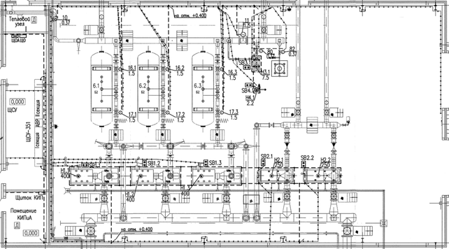
На рисунке 2.1 представлена схема расположения электрооборудования пожарной насосной станции.
Рисунок 2.1 - Схема расположения электрооборудования пожарной насосной станции
-
Функции автоматической системы управления пожаротушением
АСУ ПТ НПС №34 выполняет следующие функции:
-
обеспечение непрерывного функционирования автоматических установок пожарной сигнализации технологических сооружений, защищаемых установками пенного пожаротушения и водяного охлаждения;
-
управление и непрерывный контроль за техническим состоянием управляемого оборудования установок пенного пожаротушения и водяного охлаждения;
-
информационный обмен с другими локальными установками пожаротушения и другими информационно-управляющими и измерительными системами (в частности, передача информации в АСУ ТП НПС);
-
формирование сигнала «Пожар» по алгоритмам работы АСУ ПТ НПС №34;
-
формирование визуальной и звуковой сигнализации на АРМ АСУ ПТ в операторной;
-
формирование визуальной и звуковой сигнализации на панели сигнализации в насосной станции пожаротушения;
-
включение звуковых и световых оповещателей;
-
управление задвижками пожаротушения;
-
пуск рабочих насосов подачи раствора пенообразователя;
-
автоматическое повторное включение задвижек и насосов при исчезновении напряжения на секциях шин ЩСУ, от которых выполнено их электроснабжение;
-
контроль готовности АСУ ПТ к автоматическому пуску.
-
Структура системы
АСУ ПТ построена по трехуровневому иерархическому принципу и включает в себя нижний, средний и верхний уровни.
К нижнему уровню АСУ ПТ относятся первичные датчики информации, преобразователи сигналов, местные приборы, исполнительные механизмы.
Технические средства среднего уровня строятся на базе аппаратно-программного комплекса с применением микропроцессорной техники. В состав среднего уровня входит следующее оборудование:
-
шкаф ЦПУ.П;
-
шкаф УСО 1.1П;
-
шкаф УСО 1.2П;
-
шкаф УСО 2.1П;
-
шкаф УСО 2.2П;
-
панель сигнализации.
К верхнему уровню относятся:
-
АРМ оператора АСУ ПТ основной;
-
АРМ оператора АСУ ПТ резервный;
-
АРМ АСУ ПТ без функции управления.
Верхний уровень АСУ ПТ предназначен для дистанционного централизованного контроля и управления системой автоматического пожаротушения.
Верхний уровень системы автоматики обеспечивает:
- прием и отображение информации со среднего уровня;
- мониторинг и оперативное управление технологическим процессом;
- архивацию действий оператора и событий на нижнем уровне системы.
-
Автоматическая система пожарной сигнализации
Автоматическая система пожарной сигнализации нефтеперекачивающей станции представляет собой микропроцессорный программно-технический комплекс, предназначенный для сбора, обработки, передачи, отображения и регистрации извещений о возгорании на объектах, контроля состояния шлейфов и извещателей АСПС и выдачи противопожарных управлений.
АСПС обеспечивает:
- автоматическую пожарную сигнализацию в защищаемых зданиях;
- ручную пожарную сигнализацию о возгорании на производственной площадке НПС;
- прием информации о возгорании от комплектной противопожарной автоматики зданий (сооружений), АСУ ПТ и локальной автоматики пожаротушения;
- прием информации о состоянии системы оповещения людей о пожаре;
- управление отключением систем воздухообмена зданий (сооружений) при пожаре;
- управлением противопожарными клапанами вентсистем при пожаре;
- управление системой контроля и управления доступом при пожаре;
- управление отключением звуковой трансляции системы проводного вещания при пожаре;
- активации системы оповещения людей о пожаре;
- контроль в дежурном режиме адресных линий, шлейфов сигнализации, а также линий управления на целостность;
- контроль исправности базового оборудования;
- контроль исправности адресно-аналогового оборудования, в т.ч. запыленности дымовых извещателей.
Система основана на оборудовании адресно-аналогового протокола ESP в составе: приборы приемно-контрольные, вспомогательные модули сигнализации, адресные модули контроля и управления. Оборудование устанавливается в зданиях и сооружения НПС и соединяется между собой линиями локального интерфейса RS-485 и кольцевыми адресными линиями.
Обнаружение возгорания осуществляется адресно-аналоговыми извещателями и пороговыми извещателями, подключаемыми в систему через адресные модули контроля.
Вывод информации реализован на индикационные панели приемно-контрольных приборов в здании Операторной, КТП и ЗРУ, в здании СБК с узлом связи, а также в здании пожарного депо. В Операторной предусмотрена установка АРМ оператора пожарной сигнализации на базе персонального компьютера.
Основное электропитание оборудования пожарной сигнализации осуществляется от однофазной сети переменного тока напряжением 220 В, частотой 50 Гц по первой категории надежности электроснабжения. Проектом предусматривается установка в помещении кроссовых панелей распределительного электрощита ЩГ для подключения оборудования СОП.
Вторичное электропитание оборудования осуществляется от приборов пожарной сигнализации (отдельной линией или от адресной линии), а также от резервированных блоков питания, устанавливаемых распределено. В качестве резервного источника питания используются аккумуляторные батареи.
АРМ оператора системы пожарной сигнализации на базе персонального компьютера предназначено для:
- отображения состояния контролируемых пожарных извещателей в зданиях и сооружениях на графических планах, выводимых на экран компьютера;
- снятие с охраны и постановки на охрану контролируемых объектов;
- получение информации о различных штатных и тревожных событиях с помощью графических, текстовых и звуковых сообщениях;
- ведение общего, тревожного и системного журналов;
- получение различных отчетов о событиях за заданные промежутки времени.
ППК предназначен для автономной или централизованной охраны зданий и сооружений от пожаров.
ППК должен обеспечивать:















