Роголев ВКР (1189727), страница 2
Текст из файла (страница 2)
В котлах с многократной принудительной циркуляцией движение рабочего тела по испарительному контуру осуществляется в основном за счет работ циркуляционного насоса, включаемого в опускной поток рабочей жидкости. Кратность циркуляции поддерживается невысокой (
), поскольку циркуляционный насос гарантирует ее сохранение при всех колебаниях нагрузки. Такие котлы позволяют экономить металл для поверхностей нагрева, особенно на СВД, так как допускают повышенные скорости воды и рабочей смеси и тем частично улучшают охлаждение стенки труб.
Габариты агрегата при этом несколько снижаются, так как диаметры трубок можно выбирать меньшими, чем для котлов с естественной циркуляцией. Эти котлы могут применяться вплоть до критических давлений 22,5 МПа, наличие барабана дает возможность хорошо осушать пар и продувать загрязненную котловую воду. Все же этот тип котлов не нашел широкого распространения, в основном из-за наличия циркуляционного насоса.
В прямоточных котлах кратность циркуляции равна единице и движение рабочего тела от входа воды в экономайзер и до выхода из агрегата перегретого пара принудительное, осуществляемое питательным насосом. Дорогой элемент – барабан отсутствует, что дает при сверхвысоком давлении удорожание станционной водоподготовки, поскольку повышается требование к чистоте питательной воды, которая должна в этом случае содержать примесей не больше, чем выдаваемый котлом пар. Прямоточные котлы универсальны по рабочему давлению, а на закритическом давлении – вообще являются единственными генераторами пара на ТЭС – ТЭЦ и нашли большое распространение в современной электроэнергетике.
В послевоенные годы появилась разновидность циркуляции воды в прямоточных парогенераторах – комбинированная циркуляция, осуществляемая за счет особого насоса или дополнительного параллельного
циркуляционного контура естественной циркуляции в испарительной части прямоточного котла, позволяющая улучшить охлаждение экранных труб при малых нагрузках котла за счет увеличения на 20-30% массы циркулируемой через них рабочей среды.
1.2 Краткое описание котла Николаевской ТЭЦ
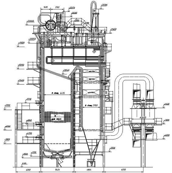
Паровой котел БКЗ-160-100 ГМ-3 является вертикально-водотрубным с естественной циркуляцией, однобарабанным, П-образной компоновкой, Барнаульского котлостроительного завода рис. 1.1.
Топочная камера призматической формы, образована экранами из гладких труб с газоплотной обшивкой, рассчитаны для выработки перегретого пара высокого давления при сжигании мазута. Экраны топочной камеры секционированы на 13 отдельные независимые циркуляционные контуры.
Рисунок 1.1 – Общий вид парового котла БКЗ-160-100 ГМ-3
Для обеспечения требуемого качества пара применена схема двухступенчатого испарения с необходимыми сепарационными устройствами. Сепарационные устройства, расположенные в барабане, состоят из внутрибарабанных циклонов, листов барботажной промывки пара и дырчатых листов перед пароотводящими трубами.
Циркуляционные контуры второй ступени (солевые отсеки) образуют панели экранов, соединенные с выносными паросепарационными циклонами. Пар из выносных циклонов направляется в паровой объем барабана под листы барботажной промывки пара.
Пароперегреватель радиационно-конвективного типа. Радиационно-конвективная часть – ширмы, расположенные в верхней части топки. Конвективная часть пароперегревателя расположена в горизонтальном газоходе. Регулирование температуры перегретого пара осуществляется впрыском “собственного” конденсата в двух ступенях впрыскивающих пароохладителей.
Экономайзер котла выполнен двухступенчатым. Ступени экономайзера расположены в опускном газоходе. Подогрев воздуха осуществляется в паровых калориферах и регенеративном воздухо-подогревателе. Котёл оборудован необходимой парозапорной, водозапорной и дренажной арматурой.
На паросборной камере котла установлены два предохранительных клапана, работающих от импульсов по давлению в барабане котла и в паросборной камере. На барабане котла установлены две водоуказательные колонки и три датчика сниженных уровнемеров, установленных на тепловом щите машиниста котла и снабжённых световой и звуковой сигнализацией предельных уровней воды в барабане.
Котёл оборудован автоматическим питанием и автоматическим регулятором давления пара, а также защитным устройством по отключению котла от упуска и перепитки котла водой, от понижения температуры перегретого пара, от отключения дымососа или дутьевого вентилятора, от погасания факела в топке.
В настоящее время осуществлена реконструкция котлов с переводом их на сжигание природного газа, в качестве основного топлива. В связи с проектом реконструкции котлов частично или полностью реконструированы следующие узлы котлов:
- топочные экраны (установлены новые амбразуры горелок);
- установлены новые горелки с растопочными системами;
- в соответствии с новым положением горелок установлены в новое положение смотровые лючки на топочной камере и перенесены лазы с боковых стен топки на фронт котла;
- реконструированы опускные трубы топочных экранов, в районе горелок;
- частично реконструированы боковые рамы каркаса в районе горелок и площадки обслуживания;
- установлен новый ширмовой пароперегреватель;
- уменьшена поверхность нагрева первой ступени пароперегревателя;
- вновь установлены ранее отсутствующие дымососы рециркуляции;
- газовоздухопроводы.
1.3 Схема и принцип работы парового котла
На рис. 1.2 представлена схема устройства парового котла с естественной циркуляцией, на примере которого рассматриваются принятые в котлостроении термины, определения, принципиальное назначение узлов котлоагрегата.
Рисунок 1.2 – Схема устройства парового котла с естественной вентиляцией
Основными рабочими элементами парового котла являются поверхности нагрева, которые представляют собой металлические трубчатые поверхности, с одной стороны омываемые горячими дымовыми газами, а с другой – водой, пароводяной смесью, паром, воздухом. Размер поверхности обычно принимается по стороне труб, омываемыми газами (теплоносителем), и измеряется в квадратных метрах.
Экономайзер 11, 12 – трубчатая поверхность нагрева, служащая для подогрева горячими дымовыми питательной воды, подаваемой в котел питательным насосом. Питательная вода подается в котел при температуре ниже температуры кипения на несколько десятков градусов. Подогрев ее может осуществляться в экономайзерах – приборах, применяемых для экономии топлива.
В котельных установках малой мощности экономайзеры используются не всегда. В водогрейных котлах экономайзеры практически отсутствуют.
Вода по трубопроводу 13 подается из экономайзера в барабан 1, из которого котловая вода, перемешанная с питательной, направляется по опускным трубам 9 на питание испарительных поверхностей нагрева, в данном случае топочных настенных трубчатых экранов 7. В экранных трубах происходит частичное испарение воды, пароводяная смесь в барабане разделяется на воду и пар. Соответственно в барабане имеется водное 2 и паровое 3 пространства.
Условная поверхность, отделяющая паровое пространство от водяного, носит название зеркала испарения. Уровень воды в барабане контролируется системой водоуказательных приборов. Различают два крайних по высоте уровня воды – низший и высший. Низший уровень определяется опасением оставить опускные трубы и их экраны без воды, особенно с возможностью воронкообразования.
Высший уровень устанавливается таким, чтобы исключался заброс влаги с паром и влажность последнего не превосходила допустимых пределов. Объем воды между предельными уровнями называют запасом питания. Для современных высокофорсированных котлов по сравнению со старыми конструкциями запас питания снизился с нескольких десятков минут до нескольких десятков секунд, что настоятельно потребовало замены ручного управления питания водой автоматическим. В котельных установках малой мощности автоматическое управление уровнем воды практически отсутствует.
Вода в барабане, замыкая цикл, вновь поступает в опускные трубы 9 и нижние коллекторы 10. Насыщенный пар проходит внутрибарабанные сепарационные устройства, оставляя здесь часть влаги с примесями, и направляет по паропроводу 14 на перегрев в пароперегреватель.
Барабан является самым сложным, металлоемким и дорогим узлом парового котла. В барабане осуществляется сбор и раздача рабочей среды, обеспечение запаса воды в котле, разделение пароводяной смеси на пар и воду. Для этой цели используется не только паровой объем, барабана, но и размещенные в нем паросепарационные устройства. Кроме того, наличие барабана дает возможность поддерживать концентрацию примесей в котловой воде, следовательно, и качество пара на заданном уровне.
Испарительная поверхность котла – это трубчатая поверхность нагрева, в которой осуществляется испарение воды за счет теплоты дымовых газов. Дымовые газы передают теплоту поверхностям нагрева двумя способами: за счет лучеиспускания газов, тогда поверхности нагрева называют радиационными, или за счет конвекции, т.е. непосредственного контакта с газами, и в этом случае поверхности называют конвективными.
Все современные энергетические котлы оборудуются экранами, под которыми понимают поверхность нагрева, расположенную на стенах
топочной камеры 4, конвективных газоходов 24 и ограждающую стены от воздействия высоких температур.
Топка (топочная камера) котла предназначена для сжигания органического топлива, частичного охлаждения продуктов сгорания за счет передачи теплоты топочным экранам и выделения из продуктов сгорания золы. Топочная камера 4 имеет на фронтовой стене ряд круглых пылеугольных горелок 5, к которым из системы пылеприготовления подведено топливо с первичным воздухом 6 и вторичным горячим воздухом 20. Кроме пылеугольной горелок, используется газовые, мазутные, газомазутные горелки. В котлах с твердым топливом могут использоваться топик с ручной и автоматической подачей топлива, как слоевые, так и с кипящим слоем.
Первичный и вторичный воздух нагреваются в воздухоподогревателе 18, 19, по воздуховоду 21 часть воздуха, называемого первичным, направляется на сушку и транспорт пыли.
Кроме того, повышая температуру горения в топке, окислитель повышает температурный напор между теплоносителем и рабочим телом по всем поверхностям нагрева котла, и тем самым интенсифицируется теплообмен, снижаются недожог топлива и удельная затрата металла на поверхности нагрева. В котельных установках малой мощности воздухоподогреватель встречается крайне редко.
Дутьевой вентилятор 28 забирает теплый воздух из-под крыши котельной 27 и подает его на подогрев в воздухоподогреватель. В нижней части топки имеется система твердого шлакоудаления, состоящая из холодной воронки 32, шлаковой шахты 25 и канала гидрошлакоудаления 26.
Дымовые газы из воздухоподогревателя направляются в золоуловитель, от него к дымососу, наконец, через дымовую трубу выбрасывается в атмосферу при температуре уходящих газов 120–160 °С.
Котел, изображенный на рисунке 1.3, имеет со стороны дымовых газов систему под разряжением или, как ее называют, систему с уравновешенной тягой, создаваемую совместным действием дымососной и дутьевой установок. Здесь дутьевой вентилятор 28 создает давление в воздушном подогревателе (1000 – 3000 Па), воздуховодах 20, горелках 5. Дымосос устанавливается, из соображений эрозии, после золоуловителей и создает разряжение, начиная с топки (примерно 20 Па вверху топочной камеры) и кончая самим дымососом (~ до 4000 Па). Однако появилась и другая, более простая система под наддувом 2000 – 6000 Па, создаваемым работой только дутьевой установки на трассе от всоса 27 и до дымовой трубы включительно.
Дутьевой вентилятор, дымосос, питательный насос, устройства пылеприготовления, золоулавливания, шлакозолоудаления и золоотчистки являются вспомогательным оборудованием, обеспечивающим работу котла.
Котел с внешней стороны имеет наружное ограждение – обмуровку 22 и включает в себя обшивку из стального листа 3-4 мм со стороны помещения котельной, вспомогательный каркас, огнеупорную обмуровку, тепловую изоляцию толщиной 50–200 мм. Основное назначение обмуровки и обшивки заключается в уменьшении тепловых потерь в окружающую среду и обеспечения газовой плотности.















