1 - Исследовательский раздел (1094727), страница 3
Текст из файла (страница 3)
Настройка станка и ввод программы осуществляются в следующем порядке. Прежде всего, выполняется размерная привязка каждого инструмента к системе координат станка. Эта процедура осуществляется методом пробных рабочих ходов с обработкой цилиндрических поверхностей (ось X) и торцов (ось Z) с последующим измерением фактически полученных размеров, которые учитываются затем при вводе в память УЧПУ координат исходных точек движения инструментов.
Программа набирается на пульте оператора, предварительно составленная технологом-программистом на специальном бланке.
1.3 Программирование работы координатно-пробивного пресса
Программирование координатно-пробивного пресса осуществляется с помощью ручного ввода программы непосредственно на пульте УЧПУ, с внешнего гибкого диска, с помощью ПК через порт RS-232. В целом методика программирования и ввода программы в память УЧПУ соответствует методикам, применяемым для фрезерного станка, описанным ранее.
Перед началом программирования необходимо выполнить ряд подготовительных операций:
-
Определение метода обработки будущей детали.
-
Определение положения зажимов листа.
-
Проверка номера инструмента и номера станции.
-
Определение последовательности штамповки.
-
Вычисление значения координат.
-
Проверка.
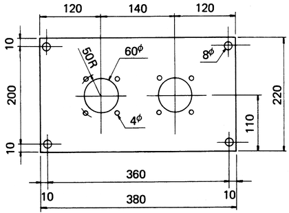
Рисунок 1.10 – Чертёж детали
1.3.1 Определение метода обработки
Деталь, изображённая на Рисунке 1.10, изготавливается из листового металла. Следовательно, данную деталь можно изготовить методом холодной листовой штамповки.
1.3.2 Определение положения зажимов.
Зажимы листа необходимо выставить таким образом, чтобы обеспечить равномерную фиксацию заготовки. При неравномерной фиксации возможны повышенные вибрации листа и как следствие неточности в изготовлении деталей. Также при программировании необходимо избежать попадания детали в мёртвую зону зажима.
1.3.3 Проверка номера инструмента и номера станции
Круглое отверстие Ø4 мм – вырубка пуансоном Ø4 мм.
Круглое отверстие Ø8 мм – вырубка пуансоном Ø8 мм.
Круглое отверстие Ø60 мм – вырубка пуансоном Ø60 мм.
Контур детали – вырубка пуансоном 5*85 мм и пуансоном 10*110 мм.
1.3.4 Определение последовательности штамповки
-
Четыре отверстия Ø8 мм – станция в инструментальной головке Т304.
-
Восемь отверстий Ø4 мм – станция в инструментальной головке Т203.
-
Два отверстия Ø60 мм – станция в инструментальной головке Т219.
-
Обработка вертикального контура детали прямоугольным пуансоном 5*85 мм - станция в инструментальной головке Т255.
-
Обработка горизонтального контура детали прямоугольным пуансоном 10*110 мм - станция в инструментальной головке Т201.
1.3.5 Вычисление значения координат
Таблица 1.5 – Определение значения координат
| Инструмент | Координата по X | Координата по Y |
| Т304(Ø8 мм) | 10 | 10 |
| 10 | 370 | |
| 10 | 210 | |
| 370 | 210 | |
| Т203(Ø4 мм) | 102.32 | 92.32 |
| 102.32 | 121.68 | |
| 137.68 | 92.32 | |
| 137.68 | 121.68 | |
| 242.32 | 92.32 | |
| 242.32 | 121.68 | |
| 277.68 | 92.32 | |
| 277.68 | 121.68 | |
| Т219(Ø60 мм) | 120 | 110 |
| 260 | 110 |
После выполнения всех подготовительных операций можно перейти непосредственно к составлению текста программы.
Таблица 1.6 – Управляющая программа
| Строка кода | Комментарии |
| G06 A1.6 B0 | Определение толщины и сорта металла |
| G92 X1210. Y1270. | Задание координат центра штамповки |
| G98 X 30. Y100. I400. J250 P3 K2 | Задание параметров штамповки многих деталей |
| G90 | Задание системы отсчета |
| U1 | Начало записи блока данных в память под адресом U1 |
| X370. Y210. T304 | Выбор инструмента и координаты первого удара в точке (X370; Y210) |
| Y10. | Удар в координатах (X370;Y10) |
| X10. | Удар в координатах (X10;Y10) |
| Y210. | Удар в координатах (X10;Y210) |
| G72 X120. Y110. | Задание координат точки отсчёта |
| A1 G26 I50. J45. K4 T203 | Штамповка группы отверстий и запоминание строки в качестве шаблона под адресом А1 |
| G72 X260. | Задание координат точки отсчёта |
| B1 | Вызов шаблона А1 в координатах (X260;Y110) |
| V1 | Окончание записи блока данных под адресом U1 |
Таблица 1.6 – Продолжение
| U2 | Начало записи блока данных в память под адресом U2 |
| X260. Y110. T219 | Выбор инструмента и координаты первого удара в точке (X260; Y110) |
| X120. | Удар в координатах (X120;Y110) |
| V2 | Окончание записи блока данных под адресом U2 |
| U3 | Начало записи блока данных в память под адресом U3 |
| G72 X380. Y220. | Задание координат точки отсчёта |
| G66 I220. J-90 P85. Q5. D-0.15 T255 | Выбор инструмента и штамповка отрезка заданной длинны |
| G72 X0.Y0. | Задание координат точки отсчёта |
| G66 I220. J90. P85. Q5. D-0.15 | Штамповка отрезка заданной длинны |
| V3 | Окончание записи блока данных под адресом U3 |
| U4 | Начало записи блока данных в память под адресом U4 |
| G72 X 0. Y220. | Задание координат точки отсчёта |
| G66 I380. J0. P110. Q10. D-0.15 T201 | Выбор инструмента и штамповка отрезка заданной длинны |
| G72 X 380. Y0. | Задание координат точки отсчёта |
| G66 I380. J180. P110. Q10. D-0.15 | Штамповка отрезка заданной длинны |
| V4 | Окончание записи блока данных под адресом U4 |
| G76 W1 Q4 | Вызов и выполнение команд из участка памяти с адресом U1 в направлении оси Y |
| G76 W2 Q3 | Вызов и выполнение команд из участка памяти с адресом U2 в направлении оси Y |
| G76 W3 Q2 | Вызов и выполнение команд из участка памяти с адресом U3 в направлении оси Y |
| G75 W4 Q3 | Вызов и выполнение команд из участка памяти с адресом U4 в направлении оси X |
| M13 | Отмена режима штамповки |
| G50 | Код окончания программы, возвращение осей станка X и Y в нулевые координаты |
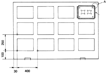
Схематично результат выполнения программы изображён на Рисунке 1.18.
Рисунок 1.18 – Схема размещения деталей на заготовке
Рисунок 1.19 – Масштаб А – микро соединение
1.4 Постановка задачи проектирования
Рассмотренные способы и методы программирования различного оборудования с ЧПУ позволяют сделать следующие выводы:
-
Каждый станок работает под управлением программы составленной на языке, воспринимаемом только данным станком. Использование такой программы невозможно на другом оборудовании.
-
Целесообразно разработать такое универсальное программное средство, которое преобразовывало бы чертеж детали, выполненный на любом языке высокого уровня (C++, AutoCAD, Компас и т.д.) в язык любого станка с ЧПУ.
29
















