ДЗ2, вариант 9 (1053436)
Текст из файла
Домашнее задание №2
ДОМАШНЕЕ ЗАДАНИЕ № 2
по учебной дисциплинам
«ПНТО» и «ПОЭТ»
(выдача – 6 неделя, срок сдачи – 8неделя)
Вариант № 19
Задание:
Мотор-редуктор, который должен (полностью или частично) заменить в установке выращивания монокристалла кинематическую цепь вращения ванны с расплавом, состоит из планетарного редуктора (см. схему) и регулируемого электродвигателя. Электродвигатель обеспечивает постоянство крутящего момента в диапазоне скоростей: n э.д. = 20..280 об/мин. Рассчитайте требуемое передаточное отношение и подберите зубчатые колёса редуктора, если вращение ванны должно принимать значения в диапазоне n=3..25 об/мин. Приведите кинематическую схему модернизированной установки
студент гр. МТ11-71 Решетников Н.Н.
Реферат
Расчетно-пояснительная записка: 10 с., 4 рис., 3 источника.
УСТАНОВКА ВЫРАЩИВАНИЯ МОНОКРИСТАЛЛА, КИНЕМАТИЧЕСКИЕ ЦЕПИ, ВЫБОР ЭЛЕМЕНТОВ ПЛАНЕТАРНОЙ ПЕРЕДАЧИ, РАСЧЁТ ПЕРЕДАТОЧНОГО ОТНОШЕНИЯ
Объектом расчёта является кинематическая цепь вращения ванны с расплавом, входящая в состав установки выращивания монокристалла.
Цель работы – модернизация кинематической цепи путём полной замены входящих в неё передач и подбор зубчатых колёс планетарного редуктора.
В процессе выполнения задания проводился расчёт передаточного отношения кинематической цепи стандартной и модернизированной установки.
Подобраны зубчатые колёса планетарной передачи, входящей в состав мотор-редуктора, предложена принципиальная схема модернизированной кинематической цепи.
Расчётно- пояснительная записка выполнена по ГОСТ 7.32-2001.
Содержание
Введение (назначение установки выращивания монокристалла) …………………………4
1 Формулировка задачи ……………….…………………………………….…..5
1.1 Схема стандартной установки выращивания монокристалла………………5
1.2 Описание исследуемой кинематической цепи …………………………….. 5
1.3 Расчёт звена настройки стандартной кинематической цепи ………..……...5
2. Модернизация установки ………………………………………...………..8
2.1 Расчёт передаточного отношения u планетарной передачи ………...….…..8
2.2 Принципиальная схема модернизированной установки …………...…….…8
Заключение ……………………………………………………………….……..……….….11
Список использованных источников информации ………………………………………..12
Введение
Выращивание монокристаллов проводится с помощью метода Чохральского.
Метод Чохральского — метод выращивания кристаллов путём вытягивания их вверх от свободной поверхности большого объёма расплава с инициацией начала кристаллизации путём приведения затравочного кристалла (или нескольких кристаллов) за-данной структуры и кристаллографической ориентации в контакт со свободной поверхностью расплава.
Может использоваться для выращивания кристаллов элементов и химических соедине-ний, устойчивых при температурах плавления-кристаллизации. Метод наиболее известен применительно к выращиванию монокристаллического кремния.[3]
Установка выращивания монокристаллов состоит из отдельных кинематических цепей:
Цепь вращения затравки (электродвигатель, червячная передача, двухупарная гитара, цилиндрическая передача, ременная передача и ещё одна цилиндрическая передача)- вращение затравки в зоне кристаллизации.
Цепь вращения ванны (тигеля) ( электродвигатель, червячная передача, двухпарная гитара, цилиндрическая передача).
Цепь вертикального перемещения затравки. (электродвигатель, червячная передача, двухпарная гитара, червячная передача, винтовая передача).
1.Формулировка задачи
1.1 Схема стандартной установки выращивания монокристалла
(Рис.1)
1.2 Описание исследуемой кинематической цепи
(Рис.2)
1.3 Расчёт звена настройки стандартной кинематической цепи
Уравнение баланса цепи, описывающее движение цепи, дающей вращательное движение ванны:
(ванны (тигля))
Т.к. у нас двухпарная гитара :
1) минимальная скорость вращения ванны nt=3
Z1=20; Z2=50; Z3=30; Z4=50; - что соответствует стандартному набору
сменных колёс гитар
2) максимальная скорость вращения ванны nt=25
Z1=40; Z2=50; Z3=50; Z4=20; - что соответствует стандартному набору
сменных колёс гитар.[1]
2. Модернизация установки
2.1 Расчёт передаточного отношения u планетарной передачи
(Рис.3)
Рассчитаем передаточное отношение при минимальной скорости вращения двигателя и ванны и максимальной скорости вращения двигателя и ванны
Min
Max
Примем передаточное отношение механизма U1H=9 Значит:
8Z1=Z3
Из условия соостности:
R3=2R2+R1 т.к. в планетарном зацепление модуль одинаковый:
Z3=2Z2+Z1
Z2=(Z3-Z1)/2;
Примем Z1=20 тогда Z3=160 Z2=70;
Условие заклинивания передачи и подрезание зубьев Zmin>17(для внешнего зацепления)
Zmin>85(для внутреннего) – выполняется.
Условие сборки:
где Z1=20
=9 k=3(число сателлитов) P и Ц- целые числа
выполняется при любых P.[2]
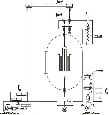
2.2 Принципиальная схема модернизированной установки
(Рис.4)
Заключение
В данной работе описана установки выращивания монокристаллов по методу Чохральского. Проанализирована заданная кинематическая цепь вращения ванны(тигеля), рассчитаны колеса для гитар для заданного числа оборотов ванны. Была проведена модернизация кинематической цепи путём полной замены входящих в неё передач и подбор зубчатых колёс планетарного редуктора, представлена схема модернизированной установки.
Список использованных источников информации
1. Лекции и семинары по учебным дисциплинам «ПНТО» и «ПОЭТ» Каменихин А.Т.
2. Онлайн методичка кафедры ТММ МГТУ им. Баумана (http://tmm-umk.bmstu.ru/main/menu/variant/metods/html/mtimofeeva1.htm)
3. Информационный портал «Википедия» ru.wikipedia.org
11
Характеристики
Тип файла документ
Документы такого типа открываются такими программами, как Microsoft Office Word на компьютерах Windows, Apple Pages на компьютерах Mac, Open Office - бесплатная альтернатива на различных платформах, в том числе Linux. Наиболее простым и современным решением будут Google документы, так как открываются онлайн без скачивания прямо в браузере на любой платформе. Существуют российские качественные аналоги, например от Яндекса.
Будьте внимательны на мобильных устройствах, так как там используются упрощённый функционал даже в официальном приложении от Microsoft, поэтому для просмотра скачивайте PDF-версию. А если нужно редактировать файл, то используйте оригинальный файл.
Файлы такого типа обычно разбиты на страницы, а текст может быть форматированным (жирный, курсив, выбор шрифта, таблицы и т.п.), а также в него можно добавлять изображения. Формат идеально подходит для рефератов, докладов и РПЗ курсовых проектов, которые необходимо распечатать. Кстати перед печатью также сохраняйте файл в PDF, так как принтер может начудить со шрифтами.
















