РПЗ ТНУ18-03 (1053155), страница 2
Текст из файла (страница 2)
Выбираем минимальную полную длину шпонки L=27мм по ГОСТ23360-78.
Длина ступицы для соединения статора с ротором (валом) с помощью шпонки
lст=L+8…10мм=22+9=36мм.
2.8Рассчёт болтового соединения крепления барабана.
Соединение воспринимает нагрузку от осевой силы и вращающего момента.
Суммарная сила в соединении:
Н
еобходимая сила затяжки из условия несдвигаемости:
У
словие прочности винта имеет вид:
Д
опускаемое напряжение для рассчёта винта класса прочности 5.8:
По найденной площади сечения винта определим его диаметр.
В
ыбираем винт М12, его диаметр d1 = 10.106мм.
2.9Рассчёт подшипников барабана.
2.9.1 Рассчётная схема.
Ft =5508 Н; Fr = 2172 Н; Fа =103 Н; FtБ = 10000 Н; L = 264мм; l = 62мм.
Определяем реакции опор в плоскости XOZ
MА = 0
Fr * l + Fa * Dк/2 - RxБ * L = 0
RxБ = (Fr * l + Fa * Dк/2)/L = (2172*62 +103*243/2)/264 = 558H
MБ = 0
Fr * (l+L) + Fa * Dк/2 - RxА * L = 0
RxА = (Fr * (l+L) + Fa * Dк/2)/L = (2172*326 +103*243/2)/264 = 2729H
Определяем реакции опор в плоскости YOZ
MА = 0
- RyБ * L - Ft * l = 0
RyБ = Ft * l / L =5508 * 62 /264 =1356 Н
MБ = 0
- RyА * L - Ft * (l+L) = 0
RyА = Ft * (l+L) / L =5508 *326 / 264 = 6801 Н
Т
огда суммарные реакции в опорах:
Суммарные реакции опор, с учётом нагрузки от барабана:
RA = RA + RАБ = 5535 + 5000 =12329 Н
RБ = RБ + RББ = 1466 +5000 = 6466 Н
2.9.2Подбор подшипников
Исходные данные для расчёта:
| Частота вращения барабана | n1 | 29.5 | мин-1 |
| Требуемая долговечность подшипников | L10h | 8000 | ч |
| Реакция в опоре А | RA | 12329 | Н |
| Реакция в опоре Б | RБ | 6466 | Н |
Предварительно выбираем шарикоподшипник радиальный однорядный 0214.
Сr = 61.8 кН; С0r = 37.5 кН; КБ = 1.3; КТ = 1; V = 1.
Для опоры А: X = 1, Y = 0.
Для опоры Б: RaБ / С0r =103 /14600 = 0.007
X = 0.56, Y = 2.1, e = 0.21
RaБ / RrБ < e X = 1, Y = 0
Эквивалентная динамическая нагрузка:
REA = V * X * Rr * КБ * КТ = 1 * 1 *12329 * 1.3 * 1 = 16028 H
REБ = V * X * Rr * КБ * КТ = 1 * 1 *6466 * 1.3 * 1 =8406 H
Для наиболее нагруженной опоры А, расчётная долговечность:
В
ыбранные подшипники удовлетворяют требованиям.
3Металлоконструкция.
3.1Выбор основных размеров.
Высота балки:
Высота балки по условиям жесткости:
h=L/25=3000/25=120мм
Принимаем стандартный швеллер №16 ГОСТ8240-89 Для удобства размешения подвода силового кабеля и размещения катков тележки механизма передвижения.
Для него: b=64мм, S=5.0мм, t=8.4мм, А=1810мм2
Ширина скчения стрелы: b=0.5h=0.5*160=80мм
Масса 1 погонного метра швеллера 14.2кг
Определение веса металлоконструкции:
Материал стрелы – Ст3. Удельные вес стали =78.5 * 10-6 Н/мм3
Для определения веса стрелы, необходимо подсчитать вес швеллеров и массу приваренных пластин.
3.2Определение веса металлоконструкции.
Материал стрелы – Ст3. Удельные вес стали =78.5 * 10-6 Н/мм3
Обьем приваренных пластин:
Вес пластин:
Gпл. = V * =4.2*105 * 78.5 * 10-6 =33 H
Вес металлоконструкции:
G/мк=2*(1м,кг*3)+Gпл=2*(14.2*3)+3.3 =885Н
Полученное значение увеличим на 10%, учитывая таким образом массу сварных швов.
Gмк. = G/*0.1 + G/=885*0.1 +885=973 H
3.3Проверка статического прогиба.
Определим координаты центра тяжести сечения стрелы:
т.к. сечение имеет симметричную форму
y0= t1/2 + h/2=10/2 + 160/2 = 85мм
= 35 * 106мм4
Прогиб стрелы не должен превышать допустимый прогиб. Для данного типа крана допустимый прогиб - [fcт] = L / 400 = 3000 / 400 = 7.5 мм
Прогиб:
Прогиб меньше допустимого.
Формула взята стандартная для нашей расчетной схемы из книги 6 списка литературы.
3.4 Проверка прочности.
Допускаемое нормальное напряжение [] = 140 МПа
Допускаемое касательное напряжения для сварных швов:
[] = 0,6[]= 0,6 * 140 = 84 МПа
Напряжение изгиба в вертикальной плоскости:
Момент в вертикальной плоскости равен:
Напряжение изгиба в горизонтальной плоскости.
Момент инерции сечения:
Момент в горизонтальной плоскости равен:
Напряжение изгиба:
Н
аибольшее нормальное напряжение в стреле:
= в + г =9.1 +8.2 = 99,2 МПа [] = 140МПа
Следовательно стрела с приведёнными выше геометрическими размерами обладает достаточной прочностью.
3.4Расчет подшипников опорного узла.
Схема нагрузки балки силами:
3.4.1П
одбор подшипников.
Выбираем роликовые конические однорядные с повышенной грузоподъёмностью.
Подшипник 7210А. d = 50, Сr = 70400H, C0r =55000H.
e = 0.43, Y = 1.4, Y0 = 0.8.
Определяем эквивалентную статическую нагрузку. Подшипники рассчитываем по статической грузоподъёмности, так как скорость вращения менее 10 об/мин.
P0 = X0Fr + Y0Fa (Fa = RА ) Fr=0
P0= 1.04*6505 =6765H
Y0 = 0.22 ctg12=1.04
P0 Cor
Выбранные подшипники удовлетворяют требованиям.
Значения моментов в точках В и С
М= Q*0.4L = 10000*0.4*3000 = 12*106Нмм
М= Q*0.5L –RВ*0.1L = 10000*0.5*3000 – 18288*0.1*3000= 12.2*106Нмм
3.5Рассчёт соединения стрелы крана с опорным узлом.
3.5.1Рассчёт оси на смятие.
Расчет оси на смятие.[см]
см =
МПа
см см=0.4т=96Мпа
3.5.2Рассчёт оси на срез.
П
ринимаем [ср] = 0,3т = 0.3 * 240 = 72МПа
О
сь отвечает необходимым требованиям по прочности.
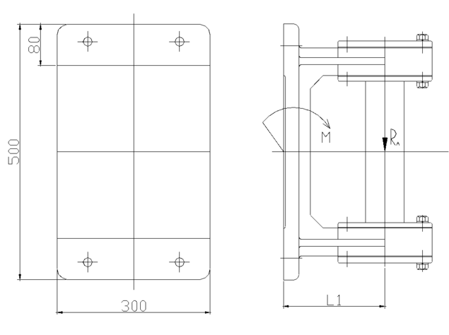
3.6Рассчёт болтового соединения крепления крана к стене.
3.6.1Рассчет соединения.
Необходимая сила затяжки болта из условия несдвигаемости:
г
де Kcц – коэффициент запаса сцепления;
z – число болтов; f – коэффициент трения для стыка металл – бетон;
i – чило рабочих стыков.
Необходимая сила затяжки болта из условия не раскрытия стыка: min ст>0
min ст = зат - м
Напряжение на стыке от затяжки болтов:
Н
апряжение на стыке от действия момента:
г
де - коэффициент основной нагрузки.
М1=RА*l1 =6505*160= 1.07*106Нмм
Вводя коэффициент запаса по не раскрытию стыка, получим:
П
ринимаем силу затяжки болта Fзат = 3317 Н, большую из двух необходимых.
Условие прочности болта имеет вид:
г
де А1 – площадь болта по диаметру d1;
Суммарная внешняя нагрузка приходящаяся на один болт:
Н
еобходимый диаметр болта из засчёта необходимой площади:
г
де []p = т / Sт – допускаемое напряжение для расчёта на растяжение;
т = 320 – предел текучести материала болта, для болтов класса прочности 4.8
Sт = 4 – коэффициент запаса прочности, для болтов с d < 30мм.
П
о результатам расчеты выбираем болт М16, т.к. у него d1 = 14,294
3.6.2Проверка на прочность бетонного основания.
max ст = зат + м []см
г
де []см = 1.8 МПа – допустимое для бетона напряжение смятия.
Бетонное основание достаточно прочное.
Список литературы:
1. Л. П. Варламова, В. П. Тибанов. Детали машин. Соединения.
— МГТУ им. Н. Э. Баумана 1999.
2. Детали машин. Атлас конструкций. — М., Машиностроение, 1979.
3. Дунаев П. Ф., Леликов О. П. Детали машин. Курсовое проектирование.
— М.: Высшая школа, 1990.
4. Дунаев П. Ф., Леликов О. П. Конструирование узлов и деталей машин.
— М.: Высшая школа, 1985.
5. Решетов Д. Н. Детали машин. — М.: Машиностроение, 1989.
6. Расчет на прочность деталей машин. Справочник. Биргер И.А., Иосилевич Г.Б. М., Машиностроение, 1993г, 639с
0
















