ПЗ ВКР (1052801), страница 5
Текст из файла (страница 5)
Таблица 8 – Технические характеристики ЭО – 4121
| Технические характеристики | |
| Производительность, м3/ч | До 150 |
| Мощность двигателя, кВт | 130 |
| Скорость передвижения, км/ч | 2,8 |
| Частота вращения вала, мин-1 | 1700 |
| Наибольший преодолеваемый подъем, град | 22 |
| Размеры: радиус, описываемый хвостовой частью, мм расстояние от оси пяты стрелы до оси вращения, мм просвет под поворотной платформой, мм высота до оси пяты стрелы, мм высота по кабине, мм | 3130 520 942 2020 3000 |
| Габаритные размеры, мм Длина Ширина Квота | 6800 300 300 |
| Продолжение таблицы 3 | |
| Емкость ковша, м3 прямая и обратная лопата сменных грейфера погрузчика | 1,0 0,65-1,5 0,65 1,0-1,5 |
| Наибольшая глубина (высота) копания, м Прямая лопата Обратная лопата грейфером | 3,6 5,8 3,2 |
| Наибольший радиус копания, м: Прямой лопатой Обратной лопатой Грейфером Погрузчиком (радиус разгрузки) | 7,25 9,2 8,9 5,5 |
| Наибольшая высота разгрузки, м Прямой лопатой Обратной лопатой Грейфером Погрузчиком | 5,03 6,0 3,2 3,75 |
| База гусеничного хода, мм | 2750 |
| Дорожный просвет, мм | 520 |
| Ширина траков гусеницы | 580 |
| Ширина гусеничного хода, мм | 2930 |
| Масса эксплуатационная, т | 20,9 |
| Емкость ковша «обратная лопата», м3 для грунтов I - IV групп | без сдвига головной части стрелы 1 |
| Наибольшая глубина копания, м | 5,8 |
| Наибольшая высота выгрузки, м | 6,0 |
| Наибольший радиус копания, м | 9,2 |
| Радиус, описываемый кромкой зуба ковша, м | 1,5 |
| Длина головной части стрелы, м | 3,31 |
| Длина рукояти, м | 2,99 |
| Удельное давление на грунт, кгс/см2 | 0,65 |
Рисунок 5- Габаритные размеры ЭО 4221.
Таблица 9, технические характеристики экскаватора ЭО-4121.
Автосамосвал Урал 5557
Таблица 9 – Технические характеристики Урал 5557
| Параметр | Показатель |
| Колесная формула | 4х2 |
| Допустимая полная масса автомобиля, кг | 14700 |
| Допустимая нагрузка на переднюю ось, кг | 5200 |
| Допустимая нагрузка на заднюю ось, кг | 9500 |
| Масса снаряженного автомобиля, кг | 8000 |
| Допустимая грузоподъемность, кг | 6795 |
| Объем платформы, м3 | 7,6 |
| Высота борта, мм | 920 |
| Двигатель | КамАЗ-740.10 |
| Мощность двигателя, кВт (л.с.) | 180 |
| Коробка передач | ЯМЗ-236П |
| Число передач КП | 5 |
| Передаточное число ведущих мостов | 7.14 |
| Подвеска | рессорная |
Рисунок 6-Габаритные размеры автосамосвала Урал 5557.
Отбойный молоток EH 22.
Таблица 10-Технические характеристики отбойного молотка EH 22.
| Технические характеристики | EH 22 |
| ДхШхВ (без инструмента), мм | 845х445х225 |
| Масса (без инструмента), кг | 22,0 |
| Хвостовик, мм | диам. 27х80; шестигранник 25х108 |
| Частота ударов, 1/мин | 1250 |
| Энергия единичного удара, Дж | 40 |
| Привод | универсальный электродвигатель с двойной изоляцией |
| Напряжение, В | 380 3~ |
| Частота, Гц | 50 |
| Потребляемый ток, А | 4 |
| Мощность, кВт | 2,1 |
| Уровень звукового давления, дБ (А) | 97 |
| Ускорение на ладони и руки, м/с2 | 7,8 |
Дизель-генератор АД-100-Т400Р.
Таблица 11- основные характеристики АД-100-Т400Р.
| Тип топлива | Дизельное |
| Наименование параметра | Значение |
| Основная мощность (длител.), кВт/кВА | 100/125 |
| Резервная мощность, кВт/кВА | 110/138 |
| Напряжение, В | 320 |
| Модель двигателя | ЯМЗ-238М2 |
| Частота вращения вала двигателя, об/мин | 1500 |
| Расход дизель генератора 100 кВт, л/ч | |
| - при 100% нагрузки | 27,8 |
| Расход масла при 100% нагрузки, л/ч | 0,08 |
| Род тока | переменный трехфазный |
| Частота тока, Гц | 50 |
| Номинальный коэффициент мощности | 0,8 |
| Номинальный ток, А | 180 |
| Время непрерывной работы | 6,5час |
| Габаритные размеры | |
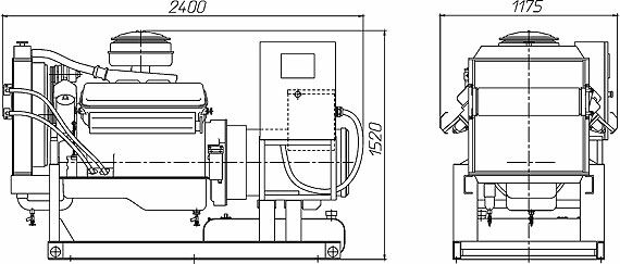
| Длина | 2400 мм |
| Высота | 1175 мм |
| Ширина | 1520 мм |
| Вес | 1970кг |
Рисунок 7-Габаритные размеры дизельного генератора АД-100-Т400Р.
Железнодорожный кран ЕДК-500
Таблица 12 – Технические характеристики ЕДК-500
| Технические характеристики | |
| Вылет стрелы: | |
| Наибольший, м | 21 |
| Наименьший, м | 6,25 |
| Грузоподъемность на крюке, т: | |
| Максимальная | 80 |
| Минимальная | 13 |
| Продолжительность подъема стрелы от ее минимального до максимального вылета, мин | 3 |
| Масса крана, т | 125 |
| мин. радиус прохождения кривых, м | 120 |
| Габаритные размеры: | |
| Длина по осям автосцепки, м | 11,84 |
Рисунок-8 Железнодорожный кран ЕДК-500
Автосамосвал 55111.
Таблица 13-технические характеристики 55111.
| Наименование | Показатель |
| Модель: | КамАЗ-740.51-24)(Евро-2) |
| Колесная формула: | 6х4 |
| Тип кабины: | самосвал |
| Мощность двигателя: | 300 кВт (408 л.с.) |
| Платформа: | П-образная с задней разгрузкой |
| Грузоподьемность | 13000 |
| Колесная база: | 4500 мм |
| Допустимая полная масса: | 22400 |
| Расположение органов управления: | слева |
2.7 Технологическая карта на устройства габионов
В технологической карте представлена технология устройства габионных конструкций; приведены указания по производству работ, приемам труда и организации рабочего места. Освещены вопросы качества работ и техники безопасности, охраны труда, экологической и пожарной безопасности, дана потребность в материально-технических ресурсах, приведены технико-экономические показатели.
Проектом предусмотрена укрепление русла габионами. Габионы размерами 2х1х1 м.















