ПЗ ВКР (1052801), страница 4
Текст из файла (страница 4)
2.5.1 Подготовительные работы
В подготовительный период перед началом ремонта водопропускной трубы сделаны следующие работы:
- устроены временные подъездные дороги;
- расчищена и спланирована территория строительной площадки;
- завезены и складированы строительные материалы, необходимое оборудование, инструменты, железобетонные конструкции (фундаментные блоки, звенья трубы, откосные стенки, фундаментные плиты);
-получен наряд-допуск на работу железнодорожного крана вблизи линии электропередач (в проекте такой необходимости нет);
-отведено существующее русло водотока от строительной площадки;
-устроены защитные ограждения от паводков;
-принята от Заказчика геодезическая разбивочная основа для строительства;
-произведена геодезическая привязка и разбивка контура котлована для трубы.
-доставка машин, оборудования и бытовых помещений;
-монтаж бытовых помещений;
-расчистка зоны строительной площадки от растительного грунта;
-планировка строительной площадки;
-разбивка контуров траншеи и котлованов;
-завоз и складирование материалов и изделий.
Строительство внутрипостроечных временных дорог завершается до начала работ по возведению подземной части объекта в соответствии с СП 48.13330. Проектирование внутрипостроечных временных дорог осуществляется в следующей последовательности:
-разработка схемы движения транспорта и расположения дорог в плане;
-установление параметров дорог и опасных зон;
-определение конструкций дорог, объемов работ и необходимых ресурсов.
Устройства временного подъезда от временной автодороги, предусмотрено при капитальном ремонте трубы на ПК 1629+82.0 к выходному оголовку трубы.
Подъездные дороги для ввоза оборудования и материалов, устраивают бульдозером ДЗ-27С с условием обеспечения свободного проезда автотранспорта по тупиковой схеме движения.
Завезенные на строительную площадку железобетонные конструкции разгружают с помощью железнодорожного крана ЕДК-500.Откосные стенки, фундаментные блоки укладываются в штабеля на деревянные подкладки, а звенья трубы укладываются в один ярус на песчаную подушку. Сбрасывание звеньев труб с транспортных средств или в котлован запрещается.
Выгрузку требуемых строительных материалов и конструкций, контейнеров с ж.-д. платформ произвести краном на ж.-д. ходу на максимально допустимом вылете 15м при высоте подъема стрелы (крюка) - 5,2м.
Привезенные на строительную площадку элементы трубы, укладывают около оголовка трубы, в соответствии с технологической последовательностью для монтажа.
Для обеспечения отвода воды от места производства работ существующее русловодотока направляется в обход монтажной площадки - котлована под тело трубы.
Завершив доставку техники и монтаж бытовок, приступают к отрывке канавы, предназначенной для перехвата ливневых вод. Канава устраивается с верховой стороны площадки у входного оголовка. Конструкция канавы подобна нагорной канаве. Минимальное расстояние между контурами котлована и канавы составляет 1,5 м.
Выполнив сооружение водоотводной канавы и водозащитного вала из грунта, вынутого при разработке канавы, приступают к срезке растительного грунта. Срезка растительного грунта выполняется бульдозером. При этом бульдозер выполняет две операции: разработку и перемещение грунта. Растительный грунт складируется в бурт.
После расчистки строительной площадки от растительного грунта и завершения поверхностного водоотвода необходимо выполнять предусмотренные проектом транспортные работы по завозу материалов и изделий. Параллельно транспортным работам на строительной площадке выполняют разгрузочные работы и складирование материалов и изделий.
При перевозке элементов труб и оголовков, а также монолитных фундаментов должно быть обеспечено их устойчивое положение на транспортных средствах. Погрузку и разгрузку элементов следует осуществлять при помощи кранов с применением захватных приспособлений. При наличии у элементов строповочных петель,строповка должна производиться за все петли. При этом если вес блока превышает 2 т, то перемещать этот блок, зацепив крюки непосредственно за петли, запрещается.
Размещение элементов трубы и их хранение необходимо осуществить в зоне действия монтажного крана. Если условия местности позволяют, то элементы следует складировать вдоль котлована трубы. При этом оставляется берма шириной не менее 4 м для проезда крана. При организации хранения элементов водопропускных труб необходимо следовать указаниям ГОСТ 13015-2003 [16].
На строительной площадке звенья и другие элементы водопропускных труб храниться в вертикальном или горизонтальном положении, рассортированными в штабеля по партиям. Каждое звено следует укладывать на деревянные прокладки прямоугольного сечения длиной не менее диаметра (ширины) звена и толщиной не менее 100 мм.
2.5.2 Разбивочные работы
До начала строительно-монтажных работ Заказчик обязан создать геодезическую разбивочную основу (далее ГРО) для выполнения работ по строительству трубы, передать Подрядчику техническую документацию на нее, а также передать пункты этой основы, закрепленные на местности знаками. Геодезическая разбивочная основа для строительства должна включать:
высотные реперы (марки);
пункты, закрепляющие ось строящейся трубы.
В ГРО должны быть включены также пункты, с которых можно производить разбивку оси трубы и контролировать ее положение в процессе производства работ.
Принятые знаки ГРО в процессе строительства должны постоянно находиться под наблюдением за сохранностью и устойчивостью и проверяться инструментально.
Приемку ГРО для строительства следует оформлять актом согласно СНиП 3.01.03-84. Геодезические работы в строительстве.
К акту приемки ГРО должен быть приложены:
-схематический план с указанием местоположения пунктов, типов и глубины заложения закрепляющих их знаков;
-координаты пунктов, их пикетажные значения и высотные отметки в принятой системе координат и высот.
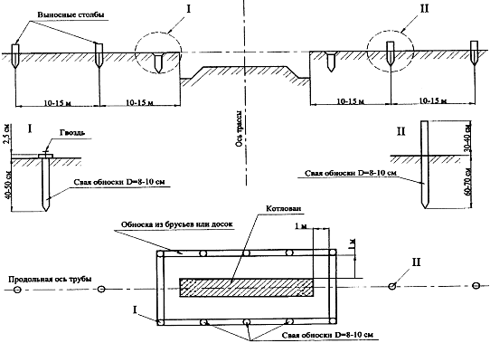
Разбивка котлована под трубу начинается с нахождения и закрепления продольной оси трубы, выполняя следующие действия:
-восстанавливается ось дороги (измеряют стальной лентой (дважды) расстояние от ПК до продольной оси трубы по оси дороги);
-забивается стальной гвоздь длиной 100-120 мм;
-центрируется над гвоздем теодолит и переносят в натуру угол между осью трубы и осью дороги;
-закрепляют полученную продольную ось трубы четырьмя контрольными столбиками, по два на каждую сторону, установленными не ближе 3 м от границ котлована;
-переносят на контрольные столбики отметку ближайшего репера, а также отметки лотков входа и выхода трубы;
-разбивают очертания котлована согласно разбивочному чертежу с закреплением его контуров колышками, забитыми на расстоянии 1,0-1,5 м от бровки котлована;
-проверяют соответствие будущего русла водоотводной канавы - проекту.
Точность плановой разбивки котлована должна быть в пределах 5 см. Закрепительные знаки (колышки с отметками) сохраняются до сдачи трубы заказчику в эксплуатацию.
Поврежденные в процессе работ разбивочные точки необходимо сразу восстановить.
Схема производства геодезической разбивки котлована приведена на рис.2.3.
Рис. 2. Схема производства геодезической разбивки трубы
2.6 Парк строительной техники
Каток пневмошинный ДМ65
Таблица 4 -технические характеристики катка ДМ65
| Наименование | Показатель | |
| Двигатель | ММЗ Д-243,91 | |
| Мощность эксплуатационная, кВт (л.с.) | 57,4 | |
| Вынуждающая сила (на каждом вальце), кг | 7000 / 6000 | |
| Масса эксплуатационная, кг | 14000 | |
| Габаритные размеры | ||
| Длина, мм | 3950 | |
| Ширина, мм | 2050 | |
| Высота, мм | 3220 | |
Бульдозер ДЗ-27С.
Таблица 5- Технические характеристики бульдозера ДЗ-27С.
| Базовый трактор | Т-130 |
| Мощность, кВт | 118 |
| Номинальное тяговое усилие, тс | 10 |
| Параметры отвала, мм: – длина – высота – подъем – опускание | 3200 1100 800 335 |
| Угол резания, градус | 55 |
| Масса оборудования, кг | 1850 |
| Масса общая, кг | 13350 |
Рисунок 3 -Бульдозер ДЗ-27 С: 1 – нож; 2 – отвал; 3 – винтовой раскос; 4 – гидроцилиндр;5 – трактор; 6 - шарнир;
Электрической трамбовка ИЭ -4502А.
Таблица 6, технические характеристики ИЭ-4502А
| Наименование | Показатель |
| Масса, кг | 80 |
| Толщина уплотняемого слоя, м Грунт несвязный Грунт связный | 30 45 |
| Производительность, м3/ч Грунт несвязный Грунт связный | 18 27 |
| Частота ударов в минуту | 560 |
| Мощность электродвигателя, Вт | 1400 |
| Размах колебаний трамбующего башмака,м | 0,03 |
Рисунок 4- конструктивная схема трамбовки ИЭ-4502
1 - трамбующий башмак; 2 - редуктор; 3 - кривошипно-шатунный механизм; 4 - ползун; 5 - ступенчатый шток; 6 - пружина; 7 - цилиндр; 8 - корпус; 9 - неуравновешенная масса; 10 - рукоятка управления.
Бетономешалки РБГ-150.
Таблица 7-технические характеристики РБГ-150.
| Наименование параметра | Значение параметра |
| Объём барабана, л | 180 |
| Объём загрузки, л | 100 |
| Крупность заполнителей, мм | 40 |
| Мощность электродвигателя, кВт | 0.37 |
| Напряжение питающей сети, В | 220(380) |
| Частота вращения барабана, об/мин | 18±2 |
| Длина, мм | 900 |
| Ширина, мм | 600 |
| Высота, мм | 1200 |
| Масса, кг | 64 |
Экскаватор ЭО 4221.















