ПЗ Павлюченко (1052175), страница 5
Текст из файла (страница 5)
Исходя из расчета следует, что элементы пролетного строения со сквозными фермами не удовлетворяют безопасному пропуски подвижного состава II категории и учитывая то, что показатель качества состояния пролетного строения неудовлетворительный данное пролетное строение необходимо заменить.
2.2 Классификация грузоподъемности промежуточной опоры
Грузоподъёмность промежуточных опор определяют:
- по среднему давлению;
- по максимальному давлению;
- по эксцентриситету приложения равнодействующих нагрузок с нахож-дением относительного эксцентриситета;
- по устойчивости против опрокидывания.
Данные необходимые для расчета грузоподъемности промежуточной опоры приведены в таблице 2.2.
Таблица 2.2 – Данные необходимые для расчета грузоподъемности
| Вид сечения | Расчетное сечение | А, м2 | Wх, м3 | Wу, м3 | R, тс/м2 | рх, м | ру, м |
| 1 | 2 | 3 | 4 | 5 | 6 | 7 | 8 |
|
| Подошва фундамента | 66,64 | | 151,05 | 350 | | 2,3 |
|
| Обрез фундамента | 27,33 | 11,56 | 43,50 | 340,3 | 0,42 | 1,59 |
2.2.1. Расчёт промежуточной опоры по среднему давлению
Расчётная схема промежуточной опоры по среднему давлению, показана на рисунке 2.2, данная схема предусматривает загружение временной вертикальной нагрузкой обоих опирающихся пролётных строений. В расчёт по среднему давлению вводят только вертикальные постоянные нагрузки и искомую временную нагрузку, величину которой находят по следующей формуле:
(2.5)
где:
- коэффициент условий работы, для сечения по подошве фундамента (см.п.5.2.3 [6]);
- коэффициент условий работы, для сечения по обрезу фундамента (см.п.5.2.3 [6]);
- коэффициент надёжности по назначению, для сечения по подошве фундамента (см.п.5.2.2 [6]);
- коэффициент надёжности по назначению, для сечения по обрезу фундамента (см.п. 5.2.2 [6]);
- несущая способность грунта основания;
- расчётное сопротивление кладки опоры;
С учётом климатического коэффициента kк=0,83 (см.таблицу 4.8 [6]), расчётное сопротивление равно
;
А – рабочая площадь поперечного (см.таблицу);
- доля вертикальной нагрузки от подвижного состава, для однопутной опоры (см.п.5.4.7 [6]);
- коэффициент надёжности к временным нагрузкам (см.таблицу 5.3 [6]);
- суммарная площадь линий влияния усилий;
, (2.6)
где:
- длина загружения линий влияния;
Подставляя численные значения в формулу 2.26., получим:
;
- суммарное вертикальное усилие от постоянных нагрузок;
(2.7)
где:
- собственный вес частей тела опоры выше расчётного сечения (по обрезу фундамента) с соответствующим коэффициентом надёжности по назначению;
– соб-ственный вес частей тела опоры выше расчётного сечения (по подошве фундамента) с соответствующим коэффициентом надёжности по назначению;
- объём промежуточной опоры, выше сечения по обрезу фундамента;
- объём подферменника опоры, выше сечения по кладке опоры;
- объём фундамента опоры, выше сечения по подошве фундамента;
- удельный вес тяжёлого бетона;
- интенсивность постоянной нагрузки от веса пролётного строения;
- коэффициент надёжности по нагрузке для пролётного строения;
- коэффициент надёжности по нагрузке для мостового полотна;
Подставляя численные значения в формулу 2.7, для сечения по обрезу фундамента получим:
;
Подставляя численные значения в формулу 2.7, для сечения по подошве фундамента получим:
;
Рисунок 2.2. – Расчетная схема по среднему давлению
Подставляя численные значения в формулу 2.25, для сечения по подошве фундамента, получим:
;
Подставляя численные значения в формулу 2.25., для сечения по обрезу фундамента, получим:
;
2.2.2 Расчёт промежуточной опоры по максимальному давлению
Грузоподъёмность промежуточных опор по максимальному давлению определяют как в продольном, так и в поперечном направлении.
2.2.2.1 Расчёт промежуточной опоры по максимальному давлению по подошве фундамента в продольном направлении
Схема загружения временной нагрузкой одного пролёта показана на рисунке 2.3.
Рисунок 2.3. – Схема загружения временной нагрузкой одного пролёта
Допускаемую временную нагрузку определяют по следующей формуле:
, (2.8)
где:
- момент сопротивления (см.таблицу);
, (2. 9)
, (2.10)
А=
(м2) – площадь поперечного сечения по подошве фундамента;
- суммарный момент в сечении, от постоянных нагрузок;
(2.11)
где:
- горизонтальные расстояния (плечи) от центра тяжести сечения, до соответствующих нагрузок;
,
- продольные ветровые нагрузки на пролётное строение и на опору;
, (2.12)
- рабочая площадь пролётного строения;
, (2.13)
- рабочая площадь промежуточной опоры;
- интенсивность нормативной ветровой нагрузки;
, (2.14)
где
- средняя составляющая;
- пульсационная составляющая;
, (2.15)
, (2.16)
где: а) для пролётного строения
- нормативное ветровое давление;
- коэффициент, учитывающий давление ветра на различной высоте;
- аэродинамический коэффициент лобового сопротивления;
- коэффициент динамичности (для разрезных конструкций);
- произведение коэффициентов пульсации и корреляции;
, (2.17)
длина пролёта, или высота опоры;
;
Подставляя численные значения в формулу 2.14, 2.15 и 2.16, получим:
Подставляя численные значения в формулу 2.12, получим:
;
б) для промежуточной опоры
нормативное ветровое давление;
- коэффициент, учитывающий давление ветра на различной высоте;
- аэродинамический коэффициент лобового сопротивления;
- коэффициент динамичности (для разрезных конструкций);
- произведение коэффициентов пульсации и корреляции;
- длина пролёта, или высота опоры;
;
Подставляя численные значения в формулу 2.14, 2.15 и 2.6 получим:
Подставляя численные значения в формулу 2.13, получим:
;
- расстояние (плечо) до усилий
;
- расстояние (плечо) до усилия
,
;
- коэффициент передачи продольного усилия через опорные части;
- коэффициент надёжности по нагрузке, по таблице 3.3 [6];
- коэффициент сочетания временных нагрузок, п.3.1.2. [6];
- ледовая нагрузка, определяется по формуле:
sl=ψ
Rmn
t2∙ tg β = 1,31 ∙ 55,13∙1,42 ∙ tg 45о =141,55 тс,
где: ψ = 1,31 – коэффициент формы, находится по приложению Н [6];
Rmn = 55,13
– предел прочности льда на изгиб, находится по формуле (Н.2) [6];
t = 1,4 (м) – толщина льда;
β = 45 о – угол наклона к горизонту режущего ребра опоры.
- коэффициент надёжности по нагрузке, по таблице 3.3 [6];
- коэффициент сочетания временных нагрузок п.3.1.3. [6];
Подставляя численные значения в формулу 2.11, получим:
,
- площадь линии влияния усилий;
- площадь линии влияния моментов;
(м) - полная длина пролётного строения;
Подставляя численные значения в формулу 2.8, получим:
;
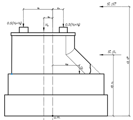
2.2.2.2 Расчёт промежуточной опоры по максимальному давлению по подошве фундамента в поперечном направлении
Схема загружения промежуточной опоры на максимальную нагрузку в поперечном направлении показана на рисунке 2.4.
Рисунок 2.4. – Схема загружения промежуточной опоры на максимальную нагрузку в поперечном направлении
Суммарный момент в сечении от постоянных нагрузок:
, (2.19)
где:
- сумма собственных весов частей тела опоры, расположенных выше рассматриваемого сечения;
nQi,np,
,
,nl - коэффициент надежности по нагрузкам, находится по таблице 3.3 [6];
ек = 1,25 (м) - горизонтальное расстояние (плечо) от центра тяжести сечения, до соответствующей нагрузке;
- продольная ветровая нагрузка на подвижной состав;
- продольная ветровая нагрузка на пролётное строение;
- продольная ветровая нагрузка на опору;
- ледовая нагрузка;
- расстояние (плечо) до усилия
;
- расстояние (плечо) до усилия
;
- расстояние (плечо) до усилия
;
ηv = 0,5 - коэффициент сочетания для ветровой нагрузки.
Для классифицируемой опоры ветровые нагрузки составляют:
на пролёты:
;
на подвижной состав:
;
на опору:
.
- расстояние (плечо) до усилия
;
- расстояние (плечо) до усилия
;
- расстояние (плечо) до усилия
;















