ПЗ Павлюченко (1052175), страница 3
Текст из файла (страница 3)
Таблице 1.4. Параметры потока в подмостовом сечении
| Обеспеченность | Параметры | ||||
| Ширина, м | Глубина, м | Площадь, м2 | Расход, м3/с | Скорость, м/с | |
| 0,33% | 253.06 | 2.84 | 718.50 | 2450 | 3.41 |
| 1,0% | 253.06 | 2.53 | 640.05 | 1990 | 3.11 |
| 2,0% | 253.06 | 2.39 | 604.62 | 1810 | 2.99 |
| 10,0% | 251.40 | 1.96 | 493.46 | 1290 | 2.61 |
1.5. Характеристика пролётных строений
Пролетные строения №№ 1-3 расчетными пролетами по 44.80 м – металлические балочные, со сквозными фермами с ездой понизу, с параллельными поясами и треугольной системой решетки. Изготовлены в 1979 г. из стали марки 15ХСНД по типовому проекту Гипротрансмоста инв.№ 690/2 под расчетную нагрузку С14 (1962 г.). Соединения элементов на высокопрочных болтах. Смонтированы на опоры моста в 1980 г.
Пролетные строения №№ 4-6 расчетными пролетами по 44.80 м – металлические балочные клепаные, со сквозными фермами с ездой понизу, с параллельными поясами и треугольной системой решетки со стойками и подвесками. Изготовлены из стали марки Ст.3 под расчетную нагрузку Н8 (1931 г.). Монтажные соединения элементов ферм и балок проезжей части осуществлены на заклепках. Пролетные строения смонтированы на опоры моста в 1946-47 г.г.
Общий вид пролётных строений №№ 4-6 показан на рисунке 2.1. Состав сечения элементов фермы представлены в таблице В.1.
-
1.6. Характеристика береговой опоры
Устои №№ 0, 6 однотипные, массивной конструкции, с обратными стенками, запроектированы по техническим условиям проектирования 1938 г., сооружены в 1941 г. под расчетную временную вертикальную нагрузку Н8 (1931 г.).
Тела устоев выше обрезов фундаментов сооружены из бутобетона при монолитном бетоне марки М150 и облицованы гранитом. В плане тела устоев имеют тавровую форму.
Подферменники устоев со сливами и опорными тумбами выполнены из железобетона при монолитном бетоне марки М300, Мрз300, переустроены при реконструкции моста в 1979 году. При достройке предусмотрена срубка слабого бетона подферменников с анкеровкой нарощенных частей в существующую кладку арматурными стержнями класса А-II диаметром 20 мм и длиной 50 см с шагом 40 см, а также переустройство гидроизоляции балластных корыт. Гидроизоляция: четыре слоя стеклоткани между пятью слоями битума.
Фундаменты устоев − из монолитного бетона марки М150, устроены на естественном основании (сооружались в открытых котлованах). Их подошвы опираются на слой галечника с песком, а глубина заложения (от их обрезов) составляет 6.05 и 5.60 м соответственно для опор №№ 0 и 6.
Для армирования железобетонных элементов применялась арматура классов А-I и А-II марок ВСт3сп и ВСт5сп2 по ГОСТ 380-71*.
Общий вид опоры 0 показан на рисунке 1.1., 1.2., и 1.3.
Рисунок 1.1. – Общий вид опоры 0
Рисунок 1.2. – Общий вид опоры 0 (вид 1-1)
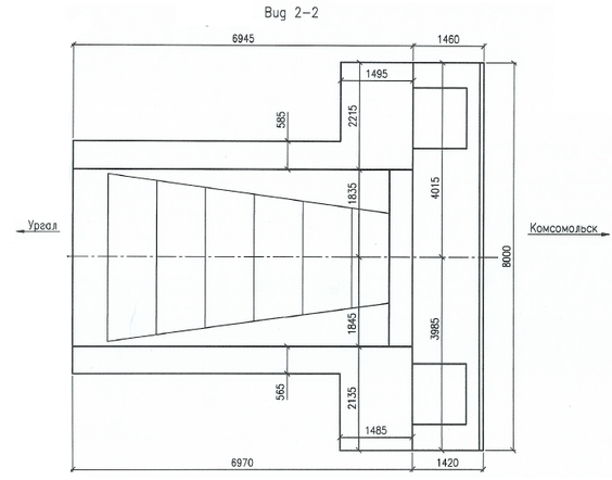
Рисунок 1.3. – Общий вид опоры 0 (вид 2-2)
-
1.7. Характеристика промежуточной опоры
Промежуточные опоры моста №№ 1-5 – однотипные, массивной конструкции, запроектированы по техническим условиям проектирования 1938 г., сооружены в 1941 г. под расчетную временную вертикальную нагрузку Н8 (1931 г.). Выше обрезов фундаментов построены из бутобетона М150 и облицованы гранитом. С верховой стороны опоры имеют ледорезы с наклоном режущей грани 1:1, облицованные гранитом чистой тески, с низовой стороны – очерчены по радиусам (полуциркульное очертание).
Подферменники (оголовки) всех опор со сливами и опорными тумбами – из железобетона при монолитном бетоне марке М300, Мрз300. При достройке в 1979 году была предусмотрена срубка слабого бетона подферменников с анкеровкой нарощенных частей в существующую кладку арматурными стержнями класса А-II диаметром 20 мм и длиной 50 см.
Фундаменты всех опор моста выполнены из бутобетона М150, запроектированы на естественном основании. В основании лежат галечники с песком. Глубина заложения фундаментов опор от их обрезов составляет 6.00 м. Общий вид промежуточной опоры показан на рисунке 1.4., 1.5.
Рисунок 1.4. – Общий вид промежуточной опоры
Рисунок 1.5. – Общий вид промежуточной опоры (вид 1-1)
-
Оценка технического состояния моста
Балльная оценка технического состояния искусственных сооружений характеризует уровень их эксплуатационной надежности на дистанции пути в целом или на участке железной дороги. Величина оценки зависит от качества текущего содержания и ремонта сооружений, входит в основные показатели работы дистанции пути и является одним из критериев оценки ее деятельности.
Дефект наибольшей категории, даже если он всего один, определяет базовую балльную оценку сооружения Кбаз. Чтобы существенно повысить балльную оценку сооружения, необходимо, в первую очередь, устранить наиболее опасные дефекты, по которым была установлена базовая оценка.
Для того, чтобы стимулировать сначала работы на сооружениях с дефектами худшей категории, каждый из дефектов, в зависимости от его категории, учитывается со своим коэффициентом (в долях балла).
Мост разделён на 2 учатска. В таблице 1.5 приведена дефектная ведомость I участка(устой №0, опоры №№ 1-3, пролётные строения №№ 1-3), в таблице 1.6 дефектная ведомость II участка(опоры №№ 4,5, устой №6, пролётные строения №№ 4-6),.
Таблица 1.5. – Дефектная ведомость I участка
| № п/п | Индекс деф-та | Наименование дефекта | Адрес | Категория | |
| обобщённая | по ремонтопригодности | ||||
| 1 | 2 | 3 | 4 | 5 | 6 |
| Мостовое полотно | |||||
| 1 | 95* | В панели 2-3 температурный зазор в | ПС № 1 | 3 | 3 |
| 1 | 2 | 3 | 4 | 5 | 6 |
| левом стыке рельсовых звеньев 5-6 достигает 32 мм, в левом стыке рельсовых звеньев 3-4 – 29 мм | |||||
| 2 | 65* | Стыки путевых рельсов расположены не по наугольнику | ПС №№ 1-3 | 1 | 1 |
| 3 | 185* | Отдельные шпалы из-за гнили и раскалывающих трещин пришли в негодность. До 15% шпал имеют значительный износ | Перед устоем и на устое № 0 | 1 | 1 |
| 4 | 110* | До 3% подкладок путевых рельсов вибрируют при проходе поездов | Перед устоем № 0 | 2 | 1 |
| 5 | 96* | Не отрегулированы температурные зазоры в стыках путевых рельсов | ПС №№ 1-3 | 2 | 1 |
| 6 | 10* | Стрела подъема рельсового пути менее нормативной | ПС № 3 | 2 | 1 |
| 7 | 70* | Стыки путевых рельсов расположены ближе 2 м от конца пролетного строения | ПС № 2 | 2 | 1 |
| 8 | 675 | Над подвижными концами пролетных строений в стыках контруголков с одной стороны установлено по одному болту на полунакладку | ПС №№ 1-3 | 2 | 1 |
| 9 | 285 | Единичные мостовые брусья расколоты трещинами | ПС №№ 2, 3 | 1 | 1 |
| 10 | 785 | Трещины в железобетонных плитах раздельных тротуаров | ПС №№ 1, 2 | 1 | 1 |
| 11 | 900 | Стойки перил раздельных тротуаров недостаточно закреплены: перила вибрируют при проходе поездов | ПС №№ 1, 2 | 2 | 1 |
| 12 | 120* | В пределах звеньев 25-32 к мосту путевые рельсы пришиты к шпалам по 4 костыля на подкладку | перед устоем № 0 | 2 | 1 |
| 13 | 80* | В стыках левых рельсовых звеньев 29-30, 35-36, 39-40, правых звеньев 29-30, 38-39 имеется единичные слабые болты | перед устоем № 0 | 2 | 1 |
| 14 | 160* | В пределах 27-го звена на длине 3 м отсутствует плечо балластной призмы | перед устоем № 0 | 3 | 2 |
| 15 | 340 | Имеются единичные слабые лапчатые болты крепления мостовых брусьев к верхним поясам продольных балок | ПС №№ 1-3 | 1 | 1 |
| 1 | 2 | 3 | 4 | 5 | 6 |
| 16 | 685 | Неплотности прилегания полок контруголков к поверхности 10 шпал (провесы) составляют от 5 до 20 мм | Устой № 0 | 1 | 1 |
| Опоры | |||||
| 17 | 2785+ | Разрушена бутовая кладка ледореза и его облицовка, с верховой, низовой сторон и со стороны III пролета отсутствуют камни облицовки нижнего ряда, а в месте сопряжения с низовой стороной и в средней части ширины на длине 1-1.5 м также и камни облицовки 2-ого ряда | Опора № 2 | 3 | 3 |
| 18 | 2360 | С верховой, низовой сторон и со стороны III пролета разрушена бутовая кладка фундамента на высоту порядка 60 см | Опора № 2 | 2 | 2 |
| 19 | 2680 | По защитному слою бетона боковых поверхностей левой опорной тумбы подферменника проходит сеть горизонтальных трещин раскрытием до 0.2 мм со следами выщелачивания | Опора № 1 | 1 | 1 |
| 20 | 2360 | Разрушена заделка швов между камнями облицовки ледорезных частей, отдельные камни облицовки имеют трещины | Опора № 3 | 1 | 1 |
| 21 | 2715 | На левой боковой поверхности подферменника из горизонтальной микротрещины длиной 60 см наблюдается интенсивное выщелачивание цементного камня | Опора № 0 | 1 | 2 |
| 22 | 2360 | Со стороны IV пролета в уровне меженного горизонта воды имеются вывалы камней облицовки | Опора № 3 | 2 | 2 |
| Пролетные строения | |||||
| 23 | 1655 | Отсутсвует нумерация узлов | ПС №№ 1-3 | 1 | 1 |
| 24 | 1605 | Неудовлетворительное состояние (отсутствие) окраски | ПС №№ 1-3 | 2 | 2 |
| 25 | 1965 | В стенках продольных балок у верхних и нижних концов сварных швов прикрепления вертикальных ребер жесткости имеются локализованные | ПС №№ 1-3 | 2 | 2 |
| 1 | 2 | 3 | 4 | 5 | 6 |
| (засверленные по концам) многочисленные усталостные трещины типов Т-9 и Т-10 длиной от 26 до 120 мм. На ПС № 2 стенке левой продольной Б2-3 трещина Т9 длиной 115 мм получила дальнейшее развитие за рассверленным отверстием | |||||
| Опорные части | |||||
| 26 | 2465 | Не докручены гайки анкерных болтов прикрепления нижних балансиров неподвижных опорных частей пролетного строения № 1 | Опора № 1 | 2 | 1 |
Таблица 1.6. – Дефектная ведомость II участка
| №п/п | Индекс деф-та | Наименование дефекта | Адрес | Категория | |
| обобщённая | по ремонтопригодности | ||||
| 1 | 2 | 3 | 4 | 5 | 6 |
| Мостовое полотно | |||||
| 1 | 65* | Стыки путевых рельсов расположены не по наугольнику | ПС №№ 4-6 | 1 | 1 |
| 2 | 185* | Отдельные шпалы из-за гнили и раскалывающих трещин пришли в негодность. До 15% шпал имеют значительный износ | За устоем № 6 | 1 | 1 |
| 3 | 110* | До 2% подкладок путевых рельсов вибрируют при проходе поездов | За устоем № 6 | 2 | 1 |
| 4 | 96* | Не отрегулированы температурные зазоры в стыках путевых рельсов | ПС №№ 4-6 | 2 | 1 |
| 5 | 10* | Стрела подъёма пути менее 1/2000 от величины расчетного пролета ферм | ПС №№ 4-6 | 2 | 1 |
| 6 | 675 | Над подвижными концами пролетных строений в стыках контруголков с | ПС №№ 4-6 | 2 | 1 |
| 1 | 2 | 3 | 4 | 5 | 6 |
| одной стороны установлено по одному болту на полунакладку | |||||
| 7 | 285 | Единичные мостовые брусья расколоты трещинами | ПС № 4 у узла Н3 | 1 | 1 |
| 8 | 785 | Трещины в железобетонных плитах раздельных тротуаров | ПС №№ 4-6 | 1 | 1 |
| 9 | -* | На подходе к мосту в пределах левого звена 22 и правого 29 вместо рельсов длиной по 25 м с одной стороны уложено по 2 рельса длиной 12.5 м | за устоем № 6 | 1 | 1 |
| 10 | 195* | На подходе к мосту в пределах 30-го звена путевых рельсов отдельные шпалы перекошены в плане | за устоем № 6 | 1 | 1 |
| 11 | 35* | На подходе к мосту в левом стыке путевых рельсовых звеньев 33-34 концевая часть 34-ого рельсового звена имеет дефект: отслоение и выкраши-вание металла на поверхности катания в закаленном слое головки рельса на длине 38 мм и глубину до 4 мм | за устоем № 6 | 2 | 1 |
| 12 | 340 | Имеются единичные слабые лапчатые болты крепления мостовых брусьев к верхним поясам продольных балок | ПС №№ 4-6 | 1 | 1 |
| Опоры | |||||
| 13 | 2715 | На боковой поверхности устоя наблюдается вещелачивание цементного камня | Устой № 6 | 1 | 1 |
| 14 | 2680 | В сливах опорных тумб подферменников имеются трещины | Опоры №№ 4, 6 | 2 | 2 |
| 15 | 2360 | Разрушена заделка швов между камнями облицовки ледорезных частей, отдельные камни облицовки имеют трещины | Опора №5 | 1 | 1 |
| Пролетные строения | |||||
| 16 | 1655 | Отсутсвует нумерация узлов | ПС №№ 4-6 | 1 | 1 |
| 17 | 1605 | Неудовлетворительное состояние (отсутствие) окраски | ПС №№ 4-6 | 2 | 2 |
| 18 | 1830 | В прикреплении консоли правой Б0-1 к стенке поперечной балки П0 снизу вместо заклепки установлена монтажная пробка | ПС № 4 | 1 | 1 |
Все дефекты разбиты на три категории. Дефектам каждой категорий соответствует своя балльная оценка: I категория – "хорошо", II категория – "удовлетворительно" , III категория – "неудовлетворительно".[4]















