МОЙ ДИПЛОМ (1051977), страница 10
Текст из файла (страница 10)
а) для устоя:
б) для промежуточной опоры:
Необходимое количество арматуры на 1 п.м.:
С ячейкой 20х20мм, необходимое количество стержней 6 шт. принимаем 6 стержней на 1 п.м.
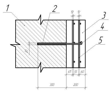
Связь железобетонной рубашки с кладкой опоры обеспечивают постановкой анкеров. Анкера, диаметром 20 мм заделывают в скважины пробуренные в кладке в шахматном порядке на глубину не менее 30 см с шагом 0,5 - 1,0 м. Деталь установки анкера показана на рисунке 4.1.
1 – кладка опоры;
2 – цементно-песчаный раствор;
3 – бетон ж.б. рубашки - В25, F300;
4 – анкер d=20 мм;
5 – арматура железобетонной рубашки d=12 мм.
Рисунок 4.1. – Деталь установки анкера.
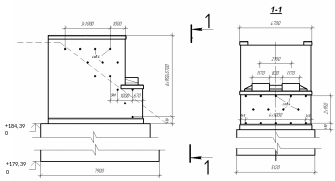
Общий вид ж.б. рубашки промежуточных опор приведен на рисунке 4.2.
Рисунок 4.2. – Общий вид ж.б.рубашки промежуточных опор.
4.2. Составление проекта цементации кладки.
4.2.1. Общие положения.
Цементацию кладки искусственных сооружений производят с целью восстановления монолитности, увеличения прочности, повышения водонепроницаемости, устранения фильтрации воды через кладку, увеличения ее долговечности.
Возможность применения способа цементации кладки зависит от размера трещин в кладке, их конфигурации, скорости фильтрации воды через кладку и ее химического состава.
Сущность способа цементации заключается в том, что в кладку через пробуренные скважины нагнетают цементный раствор, который после твердения превращается в плотный водонепроницаемый и нерастворимый в воде материал, заполняющий трещины и пустоты и препятствующий фильтрации через них воды.
Для повышения водонепроницаемости, уменьшения усадочных явлений, увеличения зоны растекания и регулировки сроков схватывания в нагнетаемые растворы вводят специальные добавки.
Нагнетание цементного раствора может производится гидравлическим способом – насосами и пневматическим – непосредственно сжатым воздухом от компрессора посредством растворонагнетателей.
5. Технология и организация работ по капитальному ремонту моста.
-
Основные положения организации строительства моста.
Организационные мероприятия выполняют до начала работ на строительной площадке. Их начинают с утверждения технического проекта. Затем уточняют источники получения строительных материалов, конструкций и деталей. Строительные материалы и конструкции поступают на объект по железной и автомобильной дорогам. Ближайшая станция с товарными операциями находится на расстоянии 2,5 (км) от места строительства моста.
Одно из основных условий обеспечения высокого качества сооружения – организация полноценного и своевременного контроля качества мостостроительных работ. Контроль обеспечивается техническими отделами строительных организаций, а также представителями организаций заказчиков.
5.2. Технология производства работ по устройству железобетонной «рубашки» опор мостов.
Работы по устройству железобетонных рубашек производятся без перерыва в движении поездов.
Перед началом работ необходимо разровнять площадку вокруг опор моста. Разравнивание площадки производится с помощью бульдозера Liebherr – 751 mining. Технические характеристики бульдозера Liebherr – 751 mining приведены в приложении А.
Для ремонта фундамента опоры №1 сначала производится отсыпка островка автосамосвалами КамАЗ-65115. Основные технические характеристики КамАЗа приведены в приложении Б.
Затем производится обсыпка скалой толщиной 1,0 м. Разработка котлована производится с помощью мини-экскаватора Liebherr -R313 до отметки +184,00. Технические характеристики мини-экскаватора Liebherr -R313 приведены в приложении В.
Далее до отметки +183,50 разработка котлована производится вручную. На следующей стадии производится установка деревянных щитов с последующим раскреплением. Затем устройство сплошных подмостей, далее производятся стадии с 1-6.
Технология производства работ по устройству железобетонной «рубашки» предусматривает следующие стадии:
Стадия № 1.
С помощью перфораторов ПР-25Л, в шахматном порядке бурятся скважины диаметром 40 мм, на глубину 50 см. Также бурятся скважины для цементации кладки, с последующей постановкой в них металлических трубок.
Стадия № 2.
Связь железобетонной рубашки с кладкой опоры обеспечивают постановкой анкеров диаметром 20 мм. Анкера устанавливают в пробуренные скважины, после чего в скважины укладывают цементно-песчаный раствор.
В скважины устанавливают клинощелевые анкера, на которые в свою очередь будет навешиваться арматурная сетка.
Работа перфораторов производится от электростанции.
Стадия № 3.
На анкеры навешивают два ряда арматурной сетки (применяется арматура A-II диаметром 12 мм с ячейкой 20х20 см), которая связывают между собой и с анкерами специальной проволокой.
Стадия № 4.
Устанавливают сборную деревянную опалубку.
В качестве опалубки используют сборные деревянные щиты.
Основные требования, предъявляемые к опалубкам, приведены в приложении Г.
Стадия № 5.
Производят бетонирование железобетонной «рубашки».
Бетонирование производится с помощью бетононасоса «CIFA». Технические характеристики бетононасоса «CIFA» приведены в приложении Д.
Бетонирование производят послойно, без перерывов в процессе работы. Вибрирование также осуществляют послойно.
Железобетонную «рубашку» устраивают до уровня старых подферменников, а нижнюю часть опирают на фундамент опоры. Подача бетонной смеси в приемный бункер бетононасоса производится из бетоносмесительной установки СБ-92Б на базе КаМАЗа. Технические характеристики бетоносмесительной установки СБ-92Б на базе КаМАЗа приведены в приложении Е.
После набора бетоном проектной прочности, опалубку демонтируют.
5.3. Технология производства работ по цементации кладки опор моста.
Количество, взаимное расположение, глубина и направление скважин, назначаемое в проекте в зависимости от типа и параметров кладки, характера и количества течей и других условий производства работ, должны быть такими, чтобы в результате цементации достигались монолитность кладки и её водонепроницаемость.
Ориентировочно расстояние между скважинами назначают исходя из удельного водопоглощения кладки. В нашем случае, для удельного водопоглощения менее 0,005 (л/мин.кПа.м), расстояние между скважинами равно 1,0 - 1,5 м. Скважины располагаются по шахматной сетке.
Глубину скважин назначают в зависимости от конструкции сооружения. Для массивных опор её принимают не более 3/8 толщины массива, при расположении скважин с обеих сторон. Скважины не должны приближаться своим забоем к противоположной стороне на расстояние менее 50 – 60см.
Диаметр скважин принимают наименьшим исходя из условий обеспечения быстрой и экономичной проходки. При перфорированном бурении рекомендуется принимать диаметры бурения 32 – 52 мм.
Скважины на боковых поверхностях бурят наклонно к горизонту под углом 10 – 15 градусов, а с подферменных площадок - вертикально и не ближе 0,5 - 0,6 м от края кладки во избежание выколов её при нагнетании цементного раствора под давлением.
После набора прочности бетона ж.б. рубашки, через трубки в скважинах, оставленных при бурении скважин под анкера, все скважины промывают водой, подавая её сверху вниз под давлением 0,2 МПа, а затем продувают скважины сжатым воздухом под давлением 0,2 МПа и закрывают до начала цементации деревянными пробками обёрнутыми паклей.
Инъектирование цементного раствора производят в одну или одновременно в несколько скважин. Скважины, расположенные на боковых поверхностях кладки, инъектируют последовательно снизу вверх, начиная с самых нижних рядов, в вертикальные – от центра опоры к краям. Нагнетание производят до вытекания раствора из законопаченных вышерасположенных скважин.
Цементация береговой и промежуточной опор приведена на рисунках 5.1. и 5.2. соответственно.
Рисунок 5.1. - Схема цементации береговых опор.
Рисунок 5.2. - Схема цементации промежуточных опор.
Рисунок 5.3. - Схема цементации фундамента промежуточных опор.
Условные обозначения на схемах приведены в таблице 5.1.
Таблица 5.1. – Условные обозначения.
Для нагнетания раствора применяют специальные установки, нагнетатели пневматического действия, работающие от компрессоров, и ручные насосы.
В начале инъектирования нагнетается цементное тесто состава 1:10 под давлением 0,1 МПа, а в конце – раствор с водоцементным отношением 1:1 под давлением 1 МПа с добавлением пластификаторов.
Через пять суток производят контрольное нагнетание в дополнительно пробуренные контрольные скважины. Цементация кладки считается законченной, если при максимальном давлении раствор в скважины не протекает.
5.4. Технология производства работ по замене подферменных блоков.
Подферменные железобетонные блоки устанавливаются при замене пролётных строений.
После демонтажа старого пролётного строения в сторону от оси моста, с применением крана на автомобильном ходу, монтируют железобетонные подферменные блоки, устанавливая их на выравнивающий (прокладной) слой из цементно-песчаного раствора.
Технические характеристики автокрана KATO NK-450S приведены в приложении Ж.
Аналогично устанавливают железобетонные блоки опорных площадок.
Далее устраивают сливную призму из цементно-песчаного раствора с уклоном 1:10, козырек которой должен быть ниже опорной площадки на 15 см.
5.5. Технология производства работ по замене пролетных строений.
Монтаж пролётного строения длиной
и массой с гидроизоляцией одного блока
производится консольным электрифицированным поворотным краном
.
Монтаж производится по следующим стадиям:
Установка крана
в рабочее положение и настройка.
К месту строительства со станции кран подаётся маневровым локомотивом в разобранном положении. На месте строительства к главной балке крана подсоединяются консоли. К консолям присоединяются строповочные балки с противовесами. Также проверяется работа всех устройств крана, автоматика, механизмы подъёма и строповочные приспособления для балки. Проверяется работоспособность устройств обеспечивающих аварийное отключение систем и устройств крана.















