Рекомендации по выбору конструктивной и расчетной схемы каркаса
Глава 6
ПОПЕРЕЧНАЯ РАМА ОДНОЭТАЖНОГО
ПРОИЗВОДСТВЕННОГО ЗДАНИЯ
_____________________________________________________________
6.1. Рекомендации по выбору конструктивной и расчетной схемы каркаса
Проектирование каркаса производственного здания начинается с выбора и компоновки его конструктивной схемы. При компоновке конструктивной схемы каркаса в зависимости от назначения здания разбивается сетка колонн, выбирается схема поперечной рамы, устанавливаются внутренние габариты здания, назначаются генеральные размеры основных конструктивных элементов рамы, решается система связей по колоннам и конструкциям покрытия.
Основой поперечной системы каркаса является поперечная рама. Для стальных каркасов производственных зданий за основной тип принимается
рама со ступенчатыми колоннами, жестко защемленными в фундаменте, и ригелем в виде стропильных ферм.
Сопряжение колонн с ригелями следует назначать шарнирным или жестким в зависимости от числа пролетов здания, высоты здания, характеристик кранов и грунтов. Для однопролетных зданий жесткое сопряжение обычно рекомендуется при наличии мостовых кранов групп режимов работы 7К и 8К («особого режима») или грузоподъемностью кранов 100 т и более независимо от режима работы, при двухярусном расположении кранов, а также при высоте здания Н > 18 м, пролете L > 36 м и соотношении H/L > 1,5 независимо от наличия кранов.
Рекомендуемые материалы
Верхнюю (надкрановую) часть колонны обычно проектируют сплошного двутаврового сечения; нижнюю (подкрановую) принимают сплошной при ширине до 1 м включительно, а при большей ширине проектируют сквозной. При малоуклонных кровлях применяют фермы трапецеидального очертания (уклон i=1/8 – 1/12) и с параллельными поясами (i = 0,015 – 0,025). В неотапливаемых зданиях возможен вариант применения в качестве ригеля треугольной фермы с уклоном верхнего пояса i =1/3,5 для покрытия из волнистых асбоцементных листов.
Покрытия применяются прогонные или беспрогонные. В качестве прогонов, устанавливаемых на верхние пояса стропильных ферм, применяются прокатные балки, гнутые профили, легкие решетчатые конструкции (при шаге ферм больше 6 м). В беспрогонном покрытии применяются крупнопанельные железобетонные плиты шириной 3 м, пролетом 6 и 12 м, а также металлические панели.
6.1.1. Разбивка сетки колонн
Размещение колонн в плане производится с учетом технологических, конструктивных и экономических факторов согласно требованиям «Основные положения по унификации объемно-планировочных и конструктивных решений промышленных зданий» (СН 223-62*). Оно должно быть увязано с габаритами и расположением технологического оборудования, направлением грузопотоков. Колонны размещаются так, чтобы вместе с ригелями они образовывали поперечные рамы, т.е. в многопролетных цехах колонны разных рядов устанавливаются по одной оси. Расстояния между колоннами поперек здания (размеры пролетов) и в продольном направлении (шаг колонн) назначаются в соответствии с укрупненным модулем, кратным 6 м (рис. 6.1).
Здание большой длины согласно нормам разрезается на отдельные блоки поперечными температурными швами для уменьшения дополнительных напряжений в элементах каркаса от колебания температуры.

Рис. 6.1. Возможные варианты компоновки конструктивной схемы здания:
а – вариант 1 (В = 6 м); б – вариант 2 (В = 12 м); в – вариант 3 (В = 12 м
с применением подстропильных ферм)
Наибольшие расстояния между температурными швами стальных каркасов одноэтажных зданий, при которых температурные воздействия не учитываются в расчетах, принимаются по табл. 6.1.
Таблица 6.1
Предельные размеры температурных блоков зданий
| Здание | Наибольшее расстояние, м | |||||
| между температурными швами по длине блока (вдоль здания) | от температурного шва или торца здания до оси ближайшей вертикальной связи | между осями двух вертикальных связей в одном блоке | ||||
| в климатических районах строительства с расчетной температурой, оС | ||||||
| t ≥ – 40 | t < – 40 | t ≥ – 40 | t < – 40 | t ≥ – 40 | t < – 40 | |
| Отапливаемое | 230 | 160 | 90 | 60 | 40 – 50 | 40 |
| Неотапливаемое и горячие цехи | 200 | 140 | 75 | 50 | 40 – 50 | 40 |
Температурный шов устраивается на спаренных колоннах, геометрические оси которых смещаются от разбивочной оси на 500 мм в каждую сторону. На такую же величину смещаются геометрические оси колонн у торцов здания для возможности использования типовых ограждающих плит и панелей с номинальной длиной 6 или 12 м.
В сейсмических районах строительства длина сейсмического отсека здания не должна превышать: в зданиях с расчетной сейсмикой 7 баллов – 144 м; 8 баллов – 120 м; 9 баллов – 96 м.
6.1.2. Компоновка однопролетной рамы
производственного здания
Компоновку поперечной рамы начинают с установления ее генеральных габаритных размеров и основных размеров элементов конструкций, входящих в состав рамы.
Размеры по вертикали привязывают к отметке уровня чистого пола, принимая ее нулевой, размеры по горизонтали – к продольным осям здания.
Генеральные размеры здания: пролет L, высота Н1 до уровня головки кранового рельса и полезная высота здания Н0 назначаются в зависимости от габаритов оборудования (в том числе кранового) и характера технологического процесса в цехе.
Высота от головки кранового рельса до низа несущей конструкции покрытия Н2 обусловлена крановым габаритом над головкой рельса Нк (справочные данные по мостовым кранам приведены в табл. 6.2).
Таблица 6.2
Справочные данные по мостовым кранам нормального режима работы** (для учебного проектирования)
| Грузоподъемность, Q*, т | Пролет здания L, м | Размеры, мм | Давление колеса | Вес теле- жки GТ, кН | Вес крана G, кН | Тип рельса и его вес, кН/м | Высота ре- льса, мм | ||||
| Hk | B1 | B2 | К | Fк1, кH | Fк2, кH | ||||||
| 32/5 | 24 30 36 | 2750 2750 3000 | 300 | 6300 6300 6860 | 5100 5100 5600 | 315 345 380 | – | 120 | 520 620 740 | КР-70 0,53 | 120 |
| 50/12,5 | 24 30 36 | 3150 | 300 | 6760 | 5250 | 470 500 540 | – | 180 | 665 780 900 | КР-80 0,64 | 130 |
| 80/20 | 24 30 36 | 3700 4000 4000 | 400 | 9100 | 4350 | 350 380 410 | 370 400 430 | 380 | 1100 1300 1500 | КР-100 0,89 | 150 |
| 100/20 | 24 30 36 | 3700 4000 4000 | 400 | 9350 | 4600 | 410 450 490 | 450 480 510 | 410 | 1250 1450 1650 | КР-120 1,18 | 170 |
| 125/20 | 24 30 36 | 4000 | 400 | 9350 | 4600 | 480 520 550 | 520 550 580 | 430 | 1360 1550 1750 | КР-120 1,18 | 170 |
| 160/32 | 24 30 36 | 4800 | 500 | 10500 | 1500 | 310 330 350 | 330 350 370 | 650 | 1750 1950 2200 | КР-120 1,18 | 170 |
| 200/32 | 24 30 36 | 4800 4800 5200 | 500 | 10800 | 1500 | 370 400 420 | 380 410 430 | 700 | 1650 2150 2450 | КР-120 1,18 | 170 |
* Q – грузоподъемность крана (числитель на большом крюке, знаменатель – на малом).
** Краны других режимов работы: см: ГОСТ 25711-83, ГОСТ 67-81.
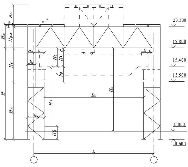
Пример 6.1. Выполнить компоновку поперечной рамы однопролетного производственного здания пролетом L = 30 м с шагом колонн В = 12 м, оборудованного двумя электрическими мостовыми кранами грузоподъемностью Q = 100/20 т режима работы 5К (среднего режима работы).
Отметка головки кранового рельса Н1 = 15,4 м.
Принимаем раму, состоящую из ступенчатых колонн и ригеля в виде стропильной фермы с параллельными поясами и уклоном верхнего пояса i = 0,025 (рис. 6.2).
Устанавливаем вертикальные размеры.

Рис. 6.2. Схема поперечной рамы
Расстояние от головки кранового рельса до низа фермы
Н2 = Нк + 100 + а = 4000 + 100 + 300 = 4400 мм,
где Hk – высота от головки кранового рельса до верхней части тележки;
100 мм – зазор, устанавливаемый техническими условиями эксплуатации кранов;
а – зазор, учитывающий прогиб фермы по нижнему поясу и размеры выступающих вниз частей элементов связей с учетом их прогиба (принимается 200 – 400 мм).
Для соблюдения условий унификации размер Н2 принимается кратным 200 мм.
Полная высота цеха от уровня пола до низа стропильной фермы
Но = Н1 + Н2 = 15400 + 4400 = 19800 мм.
Размер Но принимается кратным 0,6 м, при большой высоте может использоваться укрупненный модуль 1,2 и 1,8 м. Унификация производится за счет изменения Н1 в большую сторону.
Высота верхней части колонны
Нв = Н2 + hб + hр = 4400 + 1700 + 200 = 6300 мм,
где hб = В/7 = 12000 / 7 » 1700 мм, принимается по табл. 6.3;
hр = 200 мм – высота кранового рельса с подкладками.
Высота нижней части колонны
Нн = Н0 – Нв + Hф = 19800 – 6300 + 600 = 14100 мм,
где Нф = 500 – 800 мм – заглубление опорной плиты базы колонны ниже нулевой отметки пола.
Высота колонны
Н = Нн + Нв = 14100 + 6300 = 20400 мм.
Высота ригеля у опоры Нр,о = 3150 мм при применении типовых стропильных ферм с элементами из парных уголков с уклоном верхнего пояса i = 0,025.
Таблица 6.3
Основные размеры элементов подкрановых балок
| Грузоподъемность крана, т | Высота балки hb | Ширина опорного ребра bp, мм | ||
| при шаге колонн B = 6 м | при шаге колонн B = 12 м | при шаге колонн B = 6 м | при шаге колонн B = 12 м | |
| 20/5 | 1/7 B | 1/9 B | 250 | 280 |
| 32/5 | 1/7 B | 1/9 B | 320 | 320 |
| 50/12,5 | 1/6 B | 1/8,5 B | 320 | 320 |
| 80/20 | 1/6 B | 1/7,5 B | 360 | 360 |
| 100/20 | 1/6 B | 1/7 B | 360 | 360 |
| 125/20 | 1/6 B | 1/7 B | 360 | 400 |
| 160/32 | 1/6 B | 1/7 B | 360 | 400 |
| 200/32 | 1/6 B | 1/7 B | 360 | 400 |
Высота шатровой части здания
Нш = Нр,о + Нкр = 3150 + 350 = 3500 мм,
где Нкр – высота несущих конструкций кровли (плит покрытия или прогонов) плюс толщина самой кровли.
При наличии фонарной надстройки, высота которой определяется светотехническим расчетом с учетом типовых фонарных переплетов, в высоту шатровой части добавляется высота фонаря.
Устанавливаем горизонтальные размеры рамы и ее элементов.
В зданиях с кранами режима работы 7К и 8К вдоль крановых путей следует предусматривать проходы для их осмотра и ремонта. Проходы могут быть организованы через проемы в стенке колонны либо сбоку между колонной и краном (рис. 6.3). Ширину прохода назначают не менее 400 мм, высоту – 1800 мм. При проходе в стенке колонны высота сечения верхней части колонны hв должна быть не менее 1000 мм.

Рис. 6.3. Привязка колонны и крана к продольным разбивочным осям:
а – с проемом для прохода в верхней части колонны; б – с проходом вдоль подкрановых путей
Привязка наружной грани колонны к разбивочной оси принимается:
– ао = 0 (нулевая) – в невысоких зданиях (при высоте от пола до низа фермы менее 16,2 м) с колоннами постоянного сечения при шаге колонн 6 м и кранах грузоподъемностью менее 30 т;
– ао = 500 мм – в относительно высоких зданиях (при высоте от пола до низа фермы более 30 м) с колоннами ступенчатого типа, при наличии мостовых кранов грузоподъемностью 80 т и более, а также в зданиях, обслуживаемых мостовыми кранами групп режима работы 7К и 8К (независимо от грузоподъемности крана) при устройстве прохода в верхней части колонны;
– ао = 250 мм – в остальных случаях.
Принимаем привязку ао = 500 мм.
Высота сечения верхней (надкрановой) части колонн hв, назначается 450 или 700 мм (с учетом унифицированной привязки торца фермы к разбивочной оси 200 мм), но не менее 1/12 ее высоты Нв из условия обеспечения необходимой жесткости колонны в плоскости рамы:
Нв/12 = 6300 / 12 = 525 мм, принимаем hв = 700 мм.
Минимальное расстояние от оси подкрановой балки до оси колонны (привязка крана)
lmin= В1 + (hв – aо) + с = 400 + (700 – 250) + 75 = 925 мм,
где В1 = 400 мм – часть мостового крана, выступающая за ось рельса, принимается из табл. 6.2;
с = 75 мм – зазор между краном и гранью колонны по требованиям безопасности (при устройстве прохода размер l включает еще 450 мм – габарит прохода с ограждением).
Расстояние l принимается кратным 250 мм:
– при отсутствии прохода l = 750 мм для кранов грузоподъемностью не более 50 т, l = 1000 мм для кранов грузоподъемностью более 50 т;
– при устройстве прохода l = 1000 мм для кранов грузоподъемностью не более 125 т, l = 1250 мм для кранов грузоподъемностью более 125 т.
Принимаем l = 1000 мм > lmin = 925 мм.
Пролет крана
Lk = L – 2lmin = 30000 – 2 · 1000 = 28000 мм.
Высота сечения подкрановой части колонны hн назначается из условия обеспечения жесткости цеха в поперечном направлении и принимается не менее hн,min = H/20 = 20400 / 20 = 1020 мм, а в цехах с обслуживанием кранами групп режимов работы 7К и 8К – hн,min ³ H/15.
При совмещении оси подкрановой балки с осью подкрановой ветви колонны высоту сечения нижней части колонны принимаем:
hн = а0 + l = 250 + 1000 = 1250 мм > hн,min = 1020 мм.
6.1.3. Компоновка связей каркаса
Связи каркаса обеспечивают геометрическую неизменяемость и устойчивость элементов в продольном направлении, совместную пространственную работу конструкций каркаса, жесткость здания и удобство монтажа и состоят из двух основных систем: связей между колоннами и связей покрытия.
Связи между колоннами. Связи между колоннами (рис. 6.4) обеспечивают во время эксплуатации и монтажа геометрическую неизменяемость каркаса и его несущую способность в продольном направлении, воспринимают и передают на фундамент ветровые нагрузки, действующие на торец здания, и воздействия от продольного торможения мостовых кранов, а также обеспечивают устойчивость колонн из плоскости поперечных рам.
Система связей по колоннам состоит из надкрановых одноплоскостных связей V-образной схемы, располагаемых в плоскости продольных осей здания, и подкрановых двухплоскостных крестовой схемы, располагаемых в плоскостях ветвей колонны.
Подкрановые связи в каждом ряду колонн располагаются ближе к середине блока здания, чтобы обеспечить свободу температурных деформаций в обе стороны и снизить температурные напряжения в элементах каркаса. Количество связей (одна или две по длине блока) определяется их несущей способностью, длиной температурного отсека и наибольшим расстоянием Lс от торца здания (температурного шва) до оси ближайшей вертикальной связи (см. табл. 6.1). При наличии двух вертикальных связей расстояние между ними в осях не должно превышать 40 – 50 м.
Надкрановые связи устанавливаются в крайних шагах колонн у торца здания или температурного блока, а также в местах, где предусматриваются вертикальные связи в плоскости опорных стоек стропильных ферм.
Промежуточные колонны (вне блоков связей) в уровне стропильных ферм раскрепляются распорками.
При большой высоте подкрановой части колонны целесообразна установка дополнительных горизонтальных распорок между колоннами, уменьшающих их расчетную длину из плоскости рамы (на рис. 6.4 показаны пунктиром).
Вертикальные связи по колоннам рассчитываются на крановые и ветровые нагрузки W, исходя из предположения работы на растяжение одного из раскосов крестовых подкрановых связей. При большой длине элементов, воспринимающих небольшие усилия, связи принимаются по предельной гибкости λu = 200.
Элементы связей выполняются из горячекатанных уголков, распорки – из гнутых прямоугольных профилей.
Связи покрытия. Система связей покрытия состоит из горизонтальных и вертикальных связей, образующих жесткие блоки в торцах здания или температурного блока и при необходимости промежуточные блоки по длине отсека (рис. 6.5).
Горизонтальные связи в плоскости нижних поясов стропильных ферм проектируются двух типов. Связи первого типа состоят из поперечных и продольных связевых ферм и растяжек (см. рис. 6.5, в – при шаге ферм 6 м; см. рис. 6.5, г – при шаге 12 м). Связи второго типа состоят из поперечных связевых ферм и растяжек (см. рис. 6.5, д – при шаге ферм 6 м; см. рис. 6.5, е – при шаге ферм 12 м).
Рис. 6.4. Схема связей по колоннам

6.5. Связи покрытия
Рис. 6.5 (продолжение)
Поперечные связевые фермы по нижним поясам стропильных ферм предусматриваются в торцах здания или температурного (сейсмического) отсека (см. рис. 6.5, д, е). Предусматривается также дополнительно одна связевая горизонтальная ферма в середине здания или отсека при их длине более 144 м в зданиях, возводимых в районах с расчетной температурой наружного воздуха –40оС и выше, и при длине здания более 120 м в зданиях, возводимых в районах с расчетной температурой ниже –40оС (см. рис. 6.5, в, г). Тем самым уменьшаются поперечные перемещения пояса фермы, возникающие вследствие податливости связей. Поперечные горизонтальные связи в уровне нижних поясов ферм воспринимают ветровую нагрузку на торец здания, передаваемую верхними частями стоек фахверка, и вместе с поперечными горизонтальными связями по верхним поясам ферм и вертикальными связями между фермами обеспечивают пространственную жесткость покрытия.
Продольные горизонтальные связи в плоскости нижних поясов стропильных ферм предусматриваются вдоль крайних рядов колонн в зданиях:
– с мостовыми опорными кранами групп режимов работы 7К и 8К, требующими устройства галерей для прохода вдоль крановых путей;
– с подстропильными фермами;
– с расчетной сейсмичностью 7, 8 и 9 баллов;
– с отметкой низа стропильных ферм свыше 18 м независимо от грузоподъемности кранов;
– в зданиях с кровлей по железобетонным плитам, оборудованных мостовыми опорными кранами общего назначения грузоподъемностью свыше 50 т при шаге стропильных ферм 6 м и свыше 20 т при шаге ферм 12 м;
– в однопролетных зданиях с кровлей по стальному профилированному настилу, оборудованных кранами грузоподъемностью свыше 16 т;
– при шаге стропильных ферм 12 м с применением стоек продольного фахверка.
Поперечные горизонтальные связи в уровне верхних поясов стропильных ферм предусматриваются для обеспечения устойчивости поясов из плоскости ферм. Из-за решетки поперечных связей по верхним поясам ферм затрудняется использование решетчатых прогонов и поэтому поперечные связи, как правило, не применяются. В этом случае развязка ферм обеспечивается системой вертикальных связей между фермами.
В зданиях с кровлей по железобетонным плитам в уровне верхних поясов стропильных ферм предусматриваются распорки (см. рис. 6.5, а). В зданиях с кровлей по стальному профилированному настилу распорки располагаются только в подфонарном пространстве, раскрепление ферм между собой осуществляется прогонами (см. рис. 6.5, б); при расчетной сейсмичности 7, 8 и 9 баллов предусматриваются также поперечные связевые фермы или диафрагмы жесткости, устанавливаемые в торцах сейсмического отсека (см. рис. 6.5, ж – при шаге ферм 6 м; см. рис. 6.5, к – при шаге ферм 12 м), и дополнительно не менее одной при длине отсека более 96 м в зданиях с расчетной сейсмичностью 7 баллов и при длине отсека более 60 м в зданиях с расчетной сейсмичностью 8 и 9 баллов.
В диафрагмах жесткости профилированный настил, кроме основных функций ограждающих конструкций, выполняет функцию горизонтальных связей по верхним поясам стропильных ферм. Поперечные диафрагмы жесткости и горизонтальные связевые фермы воспринимают продольные расчетные горизонтальные нагрузки от покрытия.
В зданиях с фонарем в случае устройства промежуточной диафрагмы жесткости фонарь над диафрагмой должен быть прерван. Диафрагмы жесткости выполняются из профилированного настила марок H60-845-0,9 или H75-750-0,9 по ГОСТ 24045-94 с усиленным креплением его к прогонам.
Стропильные фермы, не примыкающие непосредственно к поперечным связям, раскрепляются в плоскости расположения этих связей распорками и растяжками. Распорки обеспечивают необходимую боковую жесткость ферм при монтаже (предельная гибкость верхнего пояса фермы из ее плоскости при монтаже λu = 220). Растяжки предусматриваются для уменьшения гибкости нижнего пояса с целью предотвращения вибрации и случайных погнутостей при перевозке. Предельная гибкость нижнего пояса из плоскости фермы принимается: λu = 400 – при статической нагрузке и λu = 250 – при кранах режимов работы 7К и 8К или при воздействии динамических нагрузок, приложенных непосредственно к ферме.
Рекомендуем посмотреть лекцию "Кыпчакское ханство".
Для горизонтальных связей обычно принимается связевая ферма с треугольной решеткой. При шаге стропильных ферм 12 м стойки-распорки связевых ферм проектируются с достаточно большой вертикальной жесткостью (как правило, из гнутых прямоугольных профилей) для опирания на них длинных диагональных раскосов, выполненных из уголков с незначительной вертикальной жесткостью.
Вертикальные связи между фермами предусматриваются по длине здания или температурного отсека в местах размещения поперечных связевых ферм по нижним поясам ферм. В зданиях с расчетной сейсмичностью 7, 8 и 9 баллов и кровлей по стальному профилированному настилу по рядам колонн вертикальные связи устанавливаются в местах размещения связевых ферм или диафрагм жесткости по верхним поясам стропильных ферм.
Основное назначение вертикальных связей – обеспечить проектное положение ферм при монтаже и увеличить их боковую жесткость. Обычно устраивается одна-две вертикальные связи по ширине пролета (через 12 – 15 м).
При опирании нижнего узла стропильных ферм на оголовок колонны сверху вертикальные связи располагаются также в плоскости опорных стоек ферм. При примыкании стропильных ферм сбоку к колонне эти связи располагаются в плоскости, совмещенной с плоскостью устройства вертикальных связей надкрановой части колонны.
В покрытиях зданий, эксплуатируемых в климатических районах с расчетной температурой ниже –40оС, следует, как правило, предусматривать (дополнительно к обычно применяемым связям) вертикальные связи, расположенные по середине каждого пролета вдоль всего здания.
При наличии жесткого диска кровли в уровне верхних поясов ферм следует предусматривать инвентарные съемные связи для выверки проектного положения конструкций и обеспечения их устойчивости в процессе монтажа.





















