Для студентов МГТУ им. Н.Э.Баумана по предмету Термовакуумные процессы и оборудование (МТ-11)Задача 3, Вариант 56Задача 3, Вариант 56
4,745277
2022-05-082022-05-08СтудИзба
Задача 3: Задача 3, Вариант 56 вариант 56
Описание
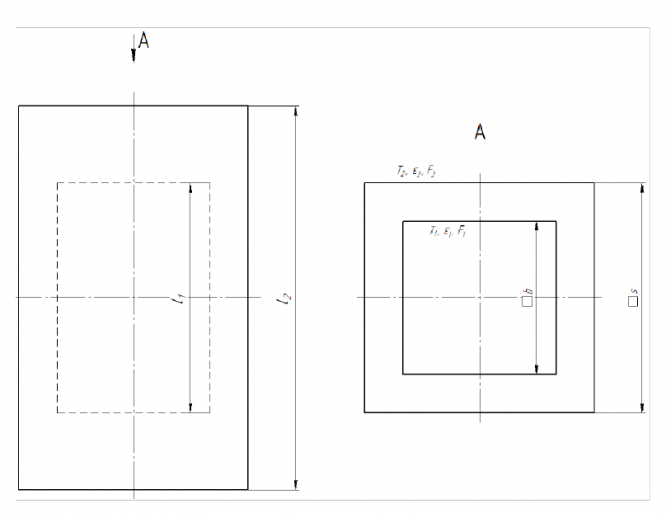
Рассчитать интегральный тепловой поток, передаваемый от наружной поверхности внутренней стенки рабочей камеры квадратного поперечного сечения с ребром b=40 см и длиной 0,6 м, температура которой равна 1100°C, к внутренней стенке наружной поверхности камеры квадратного поперечного сечения с ребром s=0,6 м длиной 1,0 м с температурой 24°C: 1)при отсутствии экранной изоляции; 2)при наличии 3-ех экранов Э1, Э2, Э3, каждый из которых равноудален на 25 мм от охватываемой им поверхности. Интегральные коэффициенты излучения: наружной поверхности стенки рабочей камеры 1 - 0,6; внутренней поверхности наружной стенки 2 - 0,7; каждой из поверхностей экранов - 0,08. Конвективной теплоотдачей пренебречь. Термические сопротивления стенок не учитывать. Наружную и внутреннюю площади для одной и той же поверхности считать одинаковыми.
1. без экранной изоляции
2.![]()
1. без экранной изоляции
2.
Характеристики решённой задачи
Учебное заведение
Семестр
Номер задания
Вариант
Теги
Просмотров
10
Качество
Идеальное компьютерное
Размер
413,2 Kb
Список файлов
3.pdf
Комментарии
Нет комментариев
Стань первым, кто что-нибудь напишет!
МГТУ им. Н.Э.Баумана


















