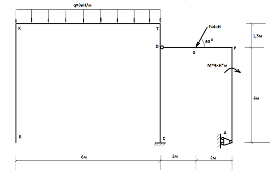
Задача: Определение реакций опор составной конструкции по принципу возможных перемещений с жесткой заделкой
Описание
Вычислить реакции опор составной конструкции

Файлы условия, демо
Характеристики решённой задачи
Предмет
Просмотров
3
Качество
Идеальное компьютерное
Размер
149,79 Kb
Список файлов
ПВП заделка.docx
Комментарии
Нет комментариев
Стань первым, кто что-нибудь напишет!
buldigerov



















