Для студентов МГТУ им. Н.Э.Баумана по предмету Технология листовой штамповки (ТЛШ) (МТ-6)Штамповка фланца крепленияШтамповка фланца крепления
4,96529252
2021-01-192021-01-19СтудИзба
Курсовая работа: Штамповка фланца крепления
Описание
Штамповка фланца крепления
Содержание
1 | Введение | 3 |
2 | Разработка технологического процесса | 4 |
3 | Раскрой и сортамент исходного материала. Коэффициент использования материала | 5 |
4 | Технологические зазоры и исполнительные размеры инструмента | 6 |
5 | Выбор оборудования и инструмента для операций | 7 |
6 | Расчёт и конструирование для вырубки, вытяжки и пробивки | 7 |
7 | Материалы, используемые для изготовления деталей штампа | 8 |
8 | Исследовательская часть | 8 |
9 | Конструкторская часть | 8 |
10 | Выводы | 10 |
11 | Литература | 11 |
Введение
В данной работе был разработан техпроцесс детали «Фланец крепления » . Исследование этого процесса представляет определенный научный интерес и может иметь практическое применение в производстве, так как были спроектированы и исследованы некоторые технологии, применения которых нет в отечественном производстве подобных деталей. Работа состоит из исследовательской, технологической и конструкторской части. В конструкторской части разработаны конструкции штампов для листовой штамповки данной детали и штамповая оснастка. В технологической части разработана технология штамповки детали.В исследовательской части с помощью программного комплекса Autoform были получены формы деталей после нескольких вариантов штамповки и проведен сравнительный анализ. По результатам которого были сделаны выводы.
Разработка технологического процесса
Схема технологического процесса изготовления детали "Фланец крепления" приведена на графическом листе «Разработка технологического процесса »Материал детали: Л 80
Толщина стенки заготовки S 0.5 мм;
Механические характеристики материала:
-временное сопротивление: sВ=390 МПа
-предел текучести: sТ=250 МПа
-сопротивление срезу: sСР=300 МПа
-относительное удлинение: d>38%
-относительное сужение: yШ=0,35
Серийность: 10000 шт/год

Чертежи
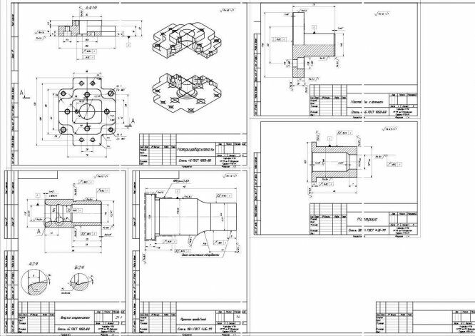
1. Технологическая карта ![]()
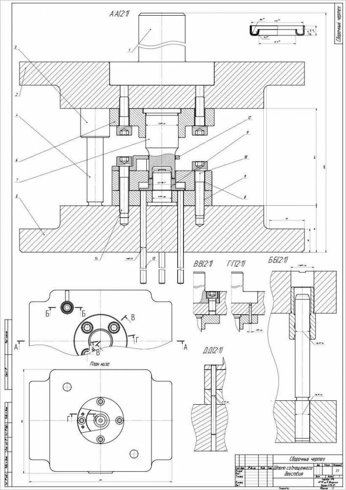
2. Штамп совмещенного действия №1 ![]()
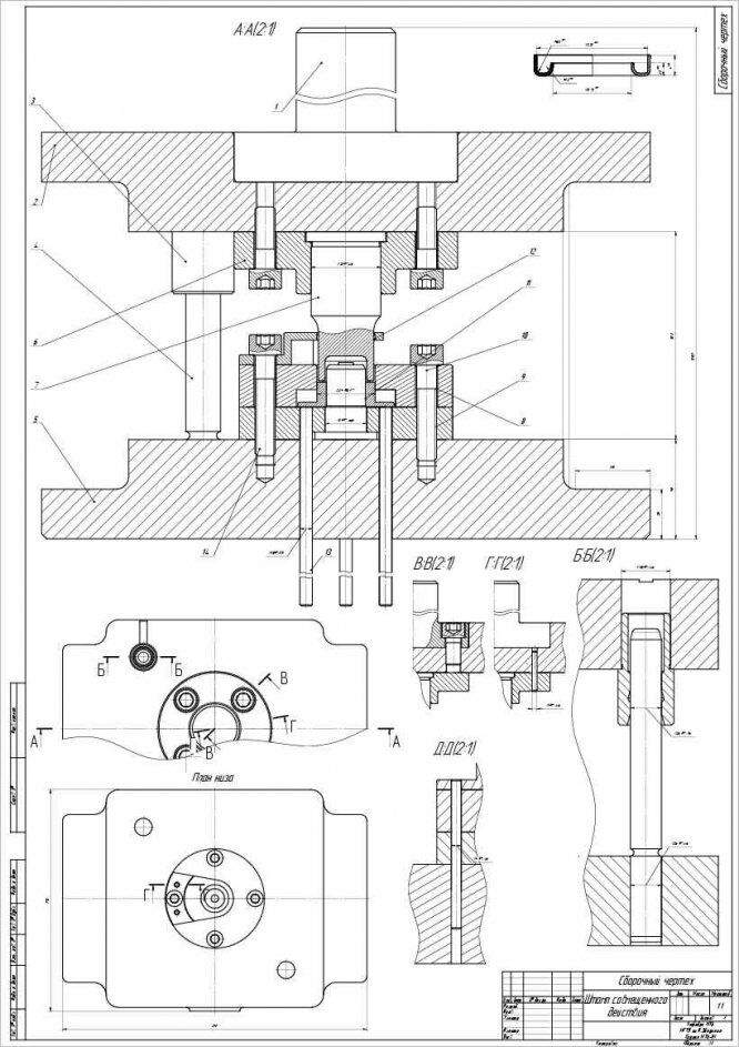
3. Штамп совмещенного действия №2 ![]()
4. Исследовательский лист
5. Деталировка (Матрицедержатель; Втулка ступенчатая; Пуансон пробивной; Хвостовик с фланцем; Матрица)
Файлы условия, демо
Характеристики курсовой работы
Учебное заведение
Программы
Просмотров
63
Качество
Идеальное компьютерное
Размер
1,35 Mb
Список файлов
Штамповка фланца крепления
1.Технологическая карта.cdw
1.Технологическая карта.pdf
2.Штамп совмещенного действия №1.cdw
2.Штамп совмещенного действия №1.pdf
3.Штамп совмещенного действия №2.cdw
3.Штамп совмещенного действия №2.pdf
4.Исследовательский лист.cdw
4.Исследовательский лист.pdf
5.Деталировка.cdw
5.Деталировка.pdf
РПЗ.docx

Вам все понравилось? Получите кэшбэк - 40 рублей на Ваш счёт при покупке. Поставьте оценку и напишите положительный комментарий к купленному файлу. После Вы получите деньги на ваш счет.