Для студентов МГТУ им. Н.Э.Баумана по предмету Технология листовой штамповки (ТЛШ) (МТ-6)Штамповка крышки карданного валаШтамповка крышки карданного вала
4,96531042
2021-01-19СтудИзба

Курсовая работа: Штамповка крышки карданного вала

Описание

Курсовой проект - Штамповка крышки карданного вала

Содержание

1 Введение3
2Разработка технологического процесса4
3Определение размеров исходной заготовки4
4Раскрой и сортамент исходного материала. Коэффициент использования материала6
5Расчёт необходимого числа переходов вытяжки7
6Определение усилий вырубки, прямой и обратной вытяжки , прижим8
7Технологические зазоры и исполнительные размеры инструмента13
8Выбор оборудования и инструмента для операций14
9Расчёт и конструирование для вырубки, вытяжки и пробивки14
10Материалы, используемые для изготовления деталей штампа15
11Исследовательская часть16
13Конструкторская часть22
14 Выводы24
15Литература25

Введение

В данной работе был разработан техпроцесс детали «Крышка карданного вала » . Исследование этого процесса представляет определенный научный интерес и может иметь практическое применение в производстве, так как были спроектированы и исследованы некоторые технологии, применения которых нет в отечественном производстве подобных деталей. Работа состоит из исследовательской, технологической и конструкторской части.
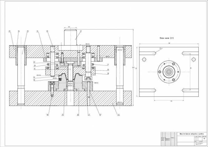
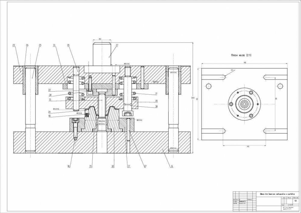
В конструкторской части разработаны конструкции штампов для листовой штамповки данной детали и штамповая оснастка. В технологической части разработана технология штамповки детали.
В исследовательской части с помощью программного комплекса Qform были получены формы деталей после нескольких вариантов штамповки и проведен сравнительный анализ. По результатам которого были сделаны выводы.

Разработка технологического процесса

Схема технологического процесса изготовления детали «Цилиндрический стаканчик » приведена на графическом листе «Разработка технологического процесса »
Материал детали: DC 04
Толщина стенки стаканчика S 1 мм;
Механические характеристики материала:
-временное сопротивление: sВ=350 МПа
-предел текучести: sТ=200 МПа
-сопротивление срезу: sСР=250 МПа
-относительное удлинение: d>38%
-относительное сужение: yШ=0,35

Чертежи

1. Технологическая карта

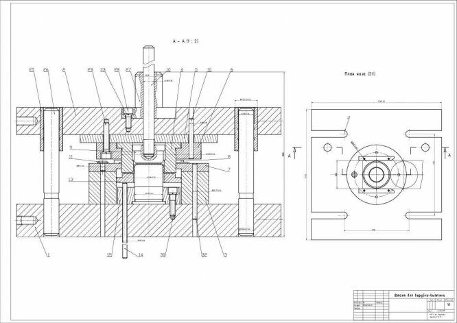
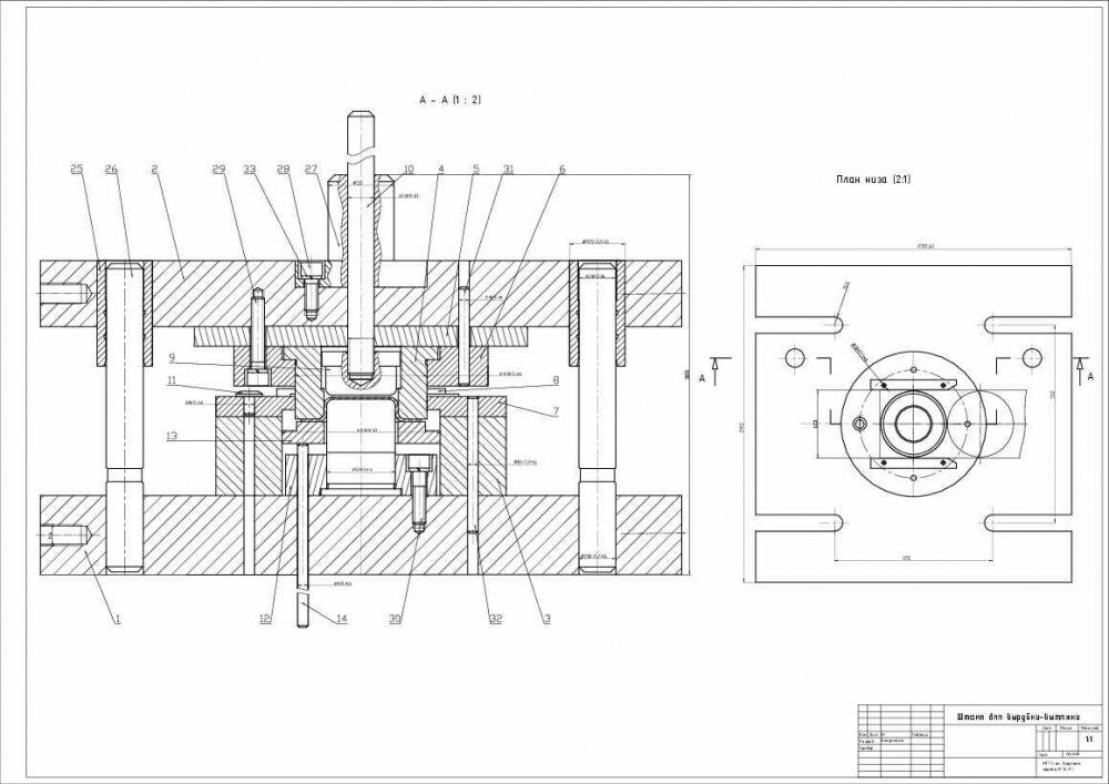
2. Штамп для вырубки-вытяжки

3. Штам для вытяжки отбортовки и пробивки

4. Исследовательский лист

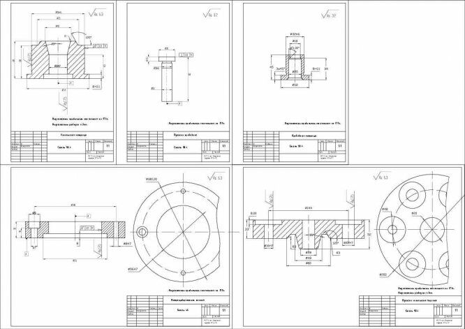
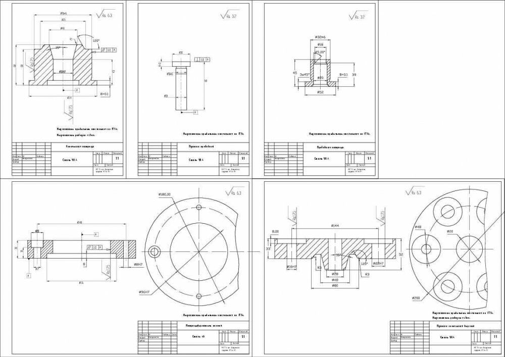
5. Деталировка

6. Спецификация штампов

Файлы условия, демо

Характеристики курсовой работы

Учебное заведение
Просмотров
65
Качество
Идеальное компьютерное
Размер
50,38 Mb

Список файлов

Штамповка крышки карданного вала
Autoform
вытяжка.afd
вытяжкаБП.afd
вытяжкаСП.afd
вытяжкаФ.afd
пробАФ.afd
SolidWorks
3Складки.SLDPRT
3конус.DXF
3конус.SLDPRT
3складки.DXF
4складкиОтборт.DXF
4складкиОтборт.SLDPRT
Деталь.SLDPRT
вытяжка1.DXF
вытяжка1.SLDPRT
вытяжка1.qform
вытяжка2-3.DXF
вытяжка2-3.SLDPRT
вытяжка2.DXF
вытяжка2.SLDPRT
вытяжка3.DXF
вытяжка3.SLDPRT
детальСредЛин.SLDPRT
загот1.DXF
загот1.SLDPRT
отборт+фланец.DXF
отборт+фланец.SLDPRT
подчек.DXF
подчек.SLDPRT
Картинка-подпись
Вам все понравилось? Получите кэшбэк - 40 рублей на Ваш счёт при покупке. Поставьте оценку и напишите положительный комментарий к купленному файлу. После Вы получите деньги на ваш счет.

Комментарии

Нет комментариев
Стань первым, кто что-нибудь напишет!
Поделитесь ссылкой:
Цена: 699 руб.
Расширенная гарантия +3 недели гарантии, +10% цены
Рейтинг автора
4,96 из 5
Поделитесь ссылкой:
Сопутствующие материалы

Подобрали для Вас услуги

-26%
Вы можете использовать курсовую работу для примера, а также можете ссылаться на неё в своей работе. Авторство принадлежит автору работы, поэтому запрещено копировать текст из этой работы для любой публикации, в том числе в свою курсовую работу в учебном заведении, без правильно оформленной ссылки. Читайте как правильно публиковать ссылки в своей работе.
Свежие статьи
Популярно сейчас
Как Вы думаете, сколько людей до Вас делали точно такое же задание? 99% студентов выполняют точно такие же задания, как и их предшественники год назад. Найдите нужный учебный материал на СтудИзбе!
Ответы на популярные вопросы
Да! Наши авторы собирают и выкладывают те работы, которые сдаются в Вашем учебном заведении ежегодно и уже проверены преподавателями.
Да! У нас любой человек может выложить любую учебную работу и зарабатывать на её продажах! Но каждый учебный материал публикуется только после тщательной проверки администрацией.
Вернём деньги! А если быть более точными, то автору даётся немного времени на исправление, а если не исправит или выйдет время, то вернём деньги в полном объёме!
Да! На равне с готовыми студенческими работами у нас продаются услуги. Цены на услуги видны сразу, то есть Вам нужно только указать параметры и сразу можно оплачивать.
Отзывы студентов
Ставлю 10/10
Все нравится, очень удобный сайт, помогает в учебе. Кроме этого, можно заработать самому, выставляя готовые учебные материалы на продажу здесь. Рейтинги и отзывы на преподавателей очень помогают сориентироваться в начале нового семестра. Спасибо за такую функцию. Ставлю максимальную оценку.
Лучшая платформа для успешной сдачи сессии
Познакомился со СтудИзбой благодаря своему другу, очень нравится интерфейс, количество доступных файлов, цена, в общем, все прекрасно. Даже сам продаю какие-то свои работы.
Студизба ван лав ❤
Очень офигенный сайт для студентов. Много полезных учебных материалов. Пользуюсь студизбой с октября 2021 года. Серьёзных нареканий нет. Хотелось бы, что бы ввели подписочную модель и сделали материалы дешевле 300 рублей в рамках подписки бесплатными.
Отличный сайт
Лично меня всё устраивает - и покупка, и продажа; и цены, и возможность предпросмотра куска файла, и обилие бесплатных файлов (в подборках по авторам, читай, ВУЗам и факультетам). Есть определённые баги, но всё решаемо, да и администраторы реагируют в течение суток.
Маленький отзыв о большом помощнике!
Студизба спасает в те моменты, когда сроки горят, а работ накопилось достаточно. Довольно удобный сайт с простой навигацией и огромным количеством материалов.
Студ. Изба как крупнейший сборник работ для студентов
Тут дофига бывает всего полезного. Печально, что бывают предметы по которым даже одного бесплатного решения нет, но это скорее вопрос к студентам. В остальном всё здорово.
Спасательный островок
Если уже не успеваешь разобраться или застрял на каком-то задание поможет тебе быстро и недорого решить твою проблему.
Всё и так отлично
Всё очень удобно. Особенно круто, что есть система бонусов и можно выводить остатки денег. Очень много качественных бесплатных файлов.
Отзыв о системе "Студизба"
Отличная платформа для распространения работ, востребованных студентами. Хорошо налаженная и качественная работа сайта, огромная база заданий и аудитория.
Отличный помощник
Отличный сайт с кучей полезных файлов, позволяющий найти много методичек / учебников / отзывов о вузах и преподователях.
Отлично помогает студентам в любой момент для решения трудных и незамедлительных задач
Хотелось бы больше конкретной информации о преподавателях. А так в принципе хороший сайт, всегда им пользуюсь и ни разу не было желания прекратить. Хороший сайт для помощи студентам, удобный и приятный интерфейс. Из недостатков можно выделить только отсутствия небольшого количества файлов.
Спасибо за шикарный сайт
Великолепный сайт на котором студент за не большие деньги может найти помощь с дз, проектами курсовыми, лабораторными, а также узнать отзывы на преподавателей и бесплатно скачать пособия.
Популярные преподаватели
Добавляйте материалы
и зарабатывайте!
Продажи идут автоматически
6823
Авторов
на СтудИзбе
276
Средний доход
с одного платного файла
Обучение Подробнее
{user_main_secret_data}