Для студентов МГТУ им. Н.Э.Баумана по предмету Технология горячей объёмной штамповки (ТГОШ) (МТ-6)Штампы для горячей штамповкиШтампы для горячей штамповки
5,0051
2020-09-162024-08-31СтудИзба
Лабораторная работа 4: Штампы для горячей штамповки
-52%
Описание
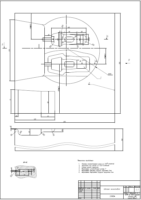
Штампы для горячей штамповки
- Цель работы — ознакомиться с конструкцией типовых штампов для горячей штамповки, их назначением, а также материалами, используемыми для изготовления деталей штампов.
- Основные сведения о процессе штамповки в открытых штампах
- Содержание работы
- Инструменты и материалы
- Порядок выполнения работы
- Отчет, механические характеристики, размеры и чертежи штампа

Характеристики лабораторной работы
Учебное заведение
Семестр
Номер задания
Программы
Просмотров
93
Качество
Идеальное компьютерное
Размер
698,46 Kb
Список файлов
1.pdf
2.pdf
Отчет.docx
Чертеж.dwg

Вам все понравилось? Получите кэшбэк - 40 рублей на Ваш счёт при покупке. Поставьте оценку и напишите положительный комментарий к купленному файлу. После Вы получите деньги на ваш счет.