Для студентов МГТУ им. Н.Э.Баумана по предмету Технологии приборостроенияПроектирование технологического процесса изготовления детали для единичного производстваПроектирование технологического процесса изготовления детали для единичного производства
5,0051
2021-04-222021-04-22СтудИзба
ДЗ: Проектирование технологического процесса изготовления детали для единичного производства
Описание
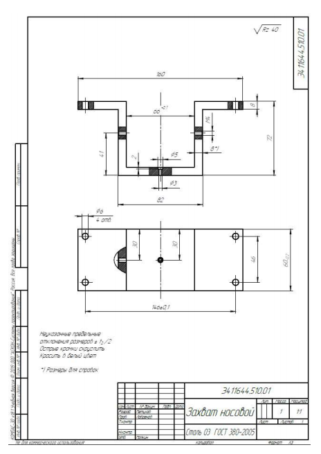
Спроектировать технологический процесс изготовления детали изделия (дать анализ технологичности конструкции изделия; выбрать заготовку для детали определить маршрут обработки отдельных поверхностей заготовки и общий маршрут обработки заготовки; выбрать оборудование, стандартную технологическую оснастку, режим обработки) для единичного производства детали.
![]()

Характеристики домашнего задания
Предмет
Учебное заведение
Семестр
Просмотров
47
Размер
2,94 Mb
Список файлов
6a59748c-9de7-4255-d578-a3f550458af8.pdf
7ad8ad35-85f5-a895-f327-3474541df1c0.pdf
Комментарии
Нет комментариев
Стань первым, кто что-нибудь напишет!
МГТУ им. Н.Э.Баумана

















