Для студентов по предмету Строительная механикаРасчет на заданное изменение температуры и смещения опорРасчет на заданное изменение температуры и смещения опор
5,00552
2023-09-182023-09-18СтудИзба
Задача: Расчет на заданное изменение температуры и смещения опор
Описание
Описание работы
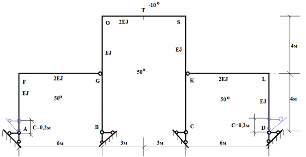
Произвести расчет на заданное изменение температуры и смещения опор, построить эпюры: M, Q, N.

Файлы условия, демо
Характеристики решённой задачи
Предмет
Просмотров
7
Качество
Идеальное компьютерное
Размер
936,94 Kb
Список файлов
Кин темп метод сил.docx
Комментарии
Нет комментариев
Стань первым, кто что-нибудь напишет!
buldigerov























