Главная » Учебные материалы » Системы автоматического управления (САУ) (МТ-11) » Курсовые работы » МГТУ им. Н.Э.Баумана » 11 семестр (3 семестр магистратуры) » Испытательный стенд установки демпфирования сканирующего зондового микроскопа Solver Pro47

Курсовая работа: Испытательный стенд установки демпфирования сканирующего зондового микроскопа Solver Pro47

-23%

Описание

Курсовая работа по САУ 2010-го года (сдана и защищена)

Расчетно-пояснительная записка

по курсовому проекту по дисциплине

«Системы автоматического управления технологическим оборудованием»

на тему:

«Испытательный стенд установки демпфирования сканирующего зондового микроскопа Solver Pro47»


Москва

2007 г.

ЗАДАНИЕ

на курсовой проект по курсу

«Основы проектирования систем автоматического управления оборудования электронных технологий».


Тема проекта: Испытательный стенд установки демпфирования сканирующего зондового микроскопа Solver Pro47


1. Проработать описание работы машины, выбрать и обосновать состав его основных целевых функций, сервисных функций, функций коррекции цели.

2. Разработать комплексную принципиальную схему, как совокупность системы целевых механизмов, системы их энергообеспечения и системы управления, связанных материальными, энергетическими и информационными потоками.

3. Описать механический, энергетический и информационный интерфейс компонентов машины. Дать техническое задание и техническое предложение на САУ и основные элементы машины.

4. Разработать принципиальную электрическую схему элемента САУ или САУ в целом.


Содержание графической части.

1. Процессная модель машины..................................................1 л.

2. Комплексная принципиальная схема....................................2л.

3. Принципиальная электрическая схема..................................1 л.

4. Печатная плата......................................................................1 л.


Содержание расчетно-пояснительной записки.

1.Введение. Описание целевого, механического и энергетического интерфейса спроектированной технологической машины.

2.Описание процессной модели. Выбор и обоснование целевых, сервисных функций, и функций коррекции цели.

3.Техническое задание и техническое предложение на систему управления машины по приведенной в Приложении 1 форме.

4. Описание комплексной принципиальной схемы ФС. Обоснование структурно-компоновочного решения, выбор и согласование уровней потоков элементов.

5. Документы, сопровождающие комплексную принципиальную схему:

-перечень элементов ПЭ;

-перечень потоков и сигналов ПС;

-технические задания на основные подсистемы и узлы машины ТЗ.

6. Информационный поиск датчиков и исполнительных элементов машины и ее САУ, описание целевого, механического, энергетического и информационного интерфейса этих элементов ОЭ.

7. Расчет и описание принципиальной электрической схемы.

8. Заключение.




Содержание


Содержание……………………………………………………………….…….3

1.Реферат..……………………………… …………………………………………….…4

2.Ведение……………………………………………………………………………...5

3.Процессная модель………………………………………………………………............6

Описание процессной модели……………………………………………………………6

Описание функций системы……………………………………………………………...7

4. Комплексная принципиальная схема…………………………………………………..8

5. Документы, сопровождающие КПС…………………………………………………....9

Перечень элементов (ПЭ)…………………………………………………………………9

Перечень потоков и сигналов (ПС)………………………………………………………9

6. Расчет и описание электрической схемы……………………………………………....10

Информационный поиск датчиков и элементов контроллера…………………………10

Последовательность прохождения сигнала в контроллере……………………………14

Расчет ветви смещения сигнала в «0»……………………………………………..15

Расчет сопротивлений блока неинвертирующего усилителя…………………….16

Расчет сопротивлений блока суммирующего усилителя…………………………16

7.Разработка платы………………………………………………………………….17

8.Заключение………………………………………………………………………..18

9.Список литературы………………………………………………………………….19



























1. Реферат

к курсовому проекту

«Испытательный стенд установки демпфирования сканирующего зондового микроскопа Solver Pro47»

В данном курсовом проекте рассмотрена система автоматизированного управления испытательным стендом установки демпфирования СЗМ Solver Pro 47.

Рассмотрены основные узлы САУ и проведено проектирование принципиальной электрической схемы.

Графическую часть проекта составляют 4 листа, выполненных в среде KOMPAS V12.

Расчетно–пояснительная записка составляет 19 листа выполненных в среде Microsoft Word XP.


Графическая часть курсового проекта содержит:

1.Процессную модель установки. Блок схему алгоритмов работы.

2.Комплексную принципиальную схему установки.

3.Электрическую принципиальную схему.

4.Плату контроллера.


































2. Введение


Современное прецизионное оборудование для микролитографии, анализа поверхности (сканирующие зондовые микроскопы), производства шаблонов печатных плат, юстировки лазеров использует системы виброзащиты от внешних воздействий для реализации точного позиционирования инструмента. Проблема виброзащиты может быть решена на основе принципиально пневмогидравлических демферов с электрореологическим регулятором, идея которых заключаются в использовании жидкости, меняющей при воздействии управляющего напряжения динамическую вязкость. На основе данной жидкости разработаны и исследованы экспериментальный образец пневмогидравлических демферов с электрореологическим регулятором, обладающий высокой точностью, быстродействием и диапазоном перемещений, и разработан испытательный стенд установки демпфирования СЗМ Solver Pro47. Уникальные свойства магнитоэластика позволяют обеспечить:

·малую погрешность линейного перемещения демпфера (£ 1мкм);

·малую постоянную времени (£ 0,2 с);

·диапазон линейных перемещений более 20 мкм и передаваемое усилие более 100 Н.

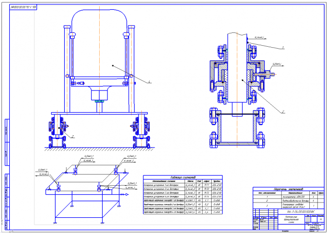
Испытательный стенд состоит из массивного основания, упругих элементов, рамы, 4-х демпферов, 4-х штативов с закрепленными в них акселерометрами и сканирующего зондового микроскопа. Рама крепится к массивному основанию с помощью фундаментных шпилек через упругие прокладки. Массивное основание (бетонная плита) необходимо для гашения вибраций большой амплитуды. Количество демпферов (4-е демпфера) обусловлено наличием 4-х опорных поверхностей у сканирующего

зондового микроскопа. Каждый из демпферов работает независимо, следовательно микроскоп может совершат движение по 3-ем степеням свободы. Демпферы крепятся с помощью болтового соединения, а штативы с помощью магнитного основания на стальной пластине,





Рис. 1 Общий вид испытательного стенда установки демпфирования

которая устанавливается на раме. Микроскоп фиксируется на демпферах с помощью упорных бобышек, расположенных на платформе демпферов.

Возмущающее воздействие фиксируется с помощью акселерометра; сигнал с датчика поступает в систему обратной связи (СОС): акселерометр –САУ– блок питания - демпфер, где он усиливается и в противофазе подается на демпфер, который, смещаясь в противоположную сторону, гасит ускорение, испытываемое платформой. Демпфер является основным элементом привода испытательного стэнда установки демпфирования СЗМ Solver Pro47.



Технические характеристики МЭ-демпфера:

·Максимальная погрешность перемещения платформы по оси Z …………………….1 мкм

·Диапазон перемещений по оси Z ……………………………………………………...24 мкм

·Постоянная времени t ………………………………………………………………….0,5 с

·Максимальный ток в катушке I ………………………………………………………..1,5 А

·Частота вибраций n ……………………………………………………………………..5-40 Гц

·Температура узла в рабочем состоянии t ……………………………………………...19-20 С°

Целью данного курсового проекта является автоматизация процесса демпфирования СЗМ, овладение навыками, методами и средствами комплексных разработок электронных компонентов оборудования САУ.

К механическому интерфейсу установки относятся:

·демпфер;

·микроскоп.

К энергетическому интерфейсу установки относятся:

·блок питания;

·ПК.

Задачи проекта:

·распределении функций машины между различными компонентами и обоснование этих функций;

·постановке четких технических заданий перед разработчиками отдельных компонентов;

·выполнении технической документации на электронные компоненты.

Характеристики курсовой работы

Список файлов

Испытательный стенд установки демпфирования сканирующего зондового микроскопа Solver Pro47
List01.cdw
List03.cdw
List04.cdw
list02.cdw
Презентация.ppt
Прочти меня.txt
САУ.doc
Картинка-подпись
Зарабатывай на студизбе! Просто выкладывай то, что так и так делаешь для своей учёбы: ДЗ, шпаргалки, решённые задачи и всё, что тебе пригодилось.
Начать зарабатывать

Комментарии

Нет комментариев
Стань первым, кто что-нибудь напишет!
Поделитесь ссылкой:
Цена: 1 200 919 руб.
Расширенная гарантия +3 недели гарантии, +10% цены
Рейтинг автора
4,79 из 5
Поделитесь ссылкой:
Сопутствующие материалы

Подобрали для Вас услуги

-26%
Вы можете использовать курсовую работу для примера, а также можете ссылаться на неё в своей работе. Авторство принадлежит автору работы, поэтому запрещено копировать текст из этой работы для любой публикации, в том числе в свою курсовую работу в учебном заведении, без правильно оформленной ссылки. Читайте как правильно публиковать ссылки в своей работе.
Свежие статьи
Популярно сейчас
Как Вы думаете, сколько людей до Вас делали точно такое же задание? 99% студентов выполняют точно такие же задания, как и их предшественники год назад. Найдите нужный учебный материал на СтудИзбе!
Ответы на популярные вопросы
Да! Наши авторы собирают и выкладывают те работы, которые сдаются в Вашем учебном заведении ежегодно и уже проверены преподавателями.
Да! У нас любой человек может выложить любую учебную работу и зарабатывать на её продажах! Но каждый учебный материал публикуется только после тщательной проверки администрацией.
Вернём деньги! А если быть более точными, то автору даётся немного времени на исправление, а если не исправит или выйдет время, то вернём деньги в полном объёме!
Да! На равне с готовыми студенческими работами у нас продаются услуги. Цены на услуги видны сразу, то есть Вам нужно только указать параметры и сразу можно оплачивать.
Отзывы студентов
Ставлю 10/10
Все нравится, очень удобный сайт, помогает в учебе. Кроме этого, можно заработать самому, выставляя готовые учебные материалы на продажу здесь. Рейтинги и отзывы на преподавателей очень помогают сориентироваться в начале нового семестра. Спасибо за такую функцию. Ставлю максимальную оценку.
Лучшая платформа для успешной сдачи сессии
Познакомился со СтудИзбой благодаря своему другу, очень нравится интерфейс, количество доступных файлов, цена, в общем, все прекрасно. Даже сам продаю какие-то свои работы.
Студизба ван лав ❤
Очень офигенный сайт для студентов. Много полезных учебных материалов. Пользуюсь студизбой с октября 2021 года. Серьёзных нареканий нет. Хотелось бы, что бы ввели подписочную модель и сделали материалы дешевле 300 рублей в рамках подписки бесплатными.
Отличный сайт
Лично меня всё устраивает - и покупка, и продажа; и цены, и возможность предпросмотра куска файла, и обилие бесплатных файлов (в подборках по авторам, читай, ВУЗам и факультетам). Есть определённые баги, но всё решаемо, да и администраторы реагируют в течение суток.
Маленький отзыв о большом помощнике!
Студизба спасает в те моменты, когда сроки горят, а работ накопилось достаточно. Довольно удобный сайт с простой навигацией и огромным количеством материалов.
Студ. Изба как крупнейший сборник работ для студентов
Тут дофига бывает всего полезного. Печально, что бывают предметы по которым даже одного бесплатного решения нет, но это скорее вопрос к студентам. В остальном всё здорово.
Спасательный островок
Если уже не успеваешь разобраться или застрял на каком-то задание поможет тебе быстро и недорого решить твою проблему.
Всё и так отлично
Всё очень удобно. Особенно круто, что есть система бонусов и можно выводить остатки денег. Очень много качественных бесплатных файлов.
Отзыв о системе "Студизба"
Отличная платформа для распространения работ, востребованных студентами. Хорошо налаженная и качественная работа сайта, огромная база заданий и аудитория.
Отличный помощник
Отличный сайт с кучей полезных файлов, позволяющий найти много методичек / учебников / отзывов о вузах и преподователях.
Отлично помогает студентам в любой момент для решения трудных и незамедлительных задач
Хотелось бы больше конкретной информации о преподавателях. А так в принципе хороший сайт, всегда им пользуюсь и ни разу не было желания прекратить. Хороший сайт для помощи студентам, удобный и приятный интерфейс. Из недостатков можно выделить только отсутствия небольшого количества файлов.
Спасибо за шикарный сайт
Великолепный сайт на котором студент за не большие деньги может найти помощь с дз, проектами курсовыми, лабораторными, а также узнать отзывы на преподавателей и бесплатно скачать пособия.
Популярные преподаватели
Добавляйте материалы
и зарабатывайте!
Продажи идут автоматически
7107
Авторов
на СтудИзбе
255
Средний доход
с одного платного файла
Обучение Подробнее