Курсовая работа: Установка для нанесения ЛКМ на стеклоизделие

-20%

Описание

Этот курсовой проект по САУ защищался в 2004-м году

Проект курсовой

на тему: «Проектирование системы управления установки нанесения

лакокрасочного покрытия на стеклоизделия»


Расчетно-пояснительная записка

г.Москва

2004 г.
ЗАДАНИЕ

на курсовой проект по курсу «Основы проектирования систем автоматического управления оборудования электронных технологий».


Тема проекта: Установка для нанесения ЛКМ на стеклоизделие.


1. Проработать описание работы машины, выбрать и обосновать состав его основных целевых функций, сервисных функций, функций коррекции цели.

2. Разработать комплексную принципиальную схему, как совокупность системы целевых механизмов, системы их энергообеспечения и системы управления, связанных материальными, энергетическими и информационными потоками.

3. Описать механический, энергетический и информационный интерфейс компонентов машины. Дать техническое задание и техническое предложение на САУ и основные элементы машины.
4. Разработать принципиальную электрическую схему элемента САУ или САУ в целом.


Содержание графической части.

1. Процессная модель машины..................................................1 л.

2. Комплексная принципиальная схема....................................2 л.

3. Принципиальная электрическая схема..................................1 л.


Содержание расчетно-пояснительной записки.

1.Введение. Описание целевого, механического и энергетического интерфейса спроектированной технологической машины.

2.Описание процессной модели. Выбор и обоснование целевых, сервисных функций, и функций коррекции цели.

3.Техническое задание и техническое предложение на систему управления машины по приведенной в Приложении 1 форме.

4. Описание комплексной принципиальной схемы ФС. Обоснование структурно-компоновочного решения, выбор и согласование уровней потоков элементов.

5. Документы, сопровождающие комплексную принципиальную схему:

-перечень элементов ПЭ;

-перечень потоков и сигналов ПС;

-технические задания на основные подсистемы и узлы машины ТЗ.

6. Информационный поиск датчиков и исполнительных элементов машины и ее САУ, описание целевого, механического, энергетического и информационного интерфейса этих элементов ОЭ.

7. Расчет и описание принципиальной электрической схемы.

8. Заключение.


Реферат.

Курсовой проект содержит 4 листа формата А1, выполненных в среде системы автоматического проектирования (САПР) Компас 5.11, а также расчетно-пояснительную записку в количестве 20 листов, выполненных в среде подготовки текстовой документации WordXP компании Microsoft, все расчеты произведены в системе математического обеспечения Mathcad 2000 Professional компании MathSoft.

В курсовом проекте рассматривается установка для нанесения лакокрасочного покрытия на стеклоизделия. Установка позволяет наносить лакокрасочные материалы в автоматическом режиме, без непосредственного участия оператора, способна обнаруживать аварийные ситуации и производить аварийное выключение двигателей, во избежание выхода их из строя.


Содержание

Стр.


Введение……………………………………………………………………..…..5
1. Техническое задание и техническое предложение на САУ и
основные подсистемы и узлы…………………………………………..……6
2. Описание процессной модели………………………………………….….…7
2.1. Алгоритм…………………………………………………………………9
2.2. Описание операций процессной модели……………………….….…10
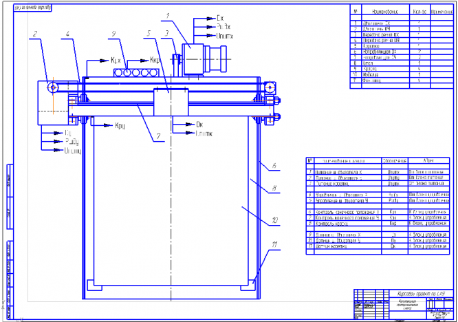
3. Комплексная принципиальная схема……………………………….………11
3.1. Механическая часть…..………………………………………………12
3.2. Блок питания…...……………………………………………………..13
3.3. Блок управления шаговых двигателей………………………………14
3.4. Датчики «0»…………………………………...………………………16
3.5. Компьютер РС…...……………………………………………………16

4. Электрическая принципиальная схема контроллера……...………………18


5. Информационный интерфейс………………………………………….……19

Заключение……………………………………………………………………...20
Список литературы……………………………………………………………..21



Введение


Технологическое оборудование в настоящее время становится всё более автоматизированным во многих областях его применения. Поэтому при его конструировании надо тщательно изучить и продумать все возможные варианты применения систем автоматизированного управления в данной конструкции и выбрать наиболее оптимальный из этих вариантов, как по цене, так и по сложности изготовления и эксплуатации.

Одним из эффективных путей для достижения этого является применение новых технологий или сочетание таких технологий с традиционными.

Также обеспечить проектируемое оборудование более высоким сроком службы, то есть, чтобы как физическое, так и моральное устаревание его прошло как можно позже, нужно в конструкцию изделия заранее закладывать модули, которые легко было бы заменить или доработать.

*****

При изготовлении рекламных вывесок, декоративных композиций, витражей и других видов изделий применяются различные материалы. Очень хорошо смотрятся стеклянные вывески с нанесённым рисунком. Рисунок может быть получен с использованием различных технологий, таких как пескоструйная обработка, покраска, наклейка декоративных элементов.

В настоящее время рассматривается задача автоматизации нанесения лакокрасочного (цветного) материала на стеклоизделия. Учитывая то, что в нашей стране данная технология только набирает обороты, соответственно нет технических наработок в автоматизации этого процесса. Поэтому стоит задача в проектирование установки для нанесения лакокрасочного материала на стеклоизделие и разработке отдельных её узлов.

*****

На сегодняшний момент на Российском рынке не существует данного типа установки, так как это производство новое и в основном операции выполняются в ручную с помощью кистей, аэрографов, баллонов-распылителей.

Особенностью современного проектирования является широкое использование готовых узлов и деталей. Ряд фирм предлагает широкий спектр компонентов для создания подобных установок, включающий в себя узлы разного класса точности, сложности и стоимости.


Характеристики курсовой работы

Список файлов

Установка для нанесения ЛКМ на стеклоизделие
ЗАДАНИЕ.doc
Лист_1.CDW
Лист_2.CDW
Лист_3.CDW
Лист_4.CDW
Прочти меня.txt
РПЗ.doc
Картинка-подпись
Зарабатывай на студизбе! Просто выкладывай то, что так и так делаешь для своей учёбы: ДЗ, шпаргалки, решённые задачи и всё, что тебе пригодилось.
Начать зарабатывать

Комментарии

Нет комментариев
Стань первым, кто что-нибудь напишет!
Поделитесь ссылкой:
Цена: 1 200 959 руб.
Расширенная гарантия +3 недели гарантии, +10% цены
Рейтинг автора
4,79 из 5
Поделитесь ссылкой:
Сопутствующие материалы

Подобрали для Вас услуги

Вы можете использовать курсовую работу для примера, а также можете ссылаться на неё в своей работе. Авторство принадлежит автору работы, поэтому запрещено копировать текст из этой работы для любой публикации, в том числе в свою курсовую работу в учебном заведении, без правильно оформленной ссылки. Читайте как правильно публиковать ссылки в своей работе.
Свежие статьи
Популярно сейчас
Как Вы думаете, сколько людей до Вас делали точно такое же задание? 99% студентов выполняют точно такие же задания, как и их предшественники год назад. Найдите нужный учебный материал на СтудИзбе!
Ответы на популярные вопросы
Да! Наши авторы собирают и выкладывают те работы, которые сдаются в Вашем учебном заведении ежегодно и уже проверены преподавателями.
Да! У нас любой человек может выложить любую учебную работу и зарабатывать на её продажах! Но каждый учебный материал публикуется только после тщательной проверки администрацией.
Вернём деньги! А если быть более точными, то автору даётся немного времени на исправление, а если не исправит или выйдет время, то вернём деньги в полном объёме!
Да! На равне с готовыми студенческими работами у нас продаются услуги. Цены на услуги видны сразу, то есть Вам нужно только указать параметры и сразу можно оплачивать.
Отзывы студентов
Ставлю 10/10
Все нравится, очень удобный сайт, помогает в учебе. Кроме этого, можно заработать самому, выставляя готовые учебные материалы на продажу здесь. Рейтинги и отзывы на преподавателей очень помогают сориентироваться в начале нового семестра. Спасибо за такую функцию. Ставлю максимальную оценку.
Лучшая платформа для успешной сдачи сессии
Познакомился со СтудИзбой благодаря своему другу, очень нравится интерфейс, количество доступных файлов, цена, в общем, все прекрасно. Даже сам продаю какие-то свои работы.
Студизба ван лав ❤
Очень офигенный сайт для студентов. Много полезных учебных материалов. Пользуюсь студизбой с октября 2021 года. Серьёзных нареканий нет. Хотелось бы, что бы ввели подписочную модель и сделали материалы дешевле 300 рублей в рамках подписки бесплатными.
Отличный сайт
Лично меня всё устраивает - и покупка, и продажа; и цены, и возможность предпросмотра куска файла, и обилие бесплатных файлов (в подборках по авторам, читай, ВУЗам и факультетам). Есть определённые баги, но всё решаемо, да и администраторы реагируют в течение суток.
Маленький отзыв о большом помощнике!
Студизба спасает в те моменты, когда сроки горят, а работ накопилось достаточно. Довольно удобный сайт с простой навигацией и огромным количеством материалов.
Студ. Изба как крупнейший сборник работ для студентов
Тут дофига бывает всего полезного. Печально, что бывают предметы по которым даже одного бесплатного решения нет, но это скорее вопрос к студентам. В остальном всё здорово.
Спасательный островок
Если уже не успеваешь разобраться или застрял на каком-то задание поможет тебе быстро и недорого решить твою проблему.
Всё и так отлично
Всё очень удобно. Особенно круто, что есть система бонусов и можно выводить остатки денег. Очень много качественных бесплатных файлов.
Отзыв о системе "Студизба"
Отличная платформа для распространения работ, востребованных студентами. Хорошо налаженная и качественная работа сайта, огромная база заданий и аудитория.
Отличный помощник
Отличный сайт с кучей полезных файлов, позволяющий найти много методичек / учебников / отзывов о вузах и преподователях.
Отлично помогает студентам в любой момент для решения трудных и незамедлительных задач
Хотелось бы больше конкретной информации о преподавателях. А так в принципе хороший сайт, всегда им пользуюсь и ни разу не было желания прекратить. Хороший сайт для помощи студентам, удобный и приятный интерфейс. Из недостатков можно выделить только отсутствия небольшого количества файлов.
Спасибо за шикарный сайт
Великолепный сайт на котором студент за не большие деньги может найти помощь с дз, проектами курсовыми, лабораторными, а также узнать отзывы на преподавателей и бесплатно скачать пособия.
Популярные преподаватели
Добавляйте материалы
и зарабатывайте!
Продажи идут автоматически
7155
Авторов
на СтудИзбе
253
Средний доход
с одного платного файла
Обучение Подробнее