Для студентов МГТУ им. Н.Э.Баумана по предмету Ротационные компрессорыПроектирование маслозаполненного винтового компрессораПроектирование маслозаполненного винтового компрессора
5,0051
2025-08-122025-08-12СтудИзба
Курсовая работа: Проектирование маслозаполненного винтового компрессора
-50%
Описание
Условие:
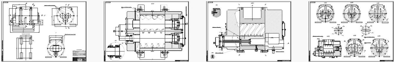
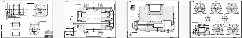
Спроектировать ВКМ для подачи хвостового газа КЦА с давлением 0,12 Мпа в магистральный трубопровод с давлением 0,9 МПа. Температура газа на входе в ВКМ – 35…+35ºС, производительность: 7800 Нм3/ч. Газ: 30 % - Метан; 25 % - Этан; 18 % - Пропан; 12 % - Изобутан; 15 % - Водород. Примечание: использовать подшипники скольжения и золотник для возможности изменения производительности от 25 до 100%.
Демо 3d-модели:
![]()
Демо чертежей:
![]()
Демо расчетно-пояснительной записки:
![]()
Содержание:
Спроектировать ВКМ для подачи хвостового газа КЦА с давлением 0,12 Мпа в магистральный трубопровод с давлением 0,9 МПа. Температура газа на входе в ВКМ – 35…+35ºС, производительность: 7800 Нм3/ч. Газ: 30 % - Метан; 25 % - Этан; 18 % - Пропан; 12 % - Изобутан; 15 % - Водород. Примечание: использовать подшипники скольжения и золотник для возможности изменения производительности от 25 до 100%.
Демо 3d-модели:

Демо чертежей:
Демо расчетно-пояснительной записки:
Содержание:
- Расчеты в Mathcad 15, оформленные как приложения к РПЗ
- Сборка в КОМПАС-3D
- Чертежи в КОМПАС-3D
- РПЗ в Microsoft Word
- Презентация в Microsoft PowerPoint
- Вся необходимая литература
- Примеры курсовых работ
- Полезные файлы и видео
Характеристики курсовой работы
Предмет
Учебное заведение
Теги
Просмотров
26
Качество
Идеальное компьютерное
Размер
595,81 Mb
Преподаватели
Список файлов
С9 РК КР
Всякое
Пример расчета.pdf
Торцевые уплотнения. Лекция.pdf
ВИДЕО
4 Внешнее сжатие - внутреннее сжатие.avi
ОБЩЕЕ Видео ВК.mp4
Книги
Amosov
1.pdf
2.pdf
254.pdf
255.pdf
256.pdf
Annotation.htm
Bezeichnungen (4-5).pdf
Kapitel 1 (6-37).pdf
Kapitel 2 (38-68).pdf
Kapitel 3 (69-80).pdf
Kapitel 4 (81-102).pdf
Kapitel 5 (103-115).pdf
Kapitel 6 (116-211).pdf
Kapitel 7 (212-248).pdf
Verzeichnis (252-253).pdf
Verzeichnis.htm
Vorwort (3).pdf
Vorwort.htm
Wortverzeichnis (249-251).pdf
Wortverzeichnis.htm
Bloch - A Practical Guide to Compressor Technology.pdf
Bloch- Compressors and Modern Process Applications.pdf
Principle of Operation.pdf
САКУН_Винтовые компрессоры.djvu.djvu
Хисамеев_Двухроторные винтовые и прямозубые компрессоры.pdf
Холодильные машины.Тимофеевский (1).djvu
Модели + Чертежи
Tortsevoe_uplotnenie.a3d
Tortsevoe_uplotnenie.stp
Ведомый ротор.m3d
Ведущий ротор.m3d
Виды.cdw
Винтовой компрессор (общий вид).cdw
Винты.a3d
Втулка подшипник.m3d
Вывод золотника.m3d
Деталь.m3d
Деталь_3.m3d
Деталь_4.m3d
Золотник.m3d
Кольцо A160.50 ХГА ГОСТ 13941-86.m3d
Кольцо для зазора.m3d
Кольцо уплотнения.m3d
Корпус торцевого уплотнения.m3d
Корпус.m3d
Крепление золотника.a3d
Крышка ведомого винта.m3d
Крышка ведущего винта.m3d
Крышка золотника.m3d
Крышка со стороны нагнетания.m3d
Неподвижное кольцо.m3d
Окно всасывания.m3d
Если тебе помогла данная работа, поставь оценку ❤️
Комментарии
Нет комментариев
Стань первым, кто что-нибудь напишет!
МГТУ им. Н.Э.Баумана
bomonec
olyazorrina



















